-
Köpa
Köpa -
Sälja
Sälja - Hitta bostad
- Skapa bevakning
- Hitta mäklare
Stensö, Kalmar
*I avgiften ingår värme, vatten, kabel-tv och fiberbredband.
**Area enligt föreningen.
På Förhand ligger bostäder som av olika anledningar inte är ute till försäljning just nu men som kan komma att säljas om förutsättningarna är rätt.
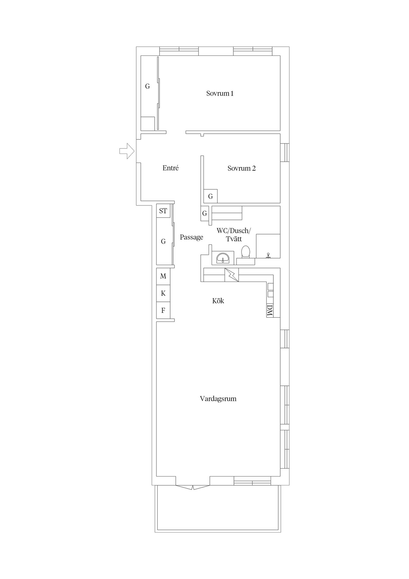
Exklusivt boende i markplan med uteplats på Stensövägen
Nu finns chansen att förvärva en attraktiv markplanslägenhet på en av Kalmars mest eftertraktade adresser – Stensövägen 63B! Här bor du i ett modernt hem om 86 kvm med öppen planlösning, stora fönsterpartier och egen uteplats.
Lägenheten fördelas på tre rum och kök med en social planlösning som binder samman kök och vardagsrum. Här finns gott om plats för både matlagning, middagar och umgänge. Från vardagsrummet nås uteplatsen där du kan njuta av soliga dagar, grilla med vänner eller koppla av med en bok.
Bostaden erbjuder två rymliga sovrum med bra förvaring samt ett generöst badrum utrustat med både tvättmaskin och torktumlare – en bekväm lösning i vardagen. Planlösningen är genomtänkt med gott om garderober, klädkammare samt tillhörande källarförråd.
Till lägenheten hör även garageplats (separat kö) i föreningens garage, vilket gör boendet komplett.
Här bor du i en välskött förening med låg avgift och vackra innergårdar. Området är lugnt och naturnära, samtidigt som city, strövområden och Stensö Fiskeläge finns inom kort promenadavstånd. En perfekt kombination av centralt och naturnära boende!
Välkommen till ett exklusivt boende på Stensövägen – här får du allt du kan önska dig!



*Area enligt föreningen.
I avgiften ingår värme, vatten, kabel-tv och fiberbredband.
Till lägenheten hör ett förråd.
Den generösa uteplatsen blir en naturlig förlängning av vardagsrummet – här finns plats för matgrupp.
Garageplats finns och du behöver inte gå ut för att komma till garaget, utan det räcker med hissen ner. Garageplatsen kostar 629 kronor i månaden.
Fiber.
Bostadsrättens indirekta nettoskuldsättning baseras på föreningens skulder/lån minus föreningens räntebärande tillgångar och likvida medel. Beräkningen är gjord och baseras enbart på den senaste tillgängliga årsredovisningen. För mer information kontakta ansvarig fastighetsmäklare.
*Betalas av köpare
Brf Lillviken i Kalmar är en äkta bostadsrättsförening som äger fastigheten Nyponrosen 1 i Kalmar kommun. På fastigheten finns 7 byggnader med totalt 54 lägenheter. Byggnaderna är uppförda 2011/2012. Adresserna som hör till föreningen är Stensövägen 63 A-G i Kalmar.
För vidare information om föreningen och dess ekonomi, kontakta ansvarig fastighetsmäklare eller se föreningens hemsida: www.brflillvikenikalmar.se
Fastigheten är försäkrad i Länsförsäkringar Kalmar län.
2020 - Markytor och laddstolpar.
2021 - Installationer, markytor och garage samt p-platser.
2022 - Rensning ventilationskanaler, byte belysning.
2023 - Byte armaturer parkeringsgarage, fasadtvätt, rädbeskärning och rabatt.
2024 - Byte cirkulationspump och fasadtvätt.
I föreningen finns ett garage med 55 parkeringsplatser, varav 2 st är avsedda som handikapplatser samt 1 plats för uppladdning av elbil. Varje lägenhet är garanterad att få hyra minst 1 garageplats. Ibland finns det möjlighet att få hyra en andra plats om så önskas. På gården finns det 12 parkeringsplatser, varav 2 är handikapplatser. Dessutom finns 2 st på- och avlastningsplatser längs gårdsvägen.
Kabel-tv (kanalpaket Lagom) och bredband (100/100 Mbit/s) via Telia.
Föreningen har en mysig och välskött innergård med gräsytor, mysiga sittplatser och lummig grönska.
I föreningen finns gemensamma utrymmen för barnvagnar och handikapputrustning. Cykelrum finns i garaget under de 4 husen längs Stensövägen 63 A–D. Dessutom finns 2 välutrustade miljöhus.
Ett av Kalmars absolut attraktivaste område är Stensö, med sitt oslagbara läge är det enkelt att förstå. Stensö ligger nära Kalmars mest folkkära fritidsområde med dess vackra natur. Du bor också nära stadskärnan och det rika utbudet av restauranger och shopping. Utöver den vackra naturen finns badplatser, båthamn, motionsspår, koloni- och friluftsområde på bekvämt gångavstånd. Dessutom finns livsmedelsbutik, skola och vårdcentral inom nära räckhåll.
Köpa, sälja eller värdera bostad i Stensö? Kontakta våra mäklare i Kalmar! Passa också på att anmäla dig till vår kostnadsfria söktjänst Boagenten som hjälper dig att hitta ditt drömboende.
Kontakta mäklaren om du behöver hjälp att ta fram en boendekalkyl.
När du köper din bostad genom Bjurfors kan du ansöka om bolån till en förmånlig ränta hos vår samarbetspartner SEB.
Ansvarig mäklare