-
Köpa
Köpa -
Sälja
Sälja - Hitta bostad
- Skapa bevakning
- Hitta mäklare
Eriksöre , Mörbylånga
*I avgiften ingår sophantering och parkeringsplats samt bostadsrättstillägg. Utöver månadsavgiften tillkommer ett obligatoriskt tillägg för vatten om 175 kr/månad. El debiteras enligt schablon med 200 kr/månad men avläses i november varje år.
**Boarea enligt föreningen och biarea enligt säljare.
På Förhand ligger bostäder som av olika anledningar inte är ute till försäljning just nu men som kan komma att säljas om förutsättningarna är rätt.
Välkommen till en unik möjlighet att förvärva denna charmiga stuga i bostadsrättsform på familjevänliga och natursköna Eriksöre Camping. Denna fridfulla oas kan bli din trygga punkt för avkoppling eller till och med ditt permanenta boende om så önskas. Här kan du njuta av Ölands alla fantastiska skiftningar året runt , från den ljuvliga sommaren till skördetider, vinterskrud och till den spirande våren. När du inte själv nyttjar stugan finns även smidiga uthyrningsmöjligheter via campingen, vilket innebär extra intäkter för dig som ägare. Stugan ägs som en bostadsrätt, vilket ger dig tillgång till all service och alla bekvämligheter som campingen erbjuder. Dessutom säljs stugan möblerad, vilket medför att du kan börja njuta direkt.
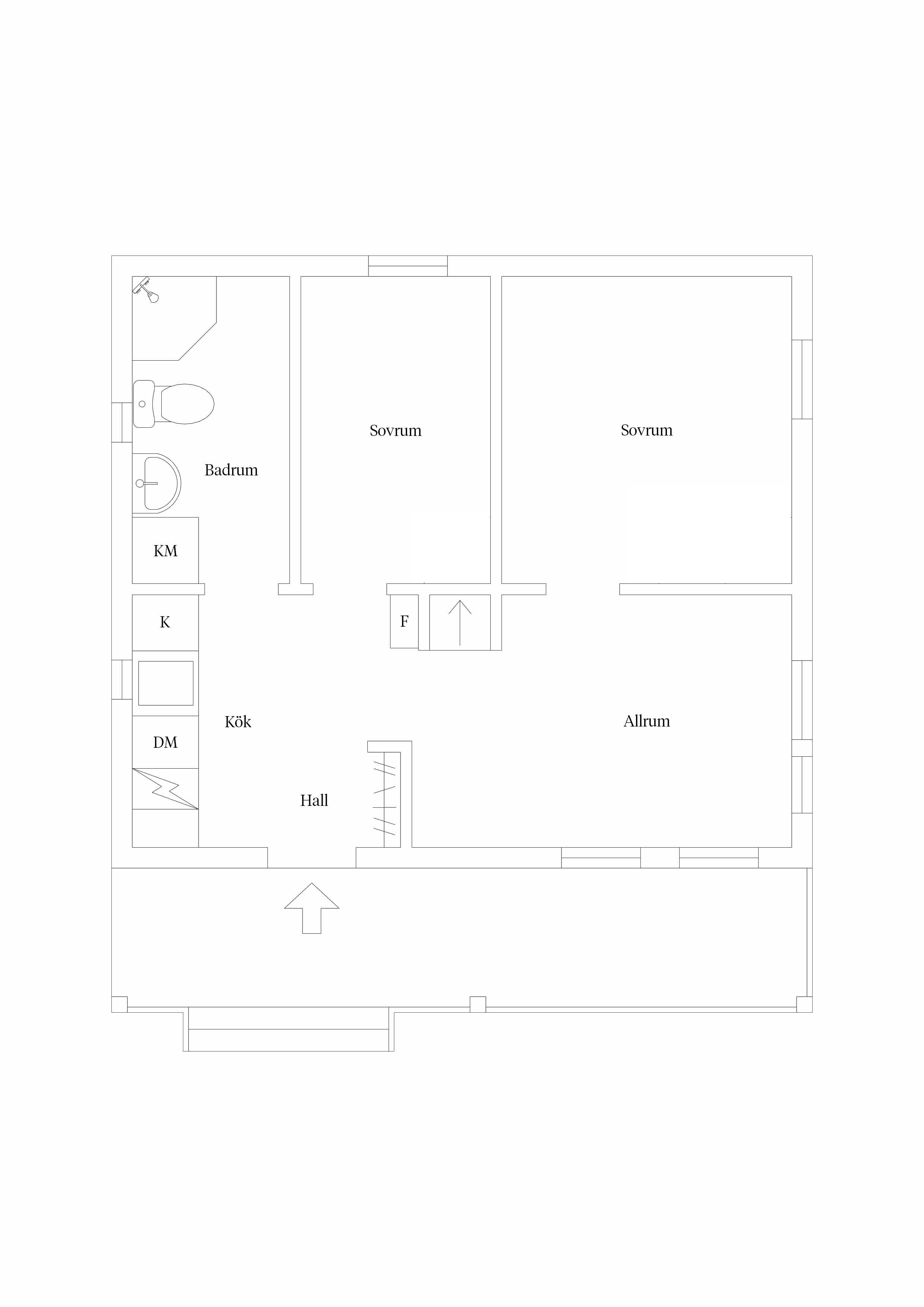
Med en boarea på 49,5 kvm får du ett luftigt och öppet allrum i kombination med ett välutrustat kök samtidigt som takhöjden är generös med öppet upp i nock. Därtill erbjuds två rymliga sovrum som ger plats för säng och ett helkaklat badrum utrustat med egna tvättmöjligheter för extra bekvämlighet. Dessutom finns ett loft om ca 20 kvadratmeter, perfekt för ytterligare sovplatser eller för att skapa ditt eget mysiga krypin. Under sommarhalvårets alla varma dagar kommer altanen vara den självklara platsen at umgås på och som trivsamt vetter mot campingen samtidigt som du skymtar sundet.
Eriksöre Camping är en plats för hela familjen. Här njuter du av närheten till Kalmar sund med fantastisk strand och badmöjligheter, samt en magisk utsikt över såväl vattnet som Kalmar. På området finns en välsorterad sommarbutik och Restaurang Drina som serverar bland annat pizzor och sallader samt en glasskiosk vid stranden. Campingen erbjuder ett brett utbud av aktiviteter för alla åldrar, såsom flera badbryggor, en gräs/sandstrand, minigolfbana, lekplats, hoppkuddar och spelplaner för volleyboll och boule. För dig med fyrbent vän finns hundbad och en agilitybana. Stugan ligger på ett bekvämt avstånd, endast en kort cykeltur från Färjestadens centrum, och med bra bussförbindelser till både Färjestaden och Kalmar. Med tre moderna servicehus, en affär med bra basutbud och trevlig restaurang på området är allt du behöver nära till hands. Här får du också en oslagbar utsikt över Kalmar, en bildskön kuliss som gör Eriksöre Camping till en oas på Öland, året om. Välkommen till ditt nya hem eller fritidshus på Öland!
HALL
Via altanen tar du dig in i stugan och möts av den ljusa och inbjudande hallen. Här finns goda avhängningsmöjligheter för ytterkläder.
KÖK
I direkt anslutning till hallen ligger köket praktiskt beläget. Ljus köksinredning med vitt kakel ovan bänkskiva. Köket är utrustat med spis, fläkt, diskmaskin, hel kyl och halv frys. Köket går i öppen och social planlösning med allrummet.
ALLRUM
Ljust och luftigt allrum som ger plats för större möblemang. Perfekt för mysiga stunder med familj och vänner.
SOVRUM
Rymligt sovrum som går i en mörkgrå kulör och ger plats för större säng.
SOVRUM
Ljust och luftigt sovrum som är utrustat med dubbelsäng.
LOFT
Via allrummet når du det mysiga loftet som av nuvarande ägare använder för ytterligare sovplatser.
BADRUM
Ljus klinker och ljust kakel samt fint ljusinsläpp från fönster. Badrummet är utrustat med toalett, dusch, handdukstork, handfat, spegelskåp och kombinerad tvätt- och torktumlare.



*Boarea enligt föreningen och biarea enligt säljare.
I avgiften ingår sophantering och parkeringsplats samt bostadsrättstillägg. Utöver månadsavgiften tillkommer ett obligatoriskt tillägg för vatten om 175 kr/månad. El debiteras enligt schablon med 200 kr/månad men avläses i november varje år.
2020 installerades luftvärmepump.
2022 installerades kyl och frys samt kombinerad tvätt- och torktumlare.
2024 installerades ny diskmaskin.
På stugans framsida finns den mysiga altanen som ger plats för större möblemang.
Till stugan hör en parkeringsplats.
Bostadsrättens indirekta nettoskuldsättning baseras på föreningens skulder/lån minus föreningens räntebärande tillgångar och likvida medel. Beräkningen är gjord via Bopedia. För mer information kontakta ansvarig fastighetsmäklare.
Driftskostnader enligt säljarens uppgifter.
*Betalas av köpare
Brf Erik på Öland är en äkta bostadsrättsförening som registrerades år 2007 och äger fastigheten ERIKSÖRE 5:23, 5:24, 5:4, och 5:5. På fastigheten finns 123 st byggnader, 75 st villavagnar och 40 st stugor, där samtliga är upplåtna med bostadsrätt. Övriga byggnader är förråd, reception, restaurang, 3 st servicehus, badkiosk och konferenslokal. Föreningen arrenderar ut campingverksamheten.
Föreningen höjer normalt avgiften med 3% per år. För vidare information kring föreningens ekonomi kontakta ansvarig fastighetsmäklare.
Till bostadsrätten hör en parkeringsplats.
En lugn och trivsam camping med direkt närhet till kalmarsund och natursköna omgivningar. Här erbjuds ett brett utbud av aktiviteter för alla i familjen. Med flertalet badbryggor, gräs/sandstrand, minigolfbana, lekplats, hoppkuddar och spelplaner för bland annat volleyboll och boule. För dem som har en fyrbent familjemedlem finns hundbad och agilitybana. Därtill finns en mysig restaurang med utsikt över sundet, butik med basvaror samt glasskiosk nere vid stranden. Vidare finns tre moderna servicehus, affär samt restaurang. Dessutom utlovas en svårslagen utsikt över Kalmar slott.
Möjlighet finns för uthyrning av bostadsrätten, men får endast ske via campingen.
Vill du köpa, sälja eller värdera bostad i Kalmar? Kontakta våra mäklare! Passa också på att anmäla dig till vår kostnadsfria söktjänst Boagenten som hjälper dig att hitta ditt drömboende i Kalmar.
Här hittar du alla våra lediga bostäder till salu i Kalmar län just nu!
Kontakta mäklaren om du behöver hjälp att ta fram en boendekalkyl.
När du köper din bostad genom Bjurfors kan du ansöka om bolån till en förmånlig ränta hos våra banksamarbetspartners Söderberg & Partners och SEB.
Ansvarig mäklare