-
Köpa
Köpa -
Sälja
Sälja - Hitta bostad
- Skapa bevakning
- Hitta mäklare
Charmig villa i natursköna Börjelslandet!
Börjelslandet, Luleå
*Areauppgifter enligt taxeringsinformationen
På Förhand ligger bostäder som av olika anledningar inte är ute till försäljning just nu men som kan komma att säljas om förutsättningarna är rätt.
Med lugnt och naturskönt läge på bekvämt avstånd från stan finner du denna fantastiska 1½-plansvilla med stor gård i bra solläge.
Kommande försäljning av en fint renoverat 1½-plansvilla med ett lugnt och naturskönt läge i Börjelslandet!
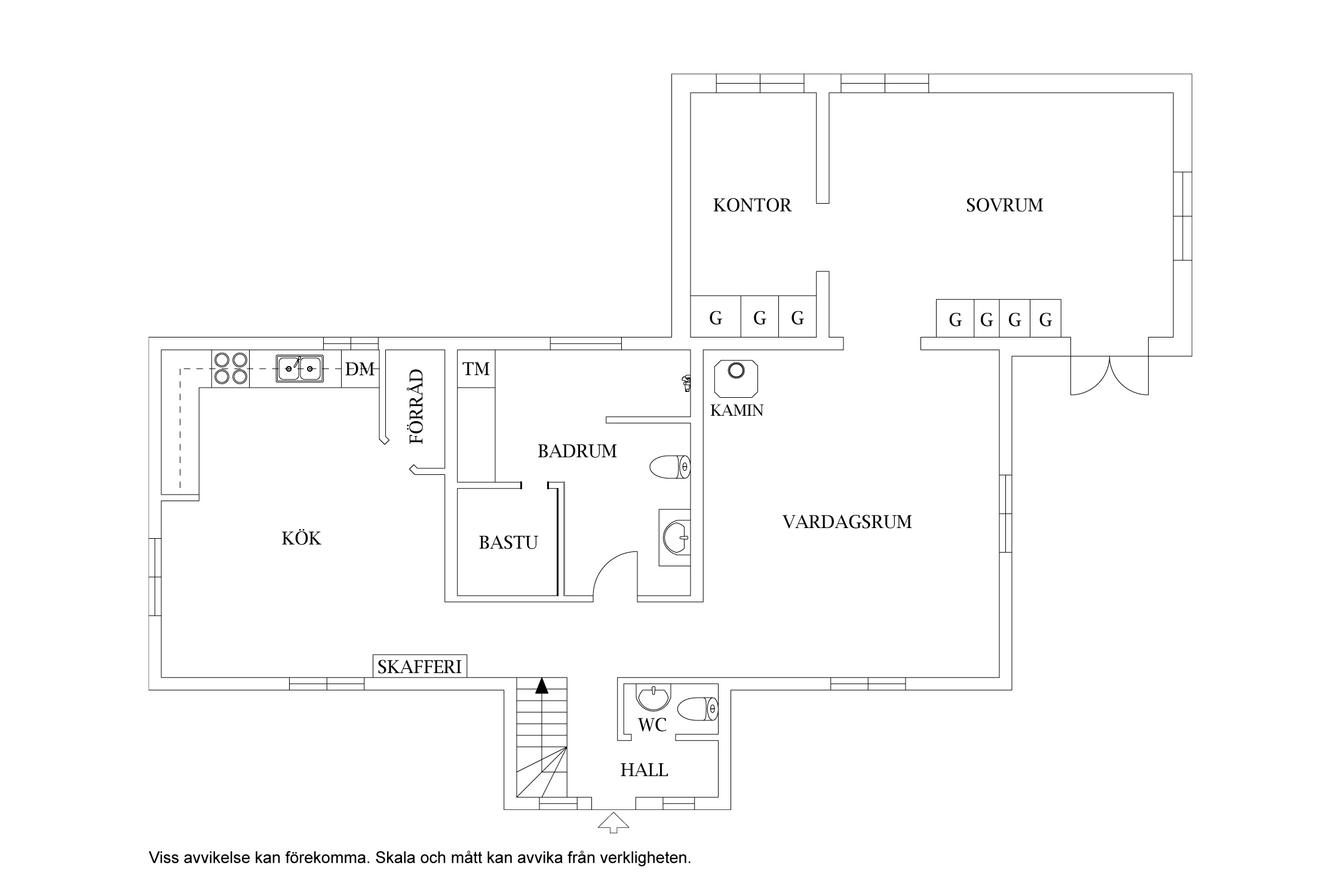
Bostaden är genomgående renoverad i en stil som harmonierar väl med husets karaktär. Här möts du av ett nyrenoverat kök med praktiskt skafferi och ett tidlöst renoverat badrum med bastu och tvättavdelning. Vidare i entréplanet finns ett rymligt sovrum med angränsande kontor, trivsamt vardagsrum med braskamin (godkänd att elda i) samt en välkomnande hall med tillhörande gästtoalett. På övre planet finns två sovrum, ett kontor/mindre sovrum samt förrådsutrymmen. Väl omhändertagna ytskikt genom hela huset med enhetliga golv och tidstypiska tapetval. Ett hem med massvis av charm som måste upplevas på plats!
Den generösa tomten om 2 707 kvm bjuder på ett fantastiskt solläge och fri utsikt mot öppna ängar. Här finns gott om utrymme för både avkoppling, umgänge och odlingsmöjligheter. På gården finns flera uppskattade komplementbyggnader såsom vedeldad utebastu (ej kontrollerad), skoterförråd, äldre bagarstuga med rymlig förrådsdel samt vedbod. Flera fina träaltaner i olika väderstreck skapar naturliga platser att följa solen från morgon till kväll. På gården finns även röda och svarta vinbär, rabarber samt några pallkragar med jordgubbar.
Här bor du i en trivsam by med stark gemenskap – en plats där det är lätt att trivas och känna sig hemma, samtidigt som du har smidigt pendlingsavstånd till både Luleå och Råneå. I grannbyn Persön finns förskola och skola upp till årskurs 6 (barnen från Börjelslandet har skolskjuts) bensinstation och restaurang.
Fastigheten kommer att besiktas via Anticimex under april/maj månad.
Varmt välkommen att anmäla ditt intresse redan idag!



Börjelslandet 4:25
*Areauppgifter enligt taxeringsinformationen
2026: Ny köksinredning Ikea stommar, luckor Ikea Lerhyttan (täcksidor överskåp egentillverkade) Diskmaskin Ikea Bosch, Ugn Bosch, omtapetserat i kök. Blivande pannrum/skafferi stomme byggd (vatten och avlopp finns förberett indraget). Ny matning indragen från huvudcentral ute till el-central inne i hallen (ej inkopplad).
2025: Vedeldad bastu inredd i stuga vid altanen, Harvia bastukamin med
vattenvärmare. Ny tvättmaskin samt torktumlare Samsung. Ny luftvärmepump i kök: Toshiba Haori 35. Altan byggd på baksida, utgång från badrummet. Ny träram runt vattenbrunnen samt 3 brunnsringar tätades med Le Prompt naturcement (fri från kemiska tillsatser).
2024: Fd. sovrum nedervåning byggdes om till badrum, tvättstuga, bastu (Allt isolerat med träfiber). Gamla badrum i hall revs och ny mindre wc byggdes upp. Hallens golvbjälklag isolerades även om (Träfiber) Badrum: vattenburen golvvärme. Hall och lilla wc: el golvvärme. Flytspackling, klinker hall, golvmatta badrum + lilla wc samt väggmatta i duschdel utfört av mattläggare/plattsättare. 2 st nya Intellivent badrumsfläktar. I samband med badrumsrenovering drogs alla vattenledningar nya från matkällare.
2023: Pergola byggdes vid altanen. Mr flowout uppfällbara stuprännor monterades runt huset.
2022: Timring inreddes med nytt plåttak, hängrännor, golv, portar, ramp samt ett loft byggdes.
2018-2020: Ny tilläggsisolerad (mineralull) samt vindskyddad fasad, nya outline 3-glas vridfönster (alla stora fönster), nya små fönster på övre plan 3-glas outline med aluminium utsida, 2 st parglasdörrar, veranda samt ny entrebro byggdes, utbyggnad: sovrum samt kontor gjuten platta med vattenburen golvvärme, isolerad med träfiber lösull. Rennit hängrännor och stuprör, shingeltak utbyggnad samt veranda. All utvändig byggnation utförd av byggföretag. Ny elcentral med jordfelsbrytare till blivande badrum samt elpanna monterat i kontor. Ny Smeg köksfläkt samt Siemens induktionhäll i kök. 7st friskluftsventiler monterades i huset.
2017: Altanräcken byggdes.
2016: Ny varmvattenberedare 160 liter, järn/mangan filter i matkällare. Bosch kyl/frys 70 cm bred. Golv pergo laminat nedervåning, målning, tapetsering, laminatgolv byggmax övervåning.
All befintlig samt ny el som dragits/ändrats under år: 2016-2026 är utförd av behörig elektriker.
Utfört av tidigare ägare (exakt år okänt):
Grävt in ny avloppsledning samt vattenledning in till huset. Borrat vatten med automatisk påfyllning i grävd brunn. Kamin år: 2007. Nytt golvbjälklag, trossbotten, isolering hall, vardagsrum och kök. Mellan år: 2010-2015: Ytterdörr bytt. Nytt yttertak, takstolar/reglar, underlagsduk, vindskivor, rennit hängrännor och stuprör. Altan byggdes.
- Äldre förrådsbyggnad uppdelad med förrådsdel och bagarstuga med renoveringbehov.
- Timrad boda som t ex inrymmer 3 st skotrar.
- Bastubyggnad (vedeldad) med tillhörande träaltan med pergola.
- Vedbod.
Enskilt vatten (borrad brunn, tjänligt enligt vattenprov) och enskilt avlopp (äldre anläggning).
Trädgårdstomt med grönytor och grusad uppfart.
Stor uppfart med plats för flertalet bilar. Motorvärmarstolpe finns.
Gemensamhetsanläggning: Luleå Börjelslandet GA:6
Ändamål: Vägar
Fiber
Nyttjanderätt Fiber
Nuvarande ägare har under det senaste året haft en elförbrukning på 24 133 KWh (16 A) till en kostnad av 48 371 kr/år, varav kostnad för elhandel 32 523 kr och kostnad för elnät 15 848 kr, avser både hushållsel och uppvärmning.
Slamtömning en gång per år mot en kostnad av 1 746 kr per tömning.
Renhållning med tömning av restavfall 190 L varannan vecka och matavfall 140 L varannan vecka till kostnad av 3 444 kr.
OBS! Driftkostnaden varierar beroende på avtal, familjesammansättning och levnadsvanor. Kostnad för försäkring tillkommer.
Det finns 11 st pantbrev uttagna om sammanlagt 1 518 000 kr
Köpa, sälja eller värdera bostad i Börjelslandet? Kontakta våra mäklare i Luleå! Passa också på att anmäla dig till vår kostnadsfria söktjänst Boagenten som hjälper dig att hitta ditt drömboende.
Kontakta mäklaren om du behöver hjälp att ta fram en boendekalkyl.
När du köper din bostad genom Bjurfors kan du ansöka om bolån till en förmånlig ränta hos våra banksamarbetspartners Söderberg & Partners och SEB.
Ansvarig mäklare
Extra kontaktperson