-
Köpa
Köpa -
Sälja
Sälja - Hitta bostad
- Skapa bevakning
- Hitta mäklare
Stilren funkisvilla med generösa ytor, havsnära läge och stora möjligheter.
Ängelholm - Centrum, Ängelholm
*Areauppgifter enligt taxeringsinformationen
På Förhand ligger bostäder som av olika anledningar inte är ute till försäljning just nu men som kan komma att säljas om förutsättningarna är rätt.
Funkisstilen kommer till sin rätt med stora, ljusa rum, väl tilltagen takhöjd, öppen spis och en öppen och genomgående planlösning.
Längs attraktiva Havsbadsvägen reser sig denna tidstypiska funkisvilla från 1945 – en arkitektonisk bostad där stilren design möter funktion och rymd. Villan är uppförd i två plan med källare och erbjuder hela 180 kvm boyta samt 90 kvm biyta, perfekt för den som värdesätter både öppna sällskapsytor och goda förvaringsmöjligheter.
Funkisstilen kommer till sin rätt med stora, ljusa rum, väl tilltagen takhöjd, öppen spis och en öppen, genomgående planlösning som skapar ett härligt flöde genom huset. Vardagsrummet blir en naturlig samlingspunkt och härifrån nås det generösa trädäcket, som suddar ut gränsen mellan inne och ute – perfekt för sommarens middagar och avkoppling i solen.
Baksidan bjuder på en stor, lummig trädgård som ger en privat och grön oas med gott om plats för både lek, odling och umgänge. Här finns alla förutsättningar att skapa en trädgård att njuta av året runt.
Källaren erbjuder utmärkta förvaringsutrymmen, hobbyytor eller möjlighet till hemmagym, vinkällare eller verkstad – ett stort plus för den som vill ha ordning och extra funktionalitet.
Villan är dessutom mycket flexibel i sitt användande. Här kan du med lätthet nyttja hela huset som en rymlig enfamiljsbostad, eller välja att hyra ut ovanvåningen för en extra inkomst – perfekt för den som vill kombinera boende och ekonomi på ett smart sätt, eller skapa plats för generationsboende.
Läget är svårslaget: nära centrum med restauranger, butiker och service, samtidigt som du har hav, strand och natur på bekvämt avstånd. Här får du det bästa av två världar – ett bekvämt stadsliv kombinerat med lugn och närhet till vatten och grönområden.
En funktionalistisk villa med själ, rymd och stora möjligheter – ett hem att trivas i under lång tid framöver.



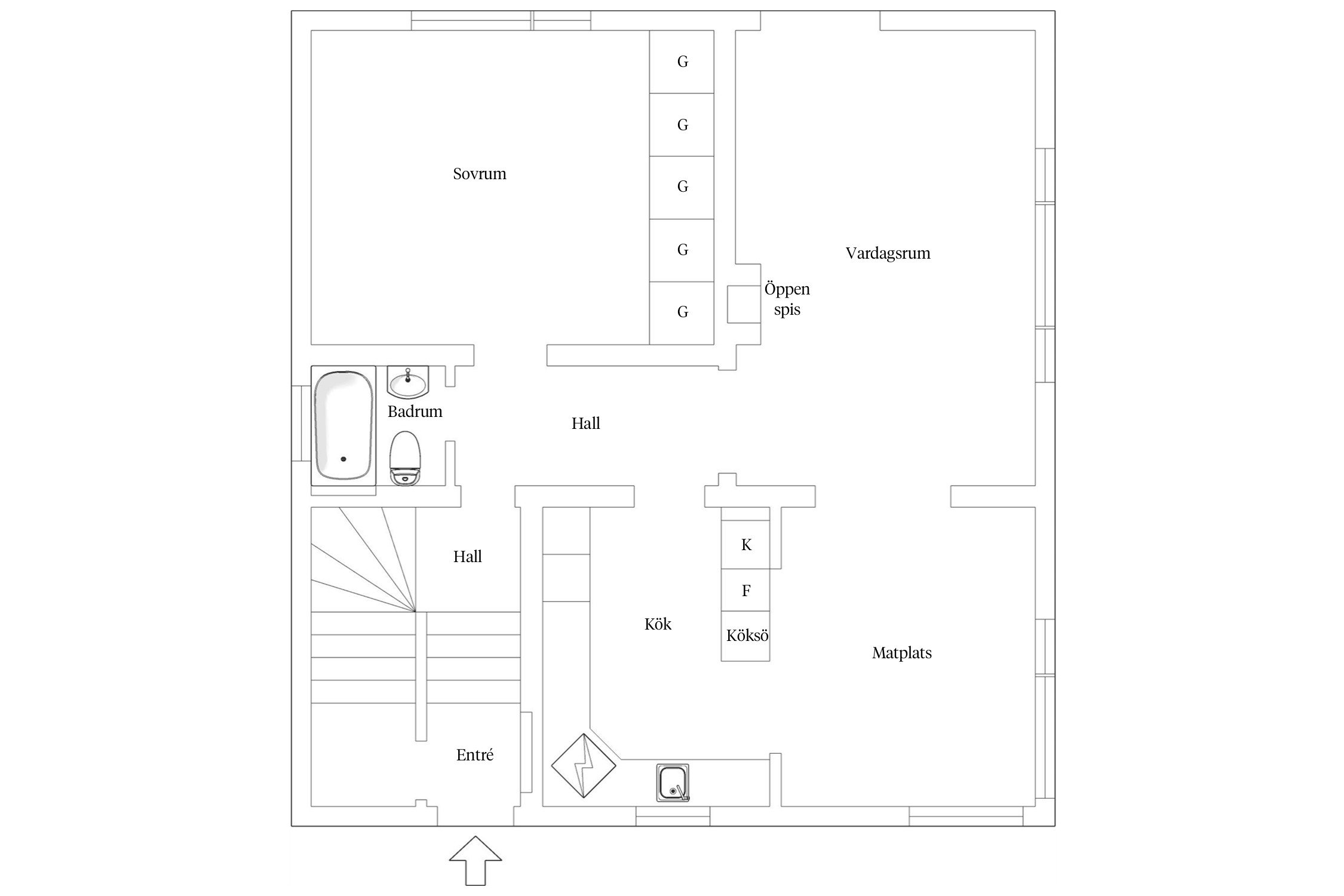
Entré
Övre plan
Källare
Björken 12
*Areauppgifter enligt taxeringsinformationen
Den öppna spisen på övre plan saknar insats och används ej.
Den öppna spisen på entréplan fungerar bra och används. Sotades senast i höst 2025.
Badkaret på entréplan har knappar och funktioner för bubbelbadkar. Dessa funktioner fungerar ej och badkaret används som ett vanligt badkar.
År 2002
Dränering av huset. jordvärme installerades. Renovering av
el.
År 2010
Kök på entréplan från Kvänum sattes in. Vitvaror från Miele.
Båda badrummen renoverades under år 2010.
År 2015
Taket lades om med ny papp, läkt samt pannor.
År 2023
Golvslipning och samtliga ytskikt på entreplan bredspacklades och målades.
Väggar på övre plan målades.
År 2025
Vardagsrum på övre plan målades om under detta år.
Skorsten helplåtades och det sattes fågelnät under år 2025.
Kommunalt vatten, Kommunalt avlopp.
Tomtindelning (1943-11-22) Stadsplan (1942-06-06)
Fiber
Kostnaden för uppvärmning (jordvärme) omfattas av kostnaden för el.
Under år 2024 hyrdes ovanvåning ut. Under detta år bodde det fyra vuxna och två barn i huset. Kostnaden för el/uppvärmning var då 40693kr/år och vatten/avlopp kostnaden var 9517 kr/år.
Det finns 5 st pantbrev uttagna om sammanlagt 4 536 000 kr
Den vackra kuststaden Ängelholm är centralorten i Kulla- och Bjärebygden. För dig som söker bostad här finns alla möjligheter. I Ängelholms kommun är avstånden små till vad du än söker. Du möter vacker natur, djupa skogar och landskapsidyll samtidigt som du har en stadskärna med ett stort utbud av butiker och restauranger. På sommaren är Ängelholm en riktig turiststad. Inom kommunen finns en rad fantastiska sandstränder. För att nämna några finns Sibirien, Råbocka, Skälderviken och Vejbystrand på kort avstånd från Ängelholms centrum.
Genom Ängelholm flyter också vackra Rönneån, vilket också har satt sin prägel på staden. Tidigt var segling uppför Rönneån viktigt och även en av anledningarna till att staden grundades. Idag firas varje år ljusfestivalen just vid Rönneåns kant.
Det går knappast att prata om Ängelholm utan att nämna lergöken. Kommunen kallas i folkmun för just Lergökastan. Det är den långa trenden av keramiker och tillverkningen av Ängelholmsgökar som lever kvar än idag. Till exempel finns världens enda lergöksorkester i Ängelholm.
Kommunens placering med tillgänglighet till motorvägen för vidare färd söder- och norrut gör kommunen väldigt lämplig för pendlare. Ängelholm har även Ängelholms flygplats med dagliga turer till bland annat Stockholm.
Vill du köpa, sälja eller värdera bostad i Ängelholm? Kontakta våra mäklare i Ängelholm! Passa också på att anmäla dig till vår kostnadsfria söktjänst Boagenten som hjälper dig att hitta ditt drömboende.
Kontakta mäklaren om du behöver hjälp att ta fram en boendekalkyl.
När du köper din bostad genom Bjurfors kan du ansöka om bolån till en förmånlig ränta hos vår samarbetspartner SEB.