-
Köpa
Köpa -
Sälja
Sälja - Hitta bostad
- Skapa bevakning
- Hitta mäklare
Ståtlig 20-tals villa full av historia och potential
Trollsjöområdet, Eslöv
*Areauppgifter enligt taxeringsinformationen
En möjlighet för dig att omforma denna historiska egendom till din alldeles egna privata bostad eller fortsätta med nuvarande upplägg.
Denna pärla byggd 1929 uppfördes ursprungligen som privatbostad, men har därefter byggts om för verksamhet och tjänat som bland annat studieförbund, ungdomsboende samt tandläkarpraktik.
Nu är tiden mogen för en ny era och det ges möjlighet för dig att omforma denna historiska egendom enligt egna önskemål.
Huset erbjuder generösa ytor med 325 boarea och 175 kvm biarea fördelat på två plan och inredd källare. Vägen framåt öppnar upp för oändliga möjligheter för förvandlingen av denna villa, det finns bevarade originaldetaljer kvar såsom en otroligt vacker och gedigen trappa, detaljrika fönster, och en öppen spis. Nuvarande planlösning har på 15 rum, 3 kök, 6 duschar samt 8 toaletter.
Väl inne i huset framgår tidsåldern tydligt och ett genomgående tema är vita väggar i kontrast med hantverksmässiga och massiva karmar, knutar och fönsterlister. Samtidigt ger de spröjsade fönsterna huset en charmig karaktär. Badrummen renoverades 2015 tillsammans med anpassning av ventilationssystem och brandskydd enligt verksamhetens förordningar.
Oavsett dina behov och ambitioner kan du här skapa din drömvilla, ett generationsboende, använda huset för uthyrning eller verksamhet.
Villavägen 12 ligger på optimal hörntomt i Trollsjöområdet med direkt närhet till Eslöv Centrum och dess utbud. Goda kommunikationsmöjligheter till Lund, Malmö och Helsingborg för den som pendlar. Här finns även förskolor, skolor och vårdcentral.
Välkommen på visning !
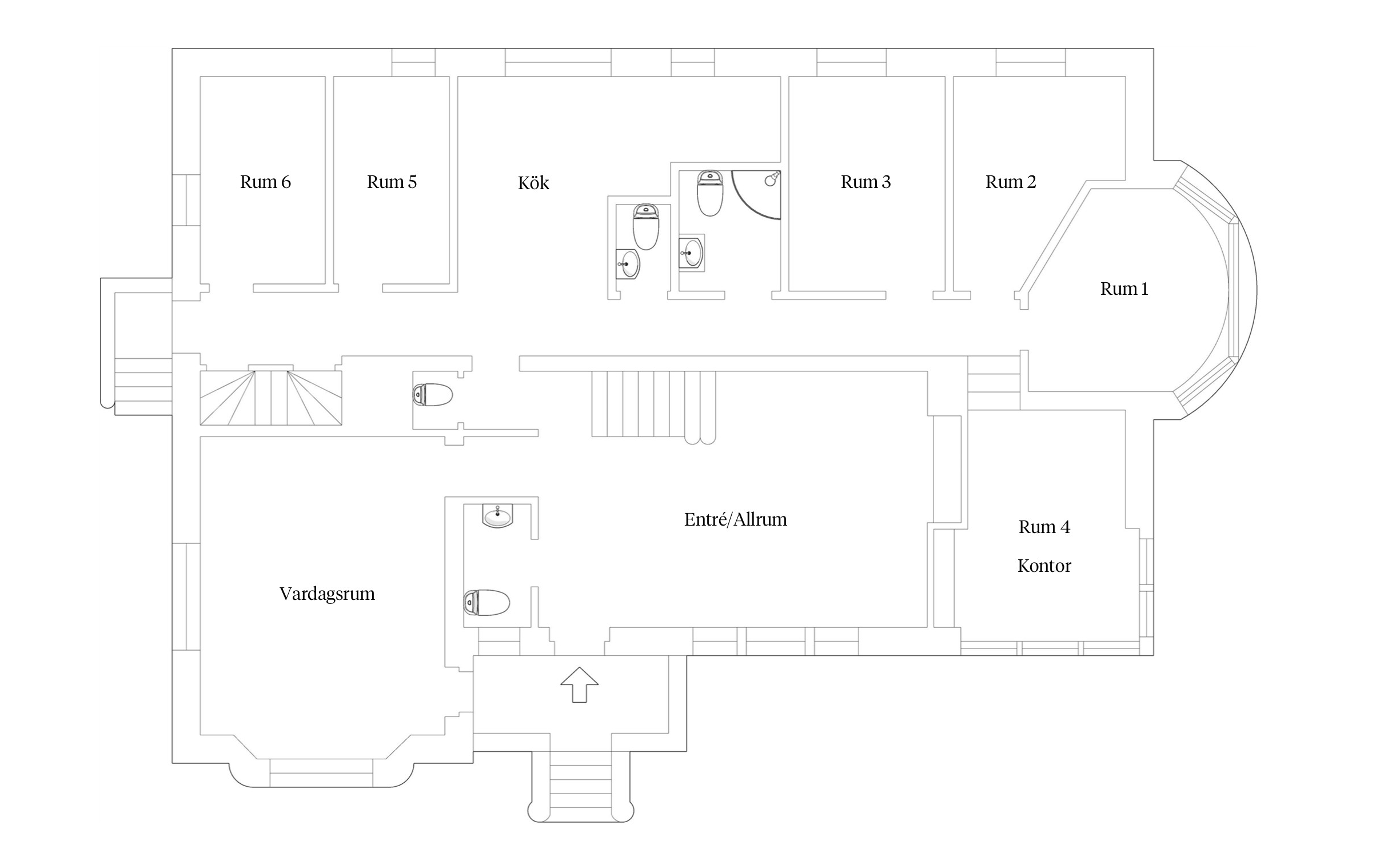
Entréplan
Entré/Hall
Innanför entrén välkomnas man av hallen och till höger finns det ståtliga trappan upp till ovanvåningen. Fönsterna har dekorativa spröjs och här finns även en öppen spis (har inte använts de senaste åren).
Kontor/Rum 4
Detta rum används för tillfället som kontor. Det skiljs av mot hallen genom det som tidigare använts som en receptionsdisk med en bevarat fönsterparti med vackert färgat glas. I hörnan finns även ett vackert burspråk med stora fönsterpartier.
Kök
Fullutrustat kök med spishäll med dubbelugn, inbyggnadsugn, fläkt, micro, kyl och frys (6st totalt).
Vardagsrum
Vardagsrummet är lite större än de övriga på entréplan och har bevarad fiskbensparkett. Används för tillfället som sovrum.
Rum 1-6
Används i dagsläget som sovrum. Golvet är laminat och väggarna är målade på vävtapet.
Badrum 1
Utrustat med toalett, handfat och dusch. Helkaklat med vit kakel och grå klinker.
Badrum 2
Utrustat med handfat samt toalett. Plastmatta och vävtapet på väggarna.
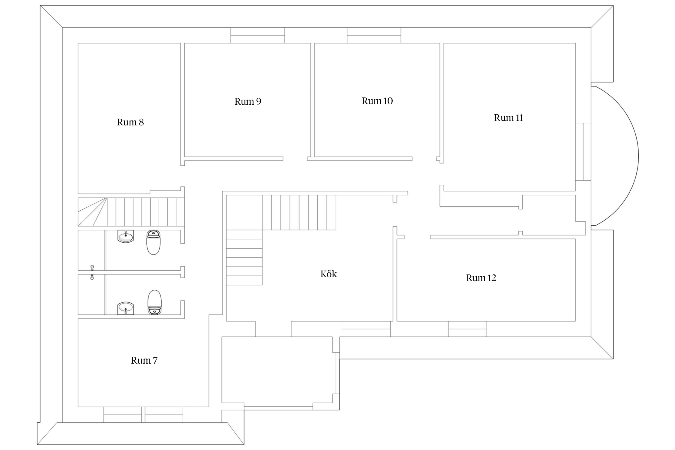
Ovanplan
Rum 7-12
Likvärdiga sovrum som på entréplan. Vitmålade väggar och laminatgolv.
Badrum 3 & 4
Klinker på golvet och målad tapet på väggarna. Utrustade med toalett, handfat samt dusch.
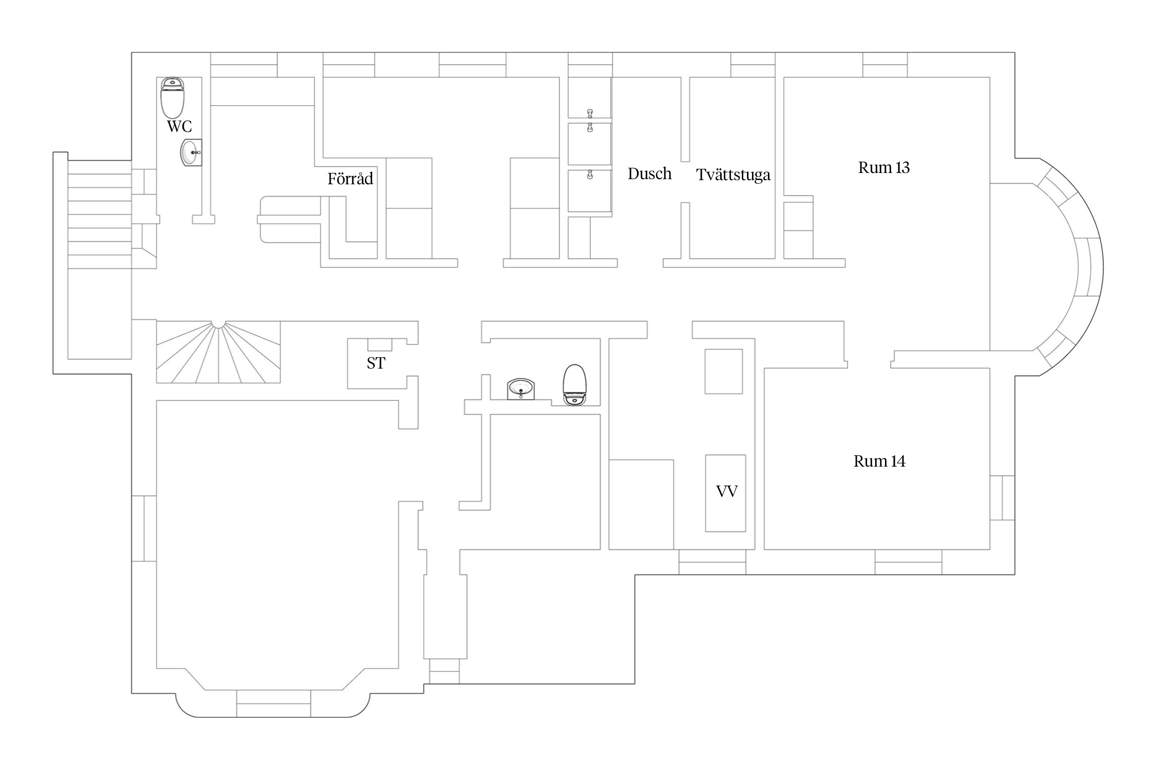
Källarplan
Rum 13 & 14
Dessa rum har närmast används som sovrum samt lektionssal. På golvet ligger klinker och väggarna är vitmålade. I ett av rummen finns för tillfället ett kök utrustad med ugn.
Tvättstuga
Utrustat med tvättmaskin, torkskåp och tvättho.
Duschrum
I källaren finns för tillfället ett duschrum med 3st separata duschutrymmen som skiljs av med kaklade väggar.
Badrum
Utrustat med toalett och handfat. Klinker på golvet och målad tapet på väggarna.



Entréplan
Ovanvåning
Källare
Bryggeriet 20
*Areauppgifter enligt taxeringsinformationen
*Besiktigad: torsdag 16 juni 2022
Kommunalt vatten året om, kommunalt avlopp
Stadsplan (1971-09-07) Tomtindelning (1963-11-15)
Gemensamhetsanläggning: Eslöv bryggeriet ga:1
Fiber
Det finns 6 st pantbrev uttagna om sammanlagt 2 400 000 kr
Med målet att år 2025 vara Skånes bästa kommun att bo och verka i spänner centralorten Eslöv bågen och expanderar boendemöjligheterna. Utbudet av butiker och restauranger samt servicegraden är god i Eslövs tätort, det är smidigt att pendla inom regionen och på fritiden kan man bowla, golfa, simma -eller bara ta det lugnt i den trevliga småstaden på slätten mitt i Skåne.
Eslövs kommun har runt 30 000 invånare, varav majoriteten bor i tätorten. På gatorna i centrumområdet runt trevliga Stora Torg ligger flera äldre fastigheter som hyser kontor och bostäder. Detta är Eslövs kommersiella kärna som har flera mindre butiker och restauranger, biograf och hotell Stenson med nattklubb och konferens. Järnvägsstationen, uppförd 1914, är en vacker byggnad och visar upp det som sätter färg på många andra fastigheter i Eslöv – det röda teglet. Pendlingsmöjligheterna är mycket goda då både stambanan, Marieholmsbanan och pågatågstrafik går via Eslöv.
Den äldre bebyggelsen av större och mindre gårdar och myndighetsbyggnader har fått sällskap av områden med fristående enfamiljshus uppförda i mitten och senare delen av 1900-talet. Utanför dessa kommer så områden med nyare bebyggelse. De äldsta husen daterar till tidigt 1800-tal men det var först när järnvägen anlades i mitten av 1800-talet som byn började ta form. Idag expanderar Eslövs tätort främst västerut.
Trollsjön är ett trevligt boendeområde med fristående enfamiljshus i lugnt läge invid ett grönområde väster om centrum. Förr gick det att bada i Trollsjön, nu är det en uppskattad aktivitetsyta med en mycket fin lekplats och en frisbeegolfbana. På boendeområdet Väster ligger Ekevalla fotbollsplan, flera förskolor, grundskola f-åk6 samt separat skola för åk 7-9. I de lugna kvarteren på de omgivande gatorna ligger större friliggande enfamiljshus varav flera är uppförda runt sekelskiftet. I Västerdala, ligger kvarter med fristående enfamiljshus i lummiga trädgårdar och radhus. Området Bäckdala i utkanten av tätorten är expansivt, här planeras för nya friliggande enfamiljshus.
I området Öster, som följer på andra sidan järnvägen i Centrum, är bebyggelsen blandad. Här finns äldre byggnader, inredningsbutiker och mindre industriverksamheter. Här finns Eslövs Leksaksmuseum och Kvarngatans skatepark, populärt bland barnfamiljer. Nordöst om järnvägen framför det öppna landskapet ligger området Berga med flerfamiljshus och kvarter med friliggande enfamiljshus av nyare datum med intilliggande förskola.
Smålandsvägen, som löper från centrala tätorten delar upp norra Eslöv; Norrevång, Norr och Rönneberga. Karlsros lugna kvarter med enfamiljshus och förskola ligger på ett fint läge invid gröna Husarängens löparslingor. Karlsrobadet har inomhusbassäng, äventyrsbad, bowlinghall och ett sommaröppet utomhusbad. Nordväst ligger området Solkullen omfamnat av ett öppet landskap.
Sallerup är ett större område i sydvästra Eslöv, bebyggelsen är främst lägre flerfamiljshus och radhus. Västra Sallerup och området kring kyrkbyn har en lantlig känsla, här ligger flera mindre gårdar på de böljande öppna fälten. Söder om Eslöv ligger Ellinge slott, omtyckt ställe för bröllop och konferenser. På markerna ligger en 18-håls golfbana, en pay&playbana under Eslövs GK.
Köpa, sälja eller värdera bostad i Trollsjöområdet? Kontakta Bjurfors mäklare i Eslöv! Passa också på att anmäla dig till vår kostnadsfria söktjänst Boagenten som hjälper dig att hitta ditt drömboende.
Kontakta mäklaren om du behöver hjälp att ta fram en boendekalkyl.
När du köper din bostad genom Bjurfors kan du ansöka om bolån till en förmånlig ränta hos våra banksamarbetspartners Söderberg & Partners och SEB.
Ansvarig mäklare