-
Köpa
Köpa -
Sälja
Sälja - Hitta bostad
- Skapa bevakning
- Hitta mäklare
Välplanerad bostad med ljus och rymd i hjärtat av Helsingborg- en trea omgjord till en tvåa.
Centrum, Helsingborg
*Areakälla enligt bostadsrättsföreningens mäklarbild/utdrag ur lägenhetsregister.
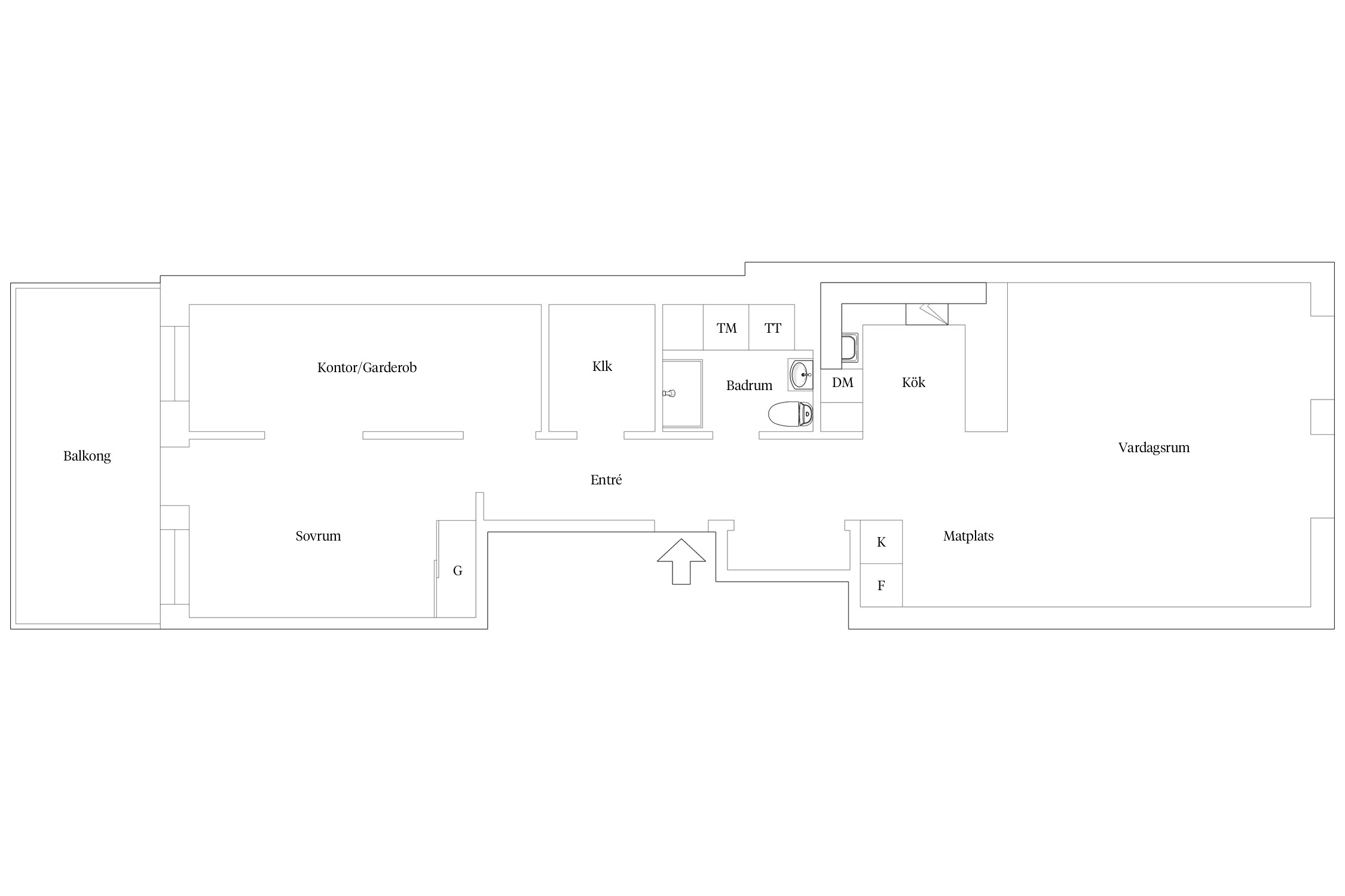
Välkommen in i en inbjudande hall med praktisk förvaring för både skor och ytterplagg. På golvet ligger en tålig grå/svart klinker som ger ett stilrent första intryck och tål vardagens slitage.
Vidare öppnar bostaden upp sig mot ett härligt U-format kök med generösa arbetsytor och gott om förvaring. Den öppna planlösningen mot vardagsrummet skapar en social och trivsam atmosfär. Köket är fullt utrustat med diskmaskin, fläkt, häll, ugn samt hel kyl och frys. Genomgående ekparkett och infällda spotlights i taket ger ett modernt och enhetligt uttryck.
Vardagsrummet är ljust och luftigt med stora fönster från golv till tak som ger ett fantastiskt ljusinsläpp. Väggarna är målade i vitt och bryts av med en smakfull svart panelvägg där tv:n är placerad idag – en snygg detalj som ger karaktär åt rummet.
Sovrummet fortsätter i samma stil med vita väggar, svart panelvägg vid sängen och spotlights i taket. Rummet är smart avdelat och används idag delvis som kontor, perfekt för dig som arbetar hemifrån. Härifrån når du även bostadens trevliga balkong. Förvaringen är utmärkt tack vare en rymlig skjutdörrsgarderob.
Läget är svårslaget i de charmiga äldre delarna av Helsingborg med vackra Mariakyrkan som granne. Här bor du med närhet till stadens hela utbud av restauranger, butiker och service. Kommunikationerna är utomordentliga med smidiga förbindelser inom hela Skåne samt till Helsingör och Köpenhamn.
En bostad som måste upplevas – varmt välkommen på visning!
HALL: Slitstark klinker i entrén vilket övergår till parlett som är genomgående i lägenheten. Praktiskt , öppet hyllsystem.
VARDAGSRUM: Parkett, vita väggar samt en fondvägg i mörk panel. Två stora fönster som går ner till golvet vilket ger ett fint ljusinsläpp.
KÖK: Öppen planlösning mot vardagsrummet i stilren design. Renoverat 2011
BADRUM: Helkaklat badrum med tvättmaskin och torktumlare. Vägghängt skåp och arbetsbänk. Handfat med kommod och spegelskåp ovan med belysning. Spotlights i taket och generös dusch med glasdörrar. Renoverat 2011.
SOVRUM: Stort sovrum inåt gården med avdelat rum som idag används som en arbetsplats. Plats för dubbelsäng och utgång till balkongen. Fina detaljer såsom svart panelvägg bakom sängen och infällt område till tv.
HALL
Slitstark klinker i entrén vilket övergår till parlett som är genomgående i lägenheten. Praktiskt , öppet hyllsystem.
VARDAGSRUM
Parkett, vita väggar samt en fondvägg i mörk panel. Två stora fönster som går ner till golvet vilket ger ett fint ljusinsläpp.
KÖK
Öppen planlösning mot vardagsrummet i stilren design. Renoverat 2011
BADRUM
Helkaklat badrum med tvättmaskin och torktumlare. Vägghängt skåp och arbetsbänk. Handfat med kommod och spegelskåp ovan med belysning. Spotlights i taket och generös dusch med glasdörrar. Renoverat 2011.
SOVRUM
Stort sovrum inåt gården med avdelat rum som idag används som en arbetsplats. Plats för dubbelsäng och utgång till balkongen. Fina detaljer såsom svart panelvägg bakom sängen och infällt område till tv.



Tor 36
*Areakälla enligt bostadsrättsföreningens mäklarbild/utdrag ur lägenhetsregister.
Förråd i källare.
Bostadsrättens indirekta nettoskuldsättning baseras på föreningens skulder/lån minus föreningens räntebärande tillgångar och likvida medel. Beräkningen är gjord och baseras enbart på den senaste tillgängliga årsredovisningen. För mer information kontakta ansvarig fastighetsmäklare.
*Betalas av köpare
Bostadsrättsföreningen Mariatorget ligger i centrala Helsingborg och består av ett helt kvarter vid Bruksgatan, Möllegränden, Södra Storgatan och Södra Kyrkogatan.
Föreningen registrerades år 2006 och äger fastigheten Tor 36 i Helsingborg med 115 lägenheter och 19 lokaler. Byggnaderna är uppförda perioden 1870-talet till 1984.
HSB sköter föreningens ekonomiska förvaltning.
Avgiften höjdes med 6% januari 2025 och senast med 4% från januari 2026. (Kontrollerat 2026-01-15)
Fastigheterna är fullvärdesförsäkrade i Länsförsäkringar. I försäkringen ingår ansvarsförsäkring för styrelsen samt kollektivt bostadsrättstillägg för medlemmarna.
Föreningen har en aktuell underhållsplan som uppdateras årligen efter utförd besiktning.
Utförda renoveringar:
2024/2025 - Renovering av Bruksgatan (fasad, fönster, dörrar och tak)
2024 - Relining S Kyrkogatan 12-14
2023 - Tilläggsiolering råvindar.
2023 - Tvätt- och mossbekämpning.
2023 - Takpannor, Möllegränden och gårdshusen.
2023 - Nya planteringar och uteplats på gården.
2023 - Trapphusmålning påbörjad, avslutas under 2024.
2023 - Flertalet putsning- och målningsarbeten i källare och på fasader.
2020- Alla undercentraler är bytta till moderna.
2020 - Fönsterbyte, fasad och takprojekt på Södra Kyrkogatan 22B.
2019 - Renovering av fasader och fönster
2019 - Energideklaration
2019 - Renovering av vissa trapphus
2018 - Renovering av källarutrymmen
2018 - Obligatoriskt ventilationskontroll avslutad
2018 - Fasad- samt fönsterrenovering påbörjad
2018 - Omfattande byten av armaturer
2017 - Byte av undercentral på Möllegränden 17
2017 - Obligatorisk ventilationskontroll påbörjad
2017 - Diverse underhåll av föreningens lokaler
2017 - Installation av naturgas för uppvärmning av uteserveringar tillhörande lokalhyresgäster
Kommande renoveringar:
I dagsläget finns inga större renoveringar planerade. Det som ligger inom en ca 5 års period är tak, fasad och fönster på Södra Storgatan och fönster Möllegränd. (Kontrollerat 2025-12-29)
Föreningen har inga egna parkerings- eller garageplatser
Garageplatser finns att hyra i kvarteret t.ex. på Södra Strandgatan i Parkeringshuset Unionen med ingång från Bruksgatan alldeles intill föreningen. Här finns även parkering på de närliggande gatorna.(Kontrollerat 2025-12-29)
TV - Ansluten till kabelnät. Leverantör: Tele2.
Bredband - Leverantör: Tele2.
Föreningen har en gemensam innergård med grillplats, lusthus, lekplats och innergårds servering på Café Bruket.
I och med att föreningen består av flera olika byggnader erbjuder de olika former av gemensamma utrymmen beroende på fastighet. Det finns tre stycken tvättrum som kan kombineras fr.o.m. våren 2023 via en ny BoApp.
Föreningen har en egen hemsida www.mariatorget.org
Trappstädning och fastighetsskötsel ingår i månadsavgiften.
Information som berör föreningen är inhämtad via årsredovisning, stadgar och kontakt med föreningen. Avvikelser kan förekomma och som köpare uppmanas du att själv kontrollera samtliga uppgifter, framförallt om något är av extra stor betydelse för dig som köpare.
Närheten till havet, naturen och kulturen gör Helsingborg Centrum till en pärla i Öresundregionen. Börja dagen med en god fika för att sen strosa i Stadsparken. Runda av dagen med ett dopp i Öresund eller varför inte ta båten till Danmark. Möjligheterna är många - välkommen till Helsingborg C!
Centrum ligger alldeles intill Öresund och är den äldsta delen av Helsingborg. Centrum sträcker sig mellan Stadsteatern och Hälsovägen i norr till Stadsparken i Söder. Restauranger, caféer och barer ligger tätt, både inne bland husen samt i Norra Hamnen vid havet.
Stadens signum Kärnan är ett 35 meter högt försvarstorn från 1300-talet och den enda kvarstående resten av Helsingborgs slott. För att komma upp till Kärnan och den intilliggande lummiga parken Slottshöjden, tar du Terrasstrapporna från Konsul Trapps plats vid Stortorget. Terrasstrapporna invigdes 1903 och från den övre avsatsen har du en underbar utsikt över Helsingborgs takåsar och Öresund.
Butikerna är centrerade till shoppingstråket Kullagatan som sträcker sig från Stortorget och S:t Jörgens plats. I tvärgatorna från Kullagatan och runt Mariakyrkan söderut ligger det många mysiga fik, restauranger och personliga butiker.
Du behöver inte leta länge efter ett ställe som erbjuder en god fika. Det vimlar av kaféer av olika slag; teoch kaffespecialister, chocolateries, amerikanska kaffekedjor och anrika konditorier.
Väl värt ett besök är Henckelska gården på Norra Storgatan, som är stadens äldsta hus - från 1681. Bakom huset döljer sig en charmig liten trädgård, omgiven av husmurar och figurklippta häckar. Andra populära besöksmål är Dunkers Kulturhus. Här finns spännande kultur och pedagogisk verksamhet för barn samt mycket annat. Varför inte avnjuta en god middag i deras restaurang eller på några av de närliggande ställena i Norra hamnen.
Bada mitt i stan under sommaren på någon av stadens många badplatser. Bland andra finns sandstranden Tropical beach där det känns som att du befinner dig på sydligare breddgrader med palmer och trevlig bar.
Kort och gott har du nära till allt inne i centrum; strand, bad, kultur, god mat, natur och shopping. Vill du utforska den danska sidan gör du det snabbt med båt eller tåg.
Köpa, sälja eller värdera bostad i Helsingborg Centrum? Välkommen att kontakta Bjurfors mäklare i Helsingborg City. Passa också på att anmäla dig till vår kostnadsfria söktjänst Boagenten som hjälper dig att hitta ditt drömboende.
Kontakta mäklaren om du behöver hjälp att ta fram en boendekalkyl.
När du köper din bostad genom Bjurfors kan du ansöka om bolån till en förmånlig ränta hos våra banksamarbetspartners Söderberg & Partners och SEB.
Ansvarig mäklare