-
Köpa
Köpa -
Sälja
Sälja - Hitta bostad
- Skapa bevakning
- Hitta mäklare
Eneborg, Helsingborg
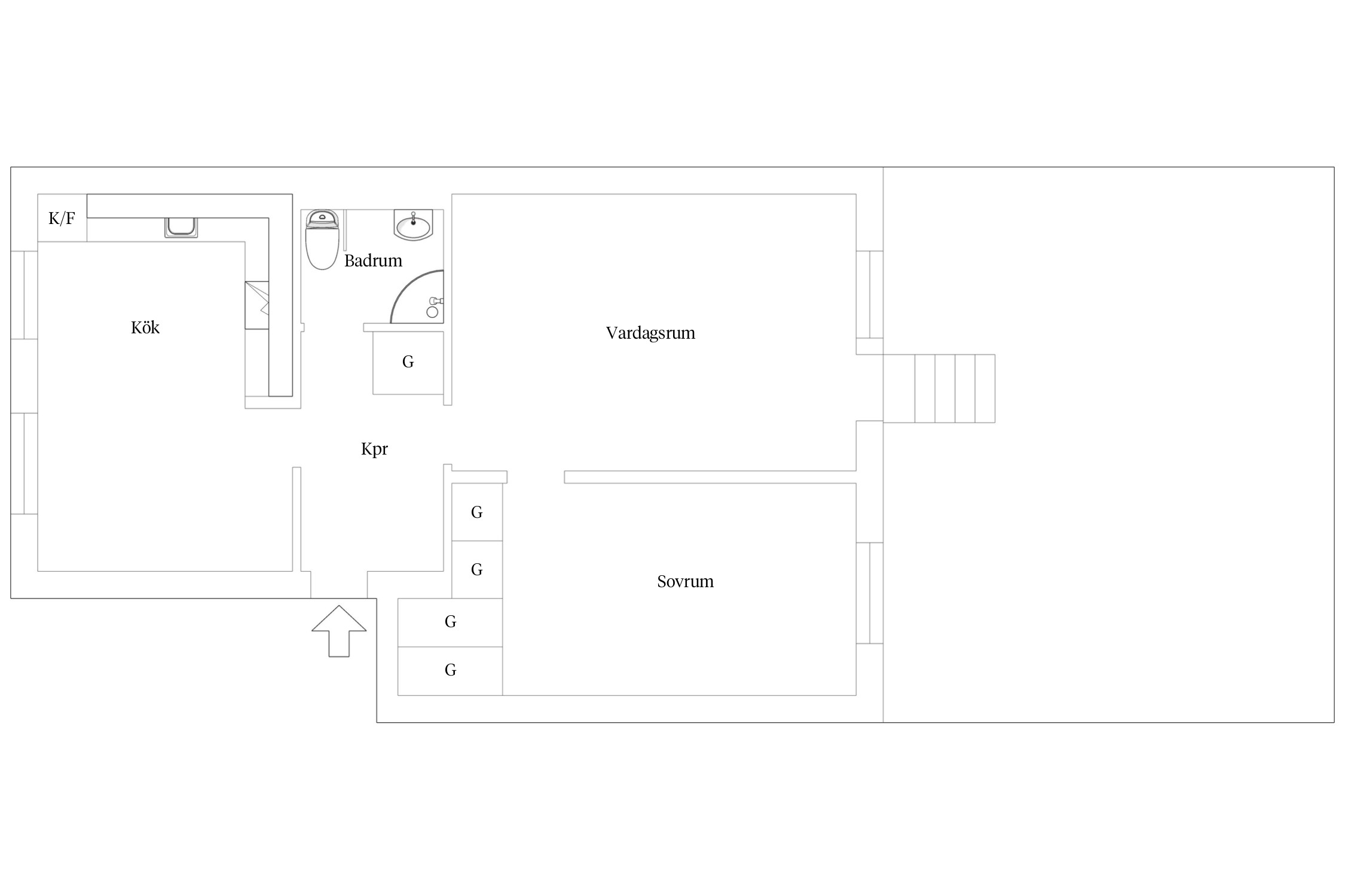
*I avgiften ingår värme, kallvatten samt bostadsrättstillägg. Varmvatten debiteras efter förbrukning.
**Area enligt bostadsrättsföreningen.
Fyll i formuläret nedan så hjälper vi dig!



Eneborg är en populär stadsdel belägen cirka två kilometer sydost om Helsingborg centrum, uppe på Landborgen men vackra vyer över sundet. Här har du nära till både lummiga grönområden och stadskärnan med sitt varierande utbud av shopping, nöje och kultur.
Eneborgs centrala läge gör den attraktiv för en väldigt bred målgrupp vilket bidrar till dess livliga och trivsamma karaktär. Bebyggelsen i Eneborg består framför allt av flerbostadshus från 1900-talets första hälft där byggmaterialen speglar Helsingborgs historia som stenstad. Byggnaderna har antingen tegelfasader eller putsade fasader. Under den här perioden skedde en övergång i arkitektur- och stadsbyggnadsidealen från nystilar och 1920-talsklassicism till funktionalism vilket fortfarande kan ses i stadsbilden. De äldsta byggnaderna finns i områdets nordvästra del, mot Wieselgrensgatan, och består av sekelskiftsarkitektur såsom bland annat jugend. Närservice, matbutik, bussförbindelser och restaurangen finns inom gångavstånd. Viskängsstråker, som löper längs stadsdelens östra sida, består av ett antal mindre parker och är ett populärt grönområde som erbjuder gott om plats för både idrott och solbadande. I norr angränsar stadsdelen till Olympia med sina träningsanläggningar, inomhushallar, motionsslingor och skogsområde. Söder om Eneborg ligger stadsdelen Söder med ett stort utbud av butiker, daglig torghandel, restauranger och annan service, samt Högaborg.
Bebyggelsen i Högaborg utgörs huvudsakligen av flerbostadshus från tidigt 1900-tal och framåt samt några villa- och radhusområden. De byggnader som ligger i områdets västra kvarter präglas av 1920-klassicismens raka och släta fasader. Den pampiga Gustav Adolfs skola som invigdes år 1900 utgör ett markant inslag i gatubilden. Högaborg har få grönområden mellan byggnaderna men omges av flera olika parker med promenad- och cykelvägar samt möjlighet till olika aktiviteter där både barn och vuxna kan umgås och ha kul tillsammans. Från Eneborg och Högaborg promenerar du till Knutpunkten på mindre än en kvart. Därifrån kan du enkelt ta dig vidare med tåg, buss eller färja till andra destinationer i Sverige och Danmark. Du har även nära till Campus Helsingborg, stadskärnan och all service du kan tänka dig. Den badsugne tar sig snabbt till Tropical Beach med cykel.
Köpa, sälja eller värdera bostad i Eneborg? Välkommen att kontakta Bjurfors mäklare i Helsingborg City. Passa också på att anmäla dig till vår kostnadsfria söktjänst Boagenten som hjälper dig att hitta ditt drömboende.
Ansvarig mäklare