-
Köpa
Köpa -
Sälja
Sälja - Hitta bostad
- Skapa bevakning
- Hitta mäklare
Helsingborg
*Areauppgifter enligt taxeringsinformationen
På Förhand ligger bostäder som av olika anledningar inte är ute till försäljning just nu men som kan komma att säljas om förutsättningarna är rätt.
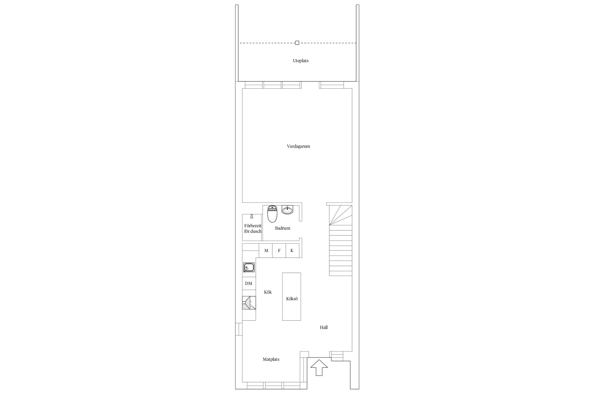
Varmt välkomna till ett mycket fint och friköpt 1,5-plans gavelradhus med källare, beläget på en insynsskyddad hörntomt i bästa sydvästläge där solen följer er från morgon till kväll. Här bor ni i ett av Wilson Parks mest eftertraktade kvarter med ett optimalt läge nära stadens puls men med lugnet bevarat.
Bostaden präglas av ljus, rymd och en genomtänkt planlösning. Direkt i entrén möts ni av ett öppet och inbjudande flöde mellan hall, matplats och kök. Köket är generöst tilltaget med köksö och stora arbetsytor, perfekt för både vardag och sociala tillställningar. Vardagsrummet badar i ljus i gavel mot soliga trädgårdssidan. Gott om plats för både loungegrupp och matbord. Trädgården vetter mot samfällighetens välskötta grönområde, en sluten, trygg och bilfri plats där barnen kan leka fritt, med stor gräsmatta, grillplats och lekplats.
Övre plan erbjuder ett stort sovrum med utgång till en rymlig balkong med utsikt över trädgårdssidan samt ett nyrenoverat badrum i stilren design. Här finns även ett stort sovrum till som har möjlighet att delas av för ytterligare ett sovrum vid behov.
Källarplanet är lika fräscht som resten av huset och har blivit en naturlig del av boendet. Här finns ett stort allrum som med fördel kan nyttjas som gästrum, ungdomsrum eller hobbyyta, samt en praktisk tvättstuga, och gott om förvaringsutrymmen.
På populära Wilson Park bor ni i ett mysigt villakvarter med kort promenadavstånd till centrum. Här finns dagligvarubutiker som ICA och Coop bara några hundra meter bort, liksom skolor, förskolor, grönområden och goda kommunikationer. Ett perfekt läge för familjen som vill bo lugnt men ändå nära allt.
Har du frågor eller vill boka visning, kontakta fastighetsmäklare Gabriel Rolland.



Kaninen 46 (kopia)
*Areauppgifter enligt taxeringsinformationen
- Kök från IKEA, installerat 2014. Kyl och frys från 2018.
- Taktvätt med försegling och målning utförd 2018.
- Fjärrvärmecentral utbytt 2019
- Badrum övre plan helkaklat och totalrenoverat i september 2022.
Ett generöst förråd finns i anslutning av baksidan.
Kommunalt vatten, Kommunalt avlopp.
Tomtindelning (1980-10-16) Stadsplan (1980-05-05)
Gemensamhetsanläggning: Helsingborg kaninen ga:1 ändamål: Vägar, Vattenförsörjning, Avloppsanläggning, Radio- TV och/eller tele, Elledning och/eller belysning, Grönområden, Garage och/eller parkering, Kvartersanläggning
Tele 2
Helsingborg är en av Nordens äldsta städer. Redan i slutet av 900-talet har det troligtvis funnits en mindre befästning uppe på landborgen. Staden tillhör Öresundsregionen och är Skånes andra största stad. Här befinner du dig endast 4 km från Helsingör i Danmark. Fram till mitten 1800-talet betecknades Helsingborg som småstad men antal invånare ökade explosionsartat i samband med att industrialismen i staden tog fart. Helsingborg växer fortfarande och efterfrågan på nya bostäder blir allt större.
Helsingborg är förutom den breda kustremsan omgivet av parker, grönområden och skog för ett aktivt liv. Här finns naturreservat, vandringsleder, lekplatser, badplatser och cykelleder i varierande miljöer. Helsingborgs centrum ligger alldeles intill havet och är den äldsta delen av staden. Här sjuder det av liv året om. Restauranger, caféer och barer ligger tätt både inne bland husen och nere vid Öresundskusten.
På sommaren solar och badar du mitt i centrum. Här finns det ett flertal badplatser att välja på utifrån väder och humör. Gröningen är en populär plats för folk i alla åldrar med stora gräsytor, lekplats, promenadstråk, trädäck och badbrygga. Fria bad är en bred sandstrand med tre badbryggor och en trevlig fiskrestaurang som vetter mot havet.
Köpa, sälja eller värdera bostad i Helsingborg? Välkommen att kontakta Bjurfors mäklare i Helsingborg City eller Bjurfors mäklare i Helsingborg Norr. Passa också på att anmäla dig till vår kostnadsfria söktjänst Boagenten som hjälper dig att hitta ditt drömboende.
Kontakta mäklaren om du behöver hjälp att ta fram en boendekalkyl.
När du köper din bostad genom Bjurfors kan du ansöka om bolån till en förmånlig ränta hos vår samarbetspartner SEB.
Ansvarig mäklare