-
Köpa
Köpa -
Sälja
Sälja - Hitta bostad
- Skapa bevakning
- Hitta mäklare
Unik citypärla med sekelskiftescharm och låg avgift!
Helsingborg
*I avgiften ingår värme, vatten och kabel-TV.
**Areakälla enligt bostadsrättsföreningens mäklarbild/utdrag ur lägenhetsregister.
På Förhand ligger bostäder som av olika anledningar inte är ute till försäljning just nu men som kan komma att säljas om förutsättningarna är rätt.
Välkomna till denna centralt belägna sekelskiftespärla på älskade Himmelriksgränden!
Med ett oslagbart cityläge och landborgens grönska som närmsta granne presenteras denna unika etagelägenhet med anor från 1914. Här möts ni av generös takhöjd, vackert spröjsade fönster och genomgående plankgolv som tillsammans skapar en tidlös och harmonisk atmosfär.
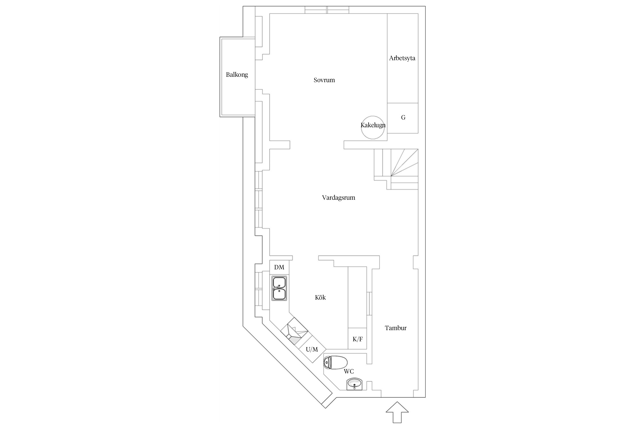
Matplatsen och vardagsrummet smälter samman i en öppen och social planlösning, där de stora fönsterpartierna släpper in ett generöst ljus som fyller hela rummet med värme och liv. Intill ligger det ljusa och trivsamma köket, en naturlig samlingspunkt för matlagning och umgänge. Från vardagsrumsdelen öppnar sig ett elegant sovrum med eldstad och utgång till balkongen, perfekt för både avkoppling och sociala stunder. Rummet kan dessutom disponeras som vardagsrum, vilket ger flexibilitet att forma hemmet efter egna behov. På detta plan finns även en praktisk gäst-WC.
På övre plan väntar ett rofyllt sovrum med utsikt över takåsar och en glimt av Öresund samt ett exklusivt badrum med takdusch och kombinerad tvättmaskin.
Här bor man i en charmig fastighe, i en stabil förening med låg månadsavgift och med troligtvis Helsingborgs mysigaste innergård.
Här bor du i hjärtat av Helsingborg och ett stenkast till Knutpunktens buss-/tåg- och båtförbindelser mot Kastrup och kontinenten. Hela stadens utbud av restauranger, kultur och service finner du alldeles utanför porten.
Välkommen att kontakta fastighetsmäklare Saga Bredahl för mer information!
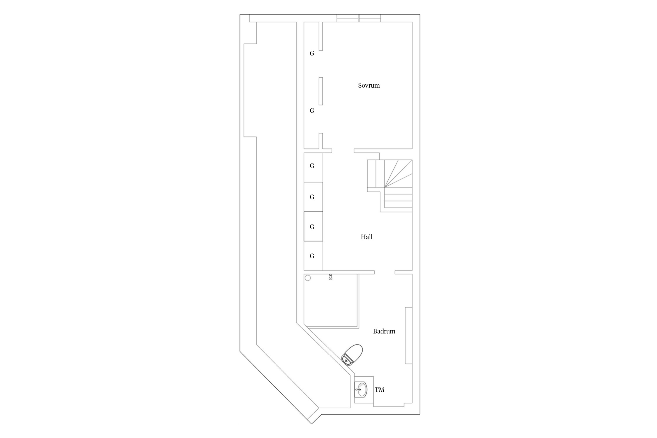
Hall
Via det vackra trapphuset når ni tredje våningen och kliver in i en välkomnande hall med stilfull gästtoalett klädd i vacker mosaik. Hallen får fint ljusinsläpp genom ett spröjsat fönster mot köket.
Matplats/vardagsrum
Vidare öppnar sig matplatsen i en social och öppen planlösning mot vardagsrummet, där den imponerande takhöjden och det stora fönsterpartiet mot innergårdens grönska skapar en ljus och luftig atmosfär.
Kök
Intill ligger det ljusa köket med generösa arbetsytor och gott om förvaring. Diskhon är placerad vid fönstret och erbjuder en trivsam vy över gården.
Sovrum 1
Sovrummet är luftigt och rymligt med fönster i söderläge samt utgång till en rymlig balkong i öster med plats för sittgrupp. Rummet pryds av en vackert uppmurad eldstad med kassett som både fungerar som en elegant inredningsdetalj och sprider behaglig värme under årets kallare månader. Här finns även en praktisk klädkammare samt en platsbyggd arbetsyta med förvaring, perfekt för hemmakontoret.
Gäst WC
Med vackert mosaikklädda väggar och golv som skapar en elegant och enhetlig känsla. Även handfatet är klätt i mosaik, vilket ger rummet en exklusiv och genomtänkt karaktär.
Övre plan
Via trappan vid matplatsen når ni övre plan. Här möts ni av en hall med naturligt ljus från takfönster och smart integrerad förvaring i snedtaket. Ett stilrent chevrongolv löper genom hela våningsplanet.
Sovrum 2
Sovrummet, beläget i husets gavel, rymmer enkelt en dubbelsäng och erbjuder förvaring under snedtaket. Från fönstret njuter ni av utsikt över takåsar och en glimt av Öresund.
Badrum
Det övre planet rymmer även ett exklusivt badrum med dusch i industriell stil och takdusch i mässing som återkommer i rummets detaljer. En generös kommod med mässingsblandare erbjuder god förvaring, och tvättmaskinen är smakfullt integrerad. Badrummet har dessutom en extra ingång från trappan där en helkroppsspegel förstärker känslan av rymd. Även här bidrar takfönstret med fint dagsljus.



Entréplan
Övre plan
*Areakälla enligt bostadsrättsföreningens mäklarbild/utdrag ur lägenhetsregister.
I avgiften ingår värme, vatten och kabel-TV.
Relevant andelstal gällande andel av årsavgift har ej gått att få fram från föreningen eller förvaltaren.
Bostadsrättens indirekta nettoskuldsättning baseras på föreningens skulder/lån minus föreningens räntebärande tillgångar och likvida medel. Beräkningen är gjord via Bopedia och räknad på andel i föreningen. För mer information kontakta ansvarig fastighetsmäklare.
*Betalas av köpare
BRF Minerva är en äkta bostadsrättsförening med 10 lägenheter och en lokal (som är uthyrd sedan länge) i Helsingborg. Föreningen bildades år 1981. Fasaden ut mot Himmelriksgränden är k-märkt. Föreningen tar hand om ekonomin själva och tar inte ut någon överlåtelseavgift eller pantsättningsavgift. Trappstädning i båda trapporna utförs av städfirma 1 gång i månaden.
Det är en liten förening med bara tio lägenheter så det är inte en fastighet där man är anonym, föreningen försöker göra trevliga sociala aktiviteter ett par gånger om året. Det är ett gammalt hus och därmed ska boende visa respekt för sina grannar och ta del av föreningens ordningsregler.
Planer finns på att införa årliga höjningar baserat på konsumentprisindex. Inga vidare beslut är tagna. (Kontrollerat 2026-01-27).
Fastigheten är fullvärdesförsäkrad i Folksam och det ingår bostadsrättstillägg för föreningens medlemmar.
Utförda renoveringar:
-Omläggning av fönsterkupor
-Fasaden är renoverad mot Landborgen
-Skorstensrenovering
-Takrenoveringar
-Fasader och fönster mot innergården är renoverade.
2018 Spolning och filming av stammar
2024 Uppgradering av ventilation, återgått till självdrag
2025 Dränering mot öst och söder
Kommande renoveringar:
Styrelsen har noterat följande behov de närmsta fem åren:
- Renovering/översyn av fönster
- Relining av stammarna (här görs spolning och filmning vart 3:e år för att syna skicket och inget är akut)
- Dränering av källaren mot gränden (här avvaktar vi stadens planering för uppgradering av gatan)
- Plåtarbeten på taket (löpande)
Föreningen har inga parkering eller garageplatser. Närmsta parkeringsplats är på Nicolais parkering ovanför trapporna upp mot Landborgen. Under Friskis & Svettis på Södra Storgatan, finns ett parkeringsgarage. Kontakta Aimo Park för mer information.
(Kontrollerat 2026-01-27).
Föreningen är ansluten till kabel-TV via Tele2 och fiber via Tele2.
Föreningen har en prunkande och grön innergård med bland annat pergola och sittplatser, omgiven av Landborgens träd och grönska.
I föreningen finns en tvättstuga utrustad med två tvättmaskiner, en torktumlare och ett torkskåp.
Föreningen har även en bastu och dusch med ett relaxrum utanför. Cykelförråd finns i trapphuset till Himmelriksgränden 6A. Förråd finns i källaren till samtliga lägenheter.
Information som berör föreningen är inhämtad via årsredovisning, stadgar och kontakt med föreningen.
Avvikelser kan förekomma och som köpare uppmanas du att själv kontrollera samtliga uppgifter,
framförallt om något är av extra stor betydelse för dig som köpare.
Helsingborg är en av Nordens äldsta städer. Redan i slutet av 900-talet har det troligtvis funnits en mindre befästning uppe på landborgen. Staden tillhör Öresundsregionen och är Skånes andra största stad. Här befinner du dig endast 4 km från Helsingör i Danmark. Fram till mitten 1800-talet betecknades Helsingborg som småstad men antal invånare ökade explosionsartat i samband med att industrialismen i staden tog fart. Helsingborg växer fortfarande och efterfrågan på nya bostäder blir allt större.
Helsingborg är förutom den breda kustremsan omgivet av parker, grönområden och skog för ett aktivt liv. Här finns naturreservat, vandringsleder, lekplatser, badplatser och cykelleder i varierande miljöer. Helsingborgs centrum ligger alldeles intill havet och är den äldsta delen av staden. Här sjuder det av liv året om. Restauranger, caféer och barer ligger tätt både inne bland husen och nere vid Öresundskusten.
På sommaren solar och badar du mitt i centrum. Här finns det ett flertal badplatser att välja på utifrån väder och humör. Gröningen är en populär plats för folk i alla åldrar med stora gräsytor, lekplats, promenadstråk, trädäck och badbrygga. Fria bad är en bred sandstrand med tre badbryggor och en trevlig fiskrestaurang som vetter mot havet.
Köpa, sälja eller värdera bostad i Helsingborg? Välkommen att kontakta Bjurfors mäklare i Helsingborg City eller Bjurfors mäklare i Helsingborg Norr. Passa också på att anmäla dig till vår kostnadsfria söktjänst Boagenten som hjälper dig att hitta ditt drömboende.
Kontakta mäklaren om du behöver hjälp att ta fram en boendekalkyl.
När du köper din bostad genom Bjurfors kan du ansöka om bolån till en förmånlig ränta hos vår samarbetspartner SEB.
Ansvarig mäklare