-
Köpa
Köpa -
Sälja
Sälja - Hitta bostad
- Skapa bevakning
- Hitta mäklare
Välplanerad familjevilla med pool och gemytlig känsla, nära hav, skola och grönområden
Laröd, Helsingborg
*Areauppgifter enligt areamätning
På Förhand ligger bostäder som av olika anledningar inte är ute till försäljning just nu men som kan komma att säljas om förutsättningarna är rätt.
Rymlig villa med pool, garage, 4–5 sovrum, stor trädgård och en genomgående känsla av familjeidyll – ett harmoniskt hem i hjärtat av Laröd.
Med ett privat och naturnära läge i eftertraktade Laröd, välkomnar denna stilfulla villa dig till ett hem där elegans möter funktion – och där varje kvadratmeter bjuder in till livskvalitet. Rosenvägen 12 erbjuder ca 220 kvm välplanerad boyta i två plan, en stor trädgård med insynsskyddat pool-område och en känsla av omsorg i varje detalj.
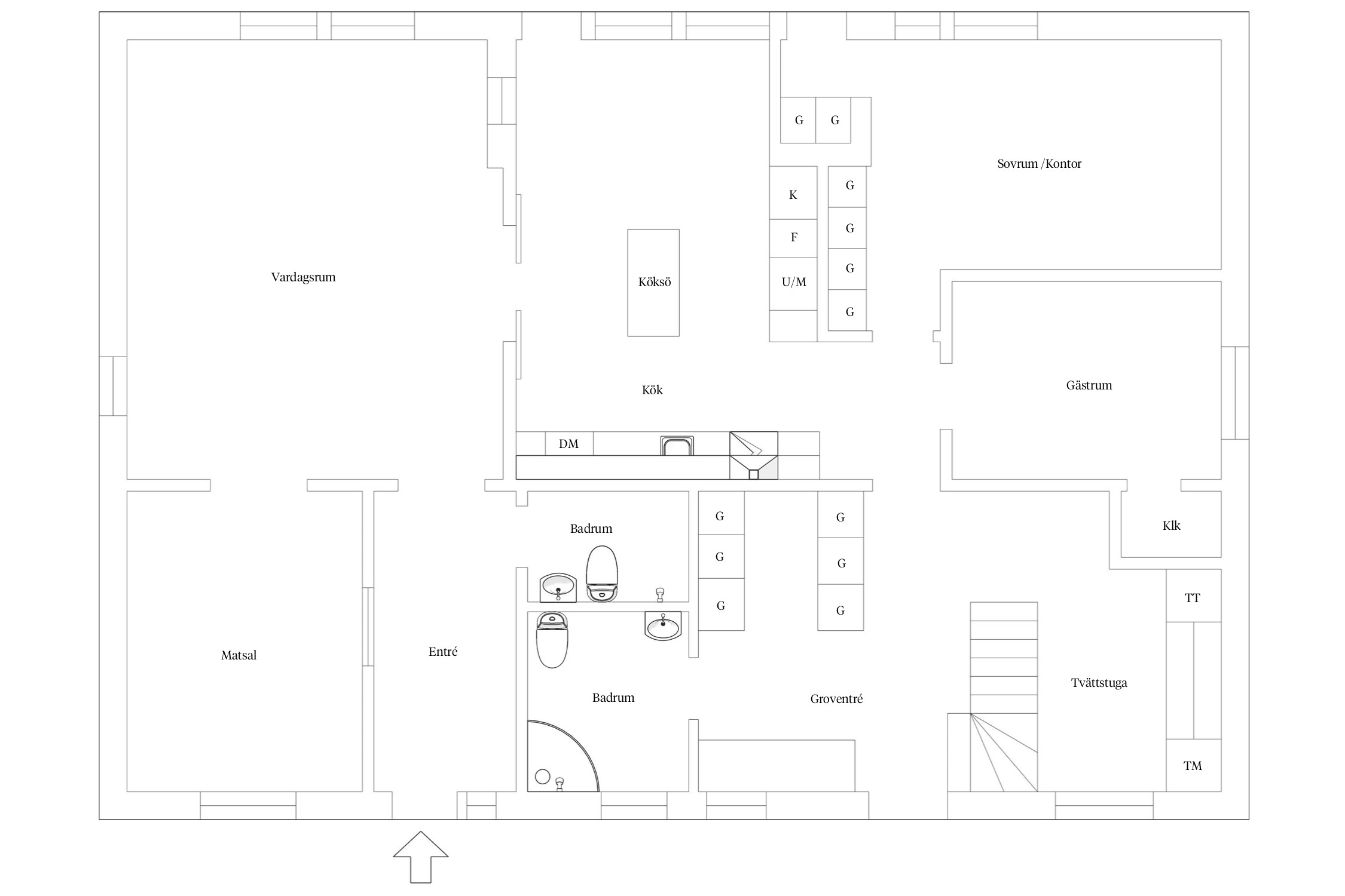
Huset är uppfört 1987 och har sedan dess genomgått en rad kvalitativa förbättringar – däribland en genomtänkt påbyggnad, nytt kök från HTH, helkaklade badrum och energieffektiva luft-luft-värmepumpar. Här bor du bekvämt med 4–5 sovrum, flera sociala ytor, två badrum, gäst-wc, groventré, tvättstuga samt isolerat garage med förråd.
Planlösningen bjuder in till ett familjevänligt boende med tydlig zonindelning. På entréplan finns generösa sällskapsytor, ett inbjudande kök med matplats, matsal, två sovrum/kontor, samt praktisk groventré med badrum och tvättstuga samt gäst-wc. Övre plan bjuder på ytterligare tre rymliga sovrum, allrum samt badrum – perfekt för den växande familjen eller för dig som söker flexibla utrymmen för arbete, gäster och fritid.
Utemiljön är lika inbjudande som huset. Trädgården är uppvuxen, privat och smakfullt anlagd – med uteplatser i både sol och skugga, samt ett poolområde som andas semesterkänsla året om. Här kan du samla familj och vänner till lata dagar eller festliga kvällar.
Rosenvägen 12 ligger i ett lugnt och barnvänligt villaområde med närhet till skolor, idrottsplats, stall och natur. På kort gångavstånd når du havet, vilket förhöjer livskvaliteten ytterligare. Med goda kommunikationer (100 meter till busshållplats) tar du dig smidigt till centrala Helsingborg och vidare.
Detta är ett hem för dig som värdesätter balans mellan estetik och funktion. Ett hem där inget lämnats åt slumpen – och där varje rum bär på en tanke om trivsel och långsiktighet.
Välkommen till ett hem där livet får blomstra. Varmt välkommen att kontakta mäklare Carl Ljunglöf för intresseanmälan.



Rockelstad 6
*Areauppgifter enligt areamätning
2005 byggdes övre plan, slutbesked finns. I samband med det renoverades yttertaket.
2005 ombyggnad tvättstuga.
2010 ombyggnad kök.
2017 renoverades toalett på entréplan.
2022 installerades två luft/luft värmepumpar.
Snickerier utvändigt har målats regelbundet.
Snickerier sydväst ska målas efter besiktningen men innan tillträde.
Inga kända fel eller brister i fastigheten
Kommunalt vatten, Kommunalt avlopp.
Detaljplan (2011-09-22)
Last: Avtalsservitut Vattenledning, 12-IM7-86/29202.1
Telia
Telia
Avtalsservitut Vattenledning
I kostnaden för uppvärmning är även hushållsel inräknat.
Det finns 8 st pantbrev uttagna om sammanlagt 4 113 000 kr
Den natursköna tätorten Laröd är placerad uppe på lantborgsplatån med utblick över Öresund. Nedanför ligger systerorten Hittarp. I Laröd finns en varierande natur med strand, skog, åkermarker och skog.
De två samhällena Laröd och Hittarp ligger tätt intill varandra vid Öresund, separerade av landborgsbranten. Hittarp är ligger nedanför landborgskanten och Laröd nedanför på strandplatån och sluttningarna. I området finns flera populära badplatser. Larödbaden och Hittarps hamn har badbryggor, kiosk, toaletter och grillplatser. Att Laröd tidigare var en bondby är märkbart än idag, trots att de flesta gårdar sedan länge har ersatts av moderna villor från 1950-talet och framåt. I östra delen av Laröd finns även några flerfamiljshus. Enstaka hästgårdar, åkermarker, skog och bidrar till den lantliga atmosfären. Sofiero slott ligger på bekvämt avstånd och erbjuder aktiviteter för alla åldrar: utställningar, konserter, park, trädgårdshandel, butik, restaurang, labyrinter och lekplats.
Inne i Laröd finns ett litet centrum med blomsteraffär, vårdcentral, mataffär, bibliotek och gym med SPA-avdelning. Det finns två F-9-skolor i Laröd; Laröds skola och Holstagårdsskolan. Förutom ett naturskönt och havsnära läge, har man Helsingborg city på ett bekvämt avstånd på cirka 5–6 kilometer.
Köpa, sälja eller värdera bostad i Laröd? Välkommen att kontakta Bjurfors mäklare i Helsingborg City. Passa också på att anmäla dig till vår kostnadsfria söktjänst Boagenten som hjälper dig att hitta ditt drömboende.
Kontakta mäklaren om du behöver hjälp att ta fram en boendekalkyl.
När du köper din bostad genom Bjurfors kan du ansöka om bolån till en förmånlig ränta hos vår samarbetspartner SEB.
Ansvarig mäklare