-
Köpa
Köpa -
Sälja
Sälja - Hitta bostad
- Skapa bevakning
- Hitta mäklare
Totalrenoverad sekelskiftesdröm med trevlig balkong på lugnt och grönskande läge!
Norr, Helsingborg
*I avgiften ingår det värme och vatten.
**Areakälla enligt uppgifter från föreningen
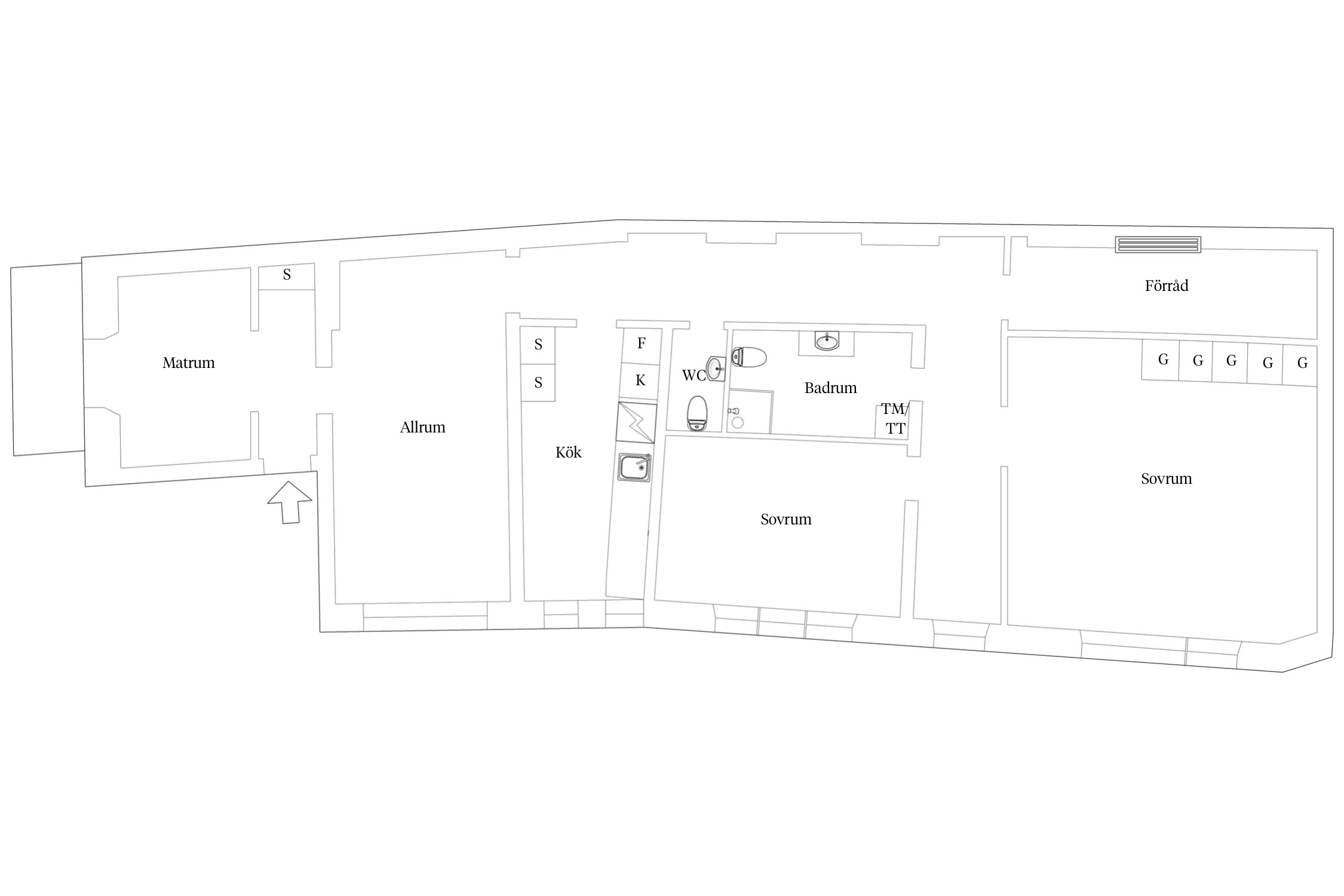
I hjärtat av staden, belägen i en vacker fastighet som minner om en svunnen tid saluförs nu detta förtjusande totalrenoverade hem som redan från början ger ett imponerande intryck! Detta är det ultimata cityboendet för dig som söker något särpräglat och som vill bo i ett vackert och stilrent hem. Bostaden totalrenoverades 2023 med varsam hand och finess. Här är det bara att flytta in och börja njuta utan att lägga varken tid eller kapital på kostsamma renoveringar.
Den så magiska känslan i bostaden skapas av de tidstypiska detaljerna och fingertopskänslan i själva renovering, materialval och finish. Vad sägs om generös takhöjd med stuckaturer, takrosetter, generösa fönsterpartier med ett ständigt flöde av ljus, ett genomgående fiskbensparkett samt ett nytt badrum + gäst wc. Här möts modern funktion med äldre detaljer på ett smakfullt och tilltalande sätt. Ni möts av ett ljust och socialt vardagsrum samt en rymlig matplats som garanterar trevliga och minnesvärda stunder med familj och vänner ut mot balkong i grönskande sken. Man har även lyckats separera den sociala delen som matplats, vardagsrum, kök och gäst wc med den privata delen med två rogivande sovrum längst in i bostaden. Även det helkaklade badrummet med golvvärme ligger i den privata delen..
Som ägare av lägenheten får man tillgång till 1 st rymligt vindsförråd som endast ligger en trappa upp.
Nu kan du förverkliga din dröm om ett liv mitt i staden på generösa ytor. Här bor ni i en omtyckt och stabil bostadsrättsförening i ett av Helsingborgs mysigaste kvarter. Närhet till stränder, hamnpromenader och Gröningen alldeles utanför porten. Bara en kort promenad bort når ni stadskärnans rika utbud av restauranger, service och andra nöjen. Med hjälp av busshållplatsen belägen endast en gata ner tar du dig enkelt in mot stan och även Norrut.
Detta är chansen du inte vill gå miste om - välkommen att kontakta mäklare Gabriel Rolland för svar på frågor och funderingar.



*3 trappor upp via pigtrappa
**Areakälla enligt uppgifter från föreningen
I avgiften ingår det värme och vatten.
Föreningen har inga parkeringsplatser.
Fria parkeringsplatser i närområdet.
Fiber
Relevant andelstal gällande andel av årsavgift har ej gått att få fram från föreningen eller förvaltaren ännu.
*Betalas av säljare
Bostadsrättsföreningen Nordstjärnan 19 har varit verksam sedan 1973 och är belägen på Hälsovägen 7 i Helsingborg. Föreningen består utav 13 st bostadsrättslägenheter. Föreningens tomt är friköpt.
Föreningen önskar träffa framtida köpare för genomgång av föreningen.
Föreningen sköter sin ekonomi själva.
Avgiften höjdes med ca 3% vid årsskiftet 2024/2025. (Kontrollerat 2025-02-06)
Fastigheten är fullvärdesförsäkrad i Trygg Hansa. Varje medlem tecknar egen hemförsäkring med bostadsrättstillägg.
Urval av utförda renoveringar (föreningen har en fullständig lista):
2023 Relining av stam i A och C trappan.
2023 Filmning av avlopp på gården och nya pumpar på gården.
2021 Ny värmeväxlare i fastigheten.
2022 OVK
2022 Ny dräneringspump i Östra källaren
2018 Fasadrenovering samt tvättning och impregnering av fasad mot Hälsovägen. Skrapning och målning av fönster, kittning. Målning av tak ut mot Hälsovägen. Byte av fönster i kuperna på vinden mot Hälsovägen.
2016 Rengöring av alla ventilationskanaler i fastigheten.
2016 Fiber installerades i fastigheten.
2015 Ny porttelefon
2009 Relining av stam i A -trappan.
Kommande renoveringar: (kontrollerat 2024-06-28).
Under 2025 kommer det att läggas nytt tak på huset, byte av fönster på plan 4 samt byte av takfläktar.
I närtid kommer det att göras vissa renoveringar såsom målning av utsida av fönster, relining av två stammar samt spoling av en stam i fastigheten.
Föreningen har inga parkeringsplatser.
Fria parkeringsplatser i närområdet.
TV via Tele2. Kanal 1 och 2 ingår via antenn i väggen. Bredband: Fiber indraget. Medlemmar får teckna egen internetleverantör på Öresundskraft hemsida.
Mysig innergård för varje medlem att nyttja.
Det finns förråd som ingår till varje lägenhet.
Information som berör föreningen är inhämtad via årsredovisning, stadgar och kontakt med föreningen. Avvikelser kan förekomma och som köpare uppmanas du att själv kontrollera samtliga uppgifter, framförallt om något är av extra stor betydelse för dig som köpare.
Norr är en av Helsingborgs mest attraktiva stadsdelar att bo på. Här bor du vid vattnet - mitt i centrum med shopping, restauranger och nöjesliv runt hörnet. En fantastisk kombination.
I området finns varierad bebyggelse, men många kvarter är av tydlig och enhetlig karaktär. Största delen av bebyggelsen på Tågaborg är från förra sekelskiftet med många stora vackra patriciervillor längs hela landborgen.
Där de gamla järnvägsspåren gick förr som skilde stadsdelen och havet åt, är numera ett uppskattat område med promenadstråk och stora gräsytor som kallas Gröningen. Här kan du spela boule, minigolf och utöva mängder av sommarsporter på de fria ytorna.
Vill du njuta av breda sandstränder och skönt havsbad har du Örestrandsbadet eller Fria bad som det också kallas vid Gröningen. Här finns det flera badbryggor som sträcker sig ut i havet längs med kuststräckan samt de två moderna kallbadhusen Kallis och Pålsjöbaden.
Köpa, sälja eller värdera bostad i norra Helsingborg? Välkommen att kontakta Bjurfors mäklare i Helsingborg Norr. Passa också på att anmäla dig till vår kostnadsfria söktjänst Boagenten som hjälper dig att hitta ditt drömboende.
Kontakta mäklaren om du behöver hjälp att ta fram en boendekalkyl.
När du köper din bostad genom Bjurfors kan du ansöka om bolån till en förmånlig ränta hos vår samarbetspartner SEB.
Ansvarig mäklare