-
Köpa
Köpa -
Sälja
Sälja - Hitta bostad
- Skapa bevakning
- Hitta mäklare
Ljus och rymlig trea med stor potential – perfekt för dig som vill skapa ditt drömhem!
Söder, Helsingborg
*I månadsavgiften ingår vatten och värme.
**Areakälla enligt bostadsrättsföreningens mäklarbild/utdrag ur lägenhetsregister.
På Förhand ligger bostäder som av olika anledningar inte är ute till försäljning just nu men som kan komma att säljas om förutsättningarna är rätt.
Välkommen till Församlingsgatan 2 och till denna ljusa trerummare, belägen i en stabil förening!
Här ges en fantastisk möjlighet att sätta din egen prägel på en lägenhet med stor potential. Med sina 91 kvm och tre rum erbjuder bostaden gott om utrymme och ett underbart ljusinsläpp tack vare fönster i flera väderstreck. Lägenheten har ett renoveringsbehov, vilket gör den idealisk för dig som vill skapa ett hem helt efter egen smak och stil.
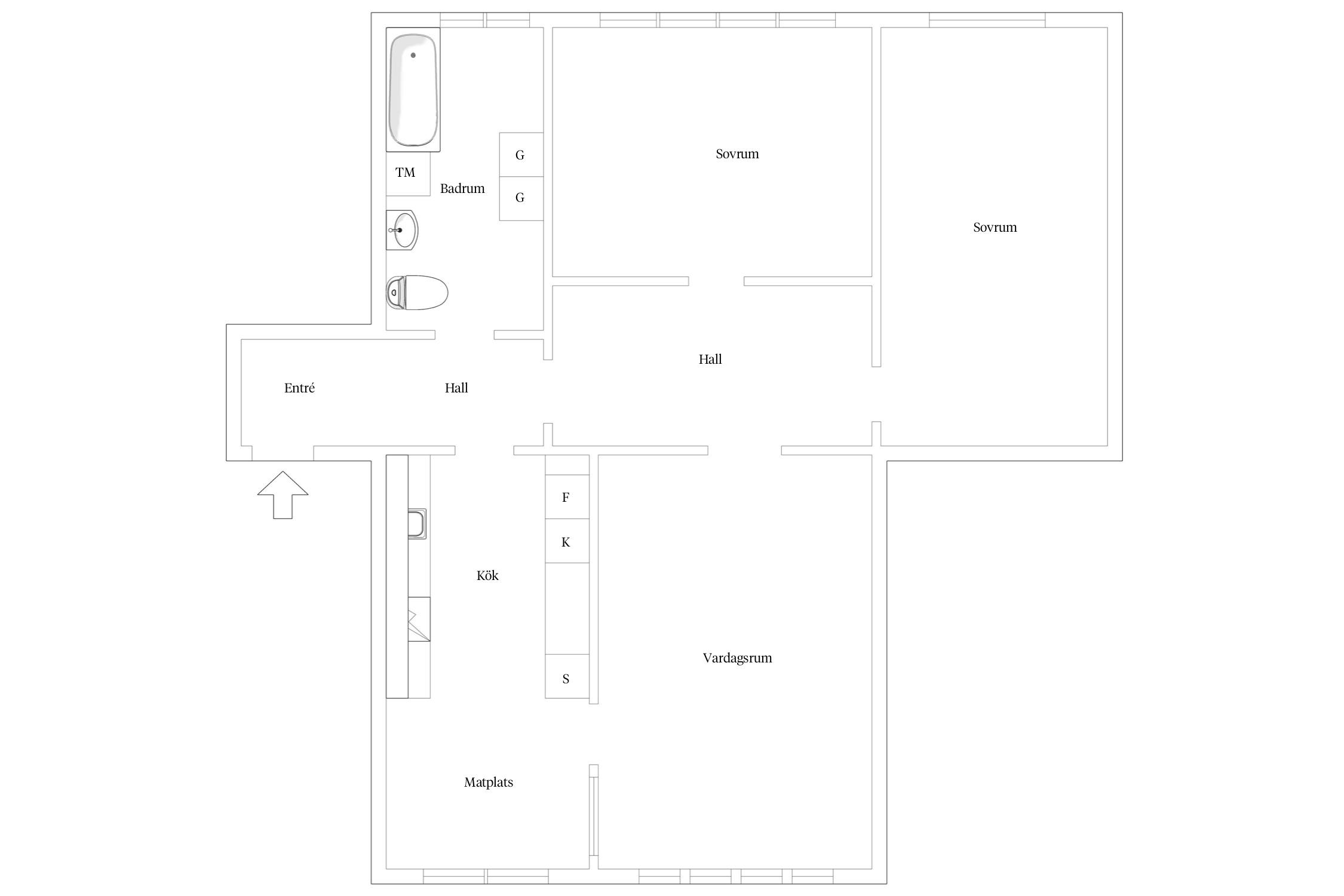
Planlösningen är väldisponerad med tydligt avgränsade ytor för både socialt umgänge och avkoppling. Det centralt placerade vardagsrummet har stora fönster och ett underbart ljusinsläpp som tillsammans med den generösa ytan skapar en härlig rymd. Här finns gott om plats för både soffgrupp och matbord. Köket är funktionellt med goda förvaringsmöjligheter och arbetsytor, och väntar på att få nytt liv i din regi, oavsett om du föredrar klassiskt eller modernt. De två rymliga sovrummen har båda plats för dubbelsäng och gott om förvaring. Badrummet är fräscht med stilrena ytskikt, även här finns ett fönster som släpper in ett behagligt ljus.
Denna möjlighet vill du inte missa – välkommen att kontakta fastighetsmäklare Saga Bredahl för mer information!



Planlösning.
HELSINGBORG RYSSLAND V 14
*Areakälla enligt bostadsrättsföreningens mäklarbild/utdrag ur lägenhetsregister.
I månadsavgiften ingår vatten och värme.
Bostadsrättens indirekta nettoskuldsättning baseras på föreningens skulder/lån minus föreningens räntebärande tillgångar och likvida medel. Beräkningen är gjord och baseras enbart på den senaste tillgängliga årsredovisningen. För mer information kontakta ansvarig fastighetsmäklare.
*Betalas av säljare
Föreningen äger fastigheten Ryssland Västra 14 i vilket man upplåter bostadsrättslägenheter och lokaler. Föreningen har 54 bostadsrätter och 5 hyreslägenheter som ligger på Församlingsgatan 2-4, Södra Tvärgatan 2-8 samt Hantverkaregatan 29.
Ekonomisk förvaltning via HSB.
Föreningen kommer att höja avgiften med 4 % från och med 2026-01-01 (kontrollerat 2025-11-24).
Fastigheterna är fullvärdesförsäkring hos Länsförsäkringar. Föreningen har tecknat bostadstillägg ( kontrollerat via årsredovisningen 2025-11-24).
Utförda renoveringar:
2020 - Föreningen har genomfört spolningen hos alla 54 st lgh samt det obligatoriska OVK detta året.
2021 - Dränering
2024 - Renovering av övernattningsrum
2024 - Målning av trapphus, byte av armaturer och ny eldragning
2024 - Målning av källare och soprum
Planerade renoveringar (inom de närmsta 10 åren):
- Stambyte eller relining planeras genomföras om några år
- Fönsterbyte.
- Byte av porttelefoner.
- Indragning av fiber.
- Byte av lägenhetsdörrar & källardörr.
- Kontroll av fasader.
(kontrollerat via årsredovisning 2025-11-24).
Det finns avgiftsparkering i området. Kommunal parkering finns rakt framöver ingången på Södra Tvärgatan, kontakta kommunen för att hyra en plats.
Bredband och kabel-tv genom Tele2, för mer info se www.tele2.se. Även Bredbandsbolaget finns indraget.
Föreningen har en fantastiskt fin innergård, där medlemmarna kan grilla och umgås.
Det finns två gemensamma tvättstugor, en vid ingång 4 och en ingång 8 på Södra Tvärgatan.
Information som berör föreningen är inhämtad via årsredovisning, stadgar och kontakt med föreningen. Avvikelser kan förekomma och som köpare uppmanas du att själv kontrollera samtliga uppgifter, framförallt om något är av extra stor betydelse för dig som köpare.
Söder är ett levande område strax söder om stadskärna, i hjärtat av det nya Helsingborg. Mer centralt än så här kan du knappast bo. Här har du nära till allt. Knutpunkten, gågatan, parker, havsbad, bibliotek och badhus ligger inom kort promenadavstånd.
Stadsdelen Söder är ett mångkulturellt område med ett varierat utbud av butiker, kaféer och restauranger. På Söder finns även den nya gallerian Söderpunkten som erbjuder spännande matupplevelser, utmärkt shopping, massor av roliga upplevelser samt Nordens modernaste biograf. Här finns allt som du kan tänkas behöva i vardagen under ett tak. På Gustav Adolf Torg kan du ta del av den dagliga torghandeln, som är ett populärt inslag i stadsbilden. I området finns också Helsingborgs mest centrala badhus och stadsparken där Stadsbiblioteket är beläget. I södra delen av stadsdelen ligger Furutorpsparken med en stor öppen gräsyta i mitten för bollsporter och umgänge samt en körsbärslund som utgör ett vackert blickfång under vårens blomning. Söder tillkom under Helsingborgs kraftiga expansion på 1800-talet. Stadsdelens gatunät domineras av ett tidsenligt rutnätssystem med räta vinkar och raka gator. Idag är Södergatan och Carl Krooks gata stadsdelens huvudgator där den mest dominerande bebyggelsen och största delen av handeln är koncentrerad. Mellan huvudgatorna ligger Gustav Adolfs torg och Mäster Palms plats. Endast en liten del av de ursprungliga arbetarbostäderna finns kvar. De flesta bostadshus består av bastanta tegel- eller betongbyggnader från början av 1900-talet och framåt. Till stadsdelen hör även Södra hamnen och Västra hamnområdena.
Tack vare ett flertal satsningar och utvecklingsprojekt i och runt om stadsdelen, har det blivit alltmer attraktivt att bo på Söder. Det största av dessa projekt är Oceanhamnen som ligger granne med Söder och är beläget i den tidigare industriella hamnen vid Helsingborgs inlopp. Planerna inkluderar flera nya bostadsområden, verksamhetslokaler, kajpromenad, park och en ny sandstrand. Alldeles intill Söder ligger också Campus Helsingborg, som är en del av Lunds Universitet, samt yrkescollege Rönnowska skolan.
Det är enkelt att ta sig till Söder med cykel, bil, tåg, buss eller till fots. Det är endast en kort promenad till Helsingborgs C och busshållplatser finns några kliv från porten. Dessutom stannar HelsingborgsExpressen på Malmöleden vid Tingsrätten.
Köpa, sälja eller värdera bostad i södra Helsingborg? Välkommen att kontakta Bjurfors mäklare i Helsingborg City. Passa också på att anmäla dig till vår kostnadsfria söktjänst Boagenten som hjälper dig att hitta ditt drömboende.
Kontakta mäklaren om du behöver hjälp att ta fram en boendekalkyl.
När du köper din bostad genom Bjurfors kan du ansöka om bolån till en förmånlig ränta hos vår samarbetspartner SEB.
Ansvarig mäklare