-
Köpa
Köpa -
Sälja
Sälja - Hitta bostad
- Skapa bevakning
- Hitta mäklare
Drömvilla med egen sjötomt – exklusivt läge och oslagbar charm
Ringsjön, Höör
*Areauppgifter enligt taxeringsinformationen
På Förhand ligger bostäder som av olika anledningar inte är ute till försäljning just nu men som kan komma att säljas om förutsättningarna är rätt.
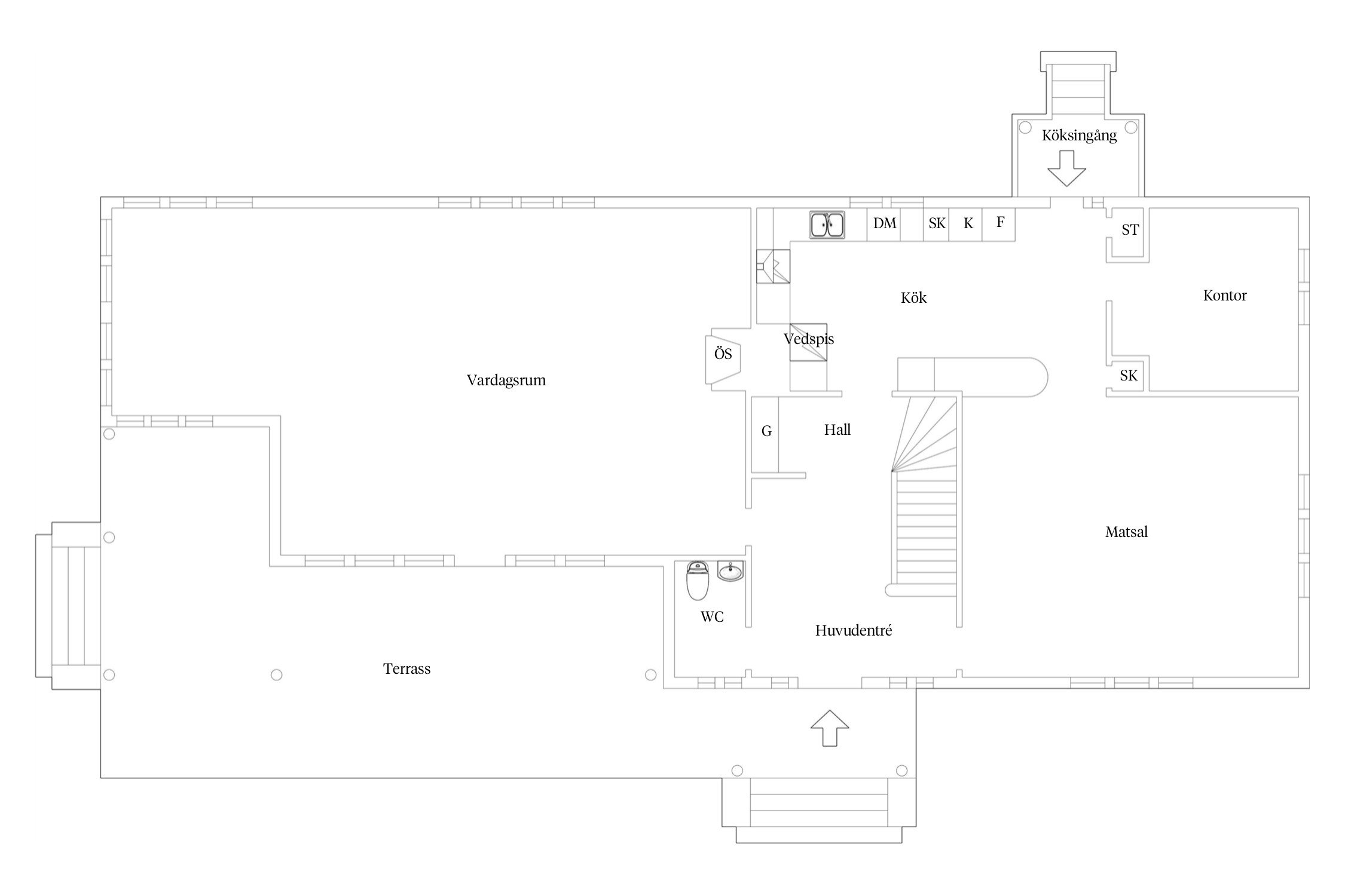
Välkommen till denna magnifika villa på cirka 200 kvadratmeter – ett hem som sömlöst förenar tidlös elegans med modern komfort på ett av områdets mest exklusiva lägen. Här får du uppleva en livsstil utöver det vanliga, med en parkliknande tomt och egen sjötomt. Det imponerande båthuset gör denna plats till ett paradis för både den aktive vattenälskaren och den som söker ro och avkoppling.
Villan är ett sant byggmästarskapelse med sina generösa sällskapsytor, charmiga fiskbensparkett, imponerande takhöjd och en planlösning som är badande i naturligt ljus. Den pampiga verandan och de stora fönsterpartierna erbjuder en hänförande panoramautsikt över sjön – ett perfekt scenarium för magiska sommarkvällar och oförglömliga stunder med nära och kära.
På fastigheten finns också ett garage med ett isolerat loft som bjuder på oändliga möjligheter – kanske ett lyxigt gästrum, ett inspirerande hemmakontor eller en kreativ ateljé ? Här finns verkligen plats för att förverkliga sina drömmar.
Den grönskande tomten är lika mycket en oas som den är en lekplats för trädgårdsentusiaster. Här kan du skapa praktfulla blomsterarrangemang eller njuta av att odla dina egna grönsaker – allt i en harmonisk miljö som andas livskvalitet.
Historien gör denna villa ännu mer enastående. Uppförd 1936 av ingenjören och direktören Nihleen, som ville skapa sitt drömhem ”Sjögläntan” i Sätofta för att fly från Malmös förorenade luft. Nihleen skapade en idyll där hans familj och gästande konstnärer kunde trivas.
Med en motorbåt vid bryggan, en badstuga på den privata strandtomten och en rosträdgård med fontäner blev ”Sjögläntan” ett himmelrike för alla konst- och naturälskare. Villan står stolt kvar än idag och bevarar flera av dessa unika detaljer.
Detta är mer än en bostad – det är en plats där historia och nutid flätas samman till en livsstil fylld av harmoni, exklusivitet och bekvämlighet. Här får du chansen att förvärva ett stycke historia och skapa nya, oförglömliga minnen. Ett hem för dig som söker det där lilla extra – varmt välkommen att uppleva denna pärla på plats!



Bottenvåning
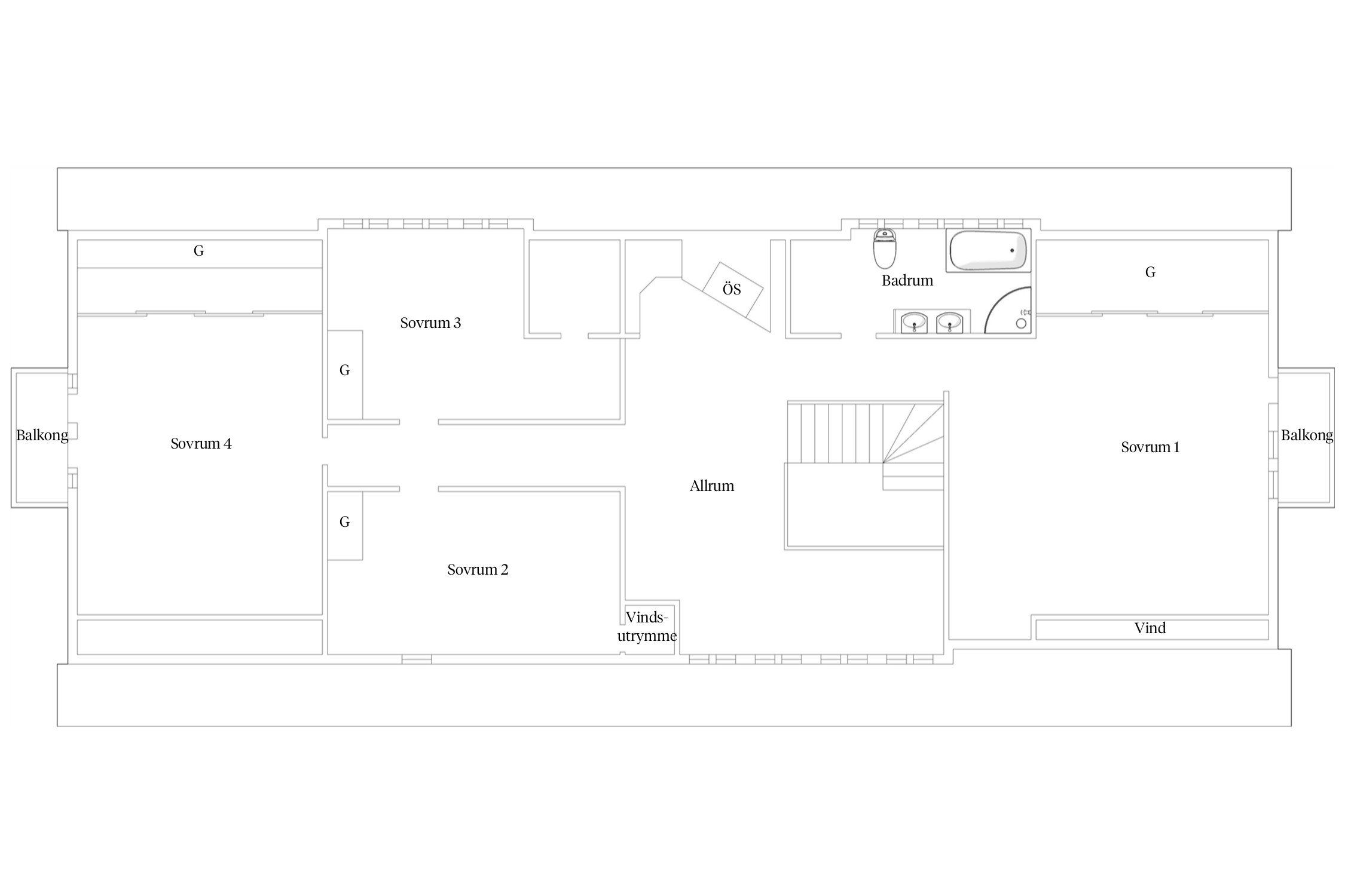
Ovanvåning
Källarvåning
Sätofta 2:14, 2:15
*Areauppgifter enligt taxeringsinformationen
90-tal byggdes huset om med nytt kök, badrum, el mm
2004 Ersättning av oljepanna med IVT värmepump (Jord) och renovering av element
2007 Ersättning av gamla avloppsrören mellan hus och det kommunala avloppsrören. Nya brunnar för dagvatten och spillvatten.
2010 Installation av ny larmsystem kompl. med brandsensorer
Läggning av golv i båthus (golvbrädor) och ny dörr vid sjön
2011 Renovering av köksentré : isolering, golvvärme, ny Leksand teak-fanerad döör.
Renovering av entré: fuktisolering, ny golv med gamla Höganäs golvplattor
2015 Installation av fiber (Telia)
2022 Renovering av trappan till andra våning, tapetsering (Svenskt Tenn, Josef Frank)
Renovering av alla sovrum, kontor och matsal. Målning, nya eluttag.
2024 Installation billaddningsstation Zaptec och egen elskåp
Installation glaskeramikhäll Miele KM6520
Uppdatering av kökets elinstallation
Antialgbehandling av tak på hus och garaget
Mäktig terass under tak,
Kommunalt VA, eget vatten för trädgård.
Underbar parktomt på 4785 kvm med anor från byggåret 1936. Fruktträd, gamla ekar mm. Sjötomt med eget båthus på 60kvm, egen sandstrand, plats att köra i båten. Sjötomten är på 3180 kvm land och 10 000kvm sjö med egen fiskerätt.
Garage ca 50 kvm med gästrum ovanför, uppfart för 4 bilar.
Fiber
Fiber
Det finns 7 st pantbrev uttagna om sammanlagt 3 700 000 kr
Goda kommunikationsmöjligheter, ett rikt kultur- och fritidsliv samt vacker skiftande natur har gjort Höör till en mycket eftertraktad kommun att bo i. Kommunen sträcker sig från Norra Rörum och Tjörnarp i norr till Gudmundtorp i söder. I väster ligger Hallaröd och Munkarp, dessutom ingår Bosjökloster och Höörs tätort i området.
För den som vill bo lantligt men ändå ha nära till storstadens puls är Höör ett utmärkt alternativ, Öresundsregionen ligger bara en knapp timmes tågresa bort. Var du än bor i kommunen har du nära till bad och till fina strövområden. Ett besök på Bosjökloster golfklubb kan också rekommenderas. Även kulturlivet i kommunen är aktivt och Höör är ett centrum för musik.
Även handeln bjuder på rik variation. Höör är en blomstrande småföretagarkommun med turism och hälsa som profilnäringar. Här kan du shoppa i mysiga små butiker i centrum eller köpa färska gourmetprodukter hos gårdshandlare.
I Höörs kommun finns populära turistmål som skid- och friluftsanläggningen Frostavallen, Skånes djurpark och Bosjökloster Slott. I Ringsjön ligger också halvön Lillö där man funnit vulkanrester. Lillön är även känd för sitt naturreservat med jätteaspar.
Vill du köpa, sälja eller värdera bostad i Höörs kommun? Kontakta Bjurfors mäklare i Höör! Passa också på att anmäla dig till vår kostnadsfria söktjänst Boagenten som hjälper dig att hitta ditt drömboende.
Kontakta mäklaren om du behöver hjälp att ta fram en boendekalkyl.
När du köper din bostad genom Bjurfors kan du ansöka om bolån till en förmånlig ränta hos vår samarbetspartner SEB.
Ansvarig mäklare