-
Köpa
Köpa -
Sälja
Sälja - Hitta bostad
- Skapa bevakning
- Hitta mäklare
Lantligt strax utanför Kristianstad!
Balsby, Kristianstad
*Areauppgifter enligt taxeringsinformationen
Bokade visningar. Vänligen kontakta mäklaren för att boka tid.
Bara en kort bilfärd ifrån Kristianstad ligger en liten idyll i form av Balsby. Här bor du naturnära med närhet till såväl Råbelövssjön som lövskog.
I gamla delen av Balsby bor man mitt i det vackra landskapet och omgiven av åkrar. Närheten till Kristianstad och naturen gör det enkelt att pendla, för den som vill bo lite mer lantligt.
Välkommen till gamla Balsby och en trevlig villa - bara en kort färd från Kristianstad. Här bor du bekvämt, i trivsam miljö, med praktiska ekonomibyggnader och utsikt över åkrarna.
Huvudentrén & hall:
Entrén nås ifrån baksidan och har plats för ytterkläder och skor. I hallen finns även tvättmaskin och torktumlare. Rakt fram nås en inre hall, som ansluter till ett sovrum, kaklat badrum samt till kök.
Badrum:
Kaklat badrum med dusch, WC, handfat och
Kök:
Rymligt kök med plats för matbord och förvaring. Här finns även en braskamin installerad.
Vardagsrum:
Vardagsrum med plats för större soffa och tv-möbel.
Sovrum:
Tre sovrum med ett större sovrum där ägaren förberett för vattenburen golvvärme. Ena sovrummet har egen ingång ifrån framsidan och är perfekt för den med tonårsbarn eller den som vill ha kontor hemma.
Carport och förrådsbyggnad:
Carport med plats för förvaring samt parkering av två bilar. I anslutning till carport finns en förrådsbyggnade med ytterligare utrymme och källare under.
Allmänt exteriört:
Lättskött trädgård med en trevlig baksida som har utsikt över åkrar.



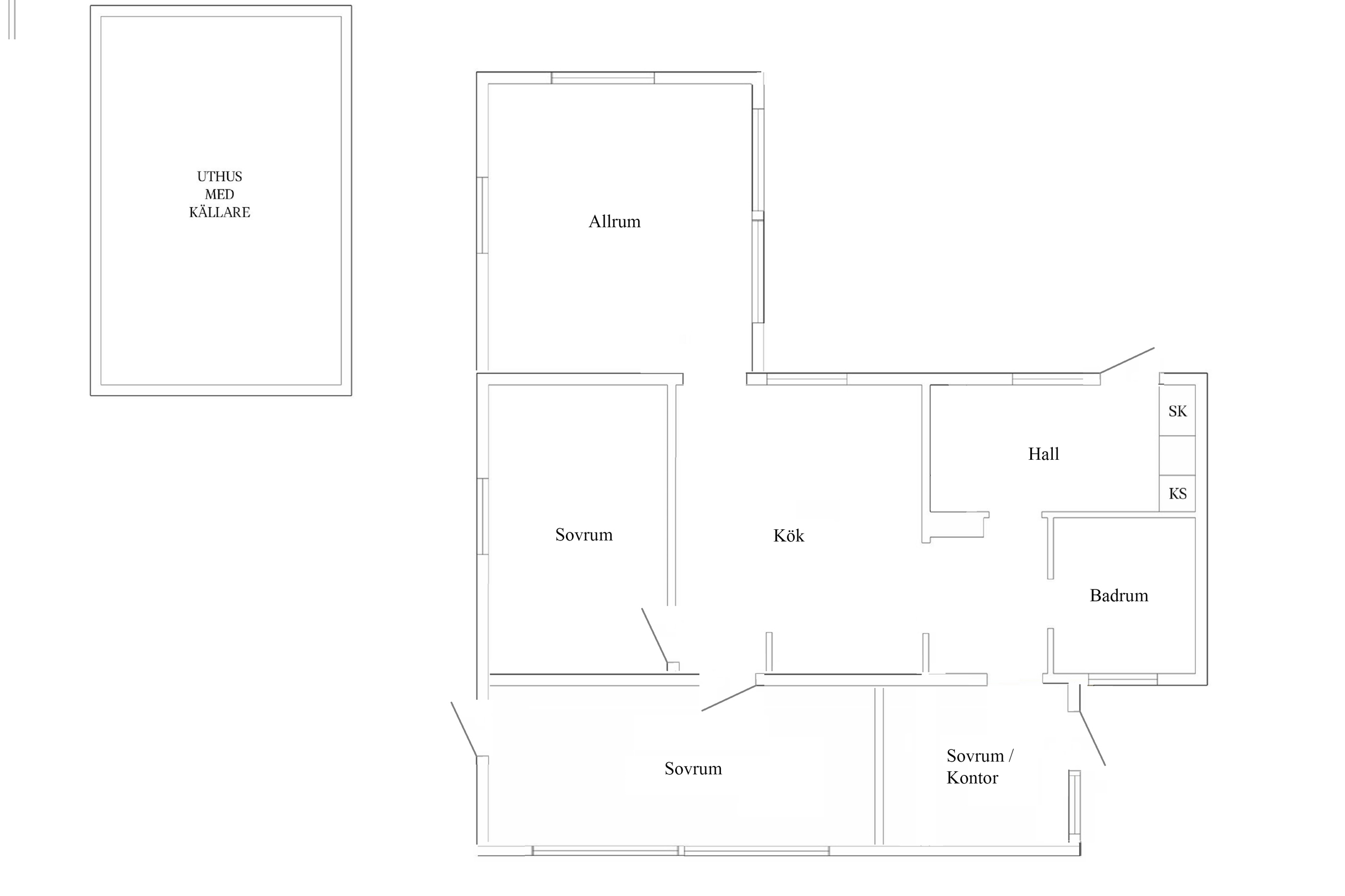
Planritning
Balsby 8:17
*Areauppgifter enligt taxeringsinformationen
1995 - Vardagsrum
1997 - Tillbyggnad entré samt allrum
2007 - Badrumsrenovering (uppskattat årtal)
2021 - 2025 - Byte av flertalet fönster
2022 - Nya entrédörrar
2022 - Staket uppfört samt automatiska grindar
2023 - Sovrumsrenovering samt en vägg uppförd för ytterligare sovrum.
2025 - Målning träpanel exteriört
2025 - Nya skåpluckor kök
2025 - Ny varmvattenberedare
- Carport
- Förrådsbyggnad
Enskilt vatten, Enskilt avlopp. Servitut är upprättat (och inför tillträde inskrivet) mot grannfastigheten för såväl avlopp som vatten.
Parkering på uppfart samt under carport
Gemensamhetsanläggning: Kristianstad balsby ga:2 ändamål: Vägar
Last: Ledningsrätt Starkström, 1272-321.1
Last: Ledningsrätt Tele, 1272-321.2
Förmån: Avtalsservitut Brunn, va-ledningar, D202100389282:1.1
Via telefonjacket (ADSL)
Enl. ök
Det finns 3 st pantbrev uttagna om sammanlagt 1 275 200 kr
Norr om Kristianstad övergår de öppna sandslätterna i mer kuperad natur. Djupa lövskogar klättrar uppför höjder och ner i djupa raviner. Små och stora sjöar glittrar till mellan träden. Dessa omgivningar är riksbekanta för sin vackra natur. Inte minst bokskogen, där Skåneleden passerar sjön Immeln, lockar mängder av turister.
Här finns många mindre byar, orter och samhällen som alla präglas av de natursköna omgivningarna och inslagen av vildmark. En aktiv livsstil med jakt, fiske, båt- och friluftsliv är vanlig i dessa trakter.
Vissa orter bildades i närheten av slotten och de stora godsen och har medeltida anor. Andra växte fram på 1800-talet som rena bruksorter eller stationssamhällen. Arkelstorp och Barum, invid Oppmannasjön, är ett par exempel.
Många lockas till trakten av det lugna livet i natursköna omgivningar. Här är skolorna är små och trygga. Service och kommunikationer är väl utbyggda och närheten till Kristianstad erbjuder den stora stadens alla möjligheter med arbetstillfällen, högskola och service.
Handelstraditionen är stark och det strategiska läget invid E22:an har gjort Kristianstad till något av en huvudstad för denna del av landet. Här finns två stora köpcenter och alla betydande handelskedjor. Men staden har också ett rikt kultur-, nöjes- och restaurangliv samt stolta idrottstraditioner.
Vill du köpa, sälja eller värdera bostad i Balsby? Kontakta Bjurfors mäklare i Kristianstad! Passa också på att anmäla dig till vår kostnadsfria söktjänst Boagenten som hjälper dig att hitta ditt drömboende.
Kontakta mäklaren om du behöver hjälp att ta fram en boendekalkyl.
När du köper din bostad genom Bjurfors kan du ansöka om bolån till en förmånlig ränta hos vår samarbetspartner SEB.
Bokade visningar. Vänligen kontakta mäklaren för att boka tid.
Ansvarig mäklare