-
Köpa
Köpa -
Sälja
Sälja - Hitta bostad
- Skapa bevakning
- Hitta mäklare
Charmigt äldre hus med fina detaljer och stor tomt!
Tollarp, Kristianstad
*Areauppgifter enligt taxeringsinformationen
På Förhand ligger bostäder som av olika anledningar inte är ute till försäljning just nu men som kan komma att säljas om förutsättningarna är rätt.
Kontakta mäklaren för mer information gällande budgivningen.
Ett hus för dig som älskar den äldre charmen, vackra detaljer och på ett lugnt och lantligt läge! Anmäl intresse redan idag!
Ett hem med tidlös charm där vackra originaldetaljer möter modern komfort. Här får du en rymlig tomt med gott om plats för både avkoppling och aktiviteter, samtidigt som kök och badrum är smakfullt renoverade för att ge dig all bekvämlighet du önskar. Anmäl ditt intresse redan idag!



Ilnestorp 3:20
*Areauppgifter enligt taxeringsinformationen
2005-2023 - Byte fasad
2022 - badrum
2010 - Kök
2008 - Trekammarbrunn
2005 - Hallgolvet, utgrävt och nylagt
2005-2006 - Lagat skorstenen
Grävd brunn, Trekammarbrunn
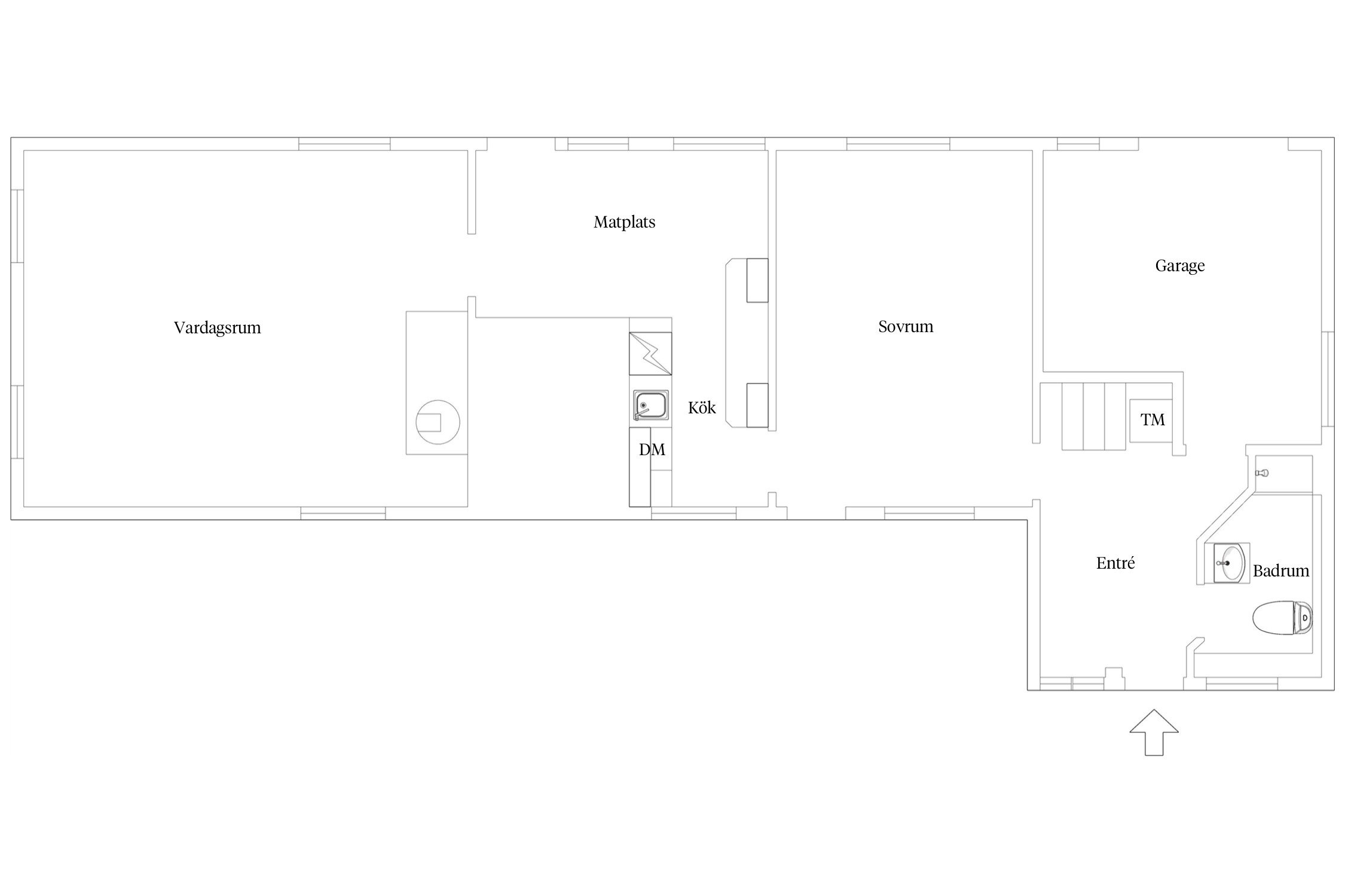
Garage
Driftkostnaderna är individuella och kan komma att ändras beroende på avtal/användning. Sommarhus så endast använt under sommarperioden. Övrigt avser tömning av trekammarbrunnen.
Det finns 3 st pantbrev uttagna om sammanlagt 10 000 kr
Sydväst om Kristianstad breder bokskogarna ut sig avbrutna av ett öppet odlingslandskap. Här ligger flera orter med ett bekvämt avstånd till såväl Kristianstad som Hanöbuktens vita stränder. Flera av samhällena och byarna är bruksorter från 1800-talet eller gamla stationssamhällen. Här livet lite tryggare och skolorna små.
Tollarp har 3 400 invånare och ligger omfamnad av Linderödsåsens vilda natur. Vramsån slingrar sig genom skir bokskog och rinner rakt igenom samhället. Service, skolor och kommunikationer är väl utbygga. Tollarp har flera stora arbetsgivare och är en av kommunens sex basorter med utbyggd service.
Degeberga med 1 300 invånare har medeltida rötter som tingsställe och handelsplats. Samhället är känt för sina natursköna omgivningar. Degeberga backar lockar turister precis som naturreservatet kring Skånes högsta vattenfall Forsakar. Bra service och skolor som en av kommunens basorter.
Andra populära orter sydväst om Kristianstad är Gärds Köpinge, Vittskövle, Östra Sönnarslöv och Everöd där Kristianstad Airport ligger.
En av fördelarna är självklart närheten till Kristianstad – som mest bara någon enstaka mil bort. Där finns arbetstillfällen, högskola och fullt utbyggd service. Stadens handelstraditioner är starka. Du hittar två stora köpcenter och alla betydande handelskedjor. Kristianstad har även ett rikt kultur-, nöjes- och restaurangliv samt stolta idrottstraditioner.
Vill du köpa, sälja eller värdera bostad i Tollarp? Kontakta Bjurfors mäklare i Kristianstad! Passa också på att anmäla dig till vår kostnadsfria söktjänst Boagenten som hjälper dig att hitta ditt drömboende.
Kontakta mäklaren om du behöver hjälp att ta fram en boendekalkyl.
När du köper din bostad genom Bjurfors kan du ansöka om bolån till en förmånlig ränta hos vår samarbetspartner SEB.
Ansvarig mäklare