-
Köpa
Köpa -
Sälja
Sälja - Hitta bostad
- Skapa bevakning
- Hitta mäklare
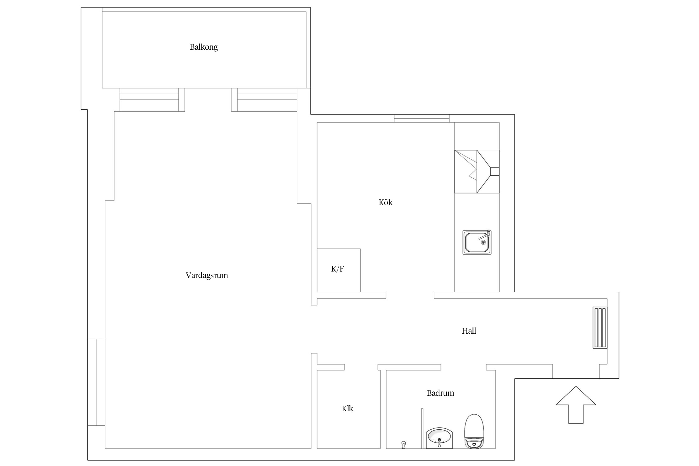
Välplanerad etta med balkong och oslagbar utsikt!
Kobjer, Lund
*I månadsavgiften ingår värme, vatten och grundutbud tv. Obligatoriskt tillägg om 100 kr/mån för bredband tillkommer
**Areauppgifter enligt föreningen
På Förhand ligger bostäder som av olika anledningar inte är ute till försäljning just nu men som kan komma att säljas om förutsättningarna är rätt.
Missa inte denna fantastiska bostad med unikt läge på gaveln av fastigheten. Här erbjuds härliga ljusinsläpp och inbjudande planlösning.
På översta våningen i fastigheten, med fönster i två väderstreck och milsvid utsikt hela vägen mot Öresundsbron, finner du denna ljusa och välplanerade lägenhet. Här möts du av en smart och trivsam planlösning med ett lättmöblerat allrum som badar i ljus samt ett stort kök med goda arbetsytor och naturlig matplats. Förvaringsmöjligheterna är generösa med både klädkammare och gott om förrådsutrymme i nära anslutning till bostaden. De tidstypiska originaldetaljerna är varsamt bevarade och sätter en unik prägel som förstärker hemmets karaktär och charm. Här är det lätt att trivas!
Belägen i det lugna och omtyckta området Kobjer bor du med närhet till både natur och service. På bara 10 minuter når du Lunds centrum med cykel och till Nova Lund, med dess stora utbud av butiker och matvaror, promenerar du enkelt. För dig som pendlar stannar stadsbussen i närheten och området erbjuder även goda parkeringsmöjligheter.



*Areauppgifter enligt föreningen
I månadsavgiften ingår värme, vatten och grundutbud tv. Obligatoriskt tillägg om 100 kr/mån för bredband tillkommer
Det finns två förråd tillhörande bostadsrätten.
*Betalas av köpare
Föreningen är uppförd 1955 och omfattar 43 lägenheter. Till lägenheterna finns tillhörande förråd i både källare och vind.
Föreningen har inga beslutade avgiftshöjningar i dagsläget, men föreningen justerar avgifterna varje år med start i april (kontrollerat 2025-11-06).
Varje hushåll måste själva teckna bostadsrättstillägg till sin hemförsäkring.
Utförda renoveringar av större karaktär:
2001 Stambyte av inre VA
2009-2010 Balkonger och vindsfönster
2015 Nya element
2019 Fönsterbyte
2025 Renovering av tak
Planerade renoveringar:
Föreningen följer en underhållsplan.
P-platser finns att hyra för 180 kr i månaden. Föreningen har även 4 garageplatser till en kostnad av 750 kr/mån. I dagsläget är det ett ledigt garage men 1 person i kö till p-plats. Det finns även gott om gratisparkeringar på gatan utanför som tillhör kommunen. Vissa kostar, andra är tidsreglerade. Obs, fr.o.m april 2026 tillkommer moms på parkeringskostnader. Kontrollerat 2025-11-06.
TV-leverantör: Tele2 levererar grundutbud som ingår i avgiften.
Bredband: Gruppanslutning till Ownit för 100 kr/mån (räknas upp med KPI 1 jan varje år). 1 gib/sekunden.
Det finns en gemensam gårdsplats med utemöbler samt grill.
Föreningen innehar en egen bastu, cykelförråd där man även kan ställa barnvagn, hobbyrum med elektriska verktyg samt ett fräscht övernattningsrum att hyra för 100 kr/natt. Övernattningsrummet är utrustat med ett enklare kök och två enkelsängar.
Ett mysigt lusthus finns även på gemensamma gården.
I källaren på Qvantenborgsvägen finns en gemensam tvättstuga utrustad med två tvättmaskiner, en torktumlare samt två torkrum.
Föreningen har fixardagar i trädgård och fastighet, där alla medlemmar skall närvara 4 arbetsdagar per år.
Ovanstående information har inhämtats genom årsredovisningen och kontrollerats med representant från föreningen. Slutgiltig köpare uppmanas att kontakta representant från föreningen för att stämma av ovanstående information.
Att bo i Kobjer - Norra Lund
Norra Lund är ett område som ringar in flera mysiga stadsdelar och är ett lugnt, tryggt och familjärt område. Sofiaparken, Möllevången, Kobjer, Sliparelyckan och Smörlyckan är de stadsdelar som ingår i denna populära region.
I Norra Lund finns en stor variation av bebyggelser i form av friliggande villor, radhus och flervåningsbostäder och präglas framförallt av barnfamiljer men även akademiker och studenter som också har hittat hit.
Du hittar dessutom flera härliga grönområden och natursköna omgivningar. I den västra delen av Norra Fäladen finns ett parkområde beläget vid namnet Sankt Hans backar. Höga kullar och flertal motionsslingor, djurhagar och bågskytteplats.
Smörlyckan och Victoriastadion ligger också inom gångavstånd för de aktiva.
Ett flertal busslinjer servar stadsdelarna i detta område och gör att du tar dig smidigt in till centrala Lund. Från Lund C tar du dig dessutom smidigt med tåg till Malmö, Helsingborg eller varför inte Köpenhamn?
På Kobjer finner du en härlig blandning av flerfamiljshus, radhus och villor vilket ger en mysig atmosfär, men har kvar närheten till Lund centrum. Köpcentret Nova Lund är endast en liten promenad bort med ett brett shoppingutbud och välsorterade matbutiker.
Minilivs och närbutik finns på Möllevången och i Sofiaparken. På cirka 10 minuter cykelväg hamnar du i Lund centrum med ett bra utbud av både restauranger, bibliotek, kaféer, frisörsalonger, apotek och trevliga butiker. Skolor och förskolor finns gott om i närområdet, exempelvis Bilingual Montessori School of Lund.
Här finns inte bara vacker natur och gröna parker utan också möjlighet till att leva bekvämt med förnödenheter inom gångsavstånd. Bra skolor i en idyllisk och mysig småstadsatmosfär med närhet till kultur, nöje och spännande restauranger.
Vill du köpa, sälja eller värdera bostad i Norra Lund? Kontakta Bjurfors mäklare i Lund! Passa också på att anmäla dig till vår kostnadsfria söktjänst Boagenten som hjälper dig att hitta ditt drömboende.
Kontakta mäklaren om du behöver hjälp att ta fram en boendekalkyl.
När du köper din bostad genom Bjurfors kan du ansöka om bolån till en förmånlig ränta hos vår samarbetspartner SEB.
Ansvarig mäklare