-
Köpa
Köpa -
Sälja
Sälja - Hitta bostad
- Skapa bevakning
- Hitta mäklare
Rymlig familjevilla på omtyckta Nilstorp
Nilstorp, Lund
*Areauppgifter enligt taxeringsinformationen
Bokad visning.
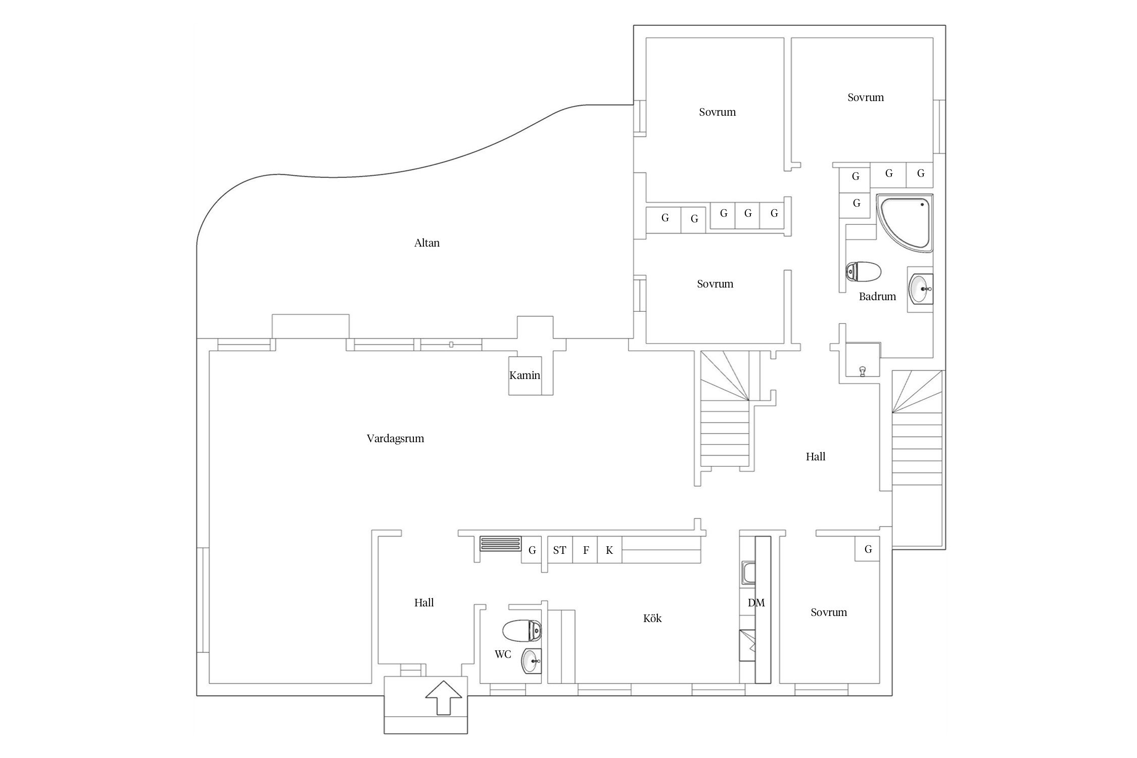
Stor och välplanerad villa med 7 sovrum, sällskapsrum och källare med gillestuga, bastu och hobbyrum. Lummig trädgård med stor altan i sydvästläge.
Välkommen till en stor och inbjudande familjevilla på populära Nilstorp, ett hem där både vardag och fest får ta för sig. Här möts du av generösa sociala ytor, härlig trädgård och en planlösning som skapar balans mellan samvaro och avskildhet.
På entréplan väntar stora, öppna ytor som binder samman kök, matsal och vardagsrum, perfekt för både lugna vardagskvällar och stora middagsbjudningar. Det rymliga köket bjuder in till gemenskap och matglädje, och blir snabbt hemmets naturliga samlingspunkt.
Den mer privata delen av våningsplanet rymmer villans sovrum och erbjuder en plats återhämtning efter dagen.
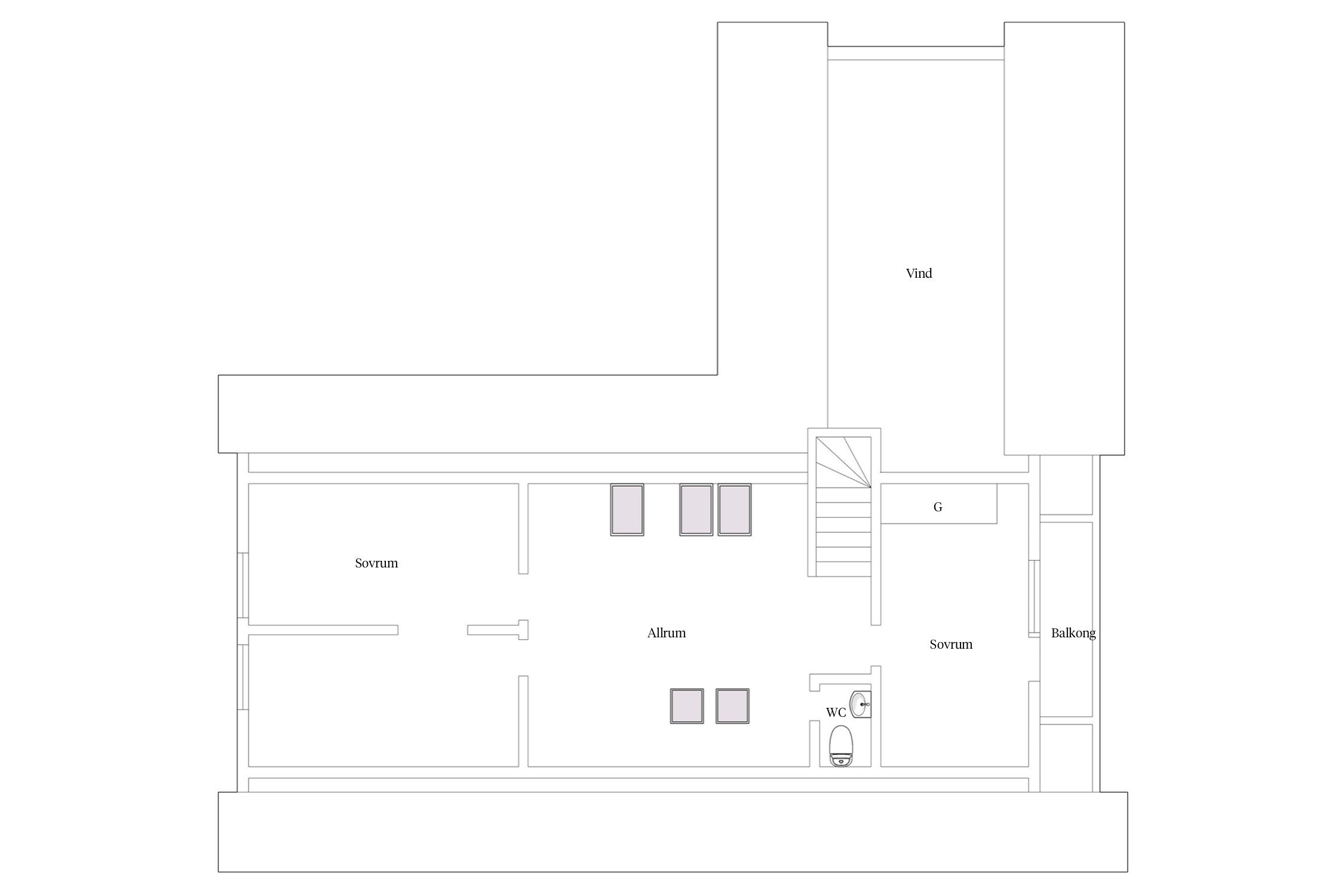
På ovanvåningen möts du av ett stort, härligt allrum med generöst ljusinsläpp. Här finns ytterligare tre angränsande sovrum, idealiskt för barn, gäster eller hemmakontor. En flexibel och praktisk våning där familjen kan växa, leva och trivas.
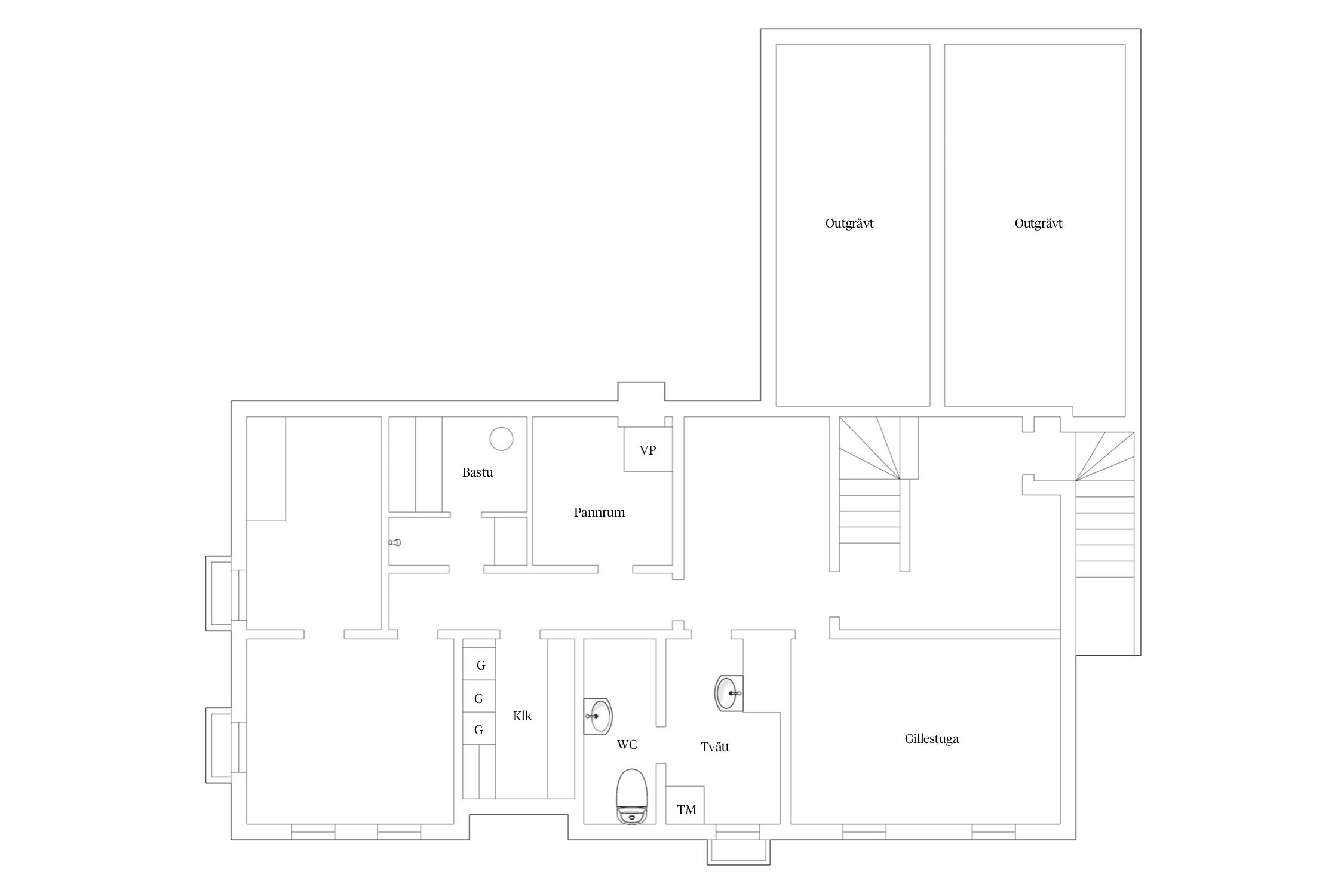
Källaren erbjuder ännu mer utrymme, tänk gillestuga för filmkvällar, bastu för avkopplande stunder och rymliga hobbyutrymmen för allt från träning till pysselprojekt. Här finns plats för både vardag, fritid och intressen.
Utomhus möts du av en lummig och lättskött trädgård med både grönskande gräsmattor och en stor altan i härligt sydvästläge , sol från tidig eftermiddag till sen kväll. Perfekt för långa middagar, lek, odling eller ren avkoppling.
Låter det här som er framtida bostad, kontakta ansvarig mäklare för mer information.



Blåregnet 8
*Areauppgifter enligt taxeringsinformationen
2023 Tvättmaskin
2021 Förråd
2020 Cykelskjul
2020 Staket och grind
2015 Ny trägavel och nytt fönster
2014 Renovering kök, maskiner, bänkskiva
2012 WC borttagen, renovering hall
2012 Badrum
2008 Träterass
2008 Installation av värmepump
2007 Takfönster
2006 Ny kyl och frys
1999 Skorstensrör
1999 Borttagning av vägg i vardagsrum
1999 Nytt kök
1999 Slipning av parkett vardagsrum
1999 Golv parkett
1999 Ytskikt
Cykelskjul och förråd (ca 8 kvm vardera)
2 st en i öster och en i väster
Kommunalt vatten, Kommunalt avlopp.
Trädgårdstomt
Uppfart
Detaljplan (1995-11-23) Tomtindelning (1951-06-21)
Fiber
Uppvärmning: Inkluderar även hushållsel
Det finns 2 st pantbrev uttagna om sammanlagt 2 400 000 kr
Södra Lund består av väletablerade bostadsområden såväl som helt nya stadsdelar. Här samsas pampiga villor med omtyckta flerbostadshus, inbäddade i blommande grönska. Området är ett blandat kontors- och bostadsområde med trevlig atmosfär och bekvämt avstånd till Lunds historiska stadskärna.
Järnåkra ligger i direkt anslutning till Lunds charmiga stadskärna, mellan Södra vägen, Malmövägen, Nilstorp och Tetra Pak. Området växte fram i slutet av 50-talet och har en hel del välbevarad arkitektur från den tiden. Större delen av bebyggelses består dock av lamellhus med fyra våningar i rött tegel och med lutande balkongfasader, pulpettak och delvis synlig betongkonstruktion. Dessa hus är placerade kring ett gemensamt grönområde med generösa öppna ytor, lummig växtlighet, uteplatser och en lekplats. Ett antal flerfamiljshus på åtta till tio våningar är centrerade kring Karlshögstorg som utgör stadsdelens mittpunkt. På Karlshögstorg finns en livsmedelsbutik, restaurang, seniorboende och bankomat.
Klostergården är en trivsam stadsdel som är på uppgång. Området anlades i början av 1960-talet på åkermark söder om staden efter modernismens stadsplanideal. Stadsdelen har fått sitt namn efter en gård (klostergården) som låg där Klostergården numera ligger. Klostergårdsfältet är ett stort lummigt parkområde som är beläget norr om gårdarna med åttavåningshusen. Norr om detta ligger stadsdelscentrum med skola, kyrka och bibliotek. På Klostergården har gatorna döpts efter väderstrecken och väderfenomen, några exempel är Sunnanväg och Västanväg samt Gråvädersvägen och Regnbågsgången. Några hundra meter från Lunds stadspark växer Arenaparken fram i rask takt. Härifrån har du nära till allt som Lund har att erbjuda, från idrott och friluftsliv till shopping och kultur. Som boende i Södra Lund har du gång- och cykelavstånd till diverse aktiviteter och uteliv. På endast några minuter tar du dig till centrum eller Stadsparken.
I området finns mängder med parker, promenadstråk, motionsslingor samt Lunds stora idrottsanläggning Sparbanken Skåne Arena med bland annat ishall, handbollsarena och fotbollsplan. Höjeådalens naturreservat erbjuder fina vandringsmöjligheter och spännande naturupplevelser med sina breda stigar och rika djur- och växtliv. I anslutning till Höje å hittar du även den skogsliknande Sankt Larsparken och Källbybadet med sina utomhuspooler. För den som längtar efter att odla sina egna grönsaker ligger flera koloniområde utspridda i området.
Vill du köpa, sälja eller värdera bostad i Nilstorp? Kontakta Bjurfors mäklare i Lund! Passa också på att anmäla dig till vår kostnadsfria söktjänst Boagenten som hjälper dig att hitta ditt drömboende.
Kontakta mäklaren om du behöver hjälp att ta fram en boendekalkyl.
När du köper din bostad genom Bjurfors kan du ansöka om bolån till en förmånlig ränta hos vår samarbetspartner SEB.
Bokad visning.