-
Köpa
Köpa -
Sälja
Sälja - Hitta bostad
- Skapa bevakning
- Hitta mäklare
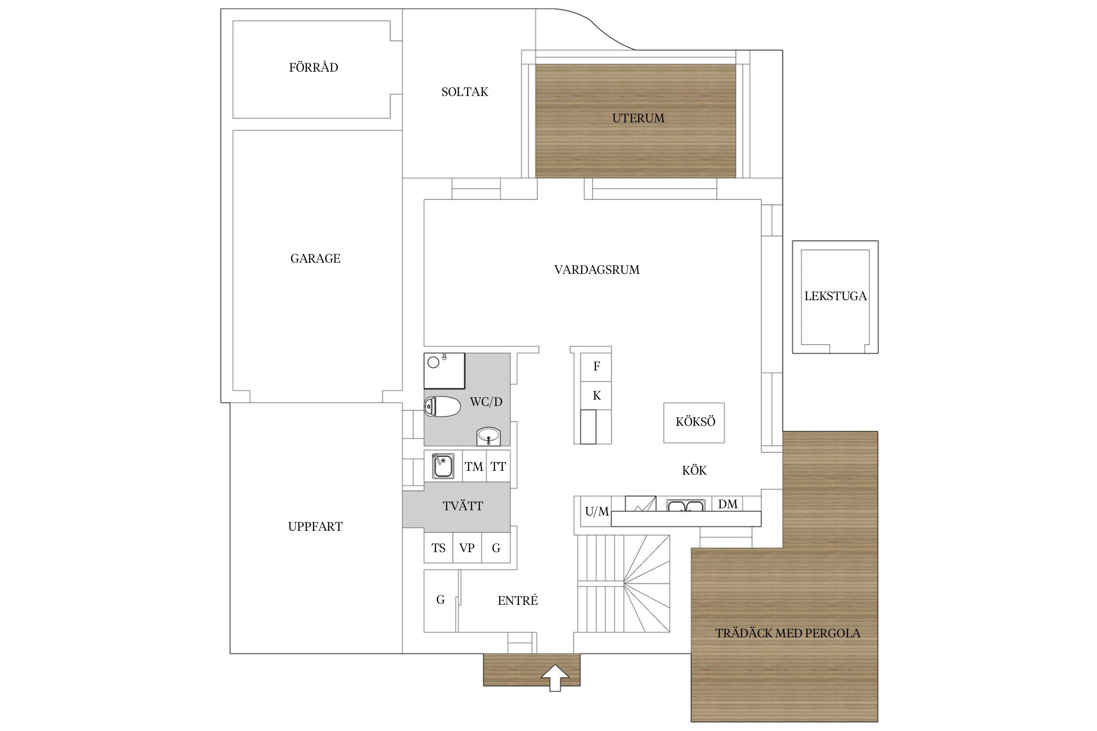
Friliggande villa i Stångby
Stångby, Lund
*Areauppgifter enligt taxeringsinformationen
Fyll i formuläret nedan så hjälper vi dig!



Tätorten Stångby strax utanför Lund är omgiven av milsvida slätter och praktfull grönska. Tack vare den klassiska skånska byggtraditionen har Stångby behållit mycket av sin gammalmodiga charm.
Tre kilometer norr om Lund ligger Stångby, en ort med historiska rötter. På 1600-talet använde den svenska hären ortens kyrktorn som ett strategiskt riktmärke i kampen mot danskarna. Stångby består egentligen av två mindre orter med två kilometers mellanrum. I den äldre småorten Stångby kyrkby ligger, vilket hörs på namnet, Stångby kyrka som byggdes redan under 1100-talet. Stångby stationsby, den huvudsakliga tätorten, har fått sitt namn av järnvägsstationen. I dag finns mycket goda förbindelser med tåg härifrån till Lund–Malmö och Eslöv–Höör.
I Stångby stationssamhälle ligger ett vackert gammalt stenhus, Torngården. Genom åren har det varit prästbostad och pastorsexpedition, men i dag finns Stångby bibliotek i dessa lokaler. Här har man bland annat samlat lokalhistoriska tidningsklipp och annat material om trakten runtomkring. Varje vecka har biblioteket programverksamhet för barn, som sagoläsning, dockteater och musiklekar. Biblioteket förmedlar också Torngårdens festsal för uthyrning, vilket gör huset till en träffpunkt för folk i trakten.
I området hittar man också en idrottshall, Tornahallen, som är hemmaarena för idrottsföreningen Torns IF. Idrottshallen inhyser även årligen återkommande aktiviteter som Torns konst- och hantverksmässa samt Stångby loppis.
Valkärra ligger fyra kilometer norr om Lund och består av tre bostadsområden: Valkärra by, Korsåker och Valkärra station. Här finns ett fint ridhus och i närheten ligger Valkärra skola som har förskoleverksamhet samt låg- och mellanstadium, scoutgård och kyrka. Under 1800-talet renoverades Vallkärra Kyrka tillsammans med många andra kyrkor i Lund med omnejd.
Vill du köpa, sälja eller värdera bostad i Stångby? Kontakta Bjurfors mäklare i Lund! Passa också på att anmäla dig till vår kostnadsfria söktjänst Boagenten som hjälper dig att hitta ditt drömboende.
Ansvarig mäklare