-
Köpa
Köpa -
Sälja
Sälja - Hitta bostad
- Skapa bevakning
- Hitta mäklare
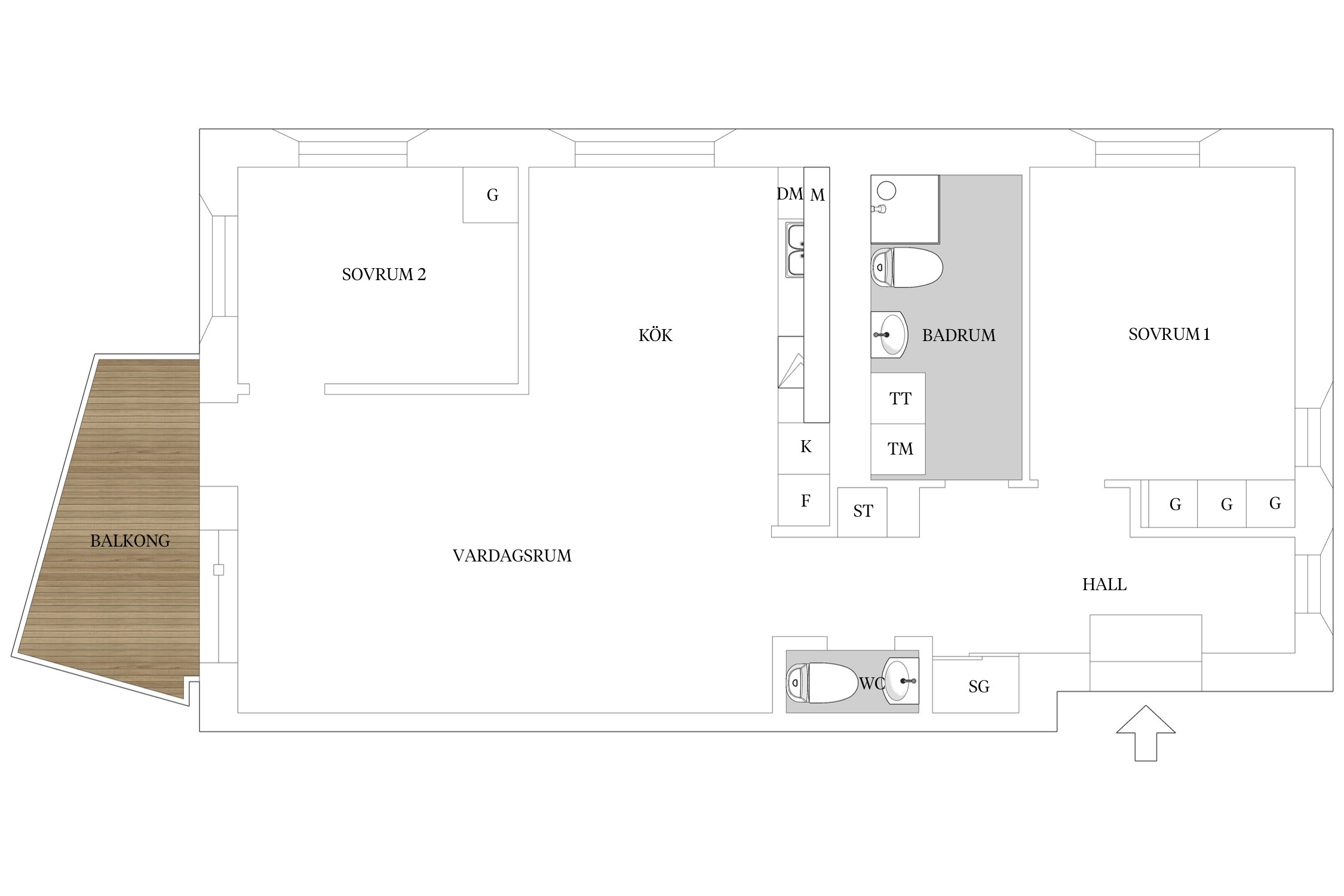
Gaveltrea med balkong
Väster, Lund
*I månadsavgiften ingår värme, renhållning, kallvatten, bostadsrättstillägg, förvaltning och skötsel. Tillkommer avgift för bredband/TV 229 kr, varmvattenförbrukning, hushållsel och parkering. Aviserar kvartalsvis.
**Areauppgifter enligt bostadsrättsföreningen
På fjärde våningen finner ni denna välplanerade gaveltrea med härlig balkong med kvällssol. Badrum och gäst WC!
Välkommen till denna inbjudande och mycket fräscha gavellägenhet på lummiga och barnvänliga Väster. Här är det bara att flytta in och njuta av nyproduktionens alla fördelar.
På fjärde våningen möts ni av generösa ytor och rymliga rum i en optimal planlösning. Vardagsrum och kök i öppen planlösning utgör tillsammans hemmets hjärta. Härligt ljusinsläpp från stora fönsterpartier på hörnläge och stor balkong med härlig kvällsol. Två bra sovrum och ett stort badrum med dusch och egna tvättmöjligheter samt en gästtoalett. Hiss från markplan och ett underjordiskt garage. Ett fint, bekvämt och kompromisslöst boende som inte lämnar något att önska!
Väster är ett omtyckt område som är lummigt och lugnt men bara en kort bit från både centrum, Centralstationen, Nova Lund shoppingcenter och Värpinge Golfklubb. I området finns allt du behöver såsom vårdcentral, livsmedelsbutiker, förskolor och natursköna promenadstråk.



*Areauppgifter enligt bostadsrättsföreningen
I månadsavgiften ingår värme, renhållning, kallvatten, bostadsrättstillägg, förvaltning och skötsel.
Tillkommer avgift för bredband/TV 229 kr, varmvattenförbrukning, hushållsel och parkering. Aviserar kvartalsvis.
*2019, Färdigställt år 2021
Bostadsrättens indirekta nettoskuldsättning har inte varit möjlig att räkna fram, eftersom relevant andelstal inte gått att få fram från föreningen eller förvaltaren.
*Betalas av köpare
Brf Kvartershuset i Lund registrerades 2019 och planeras bli ett flerfamiljshus med åtta våningar där alla 62 bostäder är belägna i samma byggnad. På fastigheten bygger föreningen en variation av lägenheter, allt från enrummare till fyrarummare. Föreningens tomt är friköpt. Samtliga lägenheter upplåts med bostadsrätt. Färdigställt år 2021 och inflyttning har skett i två etapper under november och december 2021.
Föreningen har beslutat om avgiftshöjning om årsavgiften med 3% (Kontrollerat 2025-12-02). Föreningen höjde avgifterna senast med 2% 2025-01-01.
Individuell mätning och debitering:
El-central med automatsäkringar. Kollektiv anslutning med individuell mätning.
OBS, priset för hushållsel (IMD) justeras utifrån aktuellt elpris och ses över en gång per kvartal. Samma sak gäller om man hyr laddplats för elbil.
Föreningen är fullvärdesförsäkrad hos Trygg Hansa. Ingår bostadsrättstillägg för medlemmar.
I dagsläget finns det inga planerade renoveringar/förändringar i fastigheten pga husets låga ålder (kontrollerat 2025-12-02).
Under föreningens byggnad finns en garageanläggning där föreningen har 23 p-platser varav nio st elbilsplatser. Separata hyresavtal tecknas mellan medlemmen och föreningens parkeringsbolag Parkando och månadshyran för garageplats är bestämd till 720 kr/mån samt 1020 kr/mån för elbilsplats, moms tillkommer. Markparkeringsplatser 500 kr/mån. För uthyrning av samtliga platser tillämpas kösystem. Samtliga platser är i dagsläget uthyrda med tio medlemmar i kö (kontrollerat 2025-12-02). OBS, under 2026 tillkommer kostnad för moms för parkering.
Trådlös TV och data.
Bredband 1000 / 1000 med Bahnhof. Fiber är indraget till huset, medan lägenheterna är uppkopplade på ett kopparnät.
I föreningen finns rullstols-/barnvagnsförvaring placerat i källaren, cykelverkstad, cykelparkering i husets garage och källarplan, miljörum, undercentral, el-central, uteplats och lägenhetsförråd. Till varje lägenhet hör lägenhetsförråd beläget i källaren. Föreningen har en upphöjd och privat innergård.
Information som berör föreningen är inhämtad via årsredovisning, stadgar och kontakt med föreningen. Avvikelser kan förekomma och som köpare uppmanas du att själv kontrollera samtliga uppgifter, framförallt om något är av extra stor betydelse för dig som köpare.
Väster är en charmig och varierad stadsdel, lokaliserad på västra sidan om järnvägen i Lund. Här finns olika typer av citynära boende och hela elva fina grönområden.
Namnet Väster kommer ifrån att området ligger just ”väster om järnvägen”. Här finns en unik charm då man på flera ställen bevarat de äldre bostadsområdena. Väster ger ett omväxlande intryck med en blandning av hyreslägenheter, bostadsrätter, radhus och villor.
Den första samlade husbebyggelsen utanför den medeltida stadskärnan var förmodligen Jutahusen som växte fram kring en kvarn. Under århundradena spred sig bebyggelsen från staden och västerut. På 1980-talet byggdes ett helt nytt bostadsområde som döptes till Gasverket. Namnet kommer av det gamla gasverk som försåg staden med bränsle till gatubelysningen. De gamla byggnaderna runt gasverket revs i samband med att det nya bostadsområdet kom till.
Bibliotek Väster erbjuder förutom bokutlåning även kafé och utställningsverksamhet. Det är också en viktig träffpunkt för besökare i alla åldrar.
Den vackra vildandsparken anlades i slutet av 1960-talet och utformades av stadsträdgårdsmästare Robert Montan och landskapsarkitekt Gunvor Persson.
Trolle-Wachtmeisters Park i kvarteret Skytteln är en ljus och öppen park som upprustades ordentligt för ett par år sedan. De 70 år gamla idegranarna stammades upp och buskar och perenner nyplanterades. I dag är den främst en kvarterspark för de som bor i området, med en lite lugnare östra del och platser för bollspel och lek i den västra.
Värpinge är en relativt ny stadsdel i västra Lund. Stora delar av området byggdes under slutet av 1980-talet. I Värpinge ligger en brittiskinspirerad golfbana med 9 hål. Precis intill finner du Rinnebäcksravinen, en kvarlämning från inlandsisens avsmältning. För några år sedan gjordes ravinen till naturreservat för att bevara dess speciella natur och flora samt hålla den tillgänglig för besökare. I ravinen har kreatur betat fram till 1800-talet vilket bidragit till en mycket vacker flora, väl värd ett besök.
Vill du köpa, sälja eller värdera bostad på Väster i Lund? Kontakta Bjurfors mäklare i Lund! Passa också på att anmäla dig till vår kostnadsfria söktjänst Boagenten som hjälper dig att hitta ditt drömboende.
Kontakta mäklaren om du behöver hjälp att ta fram en boendekalkyl.
När du köper din bostad genom Bjurfors kan du ansöka om bolån till en förmånlig ränta hos vår samarbetspartner SEB.
Ansvarig mäklare