-
Köpa
Köpa -
Sälja
Sälja - Hitta bostad
- Skapa bevakning
- Hitta mäklare
Gavellägenhet på våning 6
Borgmästaregården, Malmö
*I månadsavgiften ingår värme, vatten, kabel-TV och bostadsrättstillägg. Utöver månadsavgiften tillkommer ett obligatoriskt tillägg för bredband på 50 kr/mån. Föreningen har tecknat ett gemensamt elavtal. Fjärravläst mätning tillämpas och korrigeras var tredje månad efter faktisk förbrukning. Den angivna avgiften avser den fr.om 2026-01-01.
**Areauppgifter enligt bostädsrättsföreningen
Förhandsvisning. Anmälan krävs.
På Förhand ligger bostäder som av olika anledningar inte är ute till försäljning just nu men som kan komma att säljas om förutsättningarna är rätt.
Lägenhet med fantastisk utsikt och smakfullt renoverad under 2025
Med Pildammsparkens grönska som närmaste granne och bekvämt gång- och cykelavstånd till city är det lätt att förstå varför Borgmästaregården räknas till ett av Malmös mest eftertraktade områden. Här bor du i ett lugnt och omtyckt kvarter med lummiga innergårdar, välskötta föreningar och närhet till stadens puls. Många av de boende vittnar om den unika kombinationen av rofylldhet och tillgänglighet – ett område där man verkligen trivs och stannar länge.
Nu ges ett sällsynt tillfälle att förvärva denna totalrenoverade gavelfyra, belägen högt upp på våning 6 med fönster i tre väderstreck och en stor inglasad balkong. Bostaden har genomgått en omfattande och smakfull totalrenovering under 2025 där varje detalj har valts med omsorg. Det fria läget ger ett fantastiskt ljusinsläpp och en vidsträckt utsikt som skapar en härlig rymd i hela hemmet.
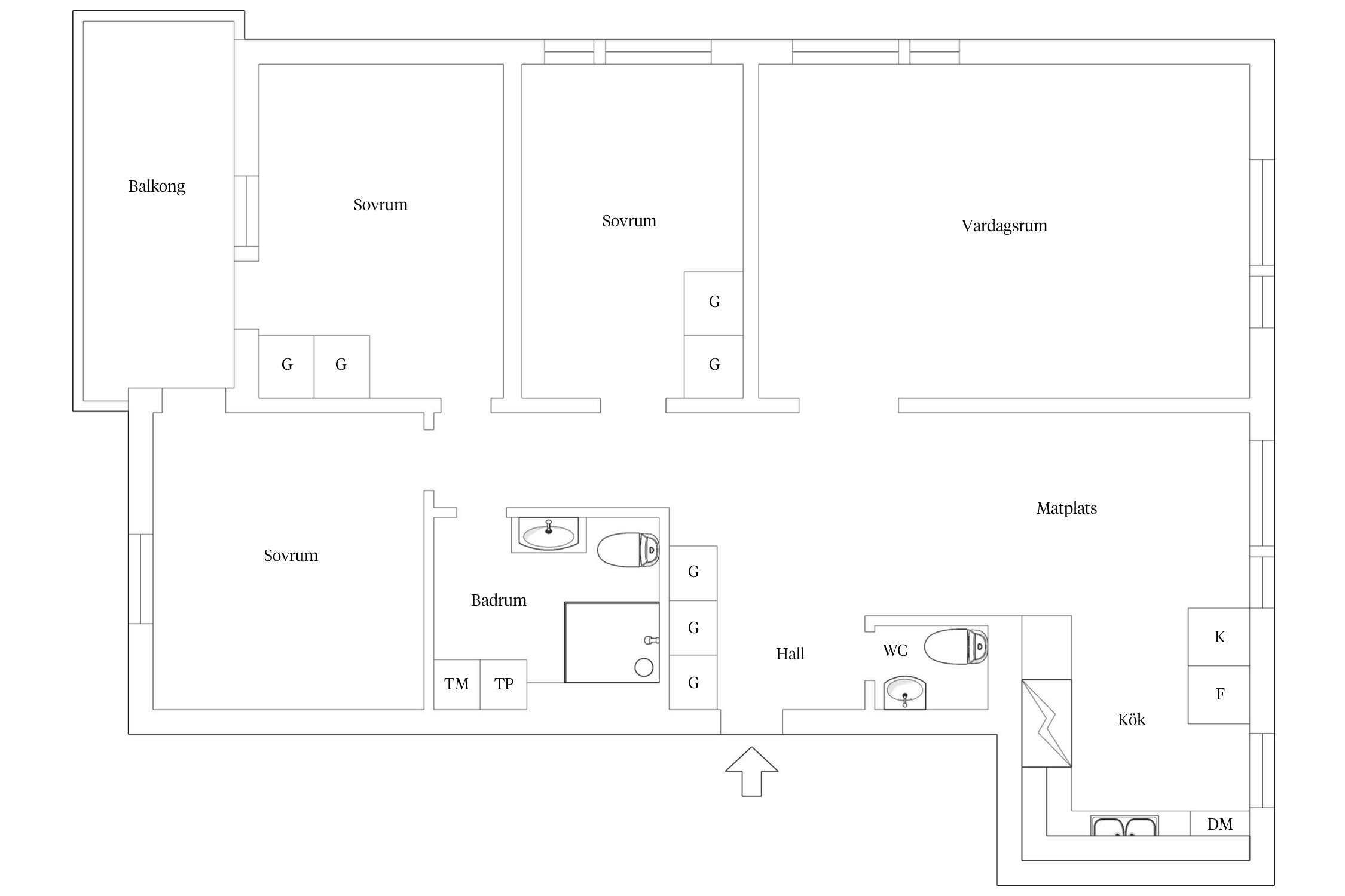
Planlösningen är både funktionell och familjevänlig. Den välkomnande entrén erbjuder generösa förvaringsmöjligheter samt gäst-wc. Till vänster om hallen finns en avskild sovrumsdel med tre rymliga sovrum, samtliga med plats för dubbelsäng och kompletterande förvaring. Det utbyggda badrummet är nästintill dubbelt så stort som originalet och erbjuder modern komfort med golvvärme och egen tvättmaskin och torktumlare.
Köket är stilrent och praktiskt planerat i vinkel med gott om arbetsytor och förvaring, och ligger i direkt anslutning till den rymliga matplatsen som enkelt rymmer 8–10 personer – perfekt för både vardag och fest. Vardagsrummet badar i ljus tack vare fönster i söder och väster och erbjuder generösa ytor för både soffgrupp och extra matplats om så önskas.
HSB Brf Lagmannen är en mycket välskött och stabil förening som redan har genomfört de flesta större renoveringarna. Föreningen har ett eget fastighetskontor med hög servicenivå, gemensamt med grannföreningarna Domaren och Notarien. De lummiga gårdarna erbjuder nyrenoverade lekplatser, och ytterligare temalekplatser finns i direkt anslutning i Pildammsparken – ett område som passar lika bra för barnfamiljen som för den som lämnar villalivet men vill behålla generösa uteytor i form av balkong.
Mobilia ligger endast några hundra meter bort och erbjuder ett brett utbud av shopping, service och restauranger. Med cykel eller buss når du snabbt Hyllie, Emporia och Malmö Arena. I närområdet finns även Annebergsskolan (F–6), utmärkta träningsmöjligheter i Pildammsparken, SATS på Mobilia samt Friskis & Svettis vid Stadion. Föreningen erbjuder dessutom ett gemensamt gym med bastu till en mycket låg årskostnad.
Utmärkta kommunikationer finns runt hörnet med busslinje 3 och 6, och på kort promenadavstånd når du Triangeln med Citytunneln – perfekt för dig som pendlar.
Ett hem att trivas i under lång tid – varmt välkommen att boka din visning!
Hall
Välkomnande och rymlig hall med klinkergolv i entrén och bredspacklade väggar. I övriga delar av bostaden ligger en elegant vitbetsad ekparkett (3 mm). Här finns en stor och praktisk garderob som ger gott om förvaring. Redan i hallen möts ni av ett härligt ljusinsläpp och en fin utblick genom gavelfönstret mot Hyllie vattentorn.
Gästtoalett
Stilren, helkaklad gästtoalett utrustad med vägghängd WC. Praktisk och snygg nisch med integrerad belysning, handfat samt spegel.
Kök
Smakfullt och modernt kök med gråbeige köksluckor och bänkskiva i ek. Köket totalrenoverades under 2025 och erbjuder generösa arbetsytor. Fullt utrustat med hel kyl och frys, diskmaskin, häll, ugn, mikro samt fläkt. I direkt anslutning finns en rymlig matplats med gott om utrymme för större middagsbjudningar.
Vardagsrum
Ljust och välplanerat vardagsrum med plats för både soffgrupp och övrigt möblemang. Fönster i två väderstreck skapar ett härligt ljusflöde och en trivsam atmosfär.
Badrum
Stort och påkostat badrum som totalrenoverades och byggdes ut under 2025 till nästan dubbla ytan. Utrustat med vägghängd WC, elektrisk golvvärme, tvättmaskin och torktumlare, två elektriska handdukstorkar, takdusch, handfat samt spegelskåp. Infällda spotlights i taket bidrar till en modern och exklusiv känsla.
Sovrum 1–3
Tre välplanerade sovrum, varav två med garderober. Samtliga rum har vitbetsad parkett och bredspacklade väggar. Från två av sovrummen nås den inglasade balkongen.
Balkong
Fantastisk inglasad balkong med generösa glaspartier och fin utsikt. En underbar plats att njuta av stora delar av året – bättre än så blir det inte.



*Areauppgifter enligt bostädsrättsföreningen
I månadsavgiften ingår värme, vatten, kabel-TV och bostadsrättstillägg. Utöver månadsavgiften tillkommer ett obligatoriskt tillägg för bredband på 50 kr/mån.
Föreningen har tecknat ett gemensamt elavtal. Fjärravläst mätning tillämpas och korrigeras var tredje månad efter faktisk förbrukning.
Den angivna avgiften avser den fr.om 2026-01-01.
2025 Ny gästtoalett
2025 Ombyggnad av badrum
2025 Nytt kök
2025 Nya ytskikt
2025 Nya golv vitbetsade 3-stav
2025 Nytt kök
2025 Omdragen el och nytt elskåp
Förråd finns
Bostadsrättens indirekta nettoskuldsättning baseras på föreningens skulder/lån minus föreningens räntebärande tillgångar och likvida medel. Beräkningen är gjord via Bopedia. För mer information kontakta ansvarig fastighetsmäklare.
*Betalas av köpare
HSB Brf Lagmannen registrerades 1962 och omfattar förvaltningen av fastigheterna Lagmannen 3, Länsmannen 1-3 samt Rådmannen 1, 2 & 4. I föreningen finns 490 bostadsrättslägenheter som fördelar sig på 10 bostadshus och 7 hyresrättslokaler. Föreningens fastigheter är upplåtna med tomträtt. Nuvarande tomträttsavtal omförhandlades 2019 och gäller t o m 2029-12-31.
Köparen/köparna måste vara medlemmar i HSB innan beslut om medlemskap i föreningen tas. Andelsavgift i HSB kostar ca 500 kr/person och en årsavgift tas ut om 300 kr/hushåll. Ansökan om medlemskap görs på https://www.hsb.se/malmo/medlem/
HSB sköter den ekonomiska förvaltningen.
Föreningen höjde avgifterna med 2% 2025-01-01.
Föreningen kommer höja avgifterna med 2% 2026-01-01.
Fastigheterna är fullvärdesförsäkrade hos Länsförsäkringar. I föreningens fastighetsförsäkring ingår bostadsrättstillägg för föreningens lägenheter (kontrollerat 2025-10-22).
Utförda renoveringar:
2005 Balkongerna har byggts ut och glasats in. Nya elcentraler i lägenheterna.
2007-2008 Tvättstugorna är renoverade med nyare maskiner. Källargångarna och trapphusen är renoverade.
2015 Föreningens miljöhus blev färdigbyggt och hissarna i höghusen renoverades. Upprustning av utemiljön med bland annat ny lekplats och utebelysning. Nya värmeväxlare och tilläggsisolering i taken.
2016 Tvätt och underhållsbehandling av fasaderna på höghusens södergavlar.
2017-2018 Relining av vattenstammar och avloppsstammar (slutfört oktober 2018). Fasadkomplettering.
2020 Renovering av fasad.
2024 - Renovering av fönster.
2024 - Hissarna har renoverats
2025 - Samtliga entrépartier är utbytta i höghusen
2025 - Modernisering av belysning i trapphus och källare.
Kommande och pågående renoveringar (kontrollerat 2025-10-22):
Föreningen har börjat planera för takbyte och ev montering av solceller. Renoveringen planeras starta under 2027 (kan bli i slutet på 2026 redan).
Det finns en upprättad underhållsplan som föreningen följer.
Föreningen tillhandahåller 275 parkeringsplatser utomhus som kan hyras för 300 kr/mån. Till parkeringsplatserna är det separat kö. I dagsläget är det ca 30 medlemmar i kö.
Föreningen har även installerat 32 laddplatser. Laddplatserna hyrs endast ut till medlemmar som redan har en parkeringsplats. Tillkommande hyra för laddplats är 250 kr/mån + elavgift (kontrollerat 2025-10-22).
Kommunal boendeparkering finns i området.
TV: Föreningen är ansluten till kabel-TV via Sydantenn.
Internet: Bredband levereras av Ownit. Hastighet: 1000/1000 Mbit/s. För detta utgår en obligatorisk kostnad om 50 kr/mån (kontrollerat 2025-10-22).
Föreningen erbjuder en härlig gårdsmiljö med mycket grönska, lummiga uteplatser, gemensamma grillplatser, utemöbler och lekplats för föreningens minstingar.
Föreningen erbjuder totalt 18 tvättstugor som är belägna i källarplan i föreningens olika bostadshus. Vardera tvättstuga är utrustad med två tvättmaskiner, en torktumlare och ett torkrum.
Till samtliga lägenheter tillhör ett källarförråd. Till lägenheterna i åttavåningshusen ingår även ett mindre matkällarförråd.
Föreningen har en övernattningslägenhet som är belägen på Annebergsgatan 3A. Lägenheten har 6 bäddar och går att hyra mot en avgift på 400 kr/natt. Om man väntar övernattande gäster går det bra att kontakta fastighetskontoret för bokning av lägenheten.
Det finns även möjlighet till att boka Brf Domaren och Brf Notariens övernattningslägenheter. Dessa har 4 respektive 2 bäddar. Pris för dessa är 400 kr/natt respektive 200 kr/natt.
Fritidslokalen går att hyra för 500 kr. För att boka den vänder man sig till fastighetskontoret.
Gymkort kan köpas på fastighetskontoret. Kostnad: 450 kr/år. Gymlokalen ligger på Annebergsgatan 2.
Föreningen har ett bibliotek som medlemmar kan låna böcker från.
Föreningen utför tillsyn i samband med överlåtelse.
Ovanstående informationen är hämtad från föreningens årsredovisning, hemsida och föreningsrepresentant. Spekulanter uppmanas att kontrollera ovanstående information med representant från föreningen. Besök gärna föreningens hemsida för mer information: http://www.hsb.se/malmo/lagmannen
Det är snudd på omöjligt att tänka sig Malmö utan Ribersborgsstranden. Att leva i storstaden vid Öresund definieras lätt med sommardagar i sanden där. I Västra Innerstaden finns flera exklusiva bostadsområden som ligger precis invid eller med närhet till Ribersborgsstrandens vatten men ändå lugnt och ostört. Här finns bostäder med både citys och naturens alla möjligheter utanför porten året om. Det signalerar livskvalitet på Malmö-vis.
I västra innerstaden är det lätt att finna ro även om citypulsen slår bara några kvarter bort. Något som verkligen kännetecknar området är parkerna. I Malmös största, Pildammsparken, utnyttjas varje meter fullt ut. Mellan dammarna, vars innehåll en gång betydde skillnad mellan liv och död för stadens folk, ringlar motionsspår. Nu spelas här utomhusteater och man kan både ta en fika och träna på utegymmet i parken. Malmö stad har i flera områden byggt upp temalekplatser åt barnen, här ligger Spindellekplatsen tänkt för de minsta.
Fridhem, som ligger i Slottsstaden, är ett av Malmös allra mest attraktiva bostadsområden. Husen är eleganta och skolorna i närområdet utmärkta. Ribersborgsstranden och det vackra Kallbadhuset, som uppfördes 1898 och är klassat som byggnadsminne, ligger bara ett stenkast bort. Att ta ett vinterdopp från bryggan och sedan värma sig i bastun är tradition för många.
Västra Innerstaden är stor till ytan och rymmer många bostadsområden som alla har sin karaktär. Västervång ligger söderut längs Ribersborgstranden. Flera områden följer sedan inåt Malmö Centrum och Kronprinsen där kvarteren idag är mycket livliga. Skyskrapan skulle bli en stad i staden med butiker och service för de boende. Bostadsområden som Rönneholm, Dammfri, Lorensborg och Nya Bellevue ligger alla med närhet till Pildammsparken och Stadionparken.
Om man vill bo centralt i villa eller småhus i Malmö är Solbacken ett givet val. I charmiga Solbacken spänner stilarna över de senaste hundra åren då förtätning skett. Det var här som de första funkisvillorna Malmö byggdes och hela området är inbäddat i lummig grönska. Området länkas ut mot kusten till Mellanheden där flerfamiljshusen byggdes efter idén om ’hus i park med tillgång till ljus och luft’.
Populära Friluftsstaden var länge ett av Malmös mest välkända områden. Det tog form under 1940-talet och radhusens nyskapande finesser som sopnedkast direkt vid köksbänken och inbyggda skohyllor gjorde att det fick stor internationell uppmärksamhet.
Vill du köpa, sälja eller värdera bostad på Borgmästargården? Kontakta Bjurfors mäklare på Malmö City! Passa också på att anmäla dig till vår kostnadsfria söktjänst Boagenten som hjälper dig att hitta ditt drömboende.
Kontakta mäklaren om du behöver hjälp att ta fram en boendekalkyl.
När du köper din bostad genom Bjurfors kan du ansöka om bolån till en förmånlig ränta hos vår samarbetspartner SEB.
Förhandsvisning. Anmälan krävs.
Ansvarig mäklare