-
Köpa
Köpa -
Sälja
Sälja - Hitta bostad
- Skapa bevakning
- Hitta mäklare
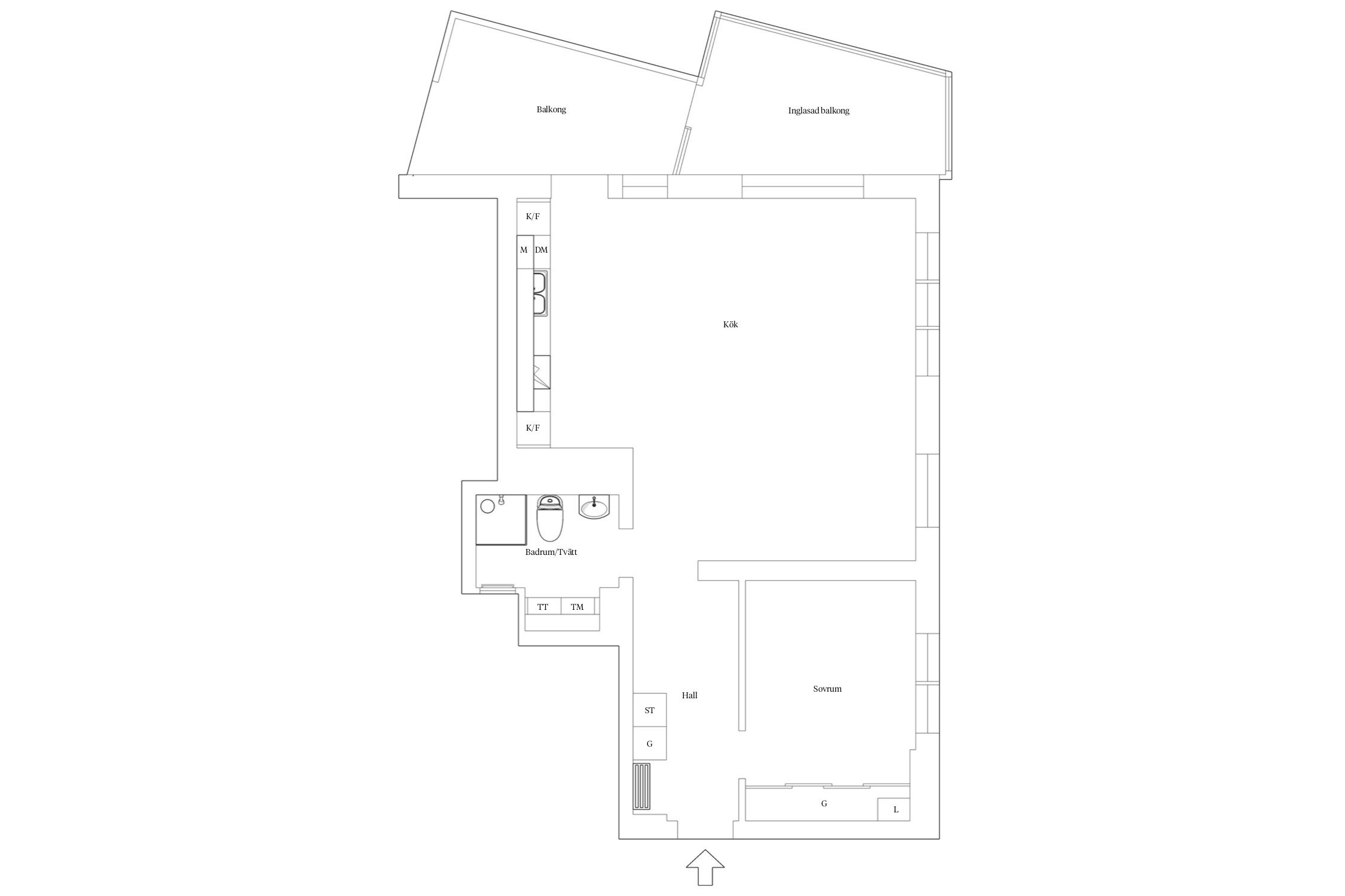
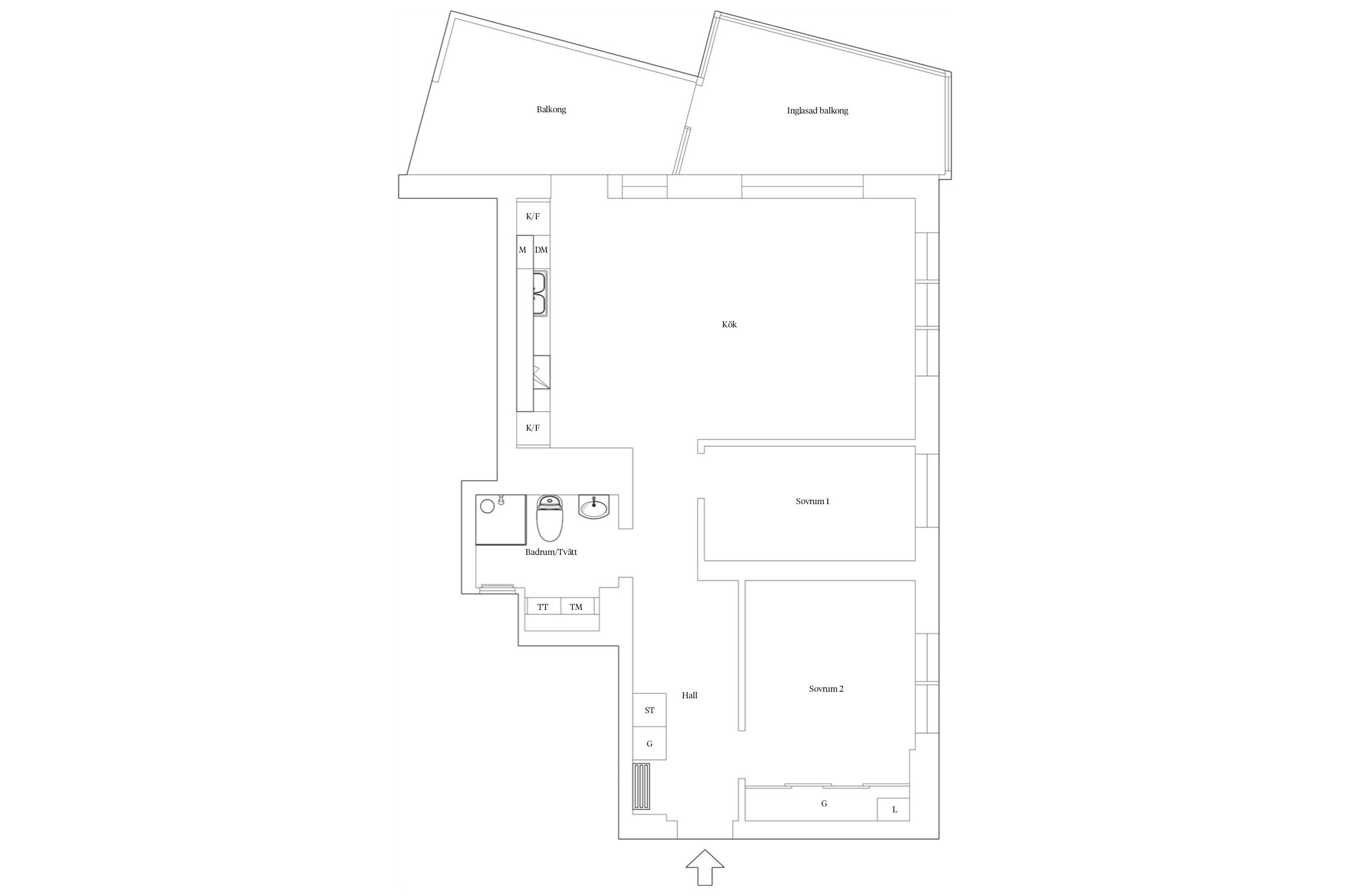
Hörnlägenhet med två balkonger. Möjlig trerummare!
Dockan, Malmö
*I avgiften ingår värme, kallvatten och TV. Det tillkommer en obligatorisk kostnad avseende bredband om 220 kr/mån samt schablonsbelopp avseende varmvatten och hushållsel.
**Uppgifter enligt bostadsrättsföreningen
Registrerad som 3 rok i lägenhetsutdraget
På Förhand ligger bostäder som av olika anledningar inte är ute till försäljning just nu men som kan komma att säljas om förutsättningarna är rätt.
Välkommen till en utmärkt hörnlägenhet med påkostade tillval. Två balkonger i västerläge.
Utmärkt hörnlägenhet med två balkonger i omåttligt omtalade Docks, med fasader i stål och glas ger arkitekturen ett uttryck som är skarpt, nyanserat och förankrat i platsens historia. På sjunde våningens nordvästra hörn ligger denna rymliga tvåa som enkelt kan blir en trea om ett sovrum till önskas (se alternativ planskiss). Här njuter du av marin utsikt, balkongyta om totalt ca 23 kvm och påkostade tillval. Bostaden fördelar sig över hall med förvaring, rymligt sovrum med garderobsvägg, otroligt smakfullt kök i valnöt med bänkskiva och stänkskydd i kompositsten, vardagsrum i öppen planlösning med ljusinsläpp från två håll samt stilfullt badrum med golvvärme och tvättmöjligheter. Bostaden har utrustats med plankgolv i ljus ek, dimmbar belysning och massiva innerdörrar. I väster ligger två sammanhängande balkonger där den ena är inglasad och den andra är öppen.
Hall
Hallen välkomnar på bästa sätt med säkerhetsdörr, gott om förvaring och plankgolv i ljus ek som följer oss genom hela bostaden.
Badrum
Påkostat badrum med Klinker Statuario matt på golv och Klinker Statuario blank på väggarna. Tvättmöjligheter i form av tvättmaskin och torktumlare. Spotlights i tak och golvvärme.
Badrummet är utrustat med WC, väggskåp, spegel och spegelskåp, kommod, duschhörna med glasade dörrar och torkställning/handdukstork.
Sällskapsrum
Inbjudande stort socialt rum med plangolv i ek. Sällskapsavdelningen bjuder på ett härligt ljusflöde tack vare stora fönsterpartier i två väderstreck. Här förenas kök och vardagsrum i en social, öppen planlösning. I vardagsrummet finns det gott om plats för soffgrupp, mediamöbler och läshörna. Väggarna i kök och vardagsrum är målade i vitt. Från vardagsrummet nås balkongerna som vetter mot marinan i väster.
Kök
Lyxigt kök från Vedum. Köksluckor i valnöt kombineras snyggt med kompositbänkskiva och komposit calypso som stänkskydd. Bra arbetsyta erbjuds i köket och maskinerna håller god kvalitet. Dessa består av häll, ugn, mikrovågsugn, två integrerade kyl och frys, integrerad diskmaskin och fläkt.
Sovrum
Sovrummet ligger mysigt placerat mot gården. Plankgolv i ljus ek möter vita väggar och här finns plats för dubbelsäng, sängbord och bra förvaring i form av skjutdörrsgarderob.



*Uppgifter enligt bostadsrättsföreningen
Registrerad som 3 rok i lägenhetsutdraget
I avgiften ingår värme, kallvatten och TV. Det tillkommer en obligatorisk kostnad avseende bredband om 220 kr/mån samt schablonsbelopp avseende varmvatten och hushållsel.
Till bostadsrätten ingår ett källarförråd.
Två balkonger, varav en är inglasad. Västerläge.
Bostadsrättens indirekta nettoskuldsättning baseras på föreningens skulder/lån minus föreningens räntebärande tillgångar och likvida medel. Beräkningen är gjord och baseras enbart på denekonomiska planen. För mer information kontakta ansvarig fastighetsmäklare.
*Betalas av köpare
Med Docks får Malmö ett nytt landmärke. På Krankajen bygger JM två torn med 18 respektive 26 våningar och 157 bostäder. Med fasader i stål och glas ger arkitekturen ett uttryck som är nyanserat med platsens historia. Bostädernas inglasade balkonger svävar över Dockan likt kontrollhytterna på de kranar som en gång syntes på Kockumsvarvet. En annan trevlig detalj är att byggnaderna tycks smälta samman i vissa vinklar.
Docks 157 bostäder kommer att delas upp i två koncept - Docks JM Original, består av 151 bostäder 1-5 rok och Docks Premium som består av 6 bostäder 4-5 rok. 117-201 kvm. Föreningen har även sex lokaler för uthyrning i gatuplanet (tre lokaler för butik, en för café, en för restaurang samt en för kontor)
Föreningens adresser är Dockplatsen 5-9 och Isbergs gata 30-42.
https://docks.smartbrf.se/
https://www.jm.se/skane-lan/malmo-kommun/dockan/docks/
Ekonomisk förvaltare är JM.
I dagsläget finns inga beslut om kommande avgiftsförändringar (kontrollerat 2025-12-02).
IMD
Föreningen har individuell mätning av varmvatten och hushållsel. Medlemmarna betalar sin del till föreningen enligt tariff som föreningen beslutar.
Fastigheten är fullvärdesförsäkrad. Försäkringen inkluderar bostadsrättstillägg för föreningens medlemmar och ansvarsförsäkring för styrelsen.
Då bostäderna färdigställdes 2024/2025 finns inga planerade renoveringar.
Enligt den ekonomiska planen finns 30 garageplatser i föreningens underjordiska garage, 1 öppen HKP parkeringsplats, 11 MC-platser samt 90 garageplatser i närliggande P-huset Ubåten.
Kostnad för garageplats i föreningens underjordiska garage: 1900-2000 kr/mån + elförbrukning.
Kostnad för garageplats i P-huset Ubåten: 1100 kr/mån
Alla föreningens garageplatser är laddplatser och det krävs att man har elbil eller laddhybrid.
* Elbil = Elbilen drivs av en eller fler elmotorer som enbart körs på el från ett batteri. Batteriet laddas i elnätet.
* Laddhybrid = Laddhybrider har ett batteri som kan laddas från elnätet. Laddhybrider tankas därutöver med drivmedel.
Vid överlåtelse kan ny ägare först ställa sig i kö fr o m tillträdesdagen.
Inga parkeringsplatser går att överta så som det ser ut i dagsläget.
Föreningen är ansluten till TV, bredband (hastighet: 1000/1000 Mbit/s) och telefoni via Telia Play. För detta utgår en obligatorisk kostnad som tillkommer utöver månadsavgiften (samtalskostnad för IP-telefonin tillkommer).
På plan 5 finns ett gemensamt område med trädgård och terrasser.
Det finns två övernattningsrum som kan hyras av medlemmarna (kostnad 400 kr/natt).
Cykelparkering finns i separat cykelrum i två plan (nås från entréplan) samt platser på förgårdsmark.
Rullstols- och Permobilparkering med möjlighet till laddning och barnvagnsparkering finns i källare i låsta förrådsutrymmen.
Ett förråd per lägenhet är upplåtet med bostadsrätt.
Det finns 20 extra förråd att hyra (storlek varierar från ca 1 kvm till ca 11 kvm). Kösystem tillämpas.
Information som berör föreningen är inhämtad via årsredovisning, ekonomisk plan, stadgar, föreningens hemsida och kontakt med föreningen. Avvikelser kan förekomma och som köpare uppmanas du att själv kontrollera samtliga uppgifter, framförallt om något är av extra stor betydelse för dig som köpare.
Föreningens hemsida: https://docks.smartbrf.se/
JMs projektsida: https://www.jm.se/skane-lan/malmo-kommun/dockan/docks/
Dockan har vuxit fram till ett område som sjuder av liv. Under sommarhalvåret samlas människor som bor och arbetar i området kring Dockan Marina. Här ligger båtarna på rad och känslan av en trendig internationell Marina infinner sig. Här ligger kontorsbyggnader, lägenheter och restauranger granne med varandra och bjuder in till härlig miljö att bo och leva i. Granne med Dockan ligger välkända Västra Hamnen som stoltserar med landmärket Turning Torso.
Områdets namn, ”Dockan” är hämtat från förr då just varvsindustri och Kockums dominerade kustområdet. Nu är det ett trevligt bostadsområde som definieras av flervåningshus med närkontakt till vattnet, restauranger och en fri sikt ut mot horisonten. Den ursprungliga båtdockan har återanvänts och förvandlats till en attraktiv småbåtshamn. Man kan som boende parkera båten utanför porten.
Blandningen av gammalt och nytt är ledord i utformningen av Dockans miljö och flertalet äldre byggnader har fått nya användningsområden. Studenter blandas också med kontorsanställda då många små företag men även större internationella sådana har kontor i området. Även Bjurfors har sitt huvudkontor här.
Ambitionen att skapa en levande stadsdel infriades verkligen. Idag är Dockan med sin granne Västra Hamnen ett mycket attraktivt bostadsområde där förskolor och skolor hör till Malmös mest uppskattade. Här finns också all service, som t ex apotek, gym och matbutiker. Även flera topprestauranger har etablerat sig här lockade av möjligheten att bjuda gästerna på en upplevelse utöver det vanliga. Det är också enkelt att vara nära naturen i Dockan. De boende uppskattar möjligheten att ta ett kvällsdopp vid Scaniabadet och njuter av solnedgången i sundet vid Öresundsbron.
Vill du köpa, sälja eller värdera bostad i Dockan? Kontakta Bjurfors mäklare på Malmö City! Passa också på att anmäla dig till vår kostnadsfria söktjänst Boagenten som hjälper dig att hitta ditt drömboende.
Kontakta mäklaren om du behöver hjälp att ta fram en boendekalkyl.
När du köper din bostad genom Bjurfors kan du ansöka om bolån till en förmånlig ränta hos vår samarbetspartner SEB.
Ansvarig mäklare