-
Köpa
Köpa -
Sälja
Sälja - Hitta bostad
- Skapa bevakning
- Hitta mäklare
Unik etagevåning mitt i city
Drottningtorget, Malmö
*I avgiften ingår vatten och uppvärmning av bostadens nedre plan. Bostadens övre plan och loft, den s k vindsdelen, värms upp av el som bekostas av bostadsrättsinnehavaren. Av denna anledning har lägenheten reducerad månadsavgift för vindsdelen. Den reducerade avgiften är inräknad i den redovisade månadsavgiften. Utöver månadsavgiften tillkommer en obligatorisk kostnad om 200 kr/mån avseende bredband.
**Areauppgifter enligt bostadsrättsföreningen
Bokad visning.
På Förhand ligger bostäder som av olika anledningar inte är ute till försäljning just nu men som kan komma att säljas om förutsättningarna är rätt.
På oslagbart cityläge finner du denna unika vindsvåning i etage med fantastisk utsikt, 9 meter i takhöjd och generösa ytor fördelat på två plan och loft.
I denna bostad är superlativen egentligen alldeles onödiga. När du gör entré i våningen förstår du. En så välkomponerad mix av modernt och välbevarat original är svårfunnet, precis som den generösa ytan. Våningen är placerad på insynsskyddat läge högst upp i en ståtlig jugendfastighet som ger dig storslagna vyer över kanalen och innerstadens takåsar.
På två våningsplan och ett arkitektritat loft uppvisas modern skandinavisk design när den är som bäst. Brädgolven och de synliga takbjälkarna minner om genuint hantverk medan moderna, platsbyggda lösningar och industriella glasväggar tar oss in i nutiden. En enhetlig skala av färger genomsyrar hela bostaden och ger harmoni. Det massiva ljusinsläppet och tilltagen takhöjd får bostaden att bada i ljus. Matsalen imponerar alldeles särskilt där taket är öppet hela vägen upp till nock och når en svindlande takhöjd om hela 9 meter.
Grannskapet består av S:t Gertruds idylliska kvarter med kullerstensbelagda innergårdar, medeltida korsvirkeshus och kanalvatten. På morgonen kan du kila ner runt hörnet och köpa nybakta croissanter. På kvällen finns ett otal restauranger att välja på. På somrarna avnjuts dock gärna måltiderna på den mysiga innergården som ligger i skyddat läge. Bekväma detaljer som hiss, ett stort vindsförråd i direkt anslutning till bostaden, tvättmöjligheter i lägenheten och en flexibel planlösning gör bostaden fulländad. Fastigheten sköts dessutom av en solid förening med stabil ekonomi och sund belåning.
Välkommen på visning!
HISTORISKT KVARTER
Mellan Norra Vallgatan vid kanalen och Östergatan finner du den lilla gränden Bagersgatan, som är uppkallad efter Bagerska gården från 1700-talet. Intill ligger det idylliska kvarteret S:t Gertrud med välbevarade korsvirkesgårdar och innergårdar som är Malmös äldsta område. Det är ingen slump att byggnadsvårdsbutikerna har placerat sig just här. På hörnet mot Norra Vallgatan och blicken mot kanalen, finns den vackra fastigheten som byggdes 1909. Det korallfärgade huset är byggt i karaktäristisk jugendstil med putsad fasad, organiska utsmyckningar, rundade burspråk och stora fönsterpartier med småspröjsad ovandel.
Läget är optimalt, precis intill Malmös vackra kanal. En kortare promenad tar dig till stadens breda utbud av butiker och restauranger. Runt hörnet väntar goda kommunikationsmöjligheter via buss samtidigt som du befinner dig på kort promenadavstånd från pendlarvänliga Centralstationen och Citytunneln. I bostadens omedelbara närhet finns även köpcentret Caroli med Ica Malmborgs, apotek, restauranger med mera. Detta är ett optimalt boende för den bekväma citymänniskan som inte vill göra avkall på sina boendekrav. På innergården njuter du av härliga grillkvällar tillsammans med dina nära och kära under sommarhalvåret. En ljum sommarkväll på gården, glömmer du lätt att du faktiskt befinner dig mitt i city.
FÖRR OCH NU
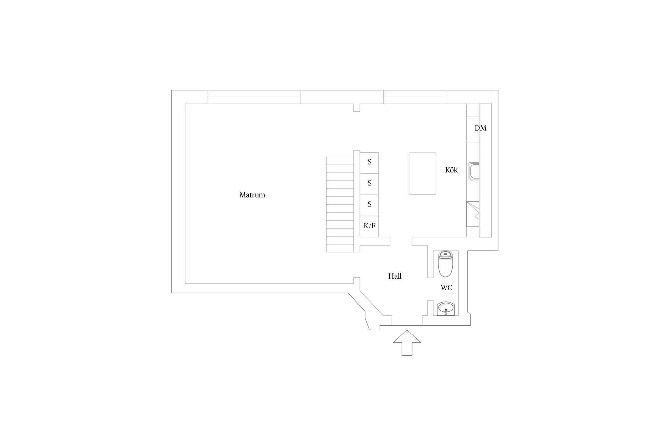
Ett tidstypiskt trapphus med bevarade takmålningar och marmorväggar välkomnar dig. Hissen tar dig hela vägen upp till våning 5 där du möts du av ett vackert mönstrat originalgolv av viktoriansk klinker. En djupt vinröd säkerhetsdörr med tidsenliga speglar släpper in dig i en ljus hall med ett bevarat brädgolv och vita, släta väggar. Det finns gott om plats för avhängning av ytterkläder. Till höger finns ett smakfullt gäst-wc med handfat, spegel och wc. På golvet ligger marmor i fiskbensmönster och väggarna är släta och vitmålade. Taket har infällda spotlights.
Från hallen kommer du vidare in till kök och matsal. I dessa rum ligger samma typ av vackra, vitbetsade brädgolv som återfinns i hallen. Väggarna är släta och målade i vitt och mörkgrått. I taket finns tidsenlig takstuckatur och lamprosett som förstärker sekelskiftescharmen. De väl tilltagna fönsterpartierna ger ett underbart ljusinsläpp och fantastisk utsikt över såväl Malmö Lives ståtliga topp som S:t Gertruds tegeltak.
HÖGT I TAK
Köksinredningen består av högblanka vita köksluckor samt förvaring i under- och överskåp. Ovanför den rostfria arbetsbänken finner du ett stänkskydd i glas. I köket finns även en praktisk köksö som pryds av en vacker bänkskiva i kvartskomposit från Silestone. Köksutrustningen består av varmluftsugn (Electrolux -22), kolfilterfläkt (Smeg), induktionshäll (Gram -23), kombinerad kyl/frys (Siemens) och diskmaskin (Bosch).
Matsalen imponerar med ett magnifikt ljusinsläpp och en ljuvlig känsla av rymd. I en del av rummet är det öppet helt upp till nock vilket innebär en fascinerande takhöjd på cirka 9 meter. Här är det lätt att duka upp till många middagsgäster och samtidigt vara social under matlagningen. Två av väggarna har målats mörkgråa medan de andra är vita vilket får snickerierna att framhävas desto mer. En läcker trappa med räcke av galvaniserat stål och trappsteg av trä visar vägen upp till ovanvåningen.
MAGISKA SOLNEDGÅNGAR
Direkt när du kommer upp från trappan möts du av en underbar sällskapsavdelning med storslagen takhöjd, synliga takbjälkar och en fungerande braskamin av gjutjärn. Atmosfären är både trivsam och ytterst smakfull. Samtliga rum på detta plan har plankgolv av vitbehandlat Redwoodträ och släta vitmålade väggar. Fönsterpartierna i väster erbjuder en ljuvlig utsikt över takåsar, kanal och hav. Här utspelas ofta ett magiskt färgspel när solen går ner över stan och vattnet. I anslutning till öppningen till nedre plan finns platsbyggd förvaring för bland annat ved. Tack vare de luftiga ytorna har sällskapsrummet oändliga möbleringsmöjligheter. Det är enkelt att få plats med soffgrupp, loungemöbler och arbetsplats på en och samma gång. En spiraltrappa visar vägen upp till loftet. I anslutning till sällskapsrummet finns en dörr som leder dig direkt till bostadens ca 22 kvadratmeter stora vindsförråd.
ROFYLLDA RUM
En industriell vägg av smide och glas från Vallonia avskiljer sällskapsrummet och master bedroom. Sovrummet är av god storlek med plats för dubbelsäng, sängbord och förvaringsmöbler. Ovanför detta rum finns ett loft som nås från vardagsrummet.
På motsatt sida finns ytterligare ett sovrum och badrum med tvättmöjligheter. Badrummets väggar och golv är klätt med aquafärgad mosaik och taket har infällda spots. Elektrisk värme i golvet ser till så att du inte får kalla fötter. Badrumsutrustningen består av wc, kommod med handfat, spegel, badrumsskåp, dusch med glasdörr, elektrisk handdukstork, tvättmaskin (Samsung -24) och torktumlare (Electrolux).
I anslutning till badrummet ligger ett sovrum som i dagsläget används som tonårsrum. Här är två väggar är vitmålade och två väggar är målade i en behaglig beige nyans. Takfönstret skänker ett behagligt ljusflöde till rummet.
Via spiraltrappan i sällskapsrummet nås det arkitektritade loftet som är placerat ovanför sovrummet. I dagsläget används loftet som ett sovrum men det lämpar sig även utmärkt som allrum, arbetsrum eller gästrum. Ljusinsläpp kommer från ett ej öppningsbart takfönster. Under fötterna vilar ett vitbehandlat trägolv av furu från Kährs. Väggarna är vitmålade och släta. Ett harmoniskt extrarum för avkoppling.
Övrigt:
2019: Uppfräschning av vindsförrådet.
2019: Byggnation av köksö med stomme och skåp från IKEA samt bänkskiva i kvartskomposit från Silestone.
2019: Byte av lägenhetens samtliga vägguttag samt strömbrytare (förutom dimmer i hall, strömbrytare på gäst-wc samt strömbrytare i badrum).
2020: Uppdatering av badrum (ny badrumsinredning från IKEA, installation av handdukstork, montering av avdelare till tvättpelare och ny duschdörr).
2020: Nytt marmorgolv till hemmets gäst-wc.
2021: Byte av samtliga element på övre plan.
2021: Ny fönsterbräda på övre plan.



Nedre plan
Övre plan
Loft
Lorens Bager 2
*Etagelägenhet.
**Areauppgifter enligt bostadsrättsföreningen
I avgiften ingår vatten och uppvärmning av bostadens nedre plan. Bostadens övre plan och loft, den s k vindsdelen, värms upp av el som bekostas av bostadsrättsinnehavaren. Av denna anledning har lägenheten reducerad månadsavgift för vindsdelen. Den reducerade avgiften är inräknad i den redovisade månadsavgiften. Utöver månadsavgiften tillkommer en obligatorisk kostnad om 200 kr/mån avseende bredband.
Till bostaden hör ett stort vindsförråd om ca 22 kvm. Förrådet ligger i direkt anslutning till bostaden och nås från hemmets övre plan.
Bostadsrättens indirekta nettoskuldsättning baseras på föreningens skulder/lån minus föreningens räntebärande tillgångar och likvida medel. Beräkningen är gjord och baseras enbart på den senaste tillgängliga årsredovisningen. För mer information kontakta ansvarig fastighetsmäklare.
Angiven driftkostnad avser nuvarande ägares snittkostnad för hushållsström (förbrukning + nätavgifter). Observera att bostadens ovanvåning och loft värms upp av elvärme. Kostnaden för detta är inkluderat i den redovisade driftskostnaden.
*Betalas av köpare
Brf Lorens Bager 2 registrerades 1987 och fastigheten förvärvades 1992.
Föreningen upplåter 20 lägenheter med bostadsrätt samt 4 lokaler med hyresrätt.
Den ekonomiska förvaltningen sköts av SBC.
Föreningen höjde månadsavgifterna med 2% fr o m 2026-01-01. I dagsläget finns inga planerade höjningar. Beslut om eventuella höjningar fattas varje höst utifrån ekonomi, kostnader etc (kontroll 2026-05-02).
Föreningen är fullvärdesförsäkrad via Trygg Hansa. I försäkringen ingår ansvarsförsäkring för styrelsen. Medlemmarna tecknar själv bostadsrättstillägg på sin hemförsäkring.
Utförda renoveringar:
2001-2002 Nytt tak.
2002-2003 Nya balkonger och renovering av fasaden mot innergården.
2009-2010 Hiss - Dörrlås och annat i hissen.
2010 Fasadarbete. Porttelefon och portlås - Service och reparation. Centralantenn - Uppdatering och inställning. Hiss - Byte av relä och dörrkontakter.
2011 Byte av elstigare/elstammar till några lägenheter. Rörarbete - Reparation av stamledning i källare
Bredband - Installation i lägenheter.
2012 Byte av termostater i lägenheterna.
2013 Stambyte del
2014 Relining av avloppsstammar.
2014-2015 Klamring takpannor och målning takplåt - Klamring takpannor och målning takplåt.
2015 Underhåll av tak - Målning och renovering takplåt gårdssidan.
2016 OVK-besiktning utfördes. Brandlarm på vind. Styrenhet i hiss. Postskåp utbytt.
2017 Byte av porttelefon
2017-2018 Ventilationen i fastigheten har gjorts vid (anmärkningar från OVK-besiktningen har åtgärdats).
2019 Renovering av trapphuset.
2020 Renovering av fasaden våning 1 mot gatan.
2021 Renovering av fasaden, våning 2 och uppåt.
2021/2022 Renovering och målning av fönster.
2023 Renovering och målning av fönster mot gården.
2024 OVK. Den blev inte godkänd. Föreningen har anlitat en teknisk konsult för att få hjälp att åtgärda.
Planerade renoveringar (kontroll 2026-05-02):
- Föreningen planerar för införande av FNI (fastighetsnära insamling / sopsortering).
- Hissen behöver ses över både kosmetiskt och så att den uppfyller nya lagkrav.
Föreningen tillhandahåller inga egna garageplatser. I området råder kommunal boendeparkering. Gott om boendeparkeringsplatser erbjuds bl a längst med Norra Vallgatan (precis utanför föreningens fastighet). För mer info besök: https://malmo.se/boendeparkering
I Sweco-huset på Drottningtorget finns garageplatser att hyra i mån av plats till en kostnad om ca 1400 kr/mån.
Föreningen är ansluten till bredband via Ownit. Hastighet: 1000 Mbit/s. För detta utgår en obligatorisk kostnad på avin.
Föreningen har inte tecknat något gemensamt avtal för kabel-TV. Det finns istället en centralantenn som kan användas för att teckna boxer-abonnemang. Pris varierar beroende på vilket avtal man tecknar. Medlemmarna kan även teckna eget TV-avtal via Ownit. För mer information besök: https://www.ownit.se/tv/tv-och-play
På innergården finns det en mysig uteplats med möblemang och grillmöjligheter. Cyklar kan parkeras i portgången eller på innergården.
Det finns ingen gemensam tvättstuga i fastigheten då samtliga lägenheter är utrustade med tvättmöjligheter.
Information som berör föreningen är inhämtad via årsredovisning, stadgar och kontakt med styrelsen. Avvikelser kan förekomma och som köpare uppmanas du att själv kontrollera samtliga uppgifter, framförallt om något är av extra stor betydelse för dig som köpare.
Enligt överenskommelse
I Malmö City går livet i takt med storstadens puls med allt man kan önska vad gäller shopping, service, skolor, nöjen, kaféer och restauranger. Samtidigt utmärker sig områden som alla har en egen speciell karaktär vad gäller boende, livsstil och tillgång till de oaser som kan vara lövgröna eller havsblå. Hela Öresundsregionen och särskilt Malmö är attraktivt som bostadsort, populariteten fortsätter att stiga och det är särskilt de centrala delarna som lockar mest.
Det finns över fem kilometer kanaler i centrala Malmö idag och utmed dessa uppskattade vattenvägar finns vägar, parker, kontor och bostadshus. Malmö fick sitt stadsbrev år 1275 och redan då hade bebyggelsen växt utmed vattnet i flera århundraden. Drottningtorget, som uppfördes på 1800-talet, ligger vid det som var dåtidens shoppingområde, ”torggatan” Adelgatan. Nu för tiden hålls här den populära Bondens Marknad där närproducerade varor lyfts fram. Vid torget finns en boulebar samt en populär glassbutik där alla varianter av glass och sorbet tillverkas för hand. Längre österut fanns Slussen och där ligger nu flerfamiljshus uppförda från början av 1900-talet och framåt.
Gamla staden är det område som klarade sig bäst under rivningsboomen på 1970-talet och idag finns det många charmiga flerfamiljshus av äldre sort vid gatorna runt Stortorget och Lilla Torg likväl som nyskapande restauranger som gör avtryck på den gastronomiska kartan. Runt Lilla Torg ligger också flera designbutiker och nöjeslivet är intensivt på sommarhalvåret då uteserveringarna ramar in ytan av kullersten.
Till det gamla Malmö hör också naturligtvis slottet Malmöhus. Det byggdes på 1500-talet och inramas av kanaler och växtlighet. Malmö är känt som ”parkernas stad” och de gröna oaserna med lekparker och kaféer finns i nästan alla områden. Malmöhus ligger i Slottsparken men det finns totalt 15 större parker i staden.
När man bor i Malmö City ligger det mesta bara en promenad eller cykeltur bort. I kvarteren i områden som Lugnet och vid Kapellplan finns flera köpgator och gallerior, t ex Hansacompagniet, Caroli City och Triangeln. I området Rådmansvången, där bostäder blandas med butiker och kontor, finns också en viktig förklaring till varför så många pendlare väljer att bo i Malmö City, nämligen Triangelns tågstation. Den underjordiska kommunikationslösningen stod färdig år 2010 och är nu en av Europas mest trafikerade stationer, då det går både snabbt och smidigt att pendla lokalt och regionalt. På mindre än 30 minuter tar man sig via Kastrup vidare till Köpenhamn.
Vill du köpa, sälja eller värdera bostad vid Drottningtorget? Kontakta Bjurfors mäklare på Malmö City! Passa också på att anmäla dig till vår kostnadsfria söktjänst Boagenten som hjälper dig att hitta ditt drömboende.
Kontakta mäklaren om du behöver hjälp att ta fram en boendekalkyl.
När du köper din bostad genom Bjurfors kan du ansöka om bolån till en förmånlig ränta hos våra banksamarbetspartners Söderberg & Partners och SEB.
Bokad visning.