-
Köpa
Köpa -
Sälja
Sälja - Hitta bostad
- Skapa bevakning
- Hitta mäklare
Havsnära boende på attraktiva Limhamn
Limhamn, Malmö
*areauppgifter enligt faktisk uppmätning
Huset är taxerat som 206 kvm boarea och 124 kvm biarea
Bokad visning.
På Förhand ligger bostäder som av olika anledningar inte är ute till försäljning just nu men som kan komma att säljas om förutsättningarna är rätt.
Huset säljes med friskrivningsklausul
Gedigen familjevilla från 1966 med generösa ytor och attraktivt läge på Limhamn, endast ett stenkast från havet och småbåtshamnen. Bostaden erbjuder stora sällskapsytor med öppen spis, rymligt kök med matplats, ett sovrum och två badrum på bottenplan samt fyra sovrum på ovanvåningen. Därtill tillkommer inredd källare med allrum och öppen spis samt mycket goda förvaringsmöjligheter. Ett välplanerat hem med stor potential i eftertraktat havsnära läge.
Välkommen till detta gedigna och välplanerade hus från 1966, attraktivt beläget på eftertraktade Limhamn, endast ett stenkast från havet och småbåtshamnen. Här erbjuds generösa ytor, en genomtänkt planlösning och ett hem som kombinerar funktion, rymd och ett svårslaget läge.
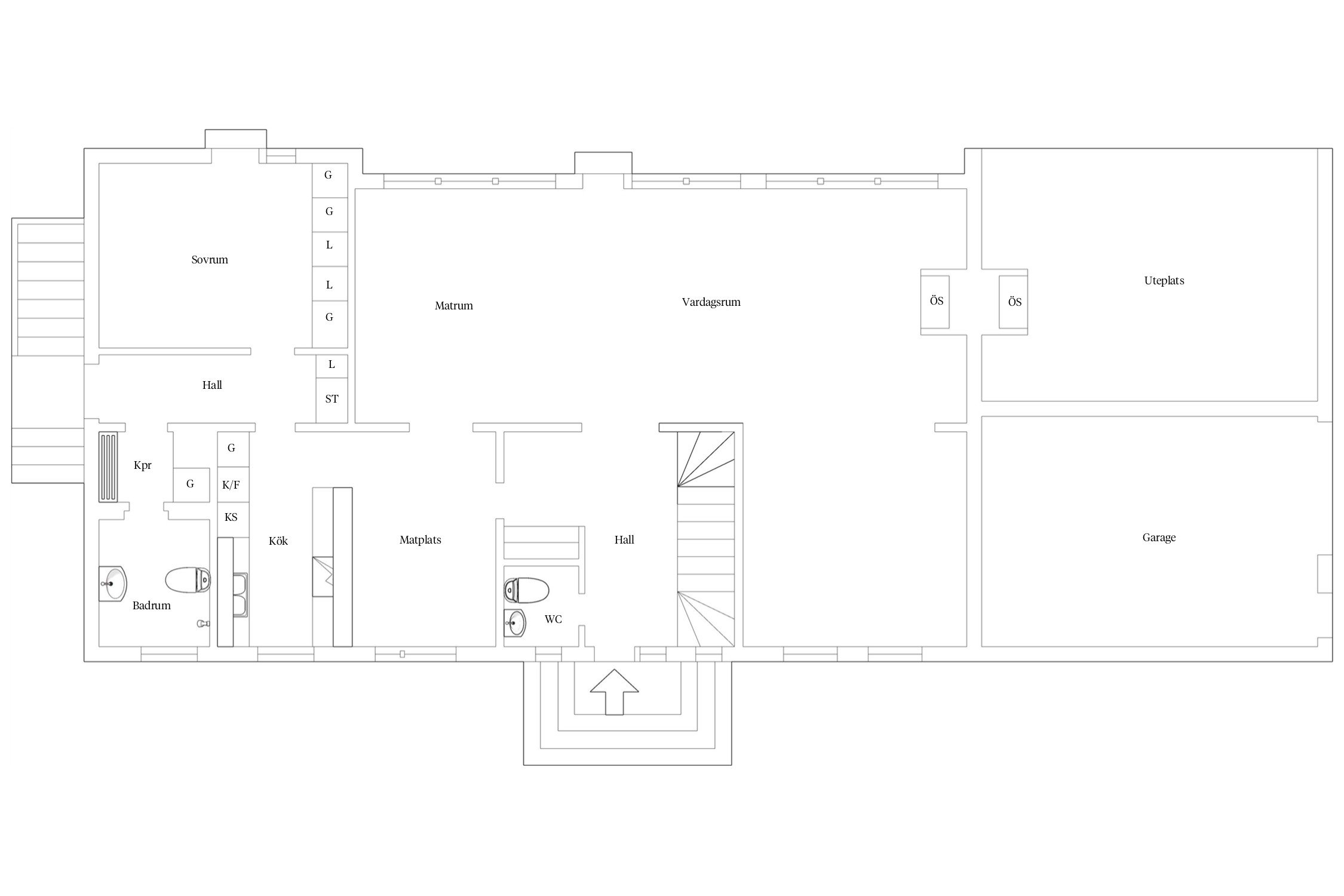
Entrén välkomnar med hall med travertingolv och ljusa, vita väggar som skapar ett stilrent och inbjudande första intryck. I anslutning finns en smakfullt helkaklad gäst-wc i klassiskt vitt och svart. På bottenplanet finns även ett helkaklat badrum utrustat med dusch, wc och handfat – praktiskt och bekvämt för både familj och gäster.
Det rymliga köket erbjuder goda arbetsytor och en naturlig matplats för cirka sex personer. Köket är fullt utrustat med kyl/frys, diskmaskin, ugn med spishäll samt spisfläkt och bjuder in till både vardag och sociala tillfällen.
På bottenplanet finns ett stort sovrum med ekparkettgolv, vita väggar och gott om garderobsförvaring. Härifrån nås även trädgården, vilket ger en fin koppling mellan inne- och utemiljö och möjliggör ett bekvämt boende på ett plan.
Vardagsrummet är mycket generöst tilltaget och disponerat i vinkel, med vacker ekparkett och ljusa väggar. Här finns gott om plats för flera sittgrupper och ett större matbord. Den öppna spisen skapar en varm och inbjudande atmosfär, och även här finns utgång till trädgården som förlänger sällskapsytorna under årets varmare månader.
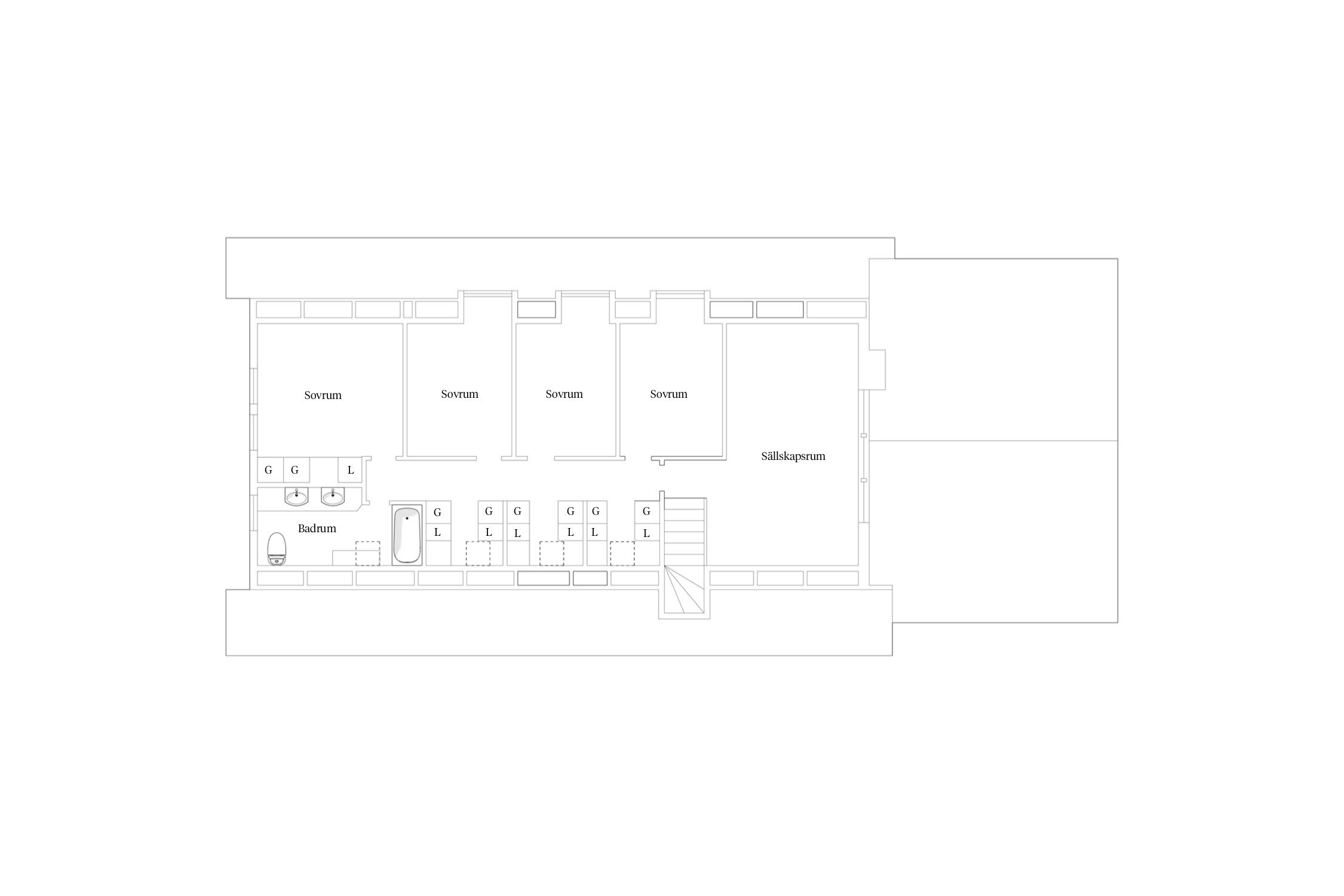
Ovanvåningen erbjuder ett ljust och luftigt allrum med rutmönstrad parkett och vita väggar. De stora fönsterpartierna ger ett rikligt ljusinsläpp. Här finns en separat sovrumsavdelning med fyra sovrum samt en hall med garderober och tre praktiska arbetsplatser – perfekt för arbete eller studier i hemmet.
Det stora, helkaklade badrummet är utrustat med wc, badkar och handfat samt klinkergolv.
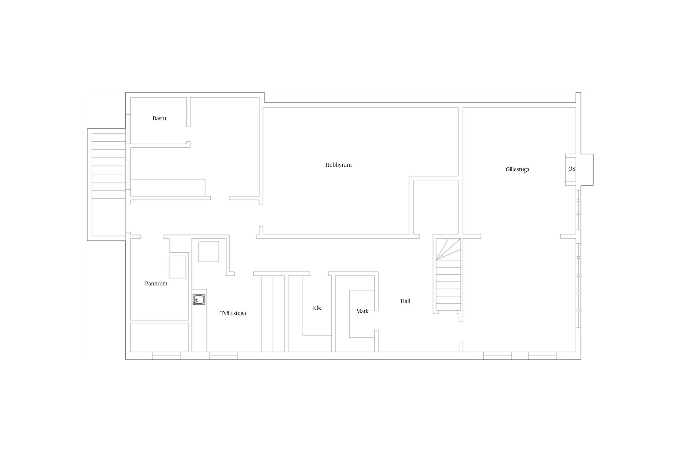
Källarplanet tillför ytterligare generösa ytor med ett allrum med klinkergolv och öppen spis, utmärkt som gillestuga, hobbyrum eller extra sällskapsyta. Här finns även bastu och tvättstuga samt flera förråd och mycket goda förvaringsmöjligheter.
Ett välbyggt hus med stora, flexibla ytor och ett mycket attraktivt läge i Limhamn – ett hem att trivas i och utveckla under lång tid framöver.



Entréplan
Ovanvåning
Källare
Talltitan 1
*areauppgifter enligt faktisk uppmätning
Huset är taxerat som 206 kvm boarea och 124 kvm biarea
Uppvärmning sker via luft/luft-värmepump installerad 2024, placerad i hallen och försörjande samtliga plan, kompletterat med radiatorer kopplade till elpanna NIBE VVM300 (ca 2008–2009)
Ca 1992 Dränerades huset på framsidan
Ca 2000 Renoverades badrummen på entréplan samt på ovanvåningen
Ca 2006 Nytt kök
Ca 2006 Elpanna
Ca 2006 Lades klinkers i tvättstugan
Ca 2006 Ny garageport
Ca 2006 Nya 2-glasfönster
Ca 2011 Nytt papptak på garaget
Ca 2011 Målades dom äldre fönsterna
2024 Luft/luftvärmepump
Eldstäderna är godkända
Garage
Kommunalt vatten, Kommunalt avlopp.
Insynsskyddad och grönskande tomt i soligt söderläge, med både generös gräsmatta och stenlagd uteplats under tak – perfekt för såväl lek som avkoppling. Den öppna spisen utomhus skapar härlig stämning och gör trädgården till en naturlig förlängning av hemmets sällskapsytor.
Garage och uppställningsplats för två bilar.
Tomtindelning (1965-01-20) Stadsplan (1942-02-20)
Uppvärmning inkluderar hushållsel.
Det finns 9 st pantbrev uttagna om sammanlagt 936 000 kr
En pittoresk ”stad i staden”. Den gamla fiskeorten Limhamn känns allt mindre som en del av Malmö och mer som en egen liten stad. Den genuina småskaliga känslan som råder här samt läget vid havet attraherar många. I centrum finns ett rikt utbud av restauranger och butiker. Det finns bland annat köttaffär, ostbutik, fiskrökeri, chocolaterie, tehandel och karamellkokeri.
Limhamn var tidigare en egen ort men är numera en av Malmös rikaste och socialt mest välmående stadsdelar. Gamla Limhamn kännetecknas av charmiga gatuhus från slutet av 1800-talet på små, ibland kullerstensbelagda, gator. En populär samlingspunkt är Limhamns torg som har en stor gräsplätt, lekplats, boulebana, vattenfontän och flera bänkar att koppla av på. Torget fylls med folk när det arrangeras julmarknad och loppmarknad här varje år.
I centrala Limhamn finns flerbostadshus medan utkanterna till största delen består av villaområden. Ön på Limhamn erbjuder bland annat möjlighet till bad, promenadspår och fantastisk solnedgång över Öresund. Här finns även en mycket populär fiskeplats som lockar många fiskare varje dag samt skola, gym och matbutik.
Centrala Limhamn når du på 5 minuter med cykel och här erbjuds ett stort serviceutbud. När det gäller kultur kan Limhamn visa upp soldattorpet, som härstammar från 1800-talet. Här finns det ett stort bildarkiv och varierande utställningar. Varje år arrangeras det ett traditionsenligt midsommarfirande där familjer breder ut sina filtar med picknick och dansar runt midsommarstången. Hamnfestivalen är ett också ett populärt evenemang som äger rum under tre dagar i augusti. Då vimlar hamnen av mataktörer, musik, nöjen och vattenaktiviteter.
Sibbarp ligger vid Öresundsbrons brofäste nära Limhamn. I området finns många bostadshus men det är också ett fritidsområde med en fyrstjärnig camping. Strandhuset är en populär restaurang med havsutsikt och egen minigolfbana i retrostil som har öppet sommartid.
Annetorp är ett bostads- och industriområde mellan Annetorpsvägen och Linnégatan väster om Limhamns kyrka. Området har en blandad bebyggelse med villor, radhus och flerfamiljshus. Här finns också Folkets hus, skolor, förskolor, ishall och idrottsplats. I den södra delen ligger industriområdet med flera hundra verksamma företag. Övriga bostadsområden är Hyllie by och Djupadal. Hyllie by ligger mellan Lorensborgsgatan och Elinelundsvägen, och Djupadal mellan Rudbecksgatan och Inre Ringvägen väster om Elinelundsvägen. Båda områdena består till största delen av villor och radhus. I närheten finns Elinelunds fina koloniområde och Hyllie park folkhögskola. På folkhögskolan kombinerar eleverna teoretiska studier med skapande verksamhet.
Limhamns Sjöstad är ett nytt och växande område med radhus och flerfamiljshus. Här finns Glasbruksskolan som är en grundskola f-6 och Limhamnsskolan som öppnar läsåret 2024/2025. Skolan är planerad för fem parallella klasser i årskurs 7-9 vilket ger plats för cirka 450 elever. I Limhamns Sjöstad finns flera matbutiker, bageri och restauranger. Längs med kajen finns fina trädäck med utsikt utåt Ön, idealiskt för picknick och solbad. Ett populärt ställe som gränsar till Sjöstaden är Dragörkajen, där Danmarksfärjorna tidigare gick från, med restauranger och glasscafé.
Vill du köpa, sälja eller värdera bostad på Limhamn? Kontakta Bjurfors mäklare på Limhamn! Passa också på att anmäla dig till vår kostnadsfria söktjänst Boagenten som hjälper dig att hitta ditt drömboende.
Kontakta mäklaren om du behöver hjälp att ta fram en boendekalkyl.
När du köper din bostad genom Bjurfors kan du ansöka om bolån till en förmånlig ränta hos vår samarbetspartner SEB.
Bokad visning.
Ansvarig mäklare