-
Köpa
Köpa -
Sälja
Sälja - Hitta bostad
- Skapa bevakning
- Hitta mäklare
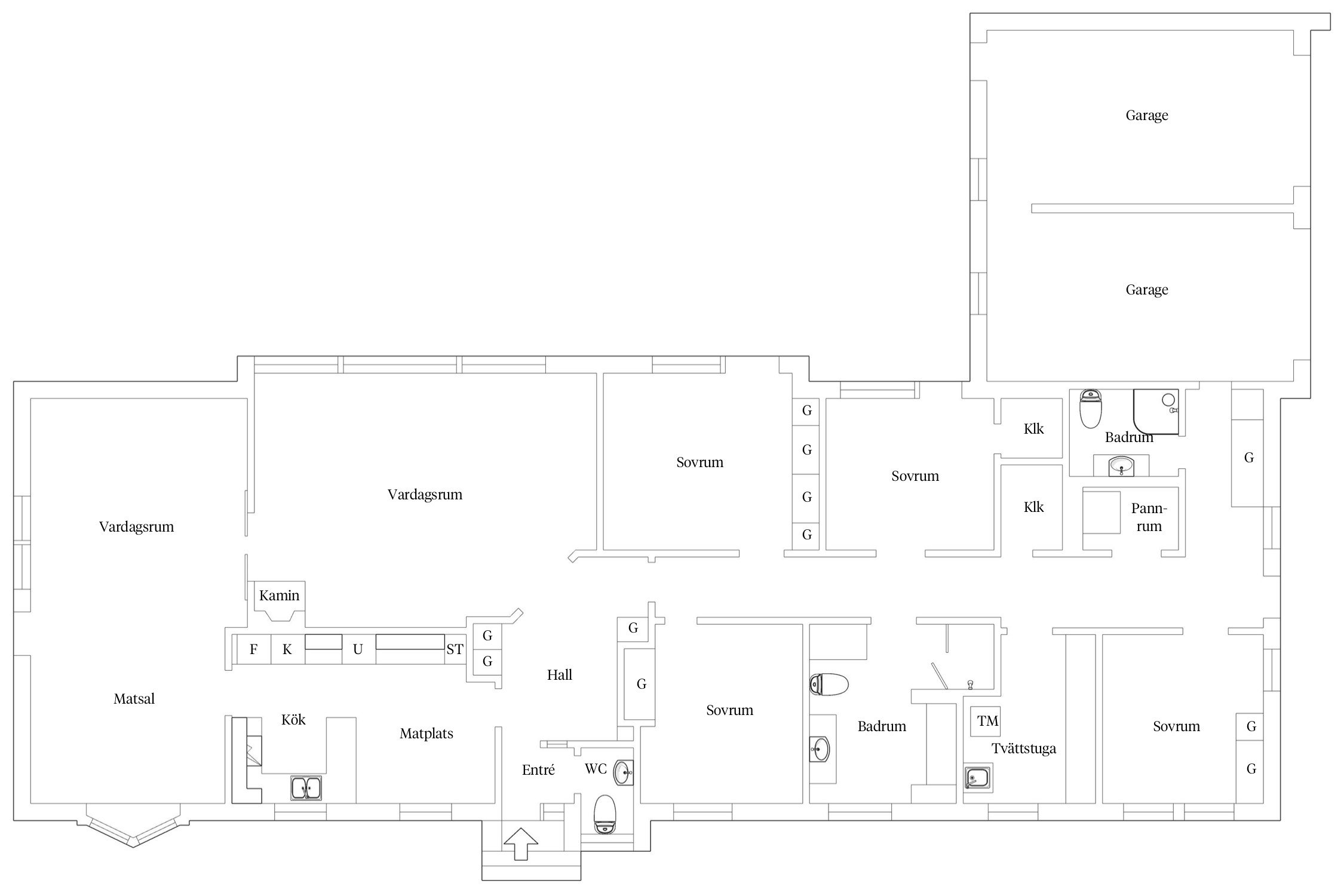
Havsnära enplanshus på Sibbarp
Limhamn, Malmö
*areauppgifter enligt faktisk uppmätning
Huset är taxerat som 157 kvm boarea och 73 kvm biarea
Förhandsvisning. Anmälan krävs.
På Förhand ligger bostäder som av olika anledningar inte är ute till försäljning just nu men som kan komma att säljas om förutsättningarna är rätt.
Generösa 198 kvm i ett plan med insynsskyddad trädgård i sydväst.
Välkommen till populära Sibbarp, ett generöst enplanshus från 1968.
Två stora sällskapsrum som bjuder på både kamin och vackert burspråk.
Fyra sovrum, två helkaklade badrum och gästwc. Stort dubbelgarage. Privat och solig trädgård. Kort promenad till havet, småbåtshamnen och salta dopp.
Välkommen till populära Sibbarp – ett hem med ett fantastiskt läge nära havet och småbåtshamnen, med möjlighet till salta dopp och ett lugn som möter det naturnära livet.
Detta välplanerade enplanshus från 1968 erbjuder generösa ytor och flexibilitet för den stora familjen, med fyra till fem sovrum.
Redan i entrén möts du av ett stilrent kalkstensgolv som sätter tonen för bostadens karaktär. Här finns även en gäst-WC med vitt klinkergolv, helkaklade vita väggar och ett charmigt blyinfattat fönster som släpper in ett mjukt ljus.
Vardagsrummet är luftigt och inbjudande med parkettgolv och ljusa väggar. Den vackra kaminen skapar både värme och trivsel, och de stora fönsterpartierna suddar ut gränsen mellan ute och inne. Härifrån når du trädgården – en naturlig förlängning av sällskapsytorna.
Intill ligger ytterligare ett sällskapsrum med plats för både matgrupp och soffhörna, perfekt för sociala tillställningar eller lugna kvällar. Ett vackert burspråk med blyinfattat glas ger rummet extra charm och karaktär. Även här når man trädgården i söder som bjuder på ett litet träddäck omgärdad av gräsmatta och fruktträd.
Köket är funktionellt och hemtrevligt med inredning i massiv Kanadensisk lönn, gott om förvaring och bra arbetsytor. Här finns plats för fyra till fem personer vid matbordet, och köket ramas in av ljusa väggar och praktisk plastmatta. Utrustningen består av kyl/frys, diskmaskin, ugn, spishäll och spisfläkt.
I den privata delen av huset finns fyra rymliga sovrum, samtliga med ekparkett och vita väggar, vilket skapar en ljus och harmonisk känsla. Här finns även två helkaklade badrum – det ena utrustat med badkar och dusch och det andra med dusch. Från huset har man direkt access till ett stort dubbelgarage, en praktisk lösning för både vardag och förvaring.
Trädgården är en grön oas – privat, insynsskyddad och med sol från morgon till kväll. Här finns gott om plats för både lek, avkoppling och sociala stunder i det fria.
Med ett läge med en kort promenad till havet och småbåtshamnen, där du enkelt tar ett uppfriskande dopp, får du här ett hem där livskvalitet står i fokus, ett boende att trivas i, året om.



Näbbgäddan 6
*areauppgifter enligt faktisk uppmätning
Huset är taxerat som 157 kvm boarea och 73 kvm biarea
2001 Förvärvades fastigheten men har varit i familjens ägo sedan huset byggdes
2001 Ny indragen el i huset
2001 Renoverades samtliga våtutrymmen
2001 Nytt kök
2001 Nya fönster
Ca 2021 Gaspanna
2024 Målades träpanelerna, vindskivorna, fönsterna
Dubbelgarage
Kommunalt vatten, Kommunalt avlopp.
Stor insynsskyddad tomt med gräsmatta och stenlagd uteplats.
Två stora garage som även nås från huset.
Stadsplan (1942-02-20) Tomtindelning (1941-09-05)
Det finns 15 st pantbrev uttagna om sammanlagt 5 481 000 kr
En pittoresk ”stad i staden”. Den gamla fiskeorten Limhamn känns allt mindre som en del av Malmö och mer som en egen liten stad. Den genuina småskaliga känslan som råder här samt läget vid havet attraherar många. I centrum finns ett rikt utbud av restauranger och butiker. Det finns bland annat köttaffär, ostbutik, fiskrökeri, chocolaterie, tehandel och karamellkokeri.
Limhamn var tidigare en egen ort men är numera en av Malmös rikaste och socialt mest välmående stadsdelar. Gamla Limhamn kännetecknas av charmiga gatuhus från slutet av 1800-talet på små, ibland kullerstensbelagda, gator. En populär samlingspunkt är Limhamns torg som har en stor gräsplätt, lekplats, boulebana, vattenfontän och flera bänkar att koppla av på. Torget fylls med folk när det arrangeras julmarknad och loppmarknad här varje år.
I centrala Limhamn finns flerbostadshus medan utkanterna till största delen består av villaområden. Ön på Limhamn erbjuder bland annat möjlighet till bad, promenadspår och fantastisk solnedgång över Öresund. Här finns även en mycket populär fiskeplats som lockar många fiskare varje dag samt skola, gym och matbutik.
Centrala Limhamn når du på 5 minuter med cykel och här erbjuds ett stort serviceutbud. När det gäller kultur kan Limhamn visa upp soldattorpet, som härstammar från 1800-talet. Här finns det ett stort bildarkiv och varierande utställningar. Varje år arrangeras det ett traditionsenligt midsommarfirande där familjer breder ut sina filtar med picknick och dansar runt midsommarstången. Hamnfestivalen är ett också ett populärt evenemang som äger rum under tre dagar i augusti. Då vimlar hamnen av mataktörer, musik, nöjen och vattenaktiviteter.
Sibbarp ligger vid Öresundsbrons brofäste nära Limhamn. I området finns många bostadshus men det är också ett fritidsområde med en fyrstjärnig camping. Strandhuset är en populär restaurang med havsutsikt och egen minigolfbana i retrostil som har öppet sommartid.
Annetorp är ett bostads- och industriområde mellan Annetorpsvägen och Linnégatan väster om Limhamns kyrka. Området har en blandad bebyggelse med villor, radhus och flerfamiljshus. Här finns också Folkets hus, skolor, förskolor, ishall och idrottsplats. I den södra delen ligger industriområdet med flera hundra verksamma företag. Övriga bostadsområden är Hyllie by och Djupadal. Hyllie by ligger mellan Lorensborgsgatan och Elinelundsvägen, och Djupadal mellan Rudbecksgatan och Inre Ringvägen väster om Elinelundsvägen. Båda områdena består till största delen av villor och radhus. I närheten finns Elinelunds fina koloniområde och Hyllie park folkhögskola. På folkhögskolan kombinerar eleverna teoretiska studier med skapande verksamhet.
Limhamns Sjöstad är ett nytt och växande område med radhus och flerfamiljshus. Här finns Glasbruksskolan som är en grundskola f-6 och Limhamnsskolan som öppnar läsåret 2024/2025. Skolan är planerad för fem parallella klasser i årskurs 7-9 vilket ger plats för cirka 450 elever. I Limhamns Sjöstad finns flera matbutiker, bageri och restauranger. Längs med kajen finns fina trädäck med utsikt utåt Ön, idealiskt för picknick och solbad. Ett populärt ställe som gränsar till Sjöstaden är Dragörkajen, där Danmarksfärjorna tidigare gick från, med restauranger och glasscafé.
Vill du köpa, sälja eller värdera bostad på Limhamn? Kontakta Bjurfors mäklare på Limhamn! Passa också på att anmäla dig till vår kostnadsfria söktjänst Boagenten som hjälper dig att hitta ditt drömboende.
Kontakta mäklaren om du behöver hjälp att ta fram en boendekalkyl.
När du köper din bostad genom Bjurfors kan du ansöka om bolån till en förmånlig ränta hos våra banksamarbetspartners Söderberg & Partners och SEB.
Förhandsvisning. Anmälan krävs.
Ansvarig mäklare