-
Köpa
Köpa -
Sälja
Sälja - Hitta bostad
- Skapa bevakning
- Hitta mäklare
Gavelradhus på Limhamn
Limhamn, Malmö
*Areauppgifter enligt taxeringsinformationen
Förhandsvisning. Anmälan krävs.
På Förhand ligger bostäder som av olika anledningar inte är ute till försäljning just nu men som kan komma att säljas om förutsättningarna är rätt.
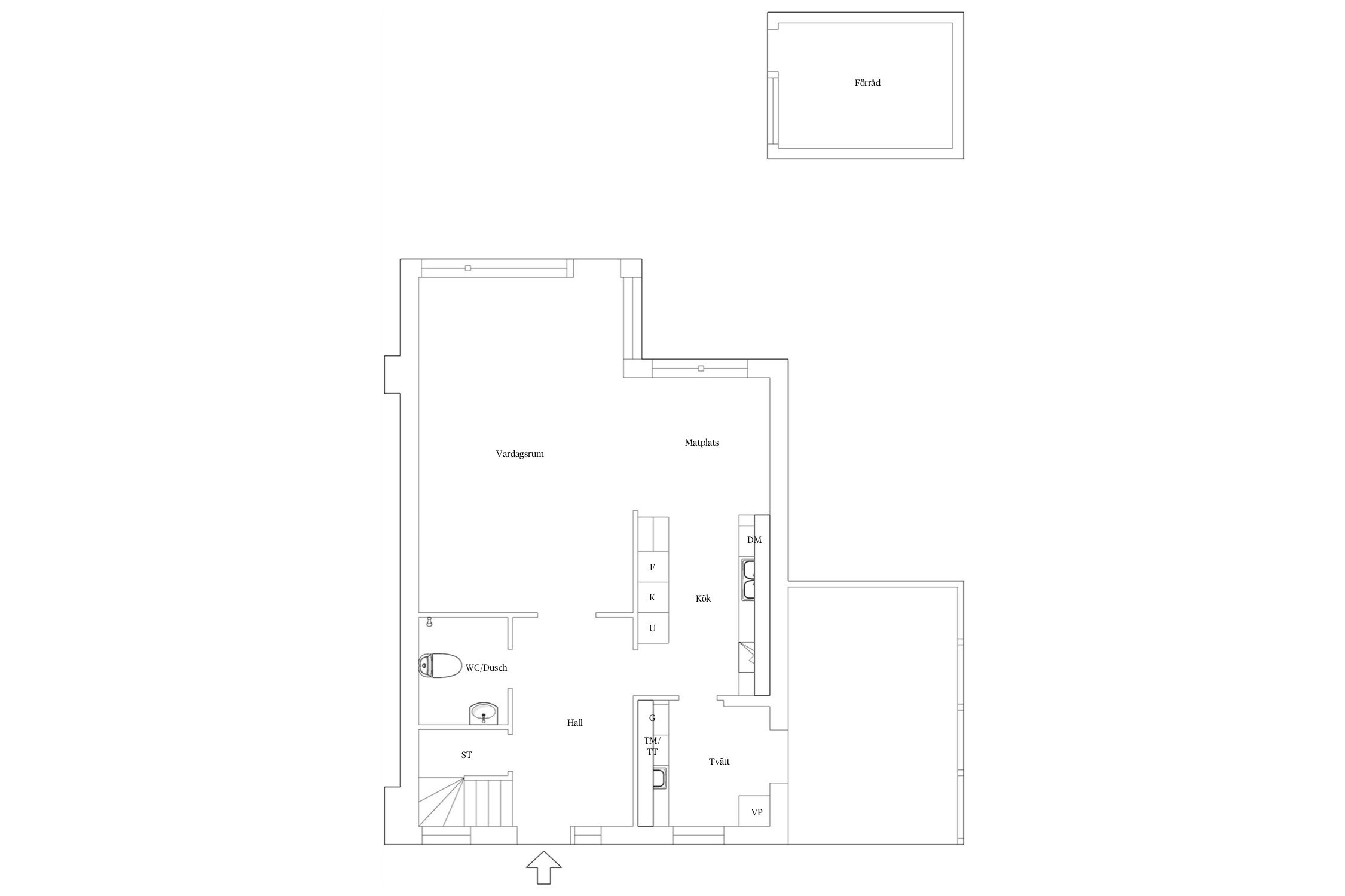
Välkommen till ett hem att verkligen trivas i – på lugna och omtyckta Valborgsgatan, i hjärtat av Limhamn.
Längst in på en mysig och skyddad återvändsgata ligger detta välplanerade och ljusa gavelradhus, ett perfekt boende för dig som söker trygghet, trivsel och närhet till både stad och hav. Här bor du lugnt och familjevänligt med lekande barn på gatan och en fin gemenskap grannar emellan.
Huset erbjuder en genomtänkt och flexibel planlösning med generösa ljusinsläpp från flera väderstreck, vilket skapar en härligt luftig känsla. Planlösningen passar lika bra för den växande familjen som för dig som önskar extra arbetsrum eller hobbyutrymme. På ovanvåningen finns möjlighet att skapa ytterligare sovrum för den som har behov av fler rum, en framtidssäker lösning som ger bostaden extra potential.
Entrén från gatan är utan nivåskillnader, smidigt för barnvagn eller när matkassarna ska bäras in. Från carporten finns en separat grovingång som underlättar vardagen, och från vardagsrummet nås trädgården direkt via altandörren, perfekt för sommarens spontana grillkvällar.
Trädgården är lagom stor, lättskött och inbjudande, en privat oas med uteplats och charmigt växthus där du kan odla efter säsong och njuta av långa, ljumma sommarkvällar. Som gavelradhus får du dessutom extra ljusinsläpp, mer tomtyta och en friare känsla jämfört med övriga hus i längan.
Till huset hör dubbel carport samt ett praktiskt, isolerat förråd på tomten, gott om plats för både cyklar, barnvagn och förvaring.
Området är en välskött och trivsam samfällighet med fina gemensamma ytor såsom lekplats och gästparkering, uppskattat när familj och vänner kommer på besök.
Läget är svårslaget. Här bor du med bekvämt gångavstånd till Limhamns centrum med dess butiker, restauranger och serviceutbud. Området erbjuder bra skolor och förskolor, och närheten till havet är ett stort plus, med både Ribersborgsstranden och Sibbarp inom bekvämt avstånd. Till centrala Malmö tar du dig på cirka 15 minuter med cykel, och goda kommunikationer gör pendlingen smidig även med kollektivtrafik.
Ett ljust, lättskött och trivsamt hem i ett av Limhamns mest attraktiva och familjevänliga lägen, ett boende att längtas hem till. Varmt välkommen att uppleva det på plats!



Klockan 52
*Areauppgifter enligt taxeringsinformationen
2025
- Laddbox installerad för elbil
- Tvätt, behandling och omfogning av stenläggning
2024
- Service av panna
- Byte av filter till tilluftsventiler
2023
- Uppförande av växthus
- Utvecklad och förbättrad trädgårdsmiljö
2022
- Anläggning av rabatter och odlingslådor samt montering av spaljéer
- Installation av fiber (bredband)
- Byte av samtliga blandare i kök, tvättstuga och badrum samt vattenutkastare till trädgård
- Service av panna
- Rensning av ventilationskanaler samt injustering av luftflöden
- Byte av filter till tilluftsventiler
2018
- Fasad målad
2016
- Diskmaskin, Siemens
2015
- Inbyggd induktionshäll, Siemens
2014
- Värmepump (luft/luft), Electrolux
- Fullstort kylskåp, Siemens
- Fullstort frysskåp, Siemens
- Torktumlare, Electrolux
2005
- Kök och tvättstuga, Ballingslöv
- Kök, Vedum
- Frånluftsvärmepump (luft/vatten), IVT
- Inbyggd varmluftsugn, Bosch
- Inbyggd mikrovågsugn, Bosch
- Tvättmaskin, Bosch
Kommunalt vatten, Kommunalt avlopp.
Detaljplan (2004-05-05)
Gemensamhetsanläggning: Malmö klockan ga:2 ändamål: Vägar, Vattenförsörjning, Avloppsanläggning, Elledning och/eller belysning, Grönområden, Garage och/eller parkering
Samfällighet: Malmö klockan s:1
Last: Avtalsservitut Fjärrvärmeledningar mm, 12-IM1-83/39261.1
Fiber
Avtalsservitut Fjärrvärmeledning mm
Säljarna har villaförsäkring hos Länsförsäkringar och betalar 5 239 kr/år.
Det finns 5 st pantbrev uttagna om sammanlagt 4 930 000 kr
En pittoresk ”stad i staden”. Den gamla fiskeorten Limhamn känns allt mindre som en del av Malmö och mer som en egen liten stad. Den genuina småskaliga känslan som råder här samt läget vid havet attraherar många. I centrum finns ett rikt utbud av restauranger och butiker. Det finns bland annat köttaffär, ostbutik, fiskrökeri, chocolaterie, tehandel och karamellkokeri.
Limhamn var tidigare en egen ort men är numera en av Malmös rikaste och socialt mest välmående stadsdelar. Gamla Limhamn kännetecknas av charmiga gatuhus från slutet av 1800-talet på små, ibland kullerstensbelagda, gator. En populär samlingspunkt är Limhamns torg som har en stor gräsplätt, lekplats, boulebana, vattenfontän och flera bänkar att koppla av på. Torget fylls med folk när det arrangeras julmarknad och loppmarknad här varje år.
I centrala Limhamn finns flerbostadshus medan utkanterna till största delen består av villaområden. Ön på Limhamn erbjuder bland annat möjlighet till bad, promenadspår och fantastisk solnedgång över Öresund. Här finns även en mycket populär fiskeplats som lockar många fiskare varje dag samt skola, gym och matbutik.
Centrala Limhamn når du på 5 minuter med cykel och här erbjuds ett stort serviceutbud. När det gäller kultur kan Limhamn visa upp soldattorpet, som härstammar från 1800-talet. Här finns det ett stort bildarkiv och varierande utställningar. Varje år arrangeras det ett traditionsenligt midsommarfirande där familjer breder ut sina filtar med picknick och dansar runt midsommarstången. Hamnfestivalen är ett också ett populärt evenemang som äger rum under tre dagar i augusti. Då vimlar hamnen av mataktörer, musik, nöjen och vattenaktiviteter.
Sibbarp ligger vid Öresundsbrons brofäste nära Limhamn. I området finns många bostadshus men det är också ett fritidsområde med en fyrstjärnig camping. Strandhuset är en populär restaurang med havsutsikt och egen minigolfbana i retrostil som har öppet sommartid.
Annetorp är ett bostads- och industriområde mellan Annetorpsvägen och Linnégatan väster om Limhamns kyrka. Området har en blandad bebyggelse med villor, radhus och flerfamiljshus. Här finns också Folkets hus, skolor, förskolor, ishall och idrottsplats. I den södra delen ligger industriområdet med flera hundra verksamma företag. Övriga bostadsområden är Hyllie by och Djupadal. Hyllie by ligger mellan Lorensborgsgatan och Elinelundsvägen, och Djupadal mellan Rudbecksgatan och Inre Ringvägen väster om Elinelundsvägen. Båda områdena består till största delen av villor och radhus. I närheten finns Elinelunds fina koloniområde och Hyllie park folkhögskola. På folkhögskolan kombinerar eleverna teoretiska studier med skapande verksamhet.
Limhamns Sjöstad är ett nytt och växande område med radhus och flerfamiljshus. Här finns Glasbruksskolan som är en grundskola f-6 och Limhamnsskolan som öppnar läsåret 2024/2025. Skolan är planerad för fem parallella klasser i årskurs 7-9 vilket ger plats för cirka 450 elever. I Limhamns Sjöstad finns flera matbutiker, bageri och restauranger. Längs med kajen finns fina trädäck med utsikt utåt Ön, idealiskt för picknick och solbad. Ett populärt ställe som gränsar till Sjöstaden är Dragörkajen, där Danmarksfärjorna tidigare gick från, med restauranger och glasscafé.
Vill du köpa, sälja eller värdera bostad på Limhamn? Kontakta Bjurfors mäklare på Limhamn! Passa också på att anmäla dig till vår kostnadsfria söktjänst Boagenten som hjälper dig att hitta ditt drömboende.
Kontakta mäklaren om du behöver hjälp att ta fram en boendekalkyl.
När du köper din bostad genom Bjurfors kan du ansöka om bolån till en förmånlig ränta hos vår samarbetspartner SEB.
Förhandsvisning. Anmälan krävs.
Ansvarig mäklare