-
Köpa
Köpa -
Sälja
Sälja - Hitta bostad
- Skapa bevakning
- Hitta mäklare
Perfekt bostad med trevlig planlösning
Limhamn, Malmö
*I avgiften ingår värme, vatten och kabel-TV. Obligatoriskt tillägg för bredband om 75 kr/mån. En schablonsavgift på 280 kr för el tas också ut. Avläsning av el sker i december och i april kommande året regleras överskjutande/tillkommande förbrukning.
**Uppgifter enligt bostadsrättsföreningen
På Förhand ligger bostäder som av olika anledningar inte är ute till försäljning just nu men som kan komma att säljas om förutsättningarna är rätt.
Trevlig bostad med underbar balkong med många soltimmar!
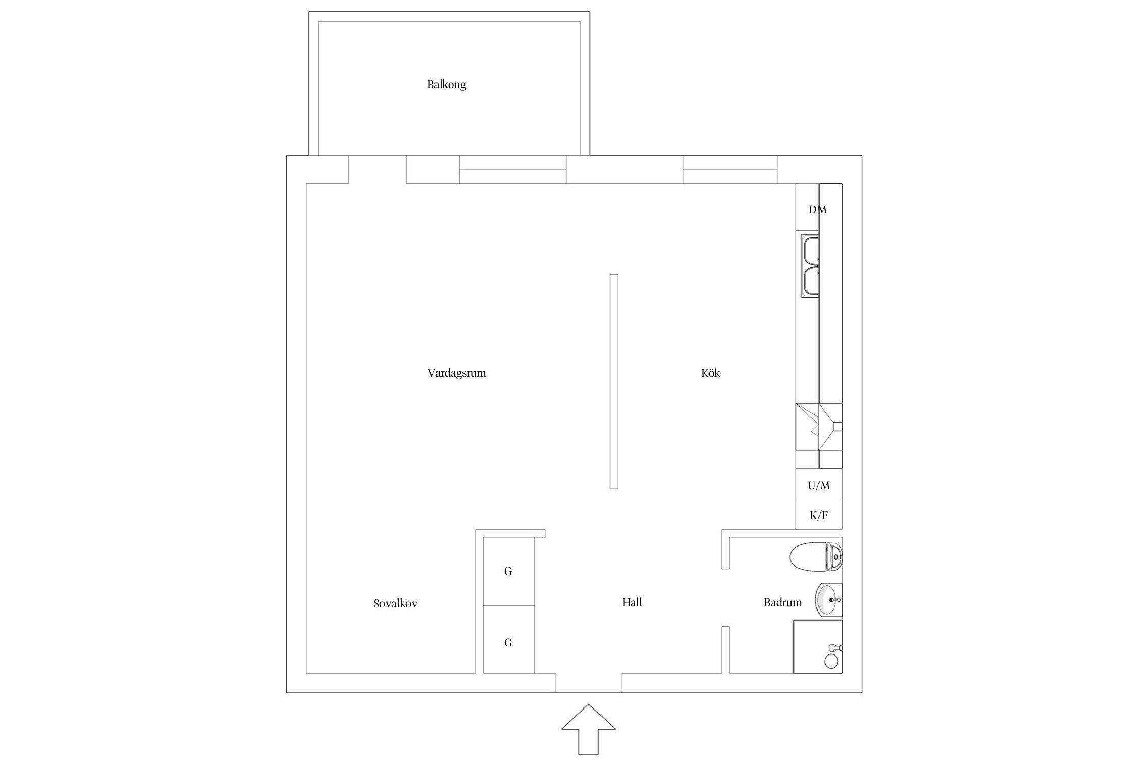
Andra våningen i huset på fritt läge finner vi denna rymliga ettrumslägenhet med stor inglasad balkong i soligt söderläge. Välplanerade kvadratmeter fördelat på vardagsrum med sovalkov, kök med plats för matbord, badrum samt rymlig hall med goda förvaringsmöjligheter.
Här bor du i mysiga kvarter med närhet till shopping, restauranger och matvarubutiker. Hav och strand ligger på kort cykelavstånd från bostaden. Med goda bussförbindelser till Malmö city är detta ett drömboende för dig som söker en bostad på lugnt läge men ändå vill ha alla bekvämligheter inom räckhåll.
Varmt välkommen på visning!
Hall:
Trevlig hall med Förvaringsmöjligheter. Mörkt klinker tillsammans med vita väggar.
Sällskapsrum:
Stort och rymligt sällskapsrum med fin parkett och vita väggar. Här finns plats för soffa och skrivbord. Från sällskapsrummet når man den stora balkongen med många soltimmar.
Kök:
Vägg i vägg ligger det stora köket som erbjuder gott om förvaring och arbetsyta för den matglada. Ekbänkskiva tillsammans med vita skåpsluckor. Köket är utrustat med vask, spis, ugn, mikro, kyl/frys samt diskmaskin. Plats för litet matbord.
Sovalkov:
Från sällskapsrummet finns en smart sovalkov med plats för dubbelsäng.



*Uppgifter enligt bostadsrättsföreningen
I avgiften ingår värme, vatten och kabel-TV.
Obligatoriskt tillägg för bredband om 75 kr/mån.
En schablonsavgift på 280 kr för el tas också ut. Avläsning av el sker i december och i april kommande året regleras överskjutande/tillkommande förbrukning.
Kommunal boendeparkering råder i området.
För mer information besök: <a href="https://malmo.se/boendeparkering">https://malmo.se/boendeparkering</a>
Föreningen tillhandahåller 10 parkeringsplatser vid Älggatan som kan hyras för ca 450 kr/mån. Separat kösystem tillämpas via föreningen, men det är många års kö för ledig plats, för närvarande är det är ca 30-40 personer i kö till platserna.
Bostadsrättens indirekta nettoskuldsättning baseras på föreningens skulder/lån minus föreningens räntebärande tillgångar och likvida medel. Beräkningen är gjord via Bopedia. För mer information kontakta ansvarig fastighetsmäklare.
*Betalas av köpare
Brf Kanariefågeln bildades när huset byggdes 1947.
Föreningen består av 149 lägenheter med adress Älggatan 16-20 och Västanväg 43-49.
Föreningen har två hyreslokaler på Rabyplan som hyrs ut som kontor till företag.
I samband med överlåtelse vill föreningen utföra en standardiserad tillsyn för att kontrollera skick och eventuella brister avseende de saker som föreningen har intresse och ansvar för.
Avgifterna höjdes med 5% 2025-01-01 samt med 5% 2026-01-01 (kontrollerat 2026-03-04).
EL
El debiteras (utöver månadsavgiften) som en schablonkostnad om 350 kr per månad. Den boende behöver alltså inte ha något eget elabonnemang. Avläsning jämfört med verklig förbrukning sker i december månad. Eventuellt överskjutande förbrukning debiteras i mars/april kommande år. Det är den som äger lägenheten i april kommande år som betalar eventuellt överskjutande förbrukning. Finns det en stor förbrukning är det viktigt att säljare och köpare gör en avräkning vid ägarbytet.
Fastigheten är fullvärdesförsäkrad hos Länsförsäkringar.
Bostadsrättstillägget ingår inte, utan tecknas av den boende som ett tillägg till egen hemförsäkring.
2000 Byte av ytterbågar på samtliga fönster
2001 Säkerhetsdörrar och stålkarmar installeras
2003 Nya ventiler och injustering av värmesystemet
2004 Genomgående renovering av de två kommersiella lokalerna på Rabyplan
2005 Bastuutrymmet renoverades. Ny el i lägenheterna
2008 Nya värmeväxlare för fjärrvärmen
2008-2011 Totalt 146st inglasade balkonger byggs
2009 Ny el även i de utrymmen som ligger utanför lägenheterna. Renovering av skorstenar. Dränering av grunder (ej framsidan på Västanvägshusen)
2009-2013 Relining av avlopp.
2011 Inglasade balkonger.
2012 Nya gångar, planteringar, gatubrunnar och plattläggning längs Älggatan.
2013-2015 Yttertaken nya på samtliga hus.
2014 Installation av bredbandsnät via fiber från Bredbandsbolaget. Renovering av källartrappor/cykelnedfarter på samtliga sju hus.
2016 OVK genomförd. Ny styr- och reglerutrustning för värmesystemet. Uppgradering av tv-nätet (Com Hem) för digital/HD/bredbandsmöjligheter. Nya tvättmaskiner och torktumlare plus en fjärde tvättstation.
2017 Husgrunderna dräneras, gamla soprum har satts igen och nya markrör och brunnar anlagts. Även vissa andra äldre plattbelagda ytor är förnyade. Entresidorna på hus Västanväg 43 och 45 får nya planteringar och plattbelagda gångar. Husgrunderna dräneras, gamla soprum sätts igen och nya markrör och brunnar anläggs. Även vissa andra äldre plattbelagda ytor kommer att förnyas.
2018 Ett större markarbete runt omkring husen längs Västanväg. Entresidorna på hus Västanväg 47 och 49 har fått nya planteringar och plattbelagda gångar är klart.
2019 Kodlås på entrédörrar, sophus och cykelkällare. Föreningen bytte ett antal komponenter (ventiler, pumpar etc) i värme- och vattensystem.
2020 Gruppanslutning till Bredband2. Tak på tvättstuga lades om med sedumgräs och nya räcken.
2021 Nytt bastuaggregat införskaffades. En del reparationer och förbättringar i värme- och vvs-system (byten ventiler etc).
2022 Byte av källardörrar.
2023 Målning av miljöhus, oljning av portar etc. Projektering/beställning av solcellsanläggning.
2024 Montering av solcellsanläggning. Driftsattes i april. Det har bytts ett antal dörrar i källarna och VVS-installationer har moderniserats och bytts ut.
Planerade renoveringar:
Föreningen planerar för ett större projekt där fönster och fasader ska bytas.
För närvarande ligger projektet på is pga ränteläget och är i nuläget oklart när det kommer tas upp igen. Föreningen prioriterar andra projekt som kan genomföras utan att låna upp pengar.
(kontrollerat 2026-03-04)
Kommunal boendeparkering råder i området.
För mer information besök: https://malmo.se/boendeparkering
Föreningen tillhandahåller 10 parkeringsplatser vid Älggatan som kan hyras för ca 450 kr/mån. Separat kösystem tillämpas via föreningen, men det är många års kö för ledig plats, för närvarande är det är ca 30-40 personer i kö till platserna.
Kabel-TV via Tele2. Grundutbudet ingår i avgiften.
Bredband via Bredband2. Hastighet: 1 Gbit.
Kostnaden för bredbandet tillkommer som ett obligatoriskt tillägg.
Medlemmarna står för egen router.
Det finns en innergård med grillplats och utemöbler. Även miljöstationen ligger på innergården.
Det finns en stor tvättstuga (separat ingång) mellan Älggatan 18 och 20 med fyra tvättstationer och torkrum.
I föreningen finns även bastu och duschrum i källarplan på Västanväg 49A.
Till lägenheterna tillhör två förråd i källarplan.
Information som berör föreningen/fastigheten är inhämtad via årsredovisning, hemsida och kontakt med föreningen. Avvikelser kan förekomma och som köpare uppmanas du av säljare och mäklare att själv kontrollera samtliga uppgifter, framförallt om något är av extra stor betydelse för dig som köpare.
Besök gärna föreningens informativa hemsida: www.kanariefageln.se, och/eller kontakta styrelsen via följande e-post: info@kanariefageln.se
En pittoresk ”stad i staden”. Den gamla fiskeorten Limhamn känns allt mindre som en del av Malmö och mer som en egen liten stad. Den genuina småskaliga känslan som råder här samt läget vid havet attraherar många. I centrum finns ett rikt utbud av restauranger och butiker. Det finns bland annat köttaffär, ostbutik, fiskrökeri, chocolaterie, tehandel och karamellkokeri.
Limhamn var tidigare en egen ort men är numera en av Malmös rikaste och socialt mest välmående stadsdelar. Gamla Limhamn kännetecknas av charmiga gatuhus från slutet av 1800-talet på små, ibland kullerstensbelagda, gator. En populär samlingspunkt är Limhamns torg som har en stor gräsplätt, lekplats, boulebana, vattenfontän och flera bänkar att koppla av på. Torget fylls med folk när det arrangeras julmarknad och loppmarknad här varje år.
I centrala Limhamn finns flerbostadshus medan utkanterna till största delen består av villaområden. Ön på Limhamn erbjuder bland annat möjlighet till bad, promenadspår och fantastisk solnedgång över Öresund. Här finns även en mycket populär fiskeplats som lockar många fiskare varje dag samt skola, gym och matbutik.
Centrala Limhamn når du på 5 minuter med cykel och här erbjuds ett stort serviceutbud. När det gäller kultur kan Limhamn visa upp soldattorpet, som härstammar från 1800-talet. Här finns det ett stort bildarkiv och varierande utställningar. Varje år arrangeras det ett traditionsenligt midsommarfirande där familjer breder ut sina filtar med picknick och dansar runt midsommarstången. Hamnfestivalen är ett också ett populärt evenemang som äger rum under tre dagar i augusti. Då vimlar hamnen av mataktörer, musik, nöjen och vattenaktiviteter.
Sibbarp ligger vid Öresundsbrons brofäste nära Limhamn. I området finns många bostadshus men det är också ett fritidsområde med en fyrstjärnig camping. Strandhuset är en populär restaurang med havsutsikt och egen minigolfbana i retrostil som har öppet sommartid.
Annetorp är ett bostads- och industriområde mellan Annetorpsvägen och Linnégatan väster om Limhamns kyrka. Området har en blandad bebyggelse med villor, radhus och flerfamiljshus. Här finns också Folkets hus, skolor, förskolor, ishall och idrottsplats. I den södra delen ligger industriområdet med flera hundra verksamma företag. Övriga bostadsområden är Hyllie by och Djupadal. Hyllie by ligger mellan Lorensborgsgatan och Elinelundsvägen, och Djupadal mellan Rudbecksgatan och Inre Ringvägen väster om Elinelundsvägen. Båda områdena består till största delen av villor och radhus. I närheten finns Elinelunds fina koloniområde och Hyllie park folkhögskola. På folkhögskolan kombinerar eleverna teoretiska studier med skapande verksamhet.
Limhamns Sjöstad är ett nytt och växande område med radhus och flerfamiljshus. Här finns Glasbruksskolan som är en grundskola f-6 och Limhamnsskolan som öppnar läsåret 2024/2025. Skolan är planerad för fem parallella klasser i årskurs 7-9 vilket ger plats för cirka 450 elever. I Limhamns Sjöstad finns flera matbutiker, bageri och restauranger. Längs med kajen finns fina trädäck med utsikt utåt Ön, idealiskt för picknick och solbad. Ett populärt ställe som gränsar till Sjöstaden är Dragörkajen, där Danmarksfärjorna tidigare gick från, med restauranger och glasscafé.
Vill du köpa, sälja eller värdera bostad på Limhamn? Kontakta Bjurfors mäklare på Limhamn! Passa också på att anmäla dig till vår kostnadsfria söktjänst Boagenten som hjälper dig att hitta ditt drömboende.
Kontakta mäklaren om du behöver hjälp att ta fram en boendekalkyl.
När du köper din bostad genom Bjurfors kan du ansöka om bolån till en förmånlig ränta hos våra banksamarbetspartners Söderberg & Partners och SEB.
Ansvarig mäklare