-
Köpa
Köpa -
Sälja
Sälja - Hitta bostad
- Skapa bevakning
- Hitta mäklare
Gediget och friköpt kedjehus med garage!
Stenkällan, Malmö
*Areauppgifter enligt taxeringsinformationen
Förhandsvisning. Anmälan krävs.
På Förhand ligger bostäder som av olika anledningar inte är ute till försäljning just nu men som kan komma att säljas om förutsättningarna är rätt.
I omtyckta Stenkällan finner du detta stora kedjehus med generösa ytor och fina möjligheter att skapa ett hem helt efter egen smak. Bostaden erbjuder cirka 130 kvm boarea fördelat på 6 rymliga rum, vilket ger gott om plats för familjen och möjlighet till flexibla lösningar.
Huset har en inredd källare som skapar extra utrymme för exempelvis hobbyverksamhet, allrum, gästrum eller förvaring. Garage finns, vilket bidrar till ett bekvämt och praktiskt boende.
Detta är en renoveringschans för dig som vill sätta din egen prägel och förädla ett hus med bra grund och stor volym. Här finns möjligheten att skapa ett personligt hem i ett redan attraktivt område.
Stenkällan är ett familjevänligt och grönt område med närhet till skolor, grönområden och goda kommunikationer, samt smidig anslutning till Inre Ringvägen. Ett perfekt läge för dig som vill kombinera lugnt boende med närhet till stadens utbud.
Ett hus med stor potential i ett mycket eftertraktat område – varmt välkommen att uppleva möjligheterna på plats!
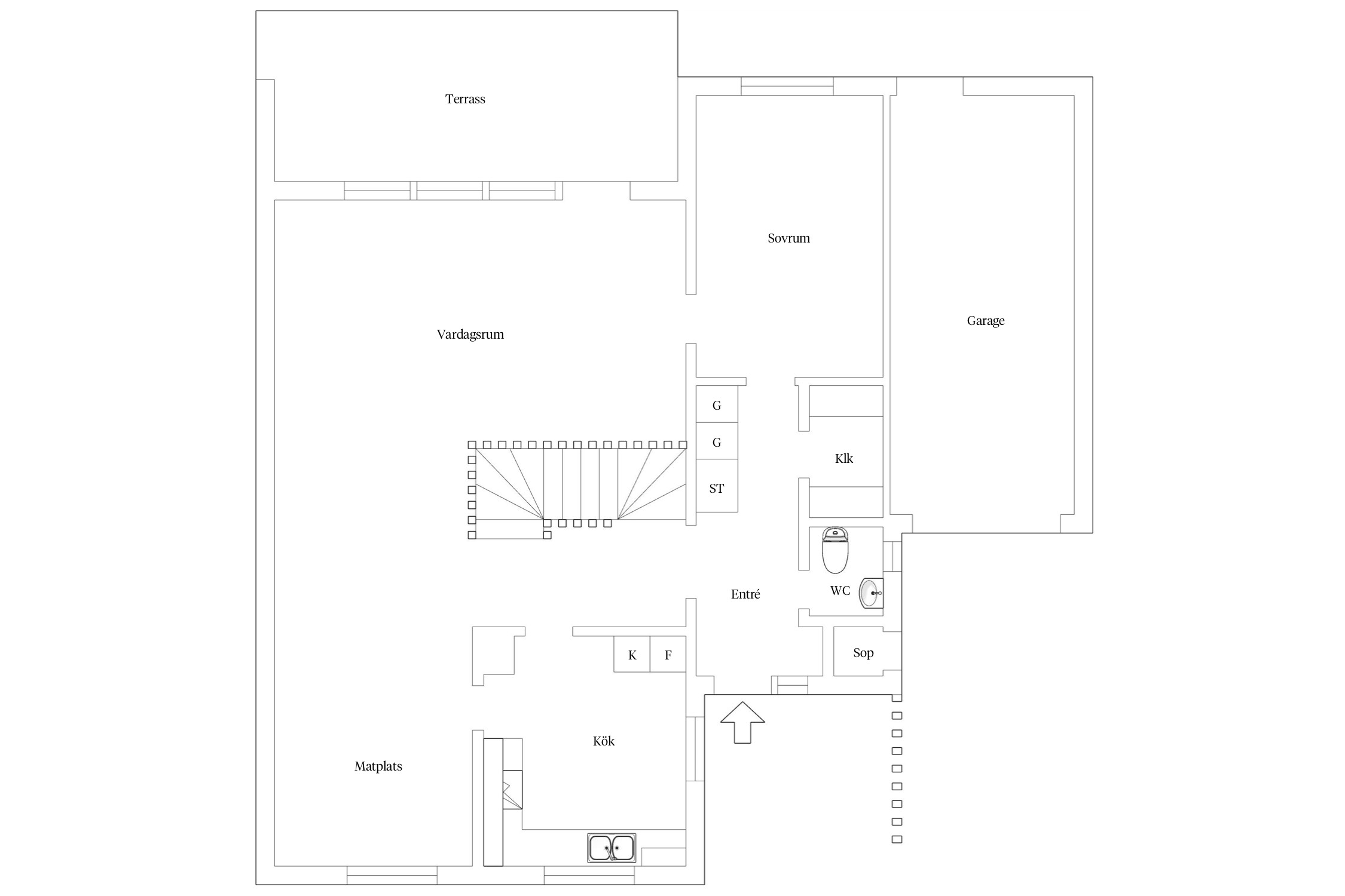
Entré: Rymlig hall med gott om plats för avhängning. På golvet vilar det parkett och väggara är tapserade i grön tapet. Här finns det förvaring i form av ett städskåp, rymlig klädkammare och två garderober.
Vardagsrum : Stort och rymligt vardagsrum med plats för större soffgrupp och diverse möblemang. På golvet vilar det parkett och väggarna är tapetserade. Härifrån når man även ut till den härliga terrassen.
Kök : Stort och rymligt kök med massor av potential. På golvet ligger det en plastmatta och väggarna är tapetserade. Ljusa luckor, bänkskiva i rostfritt stål och stora fönsterpartier. Här finns det även förberett för diskmaskin.
Utrustning:
Spishäll - Husqvarna
Ugn/varmluft - Husqvarna
Kyl- Gram
Frys - Gram
Sovrum 1 : Golv: Nålfiltmatta, original
Väggar: Tapet, ljus
Förvaring: Ett klädskåp
Sovrum 2: Golv: Nålfiltmatta, original
Väggar: Tapet, ljus
Förvaring: Klädskåp + skåp
Sovrum 3 : Golv: Nålfiltmatta
Väggar: Tapet, ljus
Förvaring: Klädskåp
Sovrum 4: Golv: Matta
Väggar: Tapet
Badrum: Plastmatta på golvet och våtrumstapet på väggarna. Utrustad med bidé, toalett, badkar, handfat och skåp.
Gäst wc: Plastmatta på golvet och våtrumstapet på väggarna. Utrustad med toalett, handfat och skåp.
Tvättstuga : Placerat i källaren, golv och väggar i målad betong. Här finns det arbetsbänk i trä och utrymmet är utrustat med tvättmaskin, torkskåp, handfat och mangel.
Entré
Rymlig hall med gott om plats för avhängning. På golvet vilar det parkett och väggara är tapserade i grön tapet. Här finns det förvaring i form av ett städskåp, rymlig klädkammare och två garderober.
Vardagsrum
Stort och rymligt vardagsrum med plats för större soffgrupp och diverse möblemang. På golvet vilar det parkett och väggarna är tapetserade. Härifrån når man även ut till den härliga terrassen.
Kök
Stort och rymligt kök med massor av potential. På golvet ligger det en plastmatta och väggarna är tapetserade. Ljusa luckor, bänkskiva i rostfritt stål och stora fönsterpartier. Här finns det även förberett för diskmaskin.
Utrustning:
Spishäll - Husqvarna
Ugn/varmluft - Husqvarna
Kyl- Gram
Frys - Gram
Sovrum 1
Golv: Nålfiltmatta, original
Väggar: Tapet, ljus
Förvaring: Ett klädskåp
Sovrum 2
Golv: Nålfiltmatta, original
Väggar: Tapet, ljus
Förvaring: Klädskåp + skåp
Sovrum 3
Golv: Nålfiltmatta
Väggar: Tapet, ljus
Förvaring: Klädskåp
Sovrum 4
Golv: Matta
Väggar: Tapet
Badrum
Plastmatta på golvet och våtrumstapet på väggarna. Utrustad med bidé, toalett, badkar, handfat och skåp.
Gäst wc
Plastmatta på golvet och våtrumstapet på väggarna. Utrustad med toalett, handfat och skåp.
Tvättstuga
Placerat i källaren, golv och väggar i målad betong. Här finns det arbetsbänk i trä och utrymmet är utrustat med tvättmaskin, torkskåp, handfat och mangel.



Rekryten 10
*Areauppgifter enligt taxeringsinformationen
Träbeklädnad: Betong
2025:
Trä fasad, bytt plankor + målning + ny hängränna (Dokumentation finns)
2023:
Reling avlopp från hus till gata (dokumentations finns)
Nya 3 glas utåt gatan på bottenplan
(dokumentation finns )
2015:
Ny asfalt på framsidan
2013:
Nytt papptak på garage (dokumentation finns)
2012:
Taktvätt + behandling (dokumentations finns)
2011:
Nya fönster till sovrum och hall (dokumentations finns) på ovanvåningen samt nytt fönster i sovrummet på entréplan.
Garage, ca 18kvm + carport ca 15 kvm.
Uteplats i öster läge, Insynsskyddat.
Kommunalt vatten, Kommunalt avlopp.
Friköpt tomt
Garage på 18 kvm samt carport på 15 kvm finns.
Tomtindelning (1971-04-28) Stadsplan (1970-07-03)
Fiber
Telia, öppen fiber
I posten El ingår även kostnad för uppvärmning. I posten VA ingår även kostnad för sophätmning.
Säljaren upplyser om att varmvattenberedaren inte fungerar och behöver bytas ut.
Lös egendom som ingår: biljardbord om så önskas.
Det finns 3 st pantbrev uttagna om sammanlagt 235 000 kr
I Husie bor du på bekvämt avstånd från centrala Malmö samtidigt som du är nära natur och grönområden. Här finner du områden som Jägersro med travbana och stort köpcenter och gemytliga Kvarnby med vackra hus och golfbana med 18 hål. Området är perfekt för pendlare då du på kort tid tar dig ut på motorvägen och vidare över Öresundsbron till Köpenhamn.
Östra Malmö är populärt att bosätta sig för dem som vill bo lite utanför stan men med direkt närhet till centrala delarna och service och kommunikationer. Tack vare Östra Malmös läge är området perfekt att bo på för den som pendlar. På bara några minuter befinner du dig både på ringvägen för vidare färd in mot stan eller ut på motorvägen. Detta gör att många som pendlar till Köpenhamn väljer att bosätta sig här. Även Malmö City Airport finns på pendelavstånd.
Bosätter du dig i Kvarnby får du verkligen njuta av naturen på nära håll. I direkt anslutning till bostadsområdet finns Kvarnby GK. En 18-hålsgolfbana som är väldigt populär bland Malmöborna. I gamla Kvarnby by finns också Kvarnby folkhögskola. Området är barnvänligt, lugnt, behagligt och nära till kommunikationer. Med närheten till såväl förskola som grundskola, blir det enkelt för barnfamiljen.
I stadsdelen Husie ligger områdena Röda Höja, Vita Höja och Gula Höja. Här bor du högt över havet eftersom Höja är Malmös högsta naturliga punkt. Här finns både småhus och flerfamiljshus. Södra Sallerup som ligger öster om yttre ringvägen består till största delen av landsbygd och gårdar. Här finns också Wowragården, en gammal korsvirkesgård som numera är museum, samt Södra Sallerups kyrka från 1100-talet.
Riseberga och Virentofta är två populära bostadsområden. Här finner du bra skolor i ett lungt och skönt område. Dina grannar består av barnfamiljer blandat med äldre personer. Från Riseberga och Virentofta kan du utan problem cykla till jobbet i centrala Malmö.
Jägersro är inte bara en trav- och galoppbana. Strax intill finns ett idylliskt villaområde samt en del nyare småindustrier och kontorslokaler. Jägersro Center erbjuder omväxlande shopping med en mängd olika butiker under samma tak. Precis intill Jägersro ligger villaområdet Stenkällan. Området består i huvudsak av friliggande villor från 1960–1970-talen. Området är döpt efter en äng på Västra Skrävlinge bys mark.
Vill du köpa, sälja eller värdera bostad i Stenkällan? Kontakta Bjurfors mäklare på Malmö City! Passa också på att anmäla dig till vår kostnadsfria söktjänst Boagenten som hjälper dig att hitta ditt drömboende.
Kontakta mäklaren om du behöver hjälp att ta fram en boendekalkyl.
När du köper din bostad genom Bjurfors kan du ansöka om bolån till en förmånlig ränta hos vår samarbetspartner SEB.
Förhandsvisning. Anmälan krävs.
Ansvarig mäklare