-
Köpa
Köpa -
Sälja
Sälja - Hitta bostad
- Skapa bevakning
- Hitta mäklare
Enplansvilla uppförd av byggmästare år 1963
Borrby, Simrishamn
*Areauppgifter enligt taxeringsinformationen
Bokad Påskvisning. Anmäl dig på Bjurfors.se.
Här drar man nytta av ett vattenburet värmesystem genom luft/vattenvärmepump, 2-glasfönster samt ett nyare yttertak.
Det gedigna stenhuset på Backagatan 7 i Borrby har varit i samma familjs ägo sedan uppförandet 1963 och har åldrats med värdighet tack vare ägarnas omsorg och kompetens. Med sina fina ytor och stora trädgårdstomt på ett av byns högsta lägen hoppas jag platsen kan inspirera till såväl familjeliv som odling eller mindre hobbyverksamhet i källaren. Läget är ett av byns absolut bästa och möjligheterna här är många - välkomna!
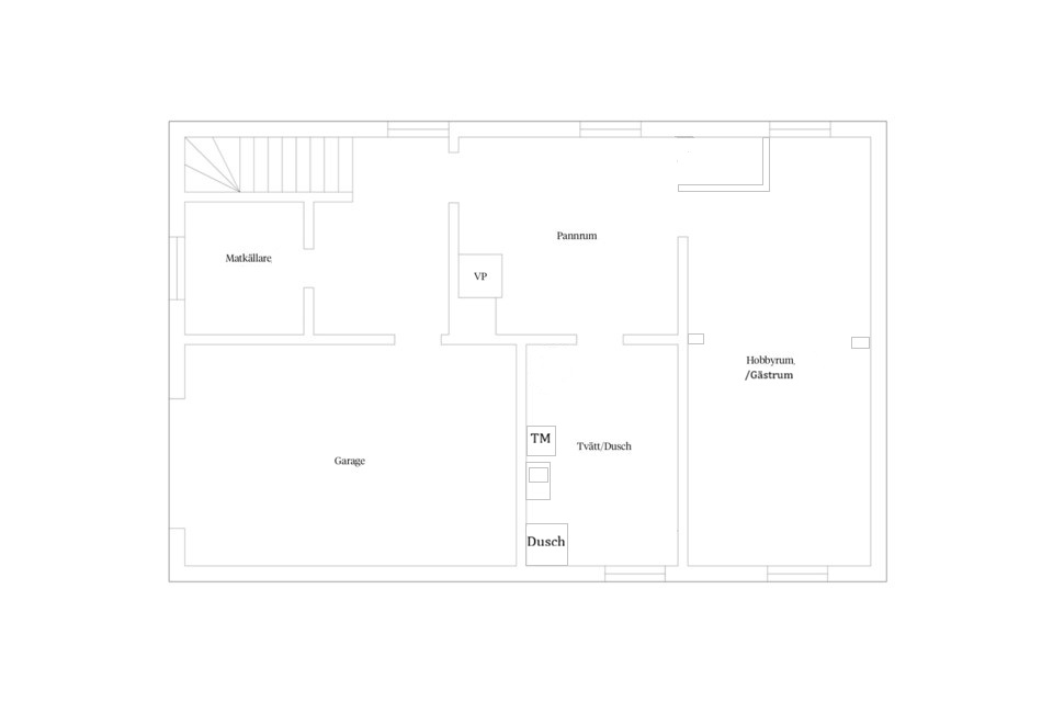
Huset är funktionellt planerat med 94 kvm boarea på entréplan och 94 kvm biarea på källarplan. Genom åren har flertal betydande renoveringar ägt rum så som byte till tvåglasfönster, byte av tak samt byte av värmekälla till luftvattenvärmepump. Entrévåningen har idag två allrum, två sovrum samt entréhall, duschrum och kök. Via vardagsrummet vetter ett trivsamt altandäck i bästa söderläge och med härlig öppen utsikt över byn. Källarvåningen är väl omhändertagen och inrymmer idag garage, pannrum, matkällare, tvättstuga/duschrum samt ett inrett gästrum/gillestuga.
Detta är sammantaget ett mycket charmigt, ekonomiskt och behagligt boende på lugnt läge i vackra, serviceberikade Borrby. Alldeles runt kvarteret ligger dessutom Kyrkreservatet BorrbyBackar, en lövträdbeklädd ås som löper längs hela byn mot norr. Här finns även ängsmark med rikt djurliv och växtlighet, samt damm och hästhagar där stora delar ägs av Lunds Stift.
Borrby har ett unikt serviceutbud inom sitt område på Österlen. Apotek, Vårdcentral, Bank, Biograf, Ica och Busshållplats finns alla inom 350 meters avstånd från huset. Inte mycket längre bort finns Restaurant, Café, Bageri, Antikvariat och Färghandel, i byn finns även Skola, förskola, aktivt församlingshem samt ålderdomshem. Borrby är verkligen ett samhälle som har allt man behöver!



Örnaljung 17
*Areauppgifter enligt taxeringsinformationen
- Vind finns men ej med golv, endast isolering.
Betydande renoveringar och underhåll:
- Nytt yttertak (plåt) från cirka 2005
- Installation av luft/vattenvärmepump cirka 2008
- Byte av fönster (2-glas) cirka 2015
- Källaren har blivit dränerad sedan uppförandet med asfalt.
- Ett enkelt förråd finns på tomten (äldre skick).
Trädgården ligger i huvudsak mot varmt och soligt söderläge och har några rabatter med bland annat flertal pioner samt lavendel och hortensia. Även syrén och ligusterhäck finns på tomtens norrsida. Det är stensatt längs med husets öster- och norrsida och på framsidan i söder finns ett relativt nytt entré- och altandäck.
Kommunalt vatten, Kommunalt avlopp.
En mycket stor uppfart ger plats för åtminstone 5 bilar. Därtill garage via källare.
Tomtindelning (1957-12-18) Stadsplan (1957-03-22) Stadsplan (1948-11-26) Stadsplan (1943-02-12)
Driftkostnader och elförbrukning är inhämtade från säljaren och bör endast ses som en uppskattning. Kostnaden kan variera och baseras på förbrukning och avtal.
Det finns 8 st pantbrev uttagna om sammanlagt 245 000 kr
För att leva upp till en slogan som ”Borrby – Österlens hjärta” krävs det något alldeles särskilt. Den här byn bjuder en unik kombination av ett rikt kulturliv med biograf och antikvariat, flera föreningar inom sport- och fritidsaktiviteter samtidigt som det finns ett brett serviceutbud med affärer, skola och goda kommunikationer. Här pumpar livskvalitet runt i ett samhälle i en mycket vacker del av Österlen.
Det var författaren Theodor Thufveson som var med och lanserade begreppet Österlen i en turistbroschyr 1929 i ett försök att locka besökare till den sydöstra delen av Skåne. Theodor kallade sin hemby Borrby för Österlens ’hjärtpunkt’.
Idag har Borrby ett brett serviceutbud med livsmedelsbutik, bank, apotek, byggmarknad, bensinstation och restaurang. Här finns också vårdcentral, äldreboende och förskola samt skola upp till åk 6. Engagemanget i föreningar som Österlens Ridklubb, scouterna, Borrby IF, BTK Ajax gäller året om, här finns det många fritidsalternativ. Kulturlivet är också starkt. Borrbys biograf öppnade redan 1917 och drivs av filmentusiaster. Orten är en s.k. bokby, vilket är en världsomspännande rörelse med syfte att skapa hållbar turism och unika erbjudanden genom litteraturen. Borrby är Sveriges första bokby och här finns flera antikvariat och det hålls även språkcafé och litteraturfester. Varje sommar anordnas också Baddaredagen, en familjefest och simtävling för de allra minsta.
Det sköna strandlivet är en annan av Borrbys många kvaliteter. Utmed kusten följer flera områden med fritidshus och permanentvillor i fin natur med Örnahusen och Spraggehusen längst upp. Småorten Sandby har ett strandnära läge mellan dessa. Här ligger också Norrekås. Vid Kyhl och Mälarhusen är det särskilt vackert och även barnvänligt med långgrunda stränder. Borrby Strand erbjuder fritidshus samt campingplats med tennisbana och pool.
Det finns också flera områden med blandad bebyggelse med närhet till skolor och omsorg i Borrbys centrum, som Borrby Tuvor och Tullstorp. Mellan öppna fält ligger också Östra Hoby, Kvarnby samt Blästorp med fristående villor och lantgårdar.
Vill du köpa, sälja eller värdera bostad i Borrby? Kontakta våra mäklare på Österlen! Passa också på att anmäla dig till vår kostnadsfria söktjänst Boagenten som hjälper dig att hitta ditt drömboende.
Kontakta mäklaren om du behöver hjälp att ta fram en boendekalkyl.
När du köper din bostad genom Bjurfors kan du ansöka om bolån till en förmånlig ränta hos våra banksamarbetspartners Söderberg & Partners och SEB.
Bokad Påskvisning. Anmäl dig på Bjurfors.se.