-
Köpa
Köpa -
Sälja
Sälja - Hitta bostad
- Skapa bevakning
- Hitta mäklare
Centralt läge, topprenoverad med kök, helkaklad toalett, nya ytskikt på golv o väggar, el m.m
Joneberg, Simrishamn
*I månadsavgift ingår, VA, sopor och bostadsrättstillägg. Obligatoriska tillägg för kabel-tv/bredbandsavgift 280 kr/mån tillkommer. Hushållsel faktureras av Riksbyggen och läggs på hyresavierna.
**Areauppgifter enligt föreningen
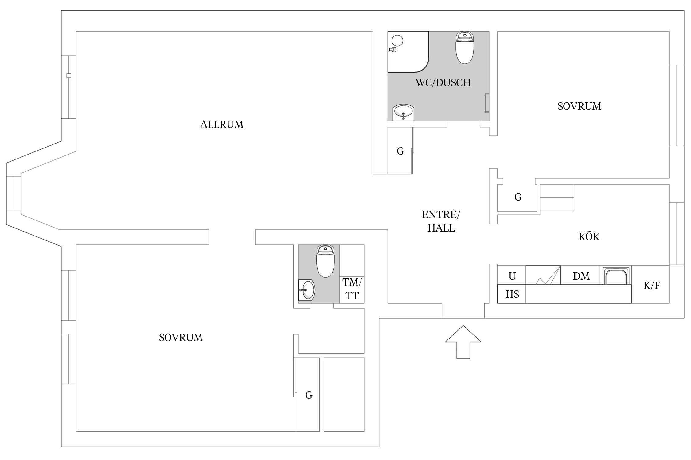
Bostadsrätt för dig som vill bo centralt och till en rimlig månadskostnad. De 79,5 kvm är en sammanslagen 2a och en 1a som är välplanerad och väl utnyttjade med extra toalett, tvättstuga mm. Lägenheten är totalrenoverad under senare år till toppstandard med kök, helkaklad toalett och nya ytskikt på golv och väggar, eluttag, strömbrytare mm så det är bara till att flytta in och möblera i ditt nya drömboende. Föreningen har under senaste åren utfört stora investeringar i sina byggnader. Föreningen godkänner deltids-/fritidsboende. Kort gångavstånd till hav/hamn, kommunikation samt centrum med stort utbud av butiker, restauranger, service mm. Välkommen på visning!
Entré från trapphuset in till central och rymlig hall med plats för ytterkläder. Klinkergolv närmst ytterdörr, Skjutdörrsgarderob.
Fräscht och renoverat kök med matplats. Spishäll, rostfri fläkt, rostfri inbyggnadsugn, rostfri kyl/frys, rostfri diskmaskin och vit kakel ovan bänkskivor.
Helkaklad toalett (ombyggd våren 2022) med WC, tvättställ , hörndusch med glasdörrar och handdukstork.
Sov/arbetsrum med klädkammare. Nylagt parkettgolv.
Stort och ljust allrum med utrymme för både matplats och sällskapsavdelning. Nylagt parkettgolv.
Stort sovrum med plats för dubbelsäng och liten arbetshörna, nylagd heltäckningsmatta och åtkomst till toalett. Skjutdörrsgarderob.
Gästtoalett med WC och tvättställ.
Utrymme i anslutning till sovrum med förvaring, tvättmaskin och torktumlare.



Anden 5
*Areauppgifter enligt föreningen
I månadsavgift ingår, VA, sopor och bostadsrättstillägg.
Obligatoriska tillägg för kabel-tv/bredbandsavgift 280 kr/mån tillkommer.
Hushållsel faktureras av Riksbyggen och läggs på hyresavierna.
Totalrenoverat under senaste åren med i köket ny bänkskiva, rostfri vask, kakel, spishäll (90 cm), helkaklat badrum 2022 med dusch, WC, tvättställ och handdukstork, nya ytskikt på golv med ekparkett, heltäckningsmatta i ett av sovrummen, uppdaterad el med eluttag, strömbrytare mm
Förråd i källare och på vinden och då det har varit två lgh som öppnats upp till en större så finns två förråd på vinden och två i källare.
Bilplats på gatan utanför.
Garage (varm) finns att hyra för400 kr/månad (kösystem gäller).
Föreningen har avtal med Telenor för bredband och tv. Ingår i månadsavgiften.
Bostadsrättens indirekta nettoskuldsättning baseras på föreningens skulder/lån minus föreningens
räntebärande tillgångar och likvida medel. Beräkningen är gjord och baseras enbart på den senaste tillgängliga
årsredovisningen. För mer information kontakta ansvarig fastighetsmäklare. Uträkningen är eventuellt baserad
på fel andelstal och kan därför vara felaktig.
Jonebergsvägen 3 A, andra våningen. Välkommen på visning!
*Betalas av säljare
Föreningens fastighet Anden 5 byggdes 1954-1958. På fastigheten finns 3 st byggnader med 57 lägenheter och 10 lokaler.
Fastighetens adress är Fredsdalsgatan 2A-2D samt Jonebergsvägen 3A-3D.
Välskött och stabil förening med god ekonomi. Både den tekniska och den ekonomiska förvaltningen utförs av Riksbyggen.
Avgiften höjdes med 10% 2025-01-01. (Kontrollerat 20250310)
År 2024 höjdes avgifterna 12%.
Fastigheterna är fullvärdesförsäkrade i Folksam.
Hemförsäkring bekostas av bostadsrättsinnehavaren och bostadsrättstillägg ingår i föreningens fastighetsförsäkring.
2002 - Byte av vattenledningar
2011 - Relining av stammar (avlopp) genom glasfibermetod i hela fastigheten
2015 - Byte av samtliga fönster till treglas
2018 - Lades yttertaken om
2019 - Elinstallationer, tvättstuga och markytor
2020 - Underhållsspolning och relining
2021 - Relining. Målning tak garage
2023/2024 - Nya säkerhetsdörrar till samtliga lägenheter, branddörrar korridorer källarplan, nya porttelefoner
2024: Trapphusen har målats om
2025: Installation av gemensam el
Inga andra stora renoveringar är beslutade
Garage (varm) finns att hyra för medlemmar ca 400 kr/månad, kösystem gäller, i talande stund finns det lediga garage.
Kabel-TV (basutbud), bredband via Telenor tillkommer som ett obligatoriskt tillägg på avgiften.
Fin och välskött trädgård tillhör föreningen, som har tre gemensamma uteplatser varav en med grill.
Välutrustad tvättstuga finns i källaren under Jonebergsvägen 3 C - D. Tvättstuga finns även i källaren på Fredsdalsgatan 2 B-C. Två bokningskolvar per lägenhet ger generösa tvättider.
I källarplan under D-trappan finns ett övernattningsrum med liten toalett och separat dusch att boka för medlemmarnas släkt och vänner. Utöver finns motionsrum och cykelförråd.
Föreningen godkänner deltidsboende så man behöver inte vara mantalsskriven på adressen. Uthyrning i andra hand godkännes inte i föreningen.
All information om föreningen har inhämtats genom årsredovisningen och föreningens styrelse. Slutgiltig köpare uppmanas att kontakta representant från föreningen för att stämma av föreningsinformationen.
Simrishamn kallas för Österlens huvudstad och kan stolt bära upp det namnet tack vare sin genuina charm och vackra bebyggelse. I tätorten ligger pastellfärgade låga hus i långa rader längs kullerstensgator där prunkande trädgårdar anas bakom lika skönt målade plank. Det är inte bara det generösa klimatet som gör Simrishamn till ett blomstrande samhälle, här finns all service som skolor, omsorg och affärer nära och aktiva kulturrörelser inom många intressen.
Huvudgatan i området Gamla Stan är Storgatan. Den inbjuder till trevliga promenader och löper genom hela staden, från hamnen, förbi Stortorget och vidare ut på landet. På de låga husen som ligger tätt mot den stensatta gatan välkomnar de unika entrédörrarna, Simrishamnsdörrar, familj och vänner. Dubbeldörren är ofta målad i en stark färg som även syns runt fönster och på plank. På tvärgatorna och runt torget ligger flera unika småbutiker men även Apotek och större matvaruaffärer. Det är lätt att ta del av kulturutbudet då Österlens Museum ligger mitt i Gamla stan. Det är också lätt att resa till och från småstaden med Pågatåg och expressbussar till större städer.
För den som är intresserad av blommor och andra växter erbjuder Simrishamn något extra. Det gynnsamma klimatet gör att det blommar särskilt glatt i vindskyddade lägen, som till exempel bakom gathusens plank.
Joneberg är ett område där låga flerfamiljshus från mitten av 1900-talet blandas med höga nybyggnationer. Det ligger i anslutning till grönskan i Brunnsparken och här finns också ett centrum med service som sporthall och vårdcentral. Det arrangeras en mycket populär loppmarknad under Suckarnas gång i Brunnsparken under lördagar på sommarhalvåret. Om man inte vill pruta och fynda kan man istället välja att sälja själv, det går att hyra bord.
Strax söder om Simrishamns centrum ligger Simrislund där äldre fastigheter samsas med villor uppförda under 1960- och 1970-talet. Från flera av husen bjuds en vidunderlig utsikt över havet och området avgränsas av betesängar. I Simrislund finns barnomsorg och grundskola och det är lätt att pendla med buss och Pågatag till Malmö, Lund och Ystad.
Den slingrande Tommarspån är inte bara vacker utan erbjuder också möjligheter för alla att fiska havsöring. I ån kan man också fånga den typiskt skånska delikatessen ål. Bostadsområdet Tobisborg ligger norr om Simrishamns centrum i en mycket vacker natur som präglas av närheten till både Östersjön och just Tommarspån. Här blandas nybyggnation med äldre sommarhus för en trivsam miljö. Djurlivet är speciellt med arter som inte trivs bättre i området än på någon annan plats. Här finns t ex Europas tätaste bestånd av den rara hasselmusen. Mot den vackra kusten ligger ett utomhusbad, Tobisviksbadet, med långa bassänger om man inte vill bada i havet. Utmed kusten bjuder en cykel- och gångväg en vacker slinga in till Simrishamn centrum.
Havets rikedom lade grunden till Simrishamn. Ett litet fiskeläge växte under 1500-talet till en stor hamnstad främst tack vare sillfisket. Det gav stabilitet och framgång och därför är också en fisk avbildad på stadsvapnet.. Tätorten präglas idag av lugn och ro men ändå med all service lätt tillgänglig för alla. Idag finns här Sveriges största fiskehamn och i centrum erbjuds flera gästhamnar för fritidsbåtar då turismen av lätt förståeliga skäl ökar. Simrishamns kommun har även startat Marint Centrum som bedriver miljöforskning om Hanöbukten och Östersjöregionen.
Vill du köpa, sälja eller värdera bostad i Joneberg? Kontakta våra mäklare på Österlen! Passa också på att anmäla dig till vår kostnadsfria söktjänst Boagenten som hjälper dig att hitta ditt drömboende.
Kontakta mäklaren om du behöver hjälp att ta fram en boendekalkyl.
När du köper din bostad genom Bjurfors kan du ansöka om bolån till en förmånlig ränta hos våra banksamarbetspartners Söderberg & Partners och SEB.
Ansvarig mäklare