Hoppa till innehåll

Lugnt läge på återvändsgata

  • Besiktigad

Kivik, Simrishamn

Genfärdabacken 18

Utgångspris:
3 150 000 kr
Antal rum:
6
Boarea / Biarea:
108 kvm / 108 kvm*
Tomtarea:
764 kvm
Typ:
Friliggande villa

*Areauppgifter enligt taxeringsinformationen
Antal rum inkluderar 2-3 sovrum/gästrum i källare

ANMÄL DIG TILL VISNING

  1. Bokad visning.

Ansvarig mäklare

Erica Nilsson

Fastighetsmäklare

Bjurfors Österlen
Erica Nilsson

BOKA EN KOSTNADSFRI VÄRDERING

Lugnt läge på återvändsgata

Gångavstånd till hav, natur och byns service

Beskrivning

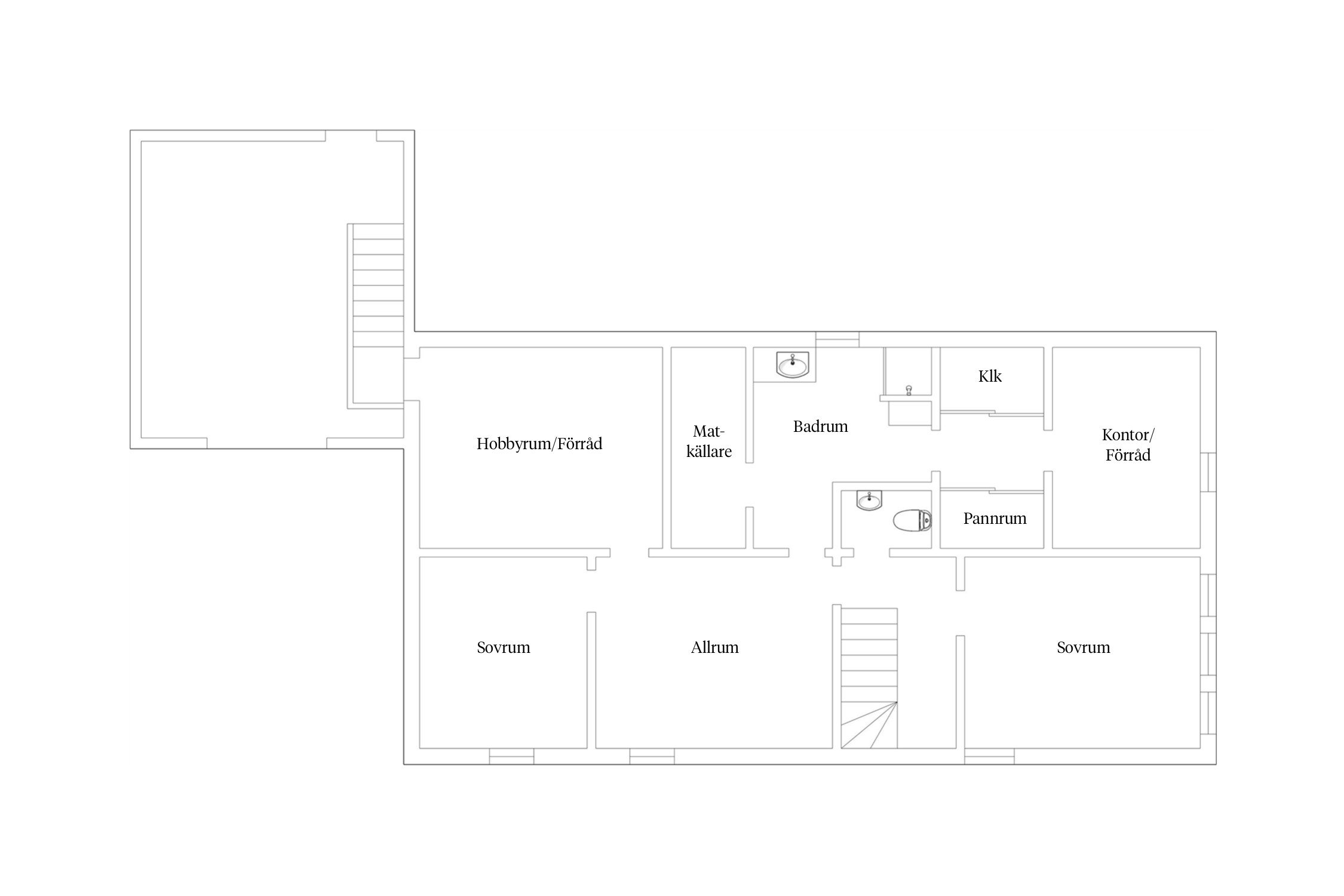
Välkommen till Genfärdabacken, en lugn återvändsgata i gemytliga Kivik med gångavstånd till hav, natur och byns service. Denna enplansvilla med källare uppförd 1975 har under åren förändrats mestadels på insidan. En modern och öppen planlösning råder idag på entréplan, där köket utgör husets hjärta och på vardera sida om köket finns väl tilltagna sällskapsutrymmen, därutöver master bedroom och helkaklat badrum kombinerat med tvättstuga.
I källaren finns fyra inredda rum varav två till tre rum utgör sovrum/gästrum samt ett generöst duschrum och separat toalett. En tillgång för Dig som har utflugna barn som gärna kommer hem och hälsar på!
Därtill finns hobbyrum och förrådsutrymmen och direkt access till garage.

Mot havet finns både stensatt uteplats och ett stort altandäck med morgonsol. Del av altandäcket har skyddande tak och resterande har insynsskyddande staket.
Taket är omlagt i samband med att solceller med batteri installerades 2024/2025 vilket tillsammans med luft/vatten värmepump ger en ekonomisk fördelaktig drift. Isolerglas i hela huset.

Fastigheten är besiktigad. Friskrivningsklausul gäller då nuvarande ägare har ärvt fastigheten och aldrig själv varit bosatt på den.

Interiör

Entréplan:
Entrédörr med fönsterglas ger en ljus och välkomnande hall.
Köket är centralt placerat och praktiskt utformat med gott om arbetsytor, perfekt för matlagning i par! Maskinell utrustning; inbyggnadsugn, häll med induktion, fläkt (ca 2 år), diskmaskin och kyl/frys (side by side). Fin kontakt med vinklat vardagsrum och matrum, allt i öppen planlösning, med kamin som skapar stämning. Utgång till altandäck.

Öppen trappa till källaren. På andra sidan köket finns ytterligare ett sällskapsrum/TV-rum.
Master bedroom med gott om förvaring bakom skjutdörrar, utgång till uteplats och altandäck samt ingång till badrum/tvätt. Även från köket nås badrum/tvätt.

Källare:
Trappan leder ner i nätt hall med toalett. Till höger finns ett inrett sovrum/gästrum.
Allrum med vattenburen golvvärme - ett genomgångsrum varifrån ytterligare ett sovrum/gästrum nås samt även rymligt helkaklat duschrum med vattenburen golvvärme.
Passage med klädförvaring och utrymme med värmepump leder vidare in till ett förråd/kontor.
Hobbyrum med hyllor, arbetsbänk och förvaring, batterianläggning till solceller, extra kyl/frys samt uppgång till garage.

Planritning

Planlösning
Planlösning

Fakta om bostaden

Fastighetsbeteckning

Mellby 27:69

Information

Typ
Friliggande villa
Upplåtelseform
Friköpt
Utgångspris
3 150 000 kr
Rum
6
Antal sovrum
3
Max antal sovrum
4
Boarea
108 kvm*
Biarea
108 kvm
Tomtarea
764 kvm

*Areauppgifter enligt taxeringsinformationen
Antal rum inkluderar 2-3 sovrum/gästrum i källare

Byggnadssätt

Byggnadstyp
1 plan med källare
Byggår
1975*
Fasad
Tegel, träpanel
Grund
Källare
Stomme
Trä
Bjälklag
Trä
Uppvärmning
Luft/vatten värmepump, solceller, kamin
Takbeklädnad
Betongpannor
Ventilation
Självdrag och fuktstyrda fläktar i våtutrymmen
Fönster
3-glas isoler
Grundmur
Betong

*Eksjöhus

Solceller med batteri 8 kWh
Kamin - Contura 890T med integrerad tilluftskanal installerad 2023.

Larm / Sector Alarm
Centraldammsugare
Markiser

Vattenburen golvvärme i duschrum/tvätt på boplanet samt i duschrum och allrum i källaren.

Ombyggnad, Renoveringar

2021: Helkaklat badrum uppe, luft/vatten värmepump
2024/2025: Yttertak omlagt och solceller installerade

Övriga byggnader/utrymmen

Garage sammanhängande med huvudbyggnaden, access till källaren. Betongplatta på mark, papptak och stomme av trä.

Besiktning

Besiktigad
Ja

Uteplats/balkong

Stenlagd uteplats, altandäck dels med skyddande tak och dels med insynsskyddande staket.

Vatten/Avlopp

Kommunalt vatten, Kommunalt avlopp.

Tomt

Hörntomt. Låg mur mot gatan, gräsmatta, träd och perenna växter, natursten och stenlagda ytor. Flaggstång.

Parkering

Asfalterad garageinfart med plats för en bil.

Planbestämmelser

Stadsplan (1978-08-04) Stadsplan (1971-09-17)

TV/bredband

Fiber

Ekonomi

Taxeringsvärde
3 230 000 kr
Byggnadsvärde
2 464 000 kr
Fastställt
2024
Kod
220, Småhusenhet, bebyggd
Fastighetsskatt/Avgift
10 425 kr

Driftskostnad (per år)

Personer i hushållet
2
Sotning
500 kr
Hushållsström
21 154 kr
Försäkring
4 008 kr
Renhållning
1 736 kr
Vatten/Avlopp
9 618 kr
Summa
37 016 kr

Kostnad för hushållsström avser helår 2025 (förra ägaren). Solceller installerades maj 2025, ca 5 100 kWh producerat till december 2025. Beräknad årsproduktion ca 8 600 kWh. Enligt kontrolluppgift 2025 har 6 400 kWh köpts och 2 879 kWh sålts.

Energideklaration

Utförd
Ja
Energiklass
B
Energideklarationsdatum
2026-03-25

Pantbrev

Det finns 4 st pantbrev uttagna om sammanlagt 885 000 kr

Om Kivik

Att bo i Kivik

Det är nog så att Kivik är den mest mytomspunna byn på hela Österlen. Inte minst de sköna omgivningarna lockar fram starka känslor och de små fiskelägena i området kallas för paradis. Ulf Lundell sjunger om månskenet över Haväng och Prins Eugen fångade utsikten över Brösarps backar i sina tavlor. Kivik är också ett alldeles vanligt litet samhälle där ett stort utbud av butiker, restauranger, caféer, skola och goda bussförbindelser ger ovanligt bra förutsättningar till ett gott liv året om.

Kiviks samhälle har lite drygt 1000 bofasta invånare men dessa får sällskap av många fler främst under sommarhalvåret. Det bildar en trevlig mix av åretruntboende, fritidshusägare och turister som tar del av allt området erbjuder. Kiviks samhälle har en blandad bebyggelse från smala strädden med Kaptenshus och fiskarehus som minner om det ursprungliga fiskeläget till toppmoderna villor. Agdelund är ett centralt beläget område med fristående villor som etablerades på 1970-talet. Bästekille ligger högre upp med en milsvid utsikt över bukten och här finns också Hjälmaröd med flera fritidshusområden.

I slutet av 1800-talet fann man att klimatet och sandjorden lämpade sig särskilt väl för äppelodling. Ett bevis på detta är den årliga Äppelmarknaden som anordnas av en rad odlare och företag inom svensk fruktnäring. Bland de stora märks Äppelriket och Kiviks Musteri. Ibland kallas den här sträckan längs vattnet just för Äppelkusten och det är mycket vackert då träden står i blom. Företaget Buhres är specialiserade på en annan lokal specialitet – fisk! Nere vid Kiviks hamnplan finns både butik och restaurang ut mot vattnet. Under tre dagar varje sommar lockas 100 000-tals besökare till den årliga Kiviks marknad, en folkfest med tradition från medeltiden. Idag hålls marknaden på ängarna mellan Kivik och Vitemölla.

Vitemölla är en av de charmiga små byar som vid vita stränder följer kusten upp norrut. Den 4 km långa stranden där Vitemölla Badhotell, som uppfördes i början av 1900-talet, tronar är särskilt känd. Längs de små gatorna runt hamnen ligger stora och små hus på rad.

Om man följer kustväg 9 norrut kommer man till Ravlunda. De vidunderligt sköna markerna uppmärksammades redan av Carl von Linné som ansåg att här var det ’härligt’. I den lilla byn fanns förr ett bränneri som numera har förvandlats till hotell känt för sin goda mat där råvarorna kommer från naturen runt knuten. I Ravlunda och i byn Skepparps rofyllda miljö gömmer sig flera trevliga fastigheter, från mindre längor till större gårdar, många byggda i traditionell skånsk stil.

Verke å springer ur sina källor på Linderödsåsen 180 meter över havet. På sin slingriga färd mot kusten bildar den en mäktig dalgång. Här kan man vandra Backaleden och i området finns flera naturreservat, som Haväng och Vitemölla strandbackar. För naturnära boende, med cykelavstånd till stranden på slingriga vägar, finns Havängs sommarby.

Söder om Kivik finner man områden som Skogsdala och Karakås som båda doppar tårna i vattnet. Mellby, Åkarp och Svinaberga ligger in mot land, högre upp på kullarna. I Svinaberga finns Kivik Art Center som visar utställningar inom konst och arkitektur i samklang med naturen. Svabesholm är ett område som ligger alldeles intill nationalparken Stenshuvud. Här skapar kustberg, orkidéängar och havet en magisk miljö. Här finns vandringsleder och kunskapsrika Naturum och om man efter alla upplevelser är fikasugen besöker man Kaffestugan Annorlunda som har serverat kakbuffé och annat gott sedan 1956.

Vill du köpa, sälja eller värdera bostad i Kivik? Kontakta våra mäklare på Österlen! Passa också på att anmäla dig till vår kostnadsfria söktjänst Boagenten som hjälper dig att hitta ditt drömboende.

Karta

Genfärdabacken 18

Genfärdabacken 18

27731 Kivik

Visa i Google Maps (öppnas i nytt fönster)

Boendekalkyl

Kontakta mäklaren om du behöver hjälp att ta fram en boendekalkyl.

När du köper din bostad genom Bjurfors kan du ansöka om bolån till en förmånlig ränta hos våra banksamarbetspartners Söderberg & Partners och SEB.

Ansök om lånelöfte hos Söderberg & Partners

Ansök om lånelöfte hos SEB

Håll koll på detta objekt

Anmäl dig till visning

Bokad visning.

Kampanjbild Boneo