-
Köpa
Köpa -
Sälja
Sälja - Hitta bostad
- Skapa bevakning
- Hitta mäklare
Ett historiskt smycke i gamla Kivik anno 1684
Kivik, Simrishamn
*Areauppgifter enligt taxeringsinformationen
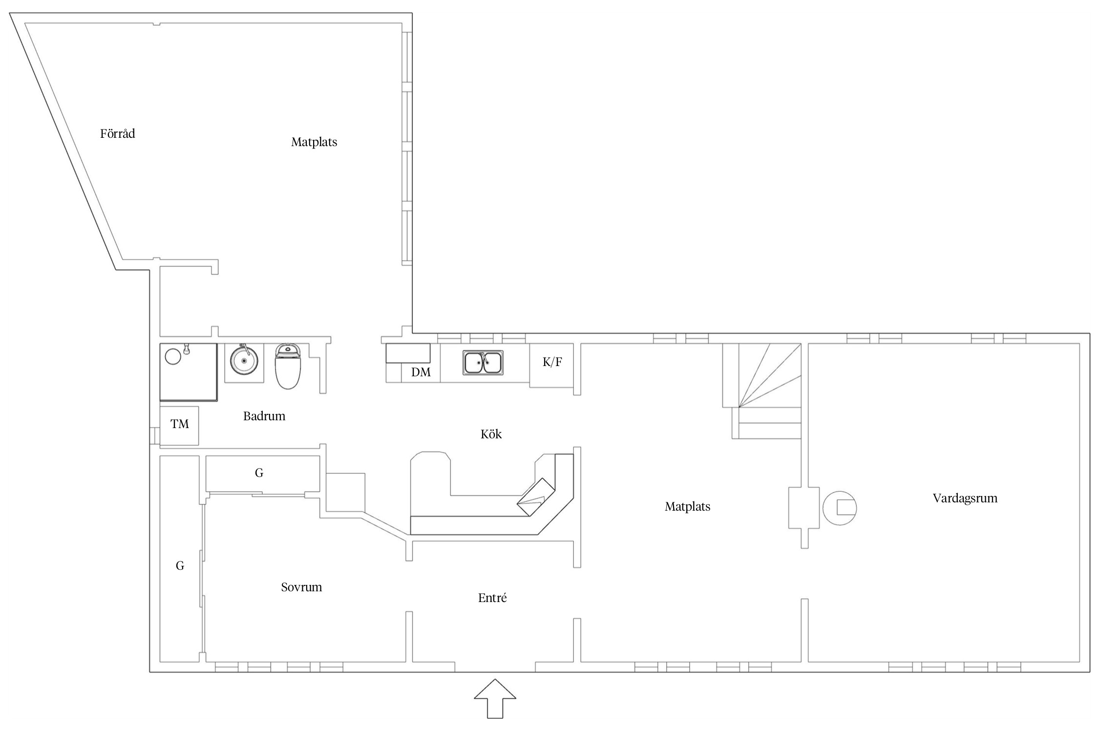
Ca 68 kvm på Entréplan. Golvyta ovanvåning ca 47 kvm. Uterum ca 22 kvm. Källare ej uppmätt.
På högt läge, bara en gata upp från havet och hamnen, ligger detta historiska korsvirkeshus i ett av Kiviks äldsta kvarter.
Känn historiens vingslag i denna charmiga och traditionella korsvirkeslänga på Kiviks fiskeläge med ca 50 meter till havet via Tomas Strädde, sann vardagslyx att ha ett stenkast till morgondoppet!
Husets traditionella skånska utseende förankrar fastigheten på ett självklart sätt på den nätta gatan ovanför hamnen. Den exteriöra konstruktionen och utsmyckningen med tegel, korsvirke och en klassisk veranda bidrar till ett högst iögonfallande hus. En lagom liten trädgårdstomt, i både nordöst och sydväst, gör detta till ett lättskött semester- eller permanentboende. Nuvarande ägare har bebott huset permanent i 25 år och sedan grunduppförandet på platsen ca år 1684 har nära nog varje familj, 14 till antalet, bebott huset i minst 10 år. Ett sant tecken på välbehag och trivsel. Kanske är ni husets nästa ägare som ska få njuta av platsen i många år framöver?
I behaglig kontrast till den sedvanliga skånska byggstilen bjuder däremot husets insida på uppdaterad standard samt en tillbyggnad. Badrum och kök renoverades med golvvärme och alltigenom god standard för dryga 20 år sedan, därtill har fönster, tak, värme och el renoverats.
En välskött bostad som varsamt och smakfullt renoverats i gammal stil med trägolv, spegeldörrar, fungerande vedspis i köket, spröjsade fönster, synliga bjälkar och vackra eldstäder.
Totalt finns 6 rum vilket är generöst för en äldre korsvirkeslänga, på entréplan finns sovrum, matsal, vardagsrum, kök och badrum. Vidbyggt med köket ligger ett uterum som byggdes till år 2021. I direkt anslutning till det fina uterummet ligger trädgård i österläge med härlig utsikt över havet, precis som från övriga rum i huset. En stensatt, lättskött uteplats kompletteras av förrådsbyggnad samt en fräsch förvaringskällare.
Ovanvåningen har precis som entréplan en vacker eldstad i allrummet, här finns därtill två sovrum - ett i vardera väderstreck. På husets framsida, mot Stengatan, vetter en fantastisk trädgård med mängder av rosor och vackra perenner. Här är det sol under hela dagen och kvällen!
Allt-som-allt är detta en unikt bevarad plats på attraktiv adress i gamla Kivik som lämpar sig lika väl som åretruntbostad- som sommarhus!



Kivik 44:1
*Areauppgifter enligt taxeringsinformationen
Ca 68 kvm på Entréplan. Golvyta ovanvåning ca 47 kvm. Uterum ca 22 kvm. Källare ej uppmätt.
*Oklart byggår. 1909 enl. taxering.
- Jordfelsbrytare finns. Merparten av elen är utbytt ca år 2006.
- Brandskyddskontroll utförd 2024-01-29
- Sotning utförd 2025-09-29
- Förbesiktning & energideklaration utförd 2025-09-29
2001: Nytt kök och badrum med golvvärme
2005/2006: Nytt golv i hall och sovrum nere, ny eldstad entréplan och nydragen el
2008: Framtagning av takbjälkar & nya fönsterkarmar
2010: Ny värmepump och nya ytterdörrar (2010-2011)
2013-2014: Ny entréveranda och nya stuprör
2014: Nytt staket/grind och stenläggning trädgård
2016: Elarbeten & byte till automatsäkringar
2021: Ny varmvattenberedare
2022: Nybyggnation uterum samt arbeten på trädgårdens östersida. Ny spisfläkt.
2023: Byte och målning av fönster
2024: Snickeriarbeten på södergavel
2025: Plåtarbete över entré, målning fönster.
2025: Ommålning yttertak (Oktober 2025)
- Förråd om ca 12 kvm.
- Fin förvaringskällare.
Fantastisk trädgård i två väderstreck, öster och väster. Vackert planerat med stenläggningar, inhägnat av plank och staket och med vackra växter och träd på västersidan.
Kommunalt vatten, Kommunalt avlopp.
Fastigheten har ingen egen uppfart/parkering, parkering kan ske vid hamnen ca 50 meter från huset. Längs med Stengatan kan det även finnas parkeringsmöjligheter men ej direkt utanför huset.
Detaljplan (1997-08-20)
Fiber finns
Huset har bebotts permanent. Notera att kostnaden för hushållsel är inkluderad i uppvärmningskostnaden.
Det finns 4 st pantbrev uttagna om sammanlagt 2 720 000 kr
Det är nog så att Kivik är den mest mytomspunna byn på hela Österlen. Inte minst de sköna omgivningarna lockar fram starka känslor och de små fiskelägena i området kallas för paradis. Ulf Lundell sjunger om månskenet över Haväng och Prins Eugen fångade utsikten över Brösarps backar i sina tavlor. Kivik är också ett alldeles vanligt litet samhälle där ett stort utbud av butiker, restauranger, caféer, skola och goda bussförbindelser ger ovanligt bra förutsättningar till ett gott liv året om.
Kiviks samhälle har lite drygt 1000 bofasta invånare men dessa får sällskap av många fler främst under sommarhalvåret. Det bildar en trevlig mix av åretruntboende, fritidshusägare och turister som tar del av allt området erbjuder. Kiviks samhälle har en blandad bebyggelse från smala strädden med Kaptenshus och fiskarehus som minner om det ursprungliga fiskeläget till toppmoderna villor. Agdelund är ett centralt beläget område med fristående villor som etablerades på 1970-talet. Bästekille ligger högre upp med en milsvid utsikt över bukten och här finns också Hjälmaröd med flera fritidshusområden.
I slutet av 1800-talet fann man att klimatet och sandjorden lämpade sig särskilt väl för äppelodling. Ett bevis på detta är den årliga Äppelmarknaden som anordnas av en rad odlare och företag inom svensk fruktnäring. Bland de stora märks Äppelriket och Kiviks Musteri. Ibland kallas den här sträckan längs vattnet just för Äppelkusten och det är mycket vackert då träden står i blom. Företaget Buhres är specialiserade på en annan lokal specialitet – fisk! Nere vid Kiviks hamnplan finns både butik och restaurang ut mot vattnet. Under tre dagar varje sommar lockas 100 000-tals besökare till den årliga Kiviks marknad, en folkfest med tradition från medeltiden. Idag hålls marknaden på ängarna mellan Kivik och Vitemölla.
Vitemölla är en av de charmiga små byar som vid vita stränder följer kusten upp norrut. Den 4 km långa stranden där Vitemölla Badhotell, som uppfördes i början av 1900-talet, tronar är särskilt känd. Längs de små gatorna runt hamnen ligger stora och små hus på rad.
Om man följer kustväg 9 norrut kommer man till Ravlunda. De vidunderligt sköna markerna uppmärksammades redan av Carl von Linné som ansåg att här var det ’härligt’. I den lilla byn fanns förr ett bränneri som numera har förvandlats till hotell känt för sin goda mat där råvarorna kommer från naturen runt knuten. I Ravlunda och i byn Skepparps rofyllda miljö gömmer sig flera trevliga fastigheter, från mindre längor till större gårdar, många byggda i traditionell skånsk stil.
Verke å springer ur sina källor på Linderödsåsen 180 meter över havet. På sin slingriga färd mot kusten bildar den en mäktig dalgång. Här kan man vandra Backaleden och i området finns flera naturreservat, som Haväng och Vitemölla strandbackar. För naturnära boende, med cykelavstånd till stranden på slingriga vägar, finns Havängs sommarby.
Söder om Kivik finner man områden som Skogsdala och Karakås som båda doppar tårna i vattnet. Mellby, Åkarp och Svinaberga ligger in mot land, högre upp på kullarna. I Svinaberga finns Kivik Art Center som visar utställningar inom konst och arkitektur i samklang med naturen. Svabesholm är ett område som ligger alldeles intill nationalparken Stenshuvud. Här skapar kustberg, orkidéängar och havet en magisk miljö. Här finns vandringsleder och kunskapsrika Naturum och om man efter alla upplevelser är fikasugen besöker man Kaffestugan Annorlunda som har serverat kakbuffé och annat gott sedan 1956.
Vill du köpa, sälja eller värdera bostad i Kivik? Kontakta våra mäklare på Österlen! Passa också på att anmäla dig till vår kostnadsfria söktjänst Boagenten som hjälper dig att hitta ditt drömboende.
Kontakta mäklaren om du behöver hjälp att ta fram en boendekalkyl.
När du köper din bostad genom Bjurfors kan du ansöka om bolån till en förmånlig ränta hos våra banksamarbetspartners Söderberg & Partners och SEB.