-
Köpa
Köpa -
Sälja
Sälja - Hitta bostad
- Skapa bevakning
- Hitta mäklare
Skånelänga i byns utkant med vyer över öppet landskap
Östra Vemmerlöv, Simrishamn
*Areauppgifter enligt säljarna. Enligt taxeringsinformationen 45 kvm boarea.
4 kvm biarea avser sovloft. Är boarean av vikt för köparen bör denne vidta egen uppmätning.
Bokad visning.
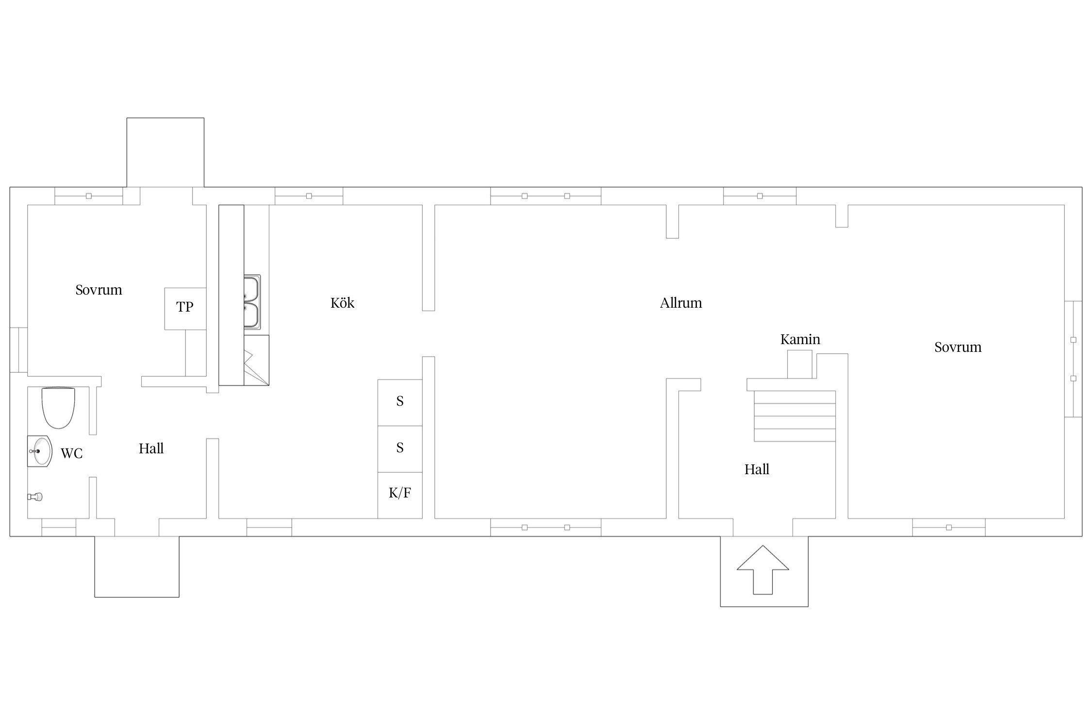
På ett stillsamt läge i byns utkant ligger denna charmiga skånelänga, något tillbakadragen och med vy över det öppna åkerlandskapet. Här möts man av ett rofyllt läge och ett landskap som skiftar med årstiderna – en plats där lugnet får ta plats.
Husets äldre karaktär är tydligt närvarande och harmonierar väl med ett modernare kök och badrum. Köket renoverades 2018 och erbjuder arbetsyta samt förvaringsmöjligheter. Badrummet är helkaklat och utrustat med elektrisk golvvärme och dusch.
Vardagsrummet präglas av husets kamin, installerad 2021, som bidrar med värme under årets kallare månader och här finns även en luft/luftvärmepump. Trägolv och synliga takbjälkar skapar en trivsam och inbjudande atmosfär. På entréplan finns två sovrum och en trappa upp finns ett sovloft samt en oinredd vind som ger möjlighet till ytterligare utrymme efter behov och önskemål.
Den stora tomten erbjuder gott om plats för trädgårdsliv, odling eller vistelse utomhus. Praktisk stenläggning fram till huset. Läget i byns utkant ger en privat känsla utan att vara isolerat. På fastigheten finns även ett mindre gårdshus samt ett äldre garage som idag nyttjas som förråd. Här finns möjligheter att vidareutveckla efter egna behov och idéer.
Bostaden lämpar sig väl som ett litet och trivsamt fritidshus men kan även fungera som permanentboende. Ett boende för den som söker en enkel tillvaro i lantlig miljö, med närhet till natur och öppna landskap. Säljarna har särskilt uppskattat stillheten, den fria utsikten och vardagens lugna tempo.
Östra Vemmerlöv ligger med naturen nära inpå. Det är enkelt att ge sig ut på promenader och cykelturer. Med cykel tar man sig till Gyllebosjön för bad, vandring och olika friluftsaktiviteter. Närmaste matbutik och tåg- och busstation ligger i Gärsnäs, ca 6 kilometer bort. Härifrån finns förbindelser mot Malmö och Lund.
Mitt i veckan trafikerar Skånetrafiken byn med regionbuss 575.
Fastigheten säljes med friskrivningsklausul. För mer info fråga mäklaren.
Välkomna på visning!



Vemmerlöv 19:9
*Areauppgifter enligt säljarna. Enligt taxeringsinformationen 45 kvm boarea.
4 kvm biarea avser sovloft. Är boarean av vikt för köparen bör denne vidta egen uppmätning.
2026
Mindre reparation tak och hängrännor på baksida
2024
Gavelvägg väster omgjord
2021
Ny kamin och reparation av skorstenen
2018
Satt in ny köksinredning, fläkt, diskmaskin, kyl/frys osv i köket.
2016
Installerat fiber
2014
En del fönster utbytta
2008
En del fönster utbytta
2006
Delvis ny el
Dränerat runt huset
Ca 2003-2004
Uppfräschning av badrum, elektrisk golvvärme, kakel och klinker
Kommunalt vatten, Kommunalt avlopp.
Fiber
I uppvärmningskostnaden ingår även hushållsel.
Fastigheten säljes med friskrivningsklausul. För mer info fråga mäklaren!
Enligt överenskommelse
Det finns 5 st pantbrev uttagna om sammanlagt 13 000 kr
Det finns ortsnamn som blir kända över hela världen – Gärsnäs är en sådan ort. Framgångarna för den lokala möbelproducenten gjorde det lilla samhället känt. Nu definieras Gärsnäs även som en av kommunens större byar som erbjuder det mesta – här finns livsmedelsaffär, vårdcentral, skola och goda pendlingsmöjligheter via buss- eller järnvägsstation på Österlenbanan.
Det var inte förrän i slutet på 1800-talet som samhället började ta form. Utvecklingen skedde till viss del tack vare Gärsnäs Möbler som startade sin verksamhet 1893. De är främst kända för sin export till ambassader och det är inte omöjligt att du som läser detta har suttit på en Gärsnäs-stol under en måltid på en finare restaurang. Idag tillverkar man mer än stolar och hantverkstraditionerna förs vidare i den lokala fabriken. I show room kan besökare hitta klassiker och nutida designsamarbeten som prisas som nyskapande.
Runt korsningen vid huvudgatorna Malmövägen och Storgatan ligger populära Norrmans Conditori i centrum som pålitligt bakar smörgåstårtor och klassiker som Prinsess- och Schwarzwaldtårtor utan att snegla alltför mycket på vad som är trendigt. Här finns också livsmedelsaffär, vårdcentral, leksaksaffär samt gatukök och bensinstation. I hjärtat av Gärsnäs ligger också förskola och skola, verksamheterna delar lokal. Utmed de lugna gatorna ligger fristående villor samt lägre flerfamiljshus.
Utanför Gärsnäs breder ett öppet landskap ut sig. Bland fälten vilar lantliga fastigheter i lugna områden som Stiby och Virrestad. Till Komstad reser folk långväga ifrån för att shoppa på Komstad Skor & Tofflor. Här finns även Drömbageriet, där alla godsaker bakas från grunden. Naturen förändras i omgivningarna kring Gyllebosjön som ligger inramad av lövskog. På sommaren är sjön ett barnvänligt badställe med bryggor och grillplats. På vintern är det många som åker skridskor på sjön och bastubadar. Här ligger Gyllebo fritidshusområde väldigt fint. Om man söker en tuktad växtlighet är trädgårdsparken vid privatägda Gyllebo Slott värt ett besök. På ägorna ligger också ett stiligt ridhus och en borgruin från 1500-talet. Östra Vemmerlöv är en rar by där kyrkan från 1100-talet med vackra kalkmålningar finns kvar. Strax intill ligger Killians Bönegård som är ett centrum för andlig vägledning. På vägen upp mot Gyllebosjön finns fina motionsspår i skogen.
Runt Skräddaröd, som domineras av relativt ny villabebyggelse, samsas åkrar och fruktodlingar med skog. Här finns trevliga vandringsleder i vacker natur.
Vill du köpa, sälja eller värdera bostad i Östra Vemmerlöv? Kontakta våra mäklare på Österlen! Passa också på att anmäla dig till vår kostnadsfria söktjänst Boagenten som hjälper dig att hitta ditt drömboende.
Kontakta mäklaren om du behöver hjälp att ta fram en boendekalkyl.
När du köper din bostad genom Bjurfors kan du ansöka om bolån till en förmånlig ränta hos våra banksamarbetspartners Söderberg & Partners och SEB.
Bokad visning.
Ansvarig mäklare