-
Köpa
Köpa -
Sälja
Sälja - Hitta bostad
- Skapa bevakning
- Hitta mäklare
Trivsam villa för barnfamiljen med 6 rok, braskamin, inglasat uterum, trädäck, friggebod, garage mm
Östra Vemmerlöv, Simrishamn
*Areauppgifter enligt taxeringsinformationen
Bokad visning.
1½-plansvilla centralt på Österlen, natursköna omgivningar, öppet landskap, skog och närhet till bad/fiskesjö samt Sophia/Waldorfskola i Rörum mm
Trivsam och rymlig villa för barnfamiljen med 6 rok, braskamin, inglasat uterum, trädäck och garage med förråd samt friliggande friggebod med förvaringsmöjligheter i den lummigt insynsskyddade och uppväxta trädgården. Natursköna omgivningar med närhet till skog, och öppet landskap samt Gyllebosjön för bad och fiske mm. På kort avstånd finns också Sophiaskola i Rörum med Waldorfinriktning.
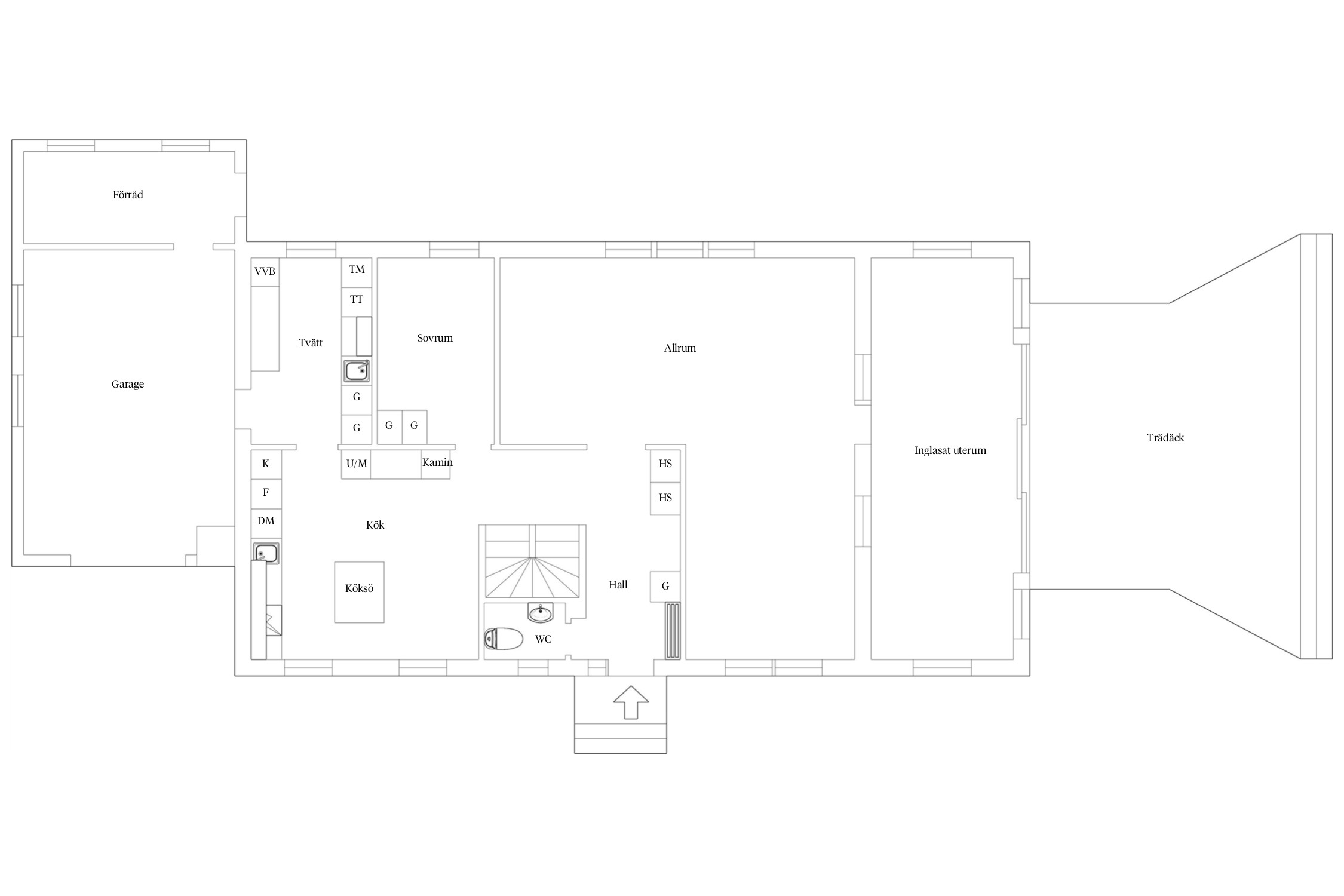
Entré in till central hall med öppen planlösning mot köket. Klinkergolv samt plats för ytterkläder samt trappa upp till ovanvåningen finns här.
Gästtoalett med WC, tvättställ och klinkergolv.
Stort ljust allrum i vinkel med möjlighet för både matplats och sällskapsavdelning samt att man når det stora inglasade uterummet härifrån. Parkettgolv.
Central köksavdelning med stor och praktisk köksö. Köksinredning med stilrena ljusa luckor, spishäll, fläkt, inbyggd ugn samt micro, integrerad diskmaskin och rostfri kyl och frys. Centralt i köket finns också en värmande braskamin.
Sovrum/arbetsrum med garderober.
Tvättstuga i anslutning till kök med tvättmaskin, torktumlare, vattenfilter, rostfri grovvask, vv-beredare samt gott om förvaring. Från tvättstugan når man också garage och förråd.
OVANVÅNING
Trappa upp till stort och ljust allrum med kupa och sällskapsavdelning.
Stort sovrum på gavel med rymlig klädkammare.
Helkaklat badrum med WC, tvättställ, badkar, dusch samt klinkergolv och ljusinsläpp via takfönster.
Klädkammare.
Två sovrum på gavel med flera garderober. Fastigheten säljes med Friskivningsklausul. Kontakta mäklaren för mer info om vad detta innebär!



Entréplan
Ovanvåning
Vemmerlöv 24:53
*Areauppgifter enligt taxeringsinformationen
Centraldammsugare
2001 Helkaklat badrum
2005 Kök
Vidbyggt garage med snickarverkstad och förråd.
Friliggande friggebod/förråd med plats för vinterförvaring av trädgårdsmöbler mm.
Inglasat uterum med åtkomst från det stora allrummet.
Utanför det inglasade uterummet finns ett större trädäck med söderläge.
Inglasad balkong på ovanvåning.
Kommunalt vatten, Kommunalt avlopp.
Insynsskyddad trädgård med häck mot grannar, rabatter, träd och buskar samt gräsmatta.
Möjlighet för bil i garage samt för två bilar på uppfart till garage.
Detaljplan (2016-06-30)
Fiber finns inkopplat i fastigheten
I uppvärmningskostnader ingår även el
Snickaregatan 7 Östra Vemmerlöv. Välkommen på visning!
Det finns 3 st pantbrev uttagna om sammanlagt 397 000 kr
Det finns ortsnamn som blir kända över hela världen – Gärsnäs är en sådan ort. Framgångarna för den lokala möbelproducenten gjorde det lilla samhället känt. Nu definieras Gärsnäs även som en av kommunens större byar som erbjuder det mesta – här finns livsmedelsaffär, vårdcentral, skola och goda pendlingsmöjligheter via buss- eller järnvägsstation på Österlenbanan.
Det var inte förrän i slutet på 1800-talet som samhället började ta form. Utvecklingen skedde till viss del tack vare Gärsnäs Möbler som startade sin verksamhet 1893. De är främst kända för sin export till ambassader och det är inte omöjligt att du som läser detta har suttit på en Gärsnäs-stol under en måltid på en finare restaurang. Idag tillverkar man mer än stolar och hantverkstraditionerna förs vidare i den lokala fabriken. I show room kan besökare hitta klassiker och nutida designsamarbeten som prisas som nyskapande.
Runt korsningen vid huvudgatorna Malmövägen och Storgatan ligger populära Norrmans Conditori i centrum som pålitligt bakar smörgåstårtor och klassiker som Prinsess- och Schwarzwaldtårtor utan att snegla alltför mycket på vad som är trendigt. Här finns också livsmedelsaffär, vårdcentral, leksaksaffär samt gatukök och bensinstation. I hjärtat av Gärsnäs ligger också förskola och skola, verksamheterna delar lokal. Utmed de lugna gatorna ligger fristående villor samt lägre flerfamiljshus.
Utanför Gärsnäs breder ett öppet landskap ut sig. Bland fälten vilar lantliga fastigheter i lugna områden som Stiby och Virrestad. Till Komstad reser folk långväga ifrån för att shoppa på Komstad Skor & Tofflor. Här finns även Drömbageriet, där alla godsaker bakas från grunden. Naturen förändras i omgivningarna kring Gyllebosjön som ligger inramad av lövskog. På sommaren är sjön ett barnvänligt badställe med bryggor och grillplats. På vintern är det många som åker skridskor på sjön och bastubadar. Här ligger Gyllebo fritidshusområde väldigt fint. Om man söker en tuktad växtlighet är trädgårdsparken vid privatägda Gyllebo Slott värt ett besök. På ägorna ligger också ett stiligt ridhus och en borgruin från 1500-talet. Östra Vemmerlöv är en rar by där kyrkan från 1100-talet med vackra kalkmålningar finns kvar. Strax intill ligger Killians Bönegård som är ett centrum för andlig vägledning. På vägen upp mot Gyllebosjön finns fina motionsspår i skogen.
Runt Skräddaröd, som domineras av relativt ny villabebyggelse, samsas åkrar och fruktodlingar med skog. Här finns trevliga vandringsleder i vacker natur.
Vill du köpa, sälja eller värdera bostad i Östra Vemmerlöv? Kontakta våra mäklare på Österlen! Passa också på att anmäla dig till vår kostnadsfria söktjänst Boagenten som hjälper dig att hitta ditt drömboende.
Kontakta mäklaren om du behöver hjälp att ta fram en boendekalkyl.
När du köper din bostad genom Bjurfors kan du ansöka om bolån till en förmånlig ränta hos vår samarbetspartner SEB.
Bokad visning.
Ansvarig mäklare