-
Köpa
Köpa -
Sälja
Sälja - Hitta bostad
- Skapa bevakning
- Hitta mäklare
Strandnära, lugn och ro!
Sandby, Simrishamn
*Areauppgifter enligt taxeringsinformationen
Litet sovloft
Det perfekta helg- och sommarboendet på landet men ändå med nödvändig service inom halvmilen. Det bästa av allt, du cyklar till stranden på 5 minuter!
Vinterbonat fritidshus med underbart läge ca 1,5 km från Mälarhusens sandstrand och naturreservat.
Kvadratsmart och opretentiöst! Här finner du tid att njuta av lugnet och omgivningen.
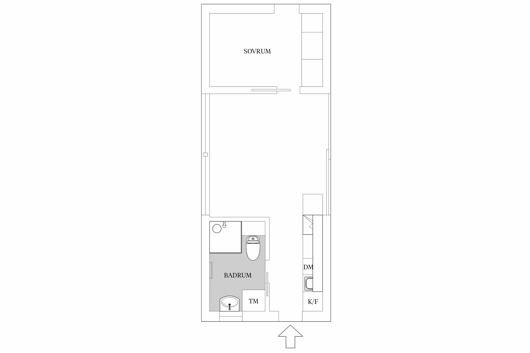
Huset är byggt i naturmaterial med en ljus och harmonisk inredning. Kök/allrum med skjutglaspartier som skapar en härlig kontakt med naturen och suddar ut gränsen mellan inne och ute, ett sovrum med förvaring, badrum/tvätt samt sovloft.
Stort altandäck runt huset, delvis skyddad av pergola. Befriande utsikt över fälten!
Välkommen in, antingen via köksingången eller det centralt placerade skjutglaspartiet.
Köket är funktionellt och genomtänkt! Ljusa snickerier, uppfällbar arbetsbänk, utrustning som kyl/frys, diskmaskin, spishäll och ugn samt fläkt.
Badrummet är inrett med ljust trä och granitkeramik i toner av kalksten. Duschplats, vägghängd wc, handfat och tvättmaskin ryms här!
Allrummet ligger i mitten och har en fin atmosfär, öppet i nock och med ljus som flödar in genom fönsterparti och skjutglasparti. Väggfast bänk med förvaring. Via stege nås sovloftet.
Sovrummet har plats för dubbelsäng, även här är det öppet i nock och utgång till altandäck. Dessutom bra garderobsförvaring.
Genomgående vitvaxade trägolv och vitmålad slätspont på innerväggar och tak.



Sandby 21:41
*Areauppgifter enligt taxeringsinformationen
Litet sovloft
Modulbyggt i en massiv träkonstruktion som är förstärkt med en unik stålram runt om. Undersidan av huset är täckt av zinkplåt och det saknas trä och annat organiskt material under huset. Undergolvet är byggt i vattenbeständig board istället för vanlig golvspånskiva. Isolerat med ekologisk fiber av återvunnet glas. Invändiga material som är naturliga, hållbara och återvinningsbara.
Inspirerande läsning finns på länk:
sommarnojen.se/nyheter/hemma-hos-35kvm
Förråd om ca 10 kvm uppfört 2018.
Trädäck runt hela huset, delvis skyddad av pergola samt litet friliggande trädäck.
Kommunalt vatten, kommunalt avlopp.
Gräsmatta, odlingsbäddar, rosor, träd, häck och staket med klängande växter.
Parkeringsmöjlighet på tomten.
Gemensamhetsanläggning: Simrishamn Sandby GA:4
Internet: Mobilt (utmärkt signalstyrka från mast några hundra meter bort)
I hushållsström ingår uppvärmning, total förbrukning 2 267 kWh för fritidsboende. Befriad från fastighetsavgift/skatt t o m inkomstår 2033.
Ganska omgående
Det finns 4 st pantbrev uttagna om sammanlagt 2 911 000 kr
För att leva upp till en slogan som ”Borrby – Österlens hjärta” krävs det något alldeles särskilt. Den här byn bjuder en unik kombination av ett rikt kulturliv med biograf och antikvariat, flera föreningar inom sport- och fritidsaktiviteter samtidigt som det finns ett brett serviceutbud med affärer, skola och goda kommunikationer. Här pumpar livskvalitet runt i ett samhälle i en mycket vacker del av Österlen.
Det var författaren Theodor Thufveson som var med och lanserade begreppet Österlen i en turistbroschyr 1929 i ett försök att locka besökare till den sydöstra delen av Skåne. Theodor kallade sin hemby Borrby för Österlens ’hjärtpunkt’.
Idag har Borrby ett brett serviceutbud med livsmedelsbutik, bank, apotek, byggmarknad, bensinstation och restaurang. Här finns också vårdcentral, äldreboende och förskola samt skola upp till åk 6. Engagemanget i föreningar som Österlens Ridklubb, scouterna, Borrby IF, BTK Ajax gäller året om, här finns det många fritidsalternativ. Kulturlivet är också starkt. Borrbys biograf öppnade redan 1917 och drivs av filmentusiaster. Orten är en s.k. bokby, vilket är en världsomspännande rörelse med syfte att skapa hållbar turism och unika erbjudanden genom litteraturen. Borrby är Sveriges första bokby och här finns flera antikvariat och det hålls även språkcafé och litteraturfester. Varje sommar anordnas också Baddaredagen, en familjefest och simtävling för de allra minsta.
Det sköna strandlivet är en annan av Borrbys många kvaliteter. Utmed kusten följer flera områden med fritidshus och permanentvillor i fin natur med Örnahusen och Spraggehusen längst upp. Småorten Sandby har ett strandnära läge mellan dessa. Här ligger också Norrekås. Vid Kyhl och Mälarhusen är det särskilt vackert och även barnvänligt med långgrunda stränder. Borrby Strand erbjuder fritidshus samt campingplats med tennisbana och pool.
Det finns också flera områden med blandad bebyggelse med närhet till skolor och omsorg i Borrbys centrum, som Borrby Tuvor och Tullstorp. Mellan öppna fält ligger också Östra Hoby, Kvarnby samt Blästorp med fristående villor och lantgårdar.
Vill du köpa, sälja eller värdera bostad i Sandby? Kontakta våra mäklare på Österlen! Passa också på att anmäla dig till vår kostnadsfria söktjänst Boagenten som hjälper dig att hitta ditt drömboende.
Kontakta mäklaren om du behöver hjälp att ta fram en boendekalkyl.
När du köper din bostad genom Bjurfors kan du ansöka om bolån till en förmånlig ränta hos våra banksamarbetspartners Söderberg & Partners och SEB.
| Bud | Budgivare | Datum | Tid |
|---|---|---|---|
| 3 210 000 kr | Budgivare 1 | 2026-05-19 | 09:25 |
| 3 200 000 kr | Budgivare 2 | 2026-05-19 | 09:25 |
| 3 185 000 kr | Budgivare 1 | 2026-05-18 | 18:23 |
| 3 175 000 kr | Budgivare 2 | 2026-05-18 | 18:22 |
| 3 110 000 kr | Budgivare 1 | 2026-05-18 | 12:16 |
| 3 100 000 kr | Budgivare 2 | 2026-05-18 | 12:15 |
| 3 060 000 kr | Budgivare 1 | 2026-05-18 | 10:47 |
| 3 050 000 kr | Budgivare 2 | 2026-05-18 | 10:45 |
| 2 995 000 kr | Budgivare 1 | 2026-05-15 | 15:18 |
Ansvarig mäklare