-
Köpa
Köpa -
Sälja
Sälja - Hitta bostad
- Skapa bevakning
- Hitta mäklare
En dröm som kan bli verklighet
Vik, Simrishamn
Här finns nu en arkitektritad dröm på Österlen med färdigt bygglov. Luta dig tillbaka och njut av en presentation med fantastiska omgivningar...
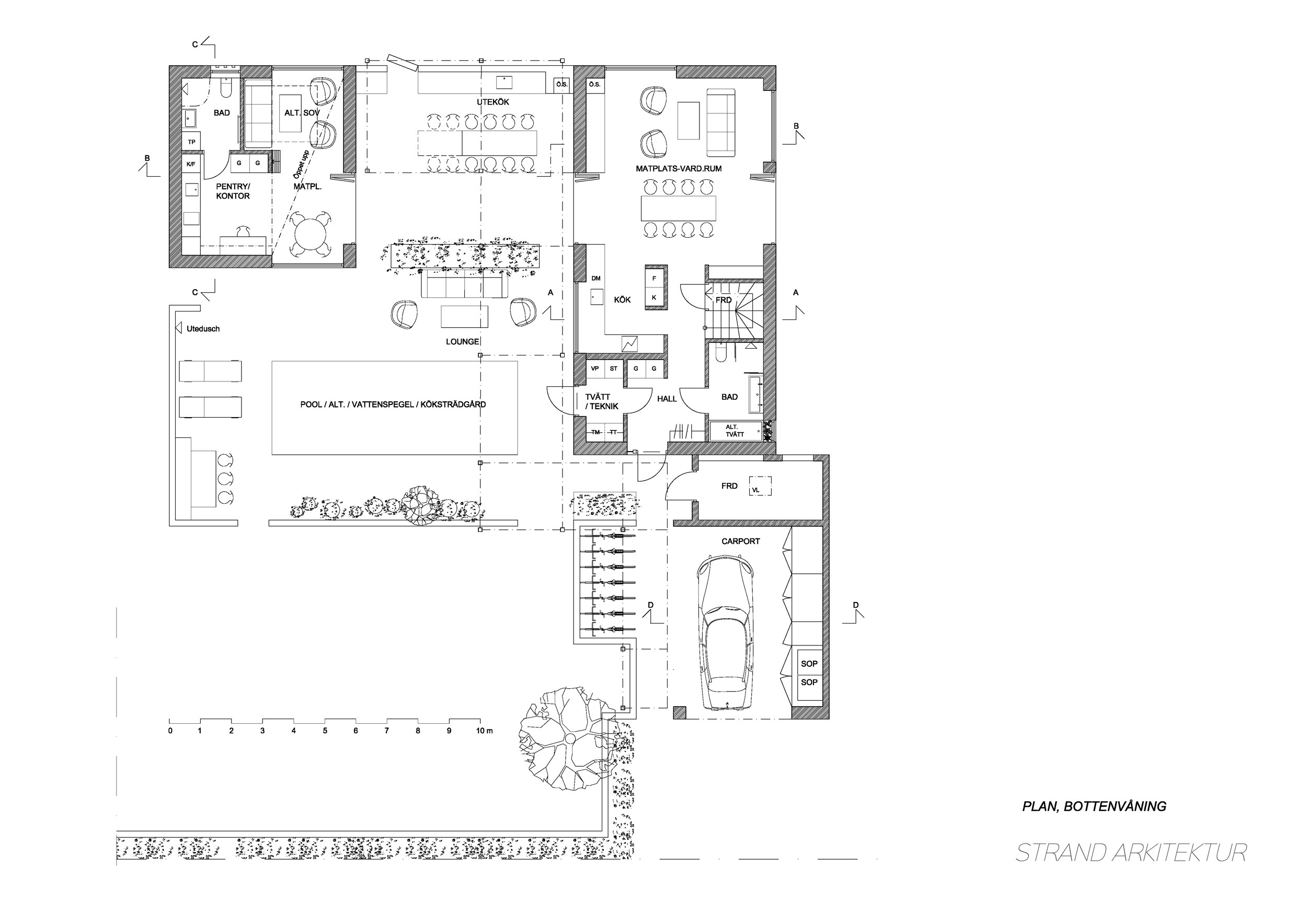
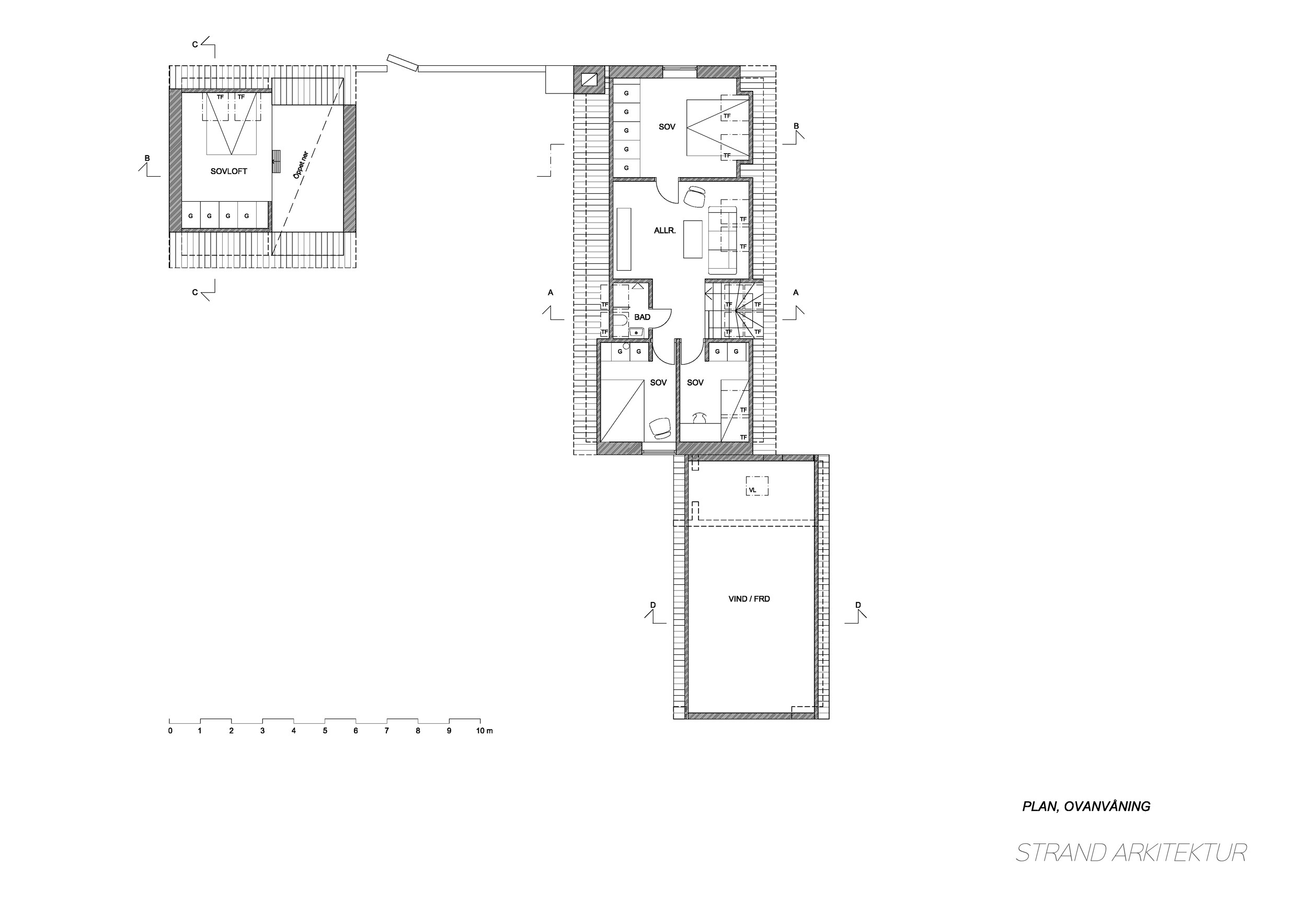
På en fin tomt i utkanten av Vik med utsikt mot Rörum och Stenshuvud finns bygglov för ett arkitektritat fritidshus fördelat på tre vitputsade stenbyggnader; huvudbyggnad, gästhus och carport/förråd. Husen är en samtida tolkning av skånelängan där modern bekvämlighet och hållbarhet kombinerats med robusta material som tål årstidsväxlingarna på den skånska slätten. Tack vare en effektiv planlösning skapas många rum och ytor både inne och ute trots en relativt liten byggnadsarea. På skånskt gårdsvis skapas också ett gynnsamt mikroklimat där byggnader, murar och växter skyddar mot vinden; husen ringar in en sydvästvänd plats med möjlighet till flera väderskyddade uteplatser, eldstad, matlagning i det fria, pool, odling och lek. Med gästhuset finns totalt 4-5 sovrum, plats för den stora familjen, gäster, hemmakontor eller möjlighet till uthyrning. Byggnaderna är med sin fönstersättning, sin pergola och sitt solskydd anpassade för att skapa ett behagligt inomhusklimat även varma sommardagar, och med nedgrävda dagvattentankar kan regnvatten samlas till torrare tider. Husen är ritade med välisolerade, tjocka väggar för låga uppvärmningskostnader vintertid och ett minimalt klimatavtryck.
Välj själv om du vill uppföra alla tre byggnader, två, eller bara en. Bygglovsavgiften är betald liksom anläggningsavgiften för vatten & spillvattenavlopp.
Tomten gränsar i norr mot en remsa av allmänning samt gräsytor och betesmark som med all sannolikhet kommer att förbli sådana. I öster har grannarna köpt upp en tomt som en privat buffert där de planterat en äppellund utan planer på att bebygga. I söder finns en granne med två tomter som inte bebyggt den som ligger närmast. Endast i väster finns ett hus, men på behörigt avstånd. Bakom detta breder en betesmark ut sig.
På kort promenadavstånd finns det pittoreska fiskeläget Vik, två av Skånes bästa golfbanor, vackra stränder, gårdsbutiker, restauranger, strövområden och till och med surfmöjligheter. Välkommen att njuta av livet i hjärtat av Österlen!



Ritning - Entréplan
Ritning - Övre plan
Rörum 85:4
Anslutningen är betald för Kommunalt vatten & Kommunalt avlopp.
Det finns 2 st pantbrev uttagna om sammanlagt 460 000 kr
På en fin remsa mellan sandbackar och hav vilar Österlens äldsta fiskeläge, Vik. Byn har vuxit till sig under de senaste seklerna och delas nu mitt itu av den väg som följer kusten, väg 9. I Vik finns charmiga före detta fiskarbostäder, villakvarter från 60-talet och arkitektritade nya hus i en skön blandning. Den goda sammanhållningen manifesteras vid den årliga hamnfesten då byborna tar med sig bord och stolar för att njuta en gemensam picknick med Österlens vackraste utsikt.
Charmigt låga korsvirkeshus och kullerstenslagda strädden, ett annat namn för bygata, gör kvarteren ner mot hamnen i gamla Vik till en mycket trevlig plats. Här kan man njuta av det som kallas för Österlens vackraste utsikt, vyn upp mot nationalparken Stenshuvud. Vid klart väder kan man se kustremsan ända upp till Åhus. Ett annat populärt nöje är att ta sig ett bad i hamnen, där man hoppar i från piren.
Väster om väg 9 är bebyggelsen betydligt mer varierad. Här blandas villaområden från 60-talet i välkänd stil med supermoderna boenden. Då gamla fruktodlingar avvecklas och marken säljs av finns det tomter till salu för den som vill skapa sitt eget unika drömhus eller nybyggda villor som i Nyhem.
För en golfare erbjuder Vik flera utmaningar. Både Djupadal och Lilla Vik har banor av yppersta klass där den vackra omgivningen samt väder och vind gör rundan till något extra. I anslutning till banorna ligger restauranger, konferensanläggningar och andelsboenden.
Det som skämtsamt kallas för Prästens badkar är en unik geologisk formation på klipphällarna söder om Viks fiskeläge en kort promenad från byn. Naturen kring Vik är dramatisk och skiftande där tuktade äppel-, jordgubbs- och tomatodlingar ligger insprängda mellan klippformationer, strandängar och hedmark.
Vill du köpa, sälja eller värdera bostad i Vik? Kontakta våra mäklare på Österlen! Passa också på att anmäla dig till vår kostnadsfria söktjänst Boagenten som hjälper dig att hitta ditt drömboende.
Kontakta mäklaren om du behöver hjälp att ta fram en boendekalkyl.
När du köper din bostad genom Bjurfors kan du ansöka om bolån till en förmånlig ränta hos våra banksamarbetspartners Söderberg & Partners och SEB.