-
Köpa
Köpa -
Sälja
Sälja - Hitta bostad
- Skapa bevakning
- Hitta mäklare
Klassisk villa, gästhus samt dubbelgarage - mitt i Vik!
Vik, Simrishamn
*Areauppgifter enligt taxeringsinformationen
Bokad visning.
Två bostäder samt fristående dubbelgarage mitt emot lilla Viks golfbana. Kanske en plats för boende- och hobbyverksamhet eller uthyrning?
Vik - det charmiga fiskeläget mellan Simrishamn och Kivik. Vik är det äldsta av Österlens totalt 7 fiskelägen och lockar många tack vare sina pittoreska smågator vid hamn och strandremsa, men även för sina inte mindre än två fantastiska golfbanor och fantastiska natur inpå knuten.
Vid väg 9 alldeles vid inträde till byn ligger denna klassiska 40-talsvilla på lättillgängligt läge med fri utsikt över Lilla Viks golfbana. På tomten, som är belägen precis utanför Viks detaljplan, finns inte mindre än tre byggnader i form av bostadshus i 1,5 plan, ett dubbelgarage samt ett renoverat gästhus om 45 kvm.
Huset, som ursprungligen är putsat, har träpanel och klassiskt sadeltak med tegelpannor, underlagstaket lades om för bara cirka 10 år sedan. Det vattenburna värmesystemet via luft/vattenvärmepump är nytt för 2025 och för bara ca ett år sedan färdigställdes ett nya badrum i källaren, sedan tidigare finns duschrum på både entréplan och övre plan. I övrigt har huset en bevarad äldre charm.
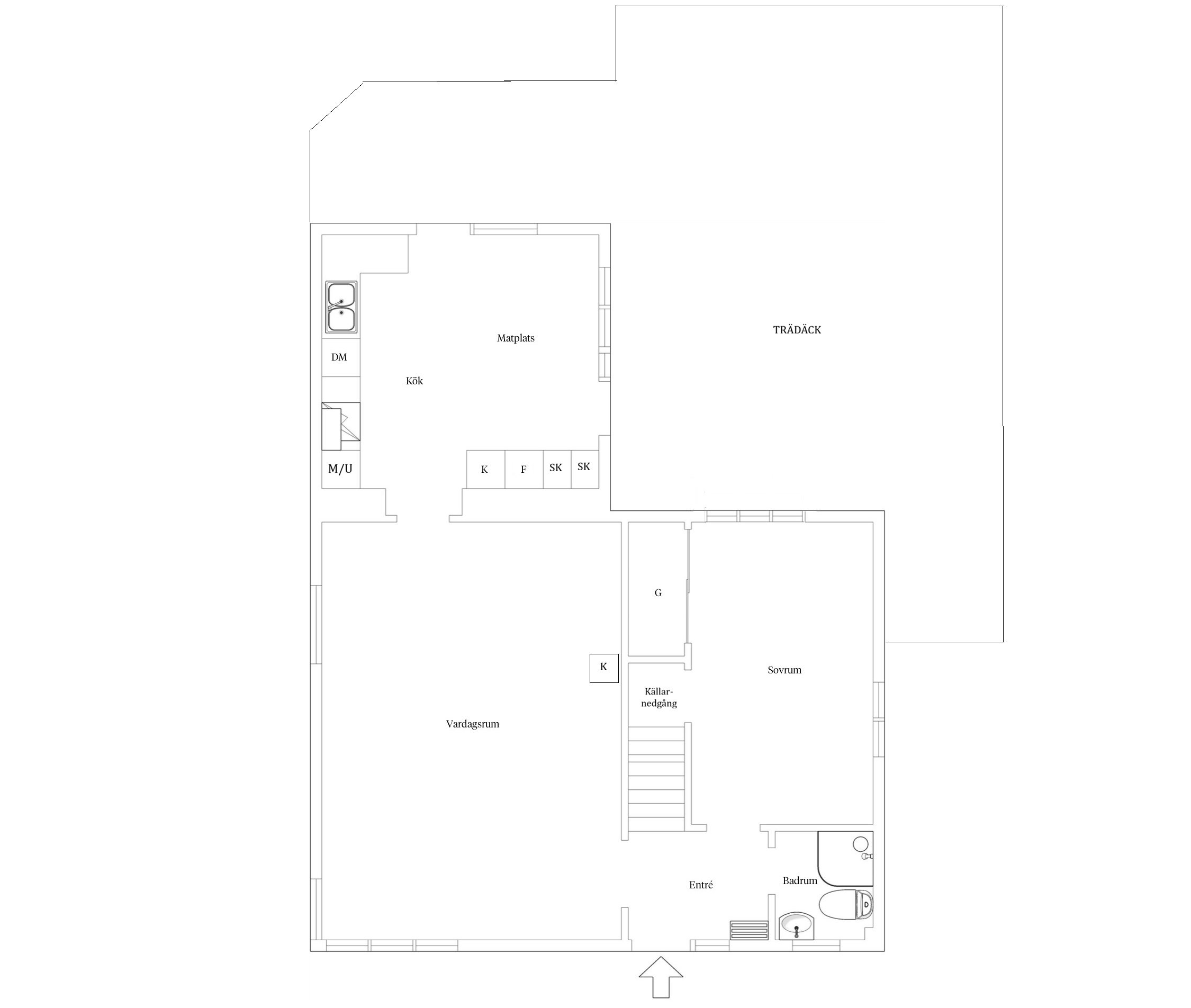
Husets ca 185 kvm bo- och biarea är fördelade på kök, två allrum, två sovrum samt WC/badrum på alla tre våningsplan. På entréplan är de sociala ytorna representerade i form av vardagsrum med eldstad, kök med utgång till trädäck, sovrum samt duschrum. På övre plan finns idag två rum varav ett sovrum med tillgång till duschrum/wc samt ett allrum med utgång till balkong. Detta allrum har tidigare haft pentry, om det skulle önskas igen går det att återställa. Källaren består av matkällare, pannrum, förråd samt ett helt nytt badrum.
Här är det bara att flytta in och trivas, oavsett om ni önskar bo deltid- eller permanent. Alla byggnader och den generösa trädgårdstomten om 1386 kvm bjuder in till såväl trädgårds- som motorintresse, alternativt hobby- eller verksamhetsplaner? Alldeles i närheten ligger Sofiaskolan och i Vik finns goda busskommunikationer samt obemannad livsmedelsbutik, AutoMat. Härifrån är det fina vandringsleder till Gyllebosjön via Rörum samt cykelavstånd till vackra knäbäckshusens strand och Stenshuvuds naturreservat.
Varmt välkomna till en trevlig fastighet med otroligt många valmöjligheter!



Entréplan
Övre Plan
Källarplan
Gästhus
Loft / Öppet ner i Gästhus
Rörum 68:2
*Areauppgifter enligt taxeringsinformationen
- Vattenprov är beställt
Senaste Årens Renoveringar:
2025:
- Helt ny luft/vattenvärmepump
- Ny hydropress (byte från hydrofor)
- Ommålning vardagsrum
- Renovering av badrum på källarplan färdigställt (utfört av Colorama Kristianstad (samt Peab)
- Gästhusets uteplats har byggs ut med trädäck och plank - Målat om och stärkt innervägg i huvudentrén.
- Ommålning av husgrund bostad
2024:
- Väggar och golv slipades ner till grundfärgen på källarplan.
- Gästhuset revs ner till ytterväggarna (förutom badrum) byggas upp igen med nytt golv och ommålning av alla väggar.
- Gammalt uterum revs och plattor togs bort, ny stensättning entrésida och fasaden reparerades
- Balkong byggdes ovanför huvudentrén
2023:
- Dörr till källartrappan flyttas inomhus, sovrum målas om - Bortforsling av pool, ersatt med trädäck i väster
- Ommålning av sovrumsfönster och ommålning av kökssnickerier gästhus.
2021/2022
- Ommålning och uppdatering i kök samt installation av nya vitvaror (häll, ugn, mikro, fläkt och bänksskiva
- Ommålning garage in- och utvändigt.
Tidigare Renoveringar:
2016: Omlagt tak på huvudbostad vilket har skett i två olika etapper. De gamla takstolarna är förstärkta, nya bräder, papp och läkt, därefter har de gamla tegelpannorna lagts tillbaka. Tilläggsisolering av vinden. På kupan ligger papptak. Ny papp och råspont även på tillbyggnaden (ovan köket) samt nya plåtdetaljer, stuprör och hängrännor.
Merparten av alla fönster är utbytta (exkl. duschrum entréplan samt sovrum och allrum uppe. Nyare altandörrar monterade i köket.
2017:
- Gästhuset (tidigare verkstad) är ombyggd från verkstad/förråd till gästhus. Konstruktion med gjuten platta, reglar med plastkilar, isolering, spånplatta och laminatgolv. Murade väggar. Tegelpannor på sadeltak med underliggande spåntak. Nya 3-glas fönster och 2-glas. Ny el med automatsäkringar + ny VVS.
- Kamin installerad på övre plan huvudbostad
- Nyare fasadpanel på båda husen (exkl. norrsidan)
2018:
- Ny VVS - nya vattenrör och nytt avloppsrör inom bostaden.
- Installation av kamin i vardagsrum.
- Nytt vattenfilter installerat (järn och kalk).
2019/2020:
- Klädkammaren på övre plan ombyggt till duschrum
- Ny pump installerades till avloppet (ligger vid östra gaveln om gästhuset)
- Gästhus med gjuten platta och murade väggar samt tegelpannor på sadeltak. Putsad fasad och uppvärmning via luft/luftvärmepump. Huset gjordes om från verkstad till gästhus ca år 2017.
- Garagebyggnad (dubbelgarage) med el utdraget och nyare garageportar.
Enskilt vatten, Kommunalt avlopp. Det finns 3 brunnar på tomten: En äldre under trädäcket, en nyare från 90-talet på västra delen av tomten. Därtill finns en på norrsidan med pump som är kopplat till källarens avlopp.
Vattenskyddsområde (2005-06-09) Landskapsbildsskydd (1974-05-06)
Förmån: Officialservitut Avloppsledning, 11-RÖR-352.1
Fiber finns. Idag har ägarna Tele2 som leverantör.
Notera att kostnad för hushållsström är inkluderat i uppvärmningskostnaden samt att det även gäller uppvärmning via luft/luftvärmepump i gästhuset. Fastigheten är ansluten till det allmänna kommunala spillvattenledningsnätet, vilket är den presenterade uppgiften under "VA".
Det finns 12 st pantbrev uttagna om sammanlagt 2 890 000 kr
På en fin remsa mellan sandbackar och hav vilar Österlens äldsta fiskeläge, Vik. Byn har vuxit till sig under de senaste seklerna och delas nu mitt itu av den väg som följer kusten, väg 9. I Vik finns charmiga före detta fiskarbostäder, villakvarter från 60-talet och arkitektritade nya hus i en skön blandning. Den goda sammanhållningen manifesteras vid den årliga hamnfesten då byborna tar med sig bord och stolar för att njuta en gemensam picknick med Österlens vackraste utsikt.
Charmigt låga korsvirkeshus och kullerstenslagda strädden, ett annat namn för bygata, gör kvarteren ner mot hamnen i gamla Vik till en mycket trevlig plats. Här kan man njuta av det som kallas för Österlens vackraste utsikt, vyn upp mot nationalparken Stenshuvud. Vid klart väder kan man se kustremsan ända upp till Åhus. Ett annat populärt nöje är att ta sig ett bad i hamnen, där man hoppar i från piren.
Väster om väg 9 är bebyggelsen betydligt mer varierad. Här blandas villaområden från 60-talet i välkänd stil med supermoderna boenden. Då gamla fruktodlingar avvecklas och marken säljs av finns det tomter till salu för den som vill skapa sitt eget unika drömhus eller nybyggda villor som i Nyhem.
För en golfare erbjuder Vik flera utmaningar. Både Djupadal och Lilla Vik har banor av yppersta klass där den vackra omgivningen samt väder och vind gör rundan till något extra. I anslutning till banorna ligger restauranger, konferensanläggningar och andelsboenden.
Det som skämtsamt kallas för Prästens badkar är en unik geologisk formation på klipphällarna söder om Viks fiskeläge en kort promenad från byn. Naturen kring Vik är dramatisk och skiftande där tuktade äppel-, jordgubbs- och tomatodlingar ligger insprängda mellan klippformationer, strandängar och hedmark.
Vill du köpa, sälja eller värdera bostad i Vik? Kontakta våra mäklare på Österlen! Passa också på att anmäla dig till vår kostnadsfria söktjänst Boagenten som hjälper dig att hitta ditt drömboende.
Kontakta mäklaren om du behöver hjälp att ta fram en boendekalkyl.
När du köper din bostad genom Bjurfors kan du ansöka om bolån till en förmånlig ränta hos våra banksamarbetspartners Söderberg & Partners och SEB.
Bokad visning.