Hoppa till innehåll
Som i en saga!

  • Besiktigad
  • 119 kvm
  • 6 rum
  • 10 950 000 kr

Vitemölla, Simrishamn

Lejegatan 23

Utgångspris:
10 950 000 kr
Antal rum:
6
Boarea:
119 kvm*
Tomtarea:
312 kvm
Typ:
Friliggande villa

*Areauppgifter enligt uppmätning. Antal rum avser både bostad och gästhus.
Dokument på uppmätning finns nedan. Boarea avser både bostad och gästhus fördelat på 90 resp 29 kvm.

Vill du veta mer om bostaden?

Ansvarig mäklare

Anneli Leo

Fastighetsmäklare / Partner

Bjurfors Österlen
Anneli Leo

BOKA EN KOSTNADSFRI VÄRDERING

Beskrivning

Välkommen till Lejegatan 23, en unik och enastående fastighet belägen i det eftertraktade läget Vitemölla på Österlen. Detta är ett sällsynt tillfälle att förvärva ett hem som erbjuder både charm och modernitet i en exceptionell miljö. Med ett riktigt A-läge i Vitemölla, får du här en fantastisk möjlighet att njuta av lugnet och den vackra naturen i det gamla fiskeläget, med närhet till både strand och hav. Detta hus har sedan 1996 varit säljarnas älskade smultronställe och nu finns chansen att vara den som får njuta av denna pärla i framtiden. Vitemölla har stark bygemenskap och det arrangeras många aktiviteter.

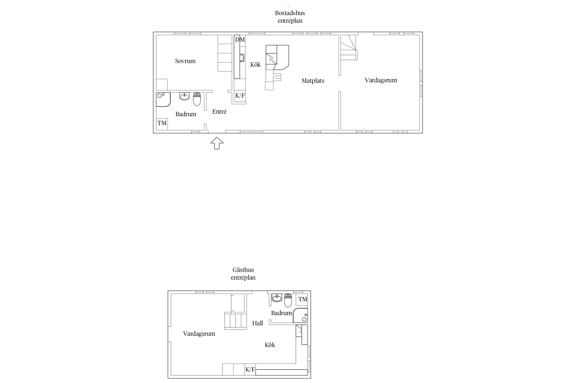
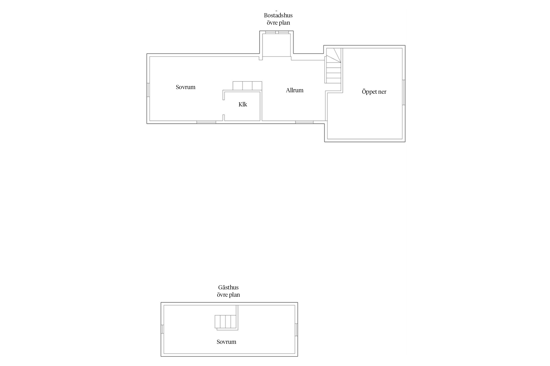
Huset är i mycket gott skick och ägarna har under alla år tagit hand om det med noggrann och varsam hand. Charmigt gammalt på utsidan, men toppmodernt och stilrent på insidan. Det är bara flytta in och börja njuta av ditt nya hem direkt. Bostadshusets entréplan bjuder på kök, allrum med öppet upp i nock, helkaklat badrum och sovrum. En trappa upp finner vi ytterligare ett allrum och ett sovrum. Den stenlagda vackra och lättskötta tomten gör det enkelt att njuta av utomhuslivet. Här samsas rosor och lavendel med grönskande häckar, precis som det ska vara. Solens strålar finner sin väg dit och insynsskyddad uteplats gör det ännu mysigare. Växthus och bärbuskar inspirerar till egen odling.

Familj och gäster bor bekvämt i gästhuset. Gästhuset har precis som huvudbostaden genomgått löpande renovering och är ett kvalitativt modernt boende med eget kök och helkaklat badrum med tvättmaskin. Luft/luftvärmepump för både värme och kyla. En trappa upp finns sovrum. Från köksfönstret och ovanvåningen ser man havet.
Att ta på sig badkläder och ta morgondopp i hamnen är ett måste!

Omgivningen bjuder på såväl unika vandringar, badplatser, fin strand och härliga naturupplevelser som närhet till restauranger, bra matbutik, hotell och busshållplats.

För mer info ta kontakt med mäklaren!

Interiör

Mycket fräsch interiör med stilrena och kvalitativa materialval. Delar av bostaden har klinkergolv, andra laminatgolv. Delvis golvvärme. Köket håller hög kvalitet med inredning från Marbodal, bänkskivor av komposit, vitvaror från Siemens och Fjärås, stenplattor på golvet och rejäl matplats för upp till 12 personer. Badrum på entréplan som blivit totalrenoverat 2018. Golvvärme, kakel och klinker och dusch med duschdörrar. Här finns även tvättmaskin och torktumlare.
Vardagsrum med karaktär. Öppet upp i nock och fantastisk platsbyggd bokhylla.
Övre plan med allrum och sovrum och bra inbyggd förvaring. Mysigt!

Planritning

Planlösning
Planlösning

Fakta om bostaden

Fastighetsbeteckning

Hjälmaröd 5:24

Information

Typ
Friliggande villa
Upplåtelseform
Friköpt
Utgångspris
10 950 000 kr
Rum
6
Antal sovrum
3
Max antal sovrum
3
Boarea
119 kvm*
Tomtarea
312 kvm

*Areauppgifter enligt uppmätning. Antal rum avser både bostad och gästhus.
Dokument på uppmätning finns nedan. Boarea avser både bostad och gästhus fördelat på 90 resp 29 kvm.

Byggnadssätt

Byggnadstyp
1 ½ plan
Byggår
1843*
Fasad
Korsvirke och puts
Grund
Gjuten grund
Stomme
Sten med korsvirke
Bjälklag
Trä
Uppvärmning
Luft/luftvärmepumpar, el och kamin.
Takbeklädnad
Vasstak
Ventilation
Självdrag
Fönster
2- och 3-glas

*I taxeringen står det år 1909.

Stengärdet på innergården tillhör grannen.

Ombyggnad, Renoveringar

1996
Renovering av ovanvåning och trappa
1997
Renoverat trappa, ovanvåning och golv i gästhus
1998
Stenläggning av tomt
2000
Vasstak och tre homejor (plåttak ligger kvar under vasstak)
2002
Inbyggd bokhylla, fönster och terrassdörr i stora huset
Inbyggda skåp ovanvåning
2014
Kök i gästhus
2018
Nytt kök från Marbodal och renoverat matrum, hall, badrum och sovrum
2021
Badrum och fönster i gästhus
2022
Ryggning på vasstak
2024
Nya Elitfönster på bottenvåningen i stora huset

Övriga byggnader/utrymmen

Gästhuset har fasad av träpanel, trästomme, eternittak och gjuten platta. Värms upp via luft/luftvärmepump och oljefyllda radiatorer.

Ytterförråd på båda husen för bra förvaring.

Besiktning

Besiktigad
Ja

Vatten/Avlopp

Kommunalt vatten, Kommunalt avlopp.

Tomt

Lättskött tomt med stenlagd innergård. Staket som skärmar av tillsammans med grönskande häckar. Underbart med rosor, lavendel, prydnadsträd och formklippta häckar - precis som det ska vara! Här finns till och med bärbuskar och ett litet växthus.

Planbestämmelser

Detaljplan (1998-12-21)

Rättigheter/gemensamhetsanläggningar

Gemensamhetsanläggning: Simrishamn Hjälmaröd GA:4

TV/bredband

Fiber

Ekonomi

Taxeringsvärde
4 237 000 kr
Byggnadsvärde
672 000 kr
Fastställt
2024
Kod
220, Småhusenhet, bebyggd
Fastighetsskatt/Avgift
10 074 kr

Driftskostnad (per år)

Personer i hushållet
2
Värme
18 845 kr
Försäkring
2 800 kr
Renhållning
1 497 kr
Vatten/Avlopp
8 000 kr
Summa
31 142 kr
Elförbrukning
10 963 kWh/år

I uppvärmningskostnaden ingår även hushållsel.

Energideklaration

Utförd
Ja
Energiklass
D
Energideklarationsdatum
2025-05-20

Tillträde

Enligt överenskommelse

Pantbrev

Det finns 3 st pantbrev uttagna om sammanlagt 5 400 kr

Om Vitemölla

Att bo på Kivik

Det är nog så att Kivik är den mest mytomspunna byn på hela Österlen. Inte minst de sköna omgivningarna lockar fram starka känslor och de små fiskelägena i området kallas för paradis. Ulf Lundell sjunger om månskenet över Haväng och Prins Eugen fångade utsikten över Brösarps backar i sina tavlor. Kivik är också ett alldeles vanligt litet samhälle där ett stort utbud av butiker, restauranger, caféer, skola och goda bussförbindelser ger ovanligt bra förutsättningar till ett gott liv året om.

Kiviks samhälle har lite drygt 1000 bofasta invånare men dessa får sällskap av många fler främst under sommarhalvåret. Det bildar en trevlig mix av åretruntboende, fritidshusägare och turister som tar del av allt området erbjuder. Kiviks samhälle har en blandad bebyggelse från smala strädden med Kaptenshus och fiskarehus som minner om det ursprungliga fiskeläget till toppmoderna villor. Agdelund är ett centralt beläget område med fristående villor som etablerades på 1970-talet. Bästekille ligger högre upp med en milsvid utsikt över bukten och här finns också Hjälmaröd med flera fritidshusområden.

I slutet av 1800-talet fann man att klimatet och sandjorden lämpade sig särskilt väl för äppelodling. Ett bevis på detta är den årliga Äppelmarknaden som anordnas av en rad odlare och företag inom svensk fruktnäring. Bland de stora märks Äppelriket och Kiviks Musteri. Ibland kallas den här sträckan längs vattnet just för Äppelkusten och det är mycket vackert då träden står i blom. Företaget Buhres är specialiserade på en annan lokal specialitet – fisk! Nere vid Kiviks hamnplan finns både butik och restaurang ut mot vattnet. Under tre dagar varje sommar lockas 100 000-tals besökare till den årliga Kiviks marknad, en folkfest med tradition från medeltiden. Idag hålls marknaden på ängarna mellan Kivik och Vitemölla.

Vitemölla är en av de charmiga små byar som vid vita stränder följer kusten upp norrut. Den 4 km långa stranden där Vitemölla Badhotell, som uppfördes i början av 1900-talet, tronar är särskilt känd. Längs de små gatorna runt hamnen ligger stora och små hus på rad.

Om man följer kustväg 9 norrut kommer man till Ravlunda. De vidunderligt sköna markerna uppmärksammades redan av Carl von Linné som ansåg att här var det ’härligt’. I den lilla byn fanns förr ett bränneri som numera har förvandlats till hotell känt för sin goda mat där råvarorna kommer från naturen runt knuten. I Ravlunda och i byn Skepparps rofyllda miljö gömmer sig flera trevliga fastigheter, från mindre längor till större gårdar, många byggda i traditionell skånsk stil.

Verke å springer ur sina källor på Linderödsåsen 180 meter över havet. På sin slingriga färd mot kusten bildar den en mäktig dalgång. Här kan man vandra Backaleden och i området finns flera naturreservat, som Haväng och Vitemölla strandbackar. För naturnära boende, med cykelavstånd till stranden på slingriga vägar, finns Havängs sommarby.

Söder om Kivik finner man områden som Skogsdala och Karakås som båda doppar tårna i vattnet. Mellby, Åkarp och Svinaberga ligger in mot land, högre upp på kullarna. I Svinaberga finns Kivik Art Center som visar utställningar inom konst och arkitektur i samklang med naturen. Svabesholm är ett område som ligger alldeles intill nationalparken Stenshuvud. Här skapar kustberg, orkidéängar och havet en magisk miljö. Här finns vandringsleder och kunskapsrika Naturum och om man efter alla upplevelser är fikasugen besöker man Kaffestugan Annorlunda som har serverat kakbuffé och annat gott sedan 1956.

Vill du köpa, sälja eller värdera bostad i Vitemölla? Kontakta våra mäklare på Österlen! Passa också på att anmäla dig till vår kostnadsfria söktjänst Boagenten som hjälper dig att hitta ditt drömboende.

Karta

Boendekalkyl

Kontakta mäklaren om du behöver hjälp att ta fram en boendekalkyl.

När du köper din bostad genom Bjurfors kan du ansöka om bolån till en förmånlig ränta hos vår samarbetspartner SEB.

Ansök om lånelöfte hos SEB

Mäklare

Ansvarig mäklare

Anneli Leo, Bjurfors Österlen

Vill du veta mer om bostaden?

Kampanjbild Boneo