-
Köpa
Köpa -
Sälja
Sälja - Hitta bostad
- Skapa bevakning
- Hitta mäklare
Nu finns det äntligen möjlighet att bli nästa ägare till detta hus på landet med tillhörande stall
Tågarp, Svalöv
*Areauppgifter enligt uppmätning, se bifogad fil under dokument
Bokad visning.
På Förhand ligger bostäder som av olika anledningar inte är ute till försäljning just nu men som kan komma att säljas om förutsättningarna är rätt.
En modern hästgård i mindre format med allt du kan önska, stall, uteboxar, sadelkammare och ridbana - lantlig idyll utanför Tågarp
Nu ges möjligheten att förvärva denna lantligt belägna hästgård utanför Tågarp - ett boende som kombinerar frihet, utrymme och goda förutsättningar för djur och hästhållning
Fastigheten erbjuder en väl tilltagen tomt och mark om 1,6 hektar. För den hästintresserade finns det stall med 2 boxar, 5 uteboxar, uppvärmd och låst sadelkammare och upplyst ridbana. Här finns möjligheter för dig med hästintresse eller önskar bo på landet med mindre djurhållning. Har du annars intresse för motorer finns det gott om extra utrymme för det intresset. Ett lättskött hus med tillhörande mark som lämpar sig ypperligt för paret som för familjen, ett lugnt och naturnära läge.
Bostaden har en charmig exteriör med grön träpanel och smälter väl in miljön runtomkring, gården ramas in av öppna ytor och grönska som skapar en rofylld och privat känsla.
Läget är avskilt men samtidigt tillgängligt, med närhet till Tågarp och omkringliggande orter. För den som pendlar finns både bussförbindelse längs med 110:an och pågatåg via Tågarp, samtidigt som större städer nås smidigt med bil.
I byn Tågarp som ligger cirka 3,5 km från huset finner ni en fin förskola och lekplatser. Därtill finns tågstation, busstation, gatukök samt så finner ni även föreningslivet.
Skolskjutsen stannar cirka 1 km från huset på grusvägen.
Detta är ett hem för dig som söker ett liv på landet med närhet till naturen.
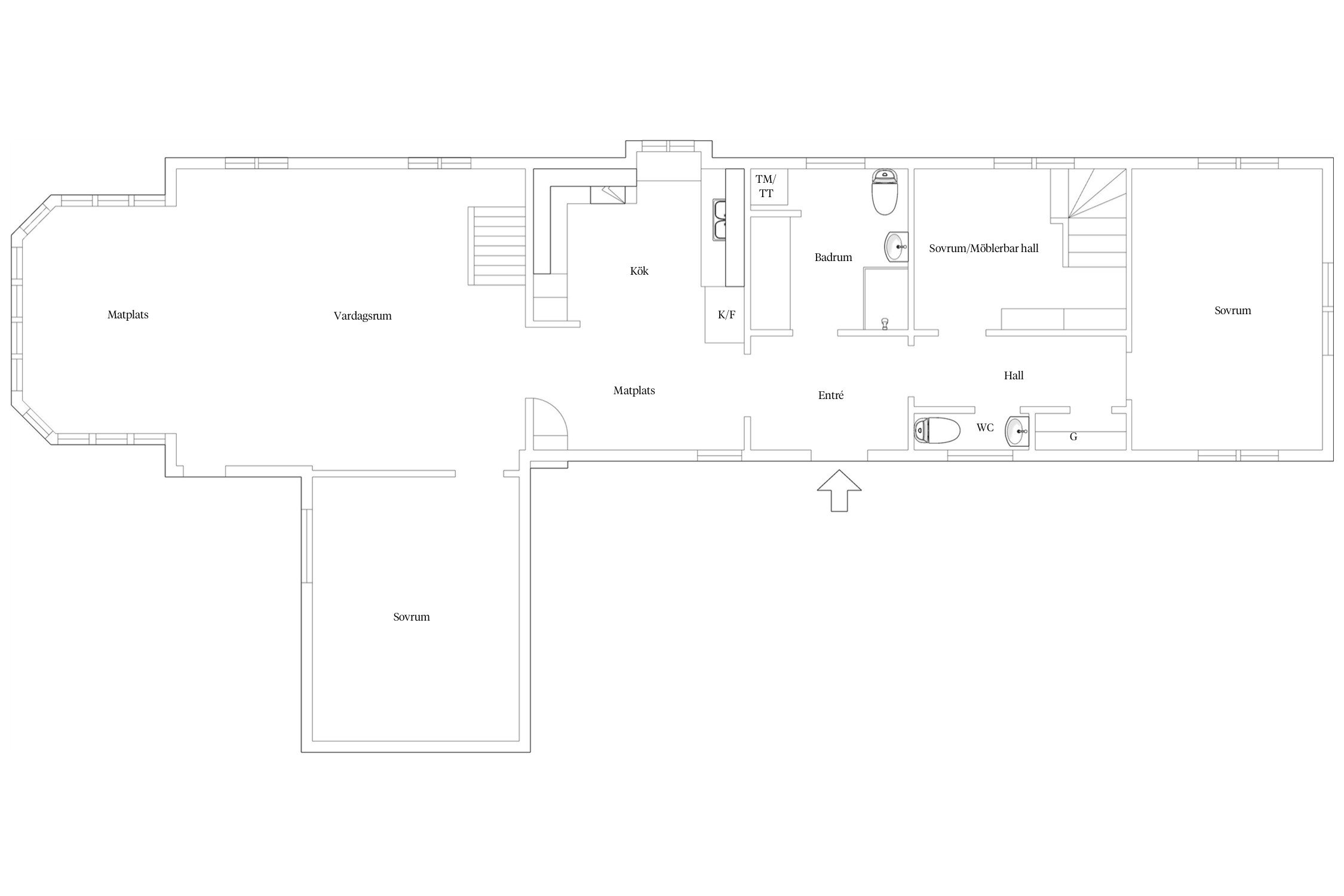
Entré
Vi välkomnas in i hallen med goda möjligheter att hänga av sig. Det finns el-buren golvvärme i entré och kök.
Kök
Till vänster om entrén nås bostadens kök med plats för matbord om fyra personer, skåpsluckorna går i en mörkt trä och samspelar snyggt med de synliga takbjälkarna. På golvet ligger klinker och köket är inrett med: kyl och frys, diskho, spis med häll och köksfläkt.
Vardagsrum
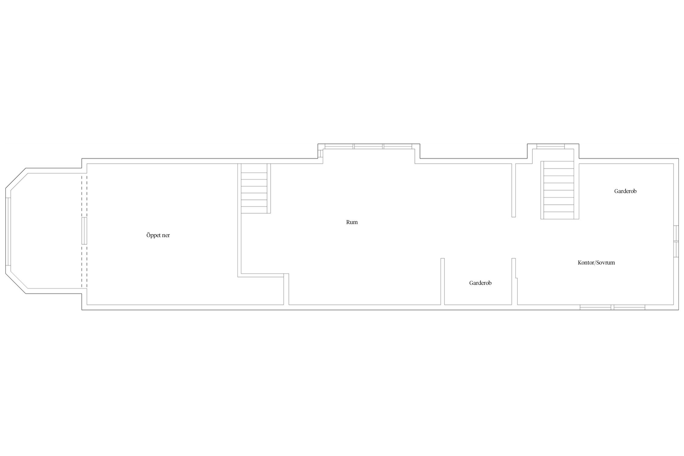
Vidare nås bostadens stora, luftiga vardagsrum med tak öppet upp till nock. Här kan ni njuta av en otrolig rymd och underbart ljusinsläpp tack vare det fina burspråket. Väl plats att möblera med soffgrupp, mediamöblera och matbord. Från vardagsrummet kan ni ta trappan upp till övre plan. Här möts ni av en öppen social yta som idag nyttjas som sovrum. Övre plan bjuder även på god förvaring och kontorsutrymme.
Sovrum
Nedre plan erbjuder idag tre sovrum i varierande storlek, ett av tre är placerat intill vardagsrummet och de andra två är placerade i andra delen av huset. Trappan upp till övre plan nås från ett av rummen.
Badrum
Modernt helkaklat badrum som renoverades 2022, inrett med: toalett, dusch, handfat med tillhörande kommod, vägghängt spegelskåp samt tvättavdelning med tvättmaskin samt torktumlare. Golvet är försett med el-buren golvvärme.
Gästtoalett
Inrett med toalett samt handfat med tillhörande kommod.
Välkommen!



Norraby 2:15
*Areauppgifter enligt uppmätning, se bifogad fil under dokument
Finns vattenprover sedan hösten 2001.
Avloppet heter FANN Indrän, som är en slamavskiljare med markbädd, ungefär som en 3-kammarbrunn.
Här är högsta skyddsnivå på detta område så den är fullt godkänd av söderåsens miljöförbund.
Töms 1 gång/år pga att det måste göras minst 1 gång/år. Avsedd för en hel familj. Det är kopplat ett flockmedel som pytsas ut automatiskt efter behov/inställning baserat på hur många som bor i hushållet.
2024 - Installerat enskilt avloppssystem med slamavskiljare, markbädd och INDRÄN (Fann)
2022 - Renoverat badrum med tillhörande våtrumsintyg samt ny dörr på baksidan
2021 - Målat fasaden
2018 - Anlagt ridbana
2012 - Byggt trädäck
2011 - Renovering av vardagsrum och burspråk samt nya fönster där
2009 - Gjort om en del av stallet till sovrum
2003/04 - Byggt uteboxar
1998/99 - Renovering av övre plan och kupor + nya fönster
1993/94 - Totalrenovering av entréplan, nytt avlopp, nya fönster samt renoverat badrum, kök och toalett
1992 - Renovering av stall och sadelkammare
Enskilt vatten, Enskilt avlopp.
Finns godkänd gödseplatta
Landskapsbildsskydd (1974-06-06)
Skattetal: mantal 1/64
Fiber, öppet nät
Övrigt innefattar tömning av 3-kammarbrun
Nuvarande ägare har förbrukat cirka 12 300 kwh / år.
Det finns möjlighet att arrendera närmsta grannes hage på cirka 1 ha mark för extra hagar till häst/får eller dylikt. Detta till ett förmånligt pris.
Det finns 5 st pantbrev uttagna om sammanlagt 758 000 kr
Svalövs kommun, mitt i den expansiva Öresundsregionen, är ett familjärt område inbäddat i grönska och vacker natur. Små mysiga byvägar ger en känsla av skånsk lantidyll med närhet till stadspuls och smidig kommunikation. Ta tåget till Lund och Helsingborg på cirka 20 minuter och efter ytterligare 10 minuter har du nått Malmö. Här finns något för alla; romantiska gathus, pompösa villor, historiska stenhus och moderna lägenhetskomplex.
I kommunens stadskärna, Svalöv, finns välsorterade mataffärer, en färgglad blomsterbutik och trevliga restauranger. Det finns bibliotek för läslusen och skickliga frisörer när håret behöver ett lyft. Från den nybyggda tågstationen i Svalöv tar du dig vidare till bland annat Malmö C på dryga 30 minuter. En av tätorterna Teckomatorp har spännande järnvägshistorik och är knutpunkten i södra delen av Svalövs kommun. Orten är ett gammalt stationssamhälle som präglats av järnvägen med den typiska tegelarkitekturen. Ur kulturhistorisk synpunkt är Teckomatorp av riksintresse för sin unika gatuhuskaraktär. I Teckomatorp blandas gammalt och nytt vilket gör husen spännande och kulturmiljön charmig. Föreningslivet är rikt med allt från badminton, fotboll, boule och badminton, här finns det något för alla sportfantaster.
I Svalöv råder en barnvänlig och mjuk stämning med social sammanhållning. Här finns dessutom två låg- och mellanstadieskolor och en högstadieskola. Fridhems folkhögskola, en av Sveriges välkända folkhögskolor, ligger i Svalöv för de som är teater-, film- och musikintresserade. För de allra minsta finns flera förskolor och en omtalad förskola med Montessoriverksamhet. Runt om i kommunen ligger bland annat Söderåsens Nationalpark, flera naturreservat och olika strövområden för dig som i tysthet vill njuta en stund av naturens lugn i fantastisk miljö. I Svalövs kommun bor du trivsamt, barnvänligt och tryggt med närhet till både natur och centrum.
Vill du köpa, sälja eller värdera bostad i Svalövs kommun? Kontakta Bjurfors mäklare i Landskrona! Passa också på att anmäla dig till vår kostnadsfria söktjänst Boagenten som hjälper dig att hitta ditt drömboende.
Kontakta mäklaren om du behöver hjälp att ta fram en boendekalkyl.
När du köper din bostad genom Bjurfors kan du ansöka om bolån till en förmånlig ränta hos våra banksamarbetspartners Söderberg & Partners och SEB.
Bokad visning.
Ansvarig mäklare