-
Köpa
Köpa -
Sälja
Sälja - Hitta bostad
- Skapa bevakning
- Hitta mäklare
Rymligt hus på fint läge med 7 rum, garage och grönskande söderträdgård
Onslunda, Tomelilla
*Areauppgifter enligt taxeringsinformationen
Huset bedöms vara mellan ca 143 och 154 kvm. Någon areamätning är ej utförd.
Bokad visning.
Ett generöst planerat 1,5-planshus med genomgående bra standard på fridfullt läge i byns utkant.
Välkommen till sista gatan i Onslunda by, ett fritt läge precis intill det böljande skånska landskapet. Här har du naturen som närmsta granne, med vidder som skänker både lugn och inspiration. En perfekt kombination av bylivets trygghet och landskapets storslagna närvaro.
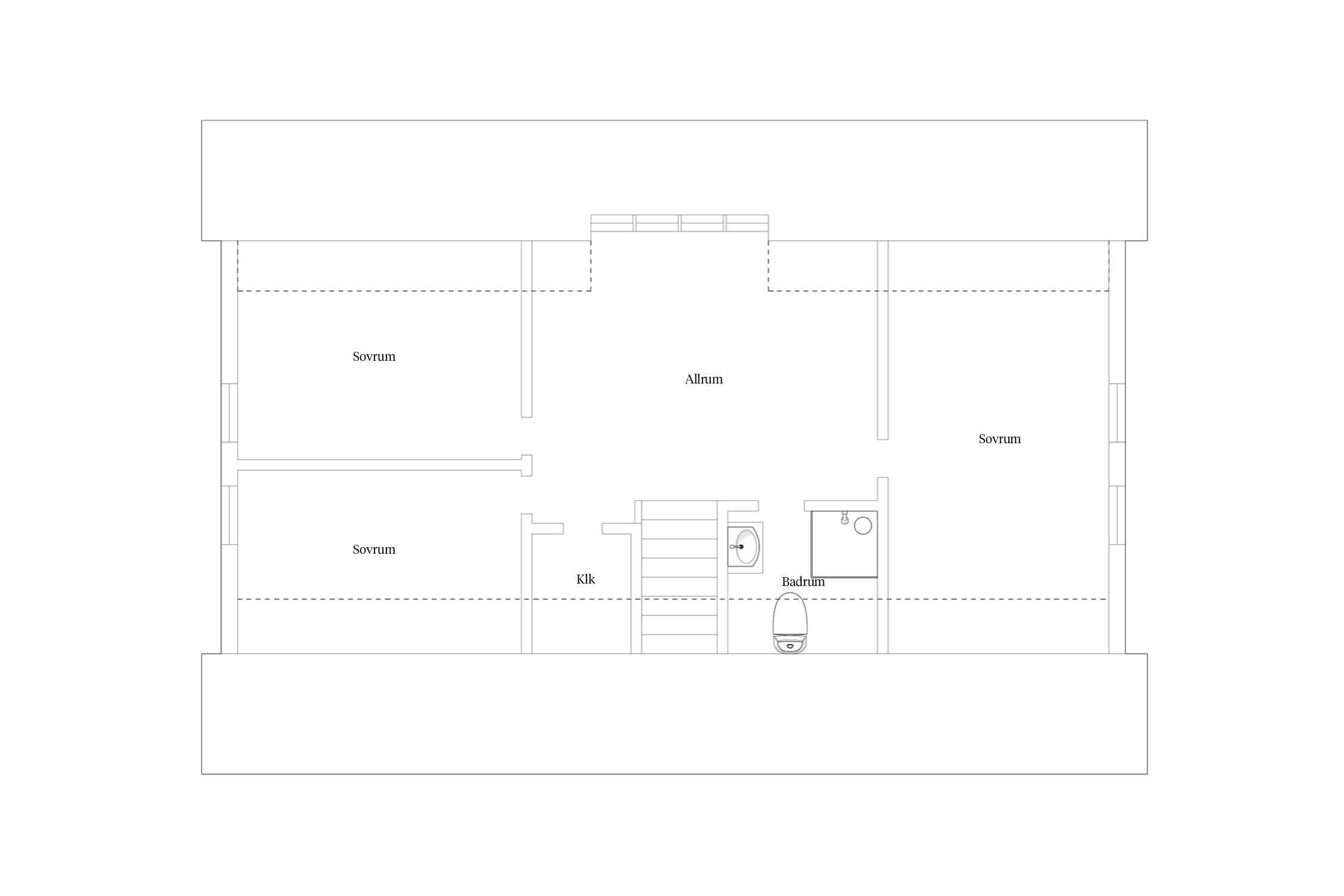
Här bor du med fem rymliga sovrum, två våtrum – ett på varje våningsplan – samt sociala ytor som gör att hela familjen kan trivas på sina egna villkor.
Huset har jämn och god standard, vilket gör det enkelt att flytta in och börja leva. De många rummen öppnar upp för både flexibilitet och framtidsplaner, med en generös och bra fördelning mellan privata och sociala ytor – perfekt både för vardag och fest.
På entrévåningen ligger vardagsrum, ett tidlöst inrett kök med moderna maskiner, grovingång och tvättstuga samt ett våtrum med kakel/klinker. En våning upp erbjuds ytterligare två sovrum, ett generöst allrum samt klädkammare och ett duschrum med kakel/klinker. Ovanvåningen inreddes i sin helhet cirka år 2000 varpå huset även försågs med takkupa mot vidderna i söder.
De två våtrummen, ett på varje våning, gör morgonlogistiken betydligt enklare och minskar köerna när alla ska iväg samtidigt. Det på entréplan kan förses med badkar om så önskas.
Ute väntar en stor, härlig trädgård, som gjord för studsmatta, fotbollsmål, pooldrömmar eller egen odlingshörna. Den rymliga uppfarten och det fristående garaget erbjuder gott om plats för familjens bilar, cyklar och fritidsintressen.
Detta är ett hem För er som söker rymlighet, trygghet och naturnära livskvalitet i en välkomnande by med bra skola. I närheten ligger Spjutstorpsbadet, Listarumsåsens naturreservat och de tre samhällena Smedstorp, Sankt Olof samt Skåne Tranås vilka har goda kommunikationer, matbutik och mycket mer att erbjuda - bara 10 minuter bort med bil.



Onslunda 220:5
*Areauppgifter enligt taxeringsinformationen
Huset bedöms vara mellan ca 143 och 154 kvm. Någon areamätning är ej utförd.
- Centraldammsugare finns
- Larm finns
- Husleverantör: Hjältevadshus
2025: Nya treglasfönster i hela huset (exkl. takkupa)
2025: Ommålning av fasad
2017: Nya golv på hela entréplan samt nya garderober monterade under 2018 och panel i entréhall.
2017: Nytt trädäck och markarbeten/plattläggning.
2017: Lagt plast på marken i krypgrunden
Övrigt: Nyare altandörr och ytterdörr (ca 2020). Maskinell utrustning så som kyl, frys, diskmaskin och tvättmaskin är från ca 2017-2020.
Tidigare: Hela ovanvåningen inreddes ca år 2000 och då byggdes även takkupan. Även våtutrymmena på båda våningsplanen har renoverats sedan byggåret.
Fristående garagebyggnad
Kommunalt vatten, Kommunalt avlopp.
Generös trädgårdstomt med stensättning och altan intill huset, därtill stor gräsmatta.
Rejäl uppfart för flertal bilar
Stadsplan (1982-11-30)
Mobilt bredband. Fiber finns i tomtgräns.
Notera att kostnad för hushållsel är inkluderad i uppvärmningskostnaden.
I Tomelilla Kommun finns SkåneFlex, där man bokar resa på efterfrågan. I app skrivs resmål in och därefter kommer förslag på var bussen kan hämta upp och när.
Det finns 2 st pantbrev uttagna om sammanlagt 1 175 000 kr
Österlens hantverksby – ja så kallas Onslunda! I det lilla samhället verkar många aktiva hantverkare och man delar engagerat med sig om kunskap om olika tekniker från förr och nu. Onslunda ligger i inlandet, med närhet till centralorten Tomelilla och med goda pendlingsmöjligheter på Österlen.
Det bor strax under 1000 invånare i Onslunda med omnejd varav hälften i byn. Bebyggelsen där är mycket varierad då korsvirkesgårdar står sida vid sida med modernare enfamiljsvillor. Merparten av invånarna är åretruntboende i det som på 1800-talet faktiskt var en av Skånes centralorter.
Nu är tiderna annorlunda förstås men det pågår ändå aktivitet här. I Onslunda-trakten finns det gårdsbutiker, ett snickeri och stugtillverkning. Flera konstnärer har sina ateljéer i området och inne i byn finns en diversehandel i äldre stil, café och antikvariat. Det privata föreningslivet bedriver fritidsverksamhet och är även aktivt genom fotbollslaget Onslunda IF. Byalaget anordnar traditionsenligt valborg- och midsommarfirande.
Här finns bibliotek, f-åk 6, fritidsverksamhet och idrottshall. Övrig service som livsmedelsbutiker, vårdcentral och simhall och friluftsbad finns i kommunens centralort Tomelilla. Här ligger också tågstation som enkelt möjliggör pendling med pågatåg till jobb och studier i riktning Malmö respektive Simrishamn. Tomelilla når man inom 10 minuters bilresa. Det finns även en tågstation i Lunnarp som ligger någon km närmare.
Det var tack vare företag inom borsttillverkning och gruvdrift som Onslunda sattes på kartan. Idag tillverkar man fortfarande borstar för hand och hembygdsföreningen driver ett borstmuseum. Här finns fortfarande en aktiv producent som säger sig sälja borstar man inte ens visste fanns. De gamla gruvhålen ligger öde i det som numera är naturreservatet Onslunda Sten skuggade under ett unikt bestånd av bok och avenbok.
Vill du köpa, sälja eller värdera bostad i Onslunda? Kontakta våra mäklare på Österlen! Passa också på att anmäla dig till vår kostnadsfria söktjänst Boagenten som hjälper dig att hitta ditt drömboende.
Kontakta mäklaren om du behöver hjälp att ta fram en boendekalkyl.
När du köper din bostad genom Bjurfors kan du ansöka om bolån till en förmånlig ränta hos vår samarbetspartner SEB.
Bokad visning.