Hoppa till innehåll

Modernt lantliv

  • På förhand
  • 180 + 12 kvm
  • 7 rum
  • 4 495 000 kr

Grönby, Trelleborg

Landsvägen 2437

Utgångspris:
4 495 000 kr
Antal rum:
7
Boarea / Biarea:
180 kvm / 12 kvm*
Tomtarea:
811 kvm
Typ:
Friliggande villa

*Areauppgifter enligt taxeringsinformationen

Vill du veta mer om bostaden?

På Förhand – Vad är det?

På Förhand ligger bostäder som av olika anledningar inte är ute till försäljning just nu men som kan komma att säljas om förutsättningarna är rätt.

Läs mer om På Förhand

Ansvarig mäklare

Jenny Ruthenberg

Fastighetsmäklare

Bjurfors Trelleborg
Jenny Ruthenberg

BOKA EN KOSTNADSFRI VÄRDERING

Modernt lantliv

Modern husdröm mitt på landet med generösa boyta samt en skön och lättskött utemiljö

Beskrivning

Vem har sagt att ett liv på landet måste innebära en hundraårig länga med renoveringsbehov? Mellan vidsträckta åkerfält på Landsvägen utanför Anderslöv bevisas motsatsen.
Interiört överraskas ni av en imponerande boyta på hela 180 kvadratmeter, fördelade på två plan och sju rum. Balansen mellan sociala och privata rum är idealisk och ger även fina förutsättningar för egenföretagaren som kan ha en lite avskild del i huset. Just den anpassningsbara planlösningen är ett av husets starka fördelar. Sällskapsytorna finns det flera av beroende på hur många sovrum man behöver. I vardagsrummet erbjuder en öppen spis som både ger värme och mysfaktor. Två exklusiva badrum som ligger på varsitt plan. Ett inflyttningsklart och bekvämt boende i fridfulla omgivningar.

Grönby är en småort i Trelleborgs kommun och kyrkby i Grönby socken på Söderslätt i Skåne. Grönby var tidigare ett livligt centrum med bland annat möllor, smedjor, vagnmakeriverkstad och pottmakeri. Byn är fortfarande stor och sträcker sig utmed vägen upp mot Norra Grönby. Grönby erbjuder en Gårdscharkuteri se; https://www.gronbychark.com och ligger 3 km från Anderslöv.

Anderslöv erbjuder bra med pendlingsläge, bussen har bla anslutning i Ö Grevie till Pågatåget som går mellan Trelleborg-Helsingborg. I byn finns bl a gym, förskola, skola F-9, vårdcentral, mataffärer, tandläkare, apotek, gym, utomhusbad, idrottsplats och Anita på Gästis Anderslövs. I en toppmodernt hus med spännande planlösning och flertal rum lever ni det stillsamma livet på landet utan ständigt underhåll. Husets framsida har en härlig gräsmatta som bjuder in till sommarlek och en vacker elgrind som välkomnar er in. Härifrån har vi finingången till huset. Uterummet som ligger på baksidan har ingång nära husets vardagsingång vilket ger dig/er enkelt möjligheten att njuta av era måltider här i uterummet och förlänga de varma och sköna dagarna utomhus. Här finns även en stenlagd uteplats samt gräsmatta med utsikt mot åkern. Taket är beklätts med solpaneler i två väderstreck vilket innebär väldigt låg driftkostnad för huset.

Välkomna på visning!

Interiör

Välkommen till ett unikt boende där hela familjen får plats!

Entrén är välkomnade och man kan välja på att gå vidare till vänster där man når rummet som idag används som kontor eller till höger då man når det andra sällskapsrummet allrummet som idag är ett Master bedroom. En stor klädkammare som sväljer gästernas ytterkläder lätt finns även i denna hall. Husets entré plan har mörkare golv och vita väggar.

Vardagsingången är luftig och här finns bra med avhängningsmöjligheter. Via hallen finns trappan som leder oss upp till övre plan samt ingången till ett av badrummen och tvättstugan.

Köket är mycket stilfullt och snyggt från Ballingslöv. Det är ett fantastiskt matlagningskök med gott om förvaringsmöjligheter och arbetsyta. Den maskinella utrustningen består av kyl och frys i fullhöjd, diskmaskin, spisfläkt, spishäll samt inbyggd micro och ugn. Matplats vid fönstret.

Önskar man en större matplats så finns det i anslutningen till köket där hela stora familjen kan få plats.

Intill detta rum finns rummet som idag används som Master bedroom men som skulle utmärkt passa som ett allrum/tv-rum.

Ljust vardagsrum med fönster åt både söder och väst. Rummet erbjuder en öppen spis som både ger värme och mysfaktor. Ett mycket trivsamt rum där hela familjen kan samlas.

Kontoret som ligger mellan vardagsrum och entré ingång har fönster mot husets framsida är trivsamt och perfekt som arbetsplats för den som vill jobb hemma.

Helkaklat badrum (ingång från hallen) är inrett med både dusch, badkar, wc, bidé handfat, underskåp, golvvärme (el) och fönster.

Tvättstuga utrustad med tvättmaskin, torktumlare, vask, värmepanna, flertal skåp och fönster

Den privata delen finner vi på övre plan inrett med fyra sovrum, två klädkammare och ett badrum. Helkaklat badrum inrett med dusch, vask, spegel, underskåp, handdukstork (el), golvvärme (el) och fönster. Övre plan är inrett med enhetlig ljust trägolv och vita väggar.

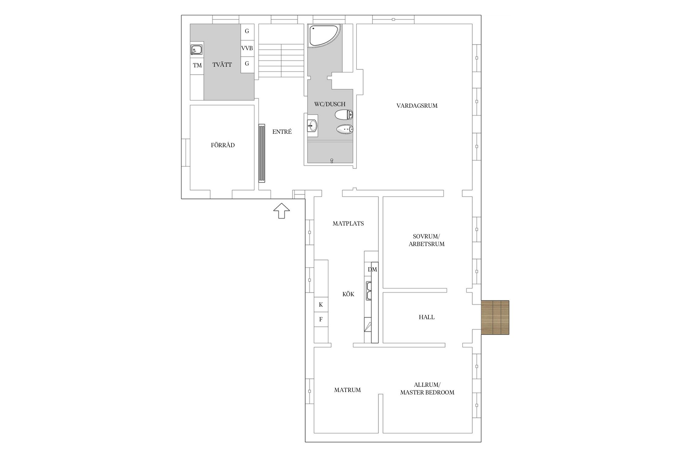
Planritning

Planlösning

Entré plan

Planlösning

Övre plan

Fakta om bostaden

Fastighetsbeteckning

Grönby 22:6

Information

Typ
Friliggande villa
Upplåtelseform
Friköpt
Utgångspris
4 495 000 kr
Rum
7
Antal sovrum
5
Max antal sovrum
6
Boarea
180 kvm*
Biarea
12 kvm
Tomtarea
811 kvm
Trädgård
Ja

*Areauppgifter enligt taxeringsinformationen

Byggnadssätt

Byggnadstyp
1 ½ plan
Byggår
1920
Fasad
Mineralputs
Grund
Betong/torpagrund på den gamla delen
Stomme
Tegel, Leca, isolering
Bjälklag
Trä
Uppvärmning
Luft/vattenvärmepump samt solceller
Takbeklädnad
Glaserande takpannor
Ventilation
Självdrag
Fönster
3-glasfönster

Ombyggnad, Renoveringar

Nuvarande ägare:
- Satt in ventilation och fönster i uterum. Samt lagt trallgolv därinne.
- Laddbox till elbil installerad 2023
- Nya kranar till vasken i badrummet på ovanvåningen 2023
- Fiber indraget och klart.

Förra ägaren:
2021 - Byggt uterum (samma plats som det gamla stod) samt stenlagt uteplats.
Dränerat huset åt öst och norr samt lagt sten intill huset.

Förra ägaren igen:
Gjorde en omfattande renovering 2019-2020 med bl a nya ytskickt golv och väggar, nya fönster, ny uppvärmningssystem, nytt tak med solceller, två nya badrum, förlängt köksinredningen och gjutit igen en gammal matkällare som man kom ner till från köket.

Huset uppfört 1920, om- och tillbyggt 1977-1978 och totalrenoverat 2019-2020.

Övriga byggnader/utrymmen

Förråd finns

Besiktning

Besiktigad
Nej

Uteplats/balkong

Inglasat uterum med skjutparti ut mot trädgården samt en stenlagd uteplats.

Vatten/Avlopp

Kommunalt vatten, Kommunalt avlopp.

Tomt

Lättskött tomt med två anlagda gräsmattor var av en på framsidan och en på baksidan. Tomten är omgärdad av staket och häckar samt en smidesgrind som styrs elektriskt.

Parkering

Uppfart för flera bilar.

Planbestämmelser

Områdesbestämmelser (2004-10-18)

Rättigheter/gemensamhetsanläggningar

Förmån: Officialservitut Väg, 12-GRÖ-253.2

TV/bredband

Fiber finns

Ekonomi

Taxeringsvärde
3 140 000 kr
Byggnadsvärde
2 294 000 kr
Fastställt
2024
Kod
220, Småhusenhet, bebyggd
Fastighetsskatt/Avgift
10 425 kr

Driftskostnad (per år)

Personer i hushållet
3
Värme
25 336 kr
Renhållning
2 833 kr
Vatten/Avlopp
11 089 kr
Summa
39 258 kr

Huset är utrustat med solpaneler som producerar mer el än hushållet förbrukar.

Köpt 2025: 9618kWh
Sålt 2025: 12 688kWh

Nuvarande ägare har villaförsäkring via IF och betalar 8721 kr/år.

Energideklaration

Utförd
Ja
Energiklass
B
Energiförbrukning per kvm och år
30
Energideklarationsdatum
2020-09-27

Pantbrev

Det finns 8 st pantbrev uttagna om sammanlagt 3 761 250 kr

Om Grönby

Att bo på Söderslätt

På Söderslätt, landet mellan Malmö och Trelleborg, kan du uppleva Skåne när det är som allra vackrast. Här kan du njuta av de guldgula rapsfälten och besöka de vackra små byarna som ligger utspridda över slätten ända ner till sydkusten.

Smygehamn är Sveriges sydligaste samhälle som ligger precis vid kusten i Trelleborgs kommun. Orten byggdes upp med hjälp av fiske, handel och kalkindustri. Här finns idag all tänkbar service som skola, bibliotek, servicelägenheter och äldreboende, hotell, restaurang, affärer och idrottsplats.

Omedelbart väster om Smygehamn ligger Skandinaviens sydligaste udde, Smygehuk. Orten sjuder av liv sommartid och här kan du uppleva en mängd utställningar och musikevenemang. Smygehuk är också välkänt för sina många kaféer och matställen, där du kan njuta av typisk skånsk husmanskost såväl som andra menyer.

Beddingestrand är beläget strax öster om Smygehamn. Den gamla fiskebyn har blivit tätort genom att allt fler fritidshus längs kusten har gjorts om till permanentboende. De äldre sommarbostäderna är mycket charmiga och många är unika i sitt slag.

Böste är sydkustens största och mest välbevarade fiskeläge. I Böste finner du en verklig idyll med välrenoverade hus och underbart vackra miljöer. Husen är ofta byggda av putsad och kalkad flintsten. Flintstenen tillsammans med kalkberg utgör berggrunden här.

Bodarp är en av Söderslätts minsta och charmigaste byar, bestående av fyra gårdar och lika många gatehus samt en medeltida kyrka och en gravhög. Byn ligger högt i ett vägkors och härifrån har du en fantastisk utsikt över det skånska landskapet. Bland de trevligaste sevärdheterna i byn kan nämnas Hallongården. Hammarlöv är en genuin by med områdets enda rundtornskyrka. Från Skegrie finns utmärkta förbindelser med Trelleborg, Malmö och Öresundsbron. Området är perfekt om du vill bo ”på landet” men samtidigt ha nära till storstadens alla bekvämligheter.

Vill du köpa, sälja eller värdera bostad i Grönby? Kontakta Bjurfors mäklare i Trelleborg! Passa också på att anmäla dig till vår kostnadsfria söktjänst Boagenten som hjälper dig att hitta ditt drömboende.

Karta

Landsvägen 2437

Landsvägen 2437

23173 Anderslöv

Visa i Google Maps (öppnas i nytt fönster)

Boendekalkyl

Kontakta mäklaren om du behöver hjälp att ta fram en boendekalkyl.

När du köper din bostad genom Bjurfors kan du ansöka om bolån till en förmånlig ränta hos våra banksamarbetspartners Söderberg & Partners och SEB.

Ansök om lånelöfte hos Söderberg & Partners

Ansök om lånelöfte hos SEB

Håll koll på detta objekt

Vill du veta mer om bostaden?

Kampanjbild Boneo