-
Köpa
Köpa -
Sälja
Sälja - Hitta bostad
- Skapa bevakning
- Hitta mäklare
Ett charmerande hus på kustnära läge med hänförande vy över den skånska slätten
Stora Isie, Trelleborg
*Areauppgifter enligt säljaren, taxeringsinformationen anger en boa på 96 kvm.
På Förhand ligger bostäder som av olika anledningar inte är ute till försäljning just nu men som kan komma att säljas om förutsättningarna är rätt.
Detta charmiga hus är beläget på Skånes sydkust en bit norr om Smygehamn i vacker bymiljö med fantastisk utsikt och vidunderliga solnedgångar.
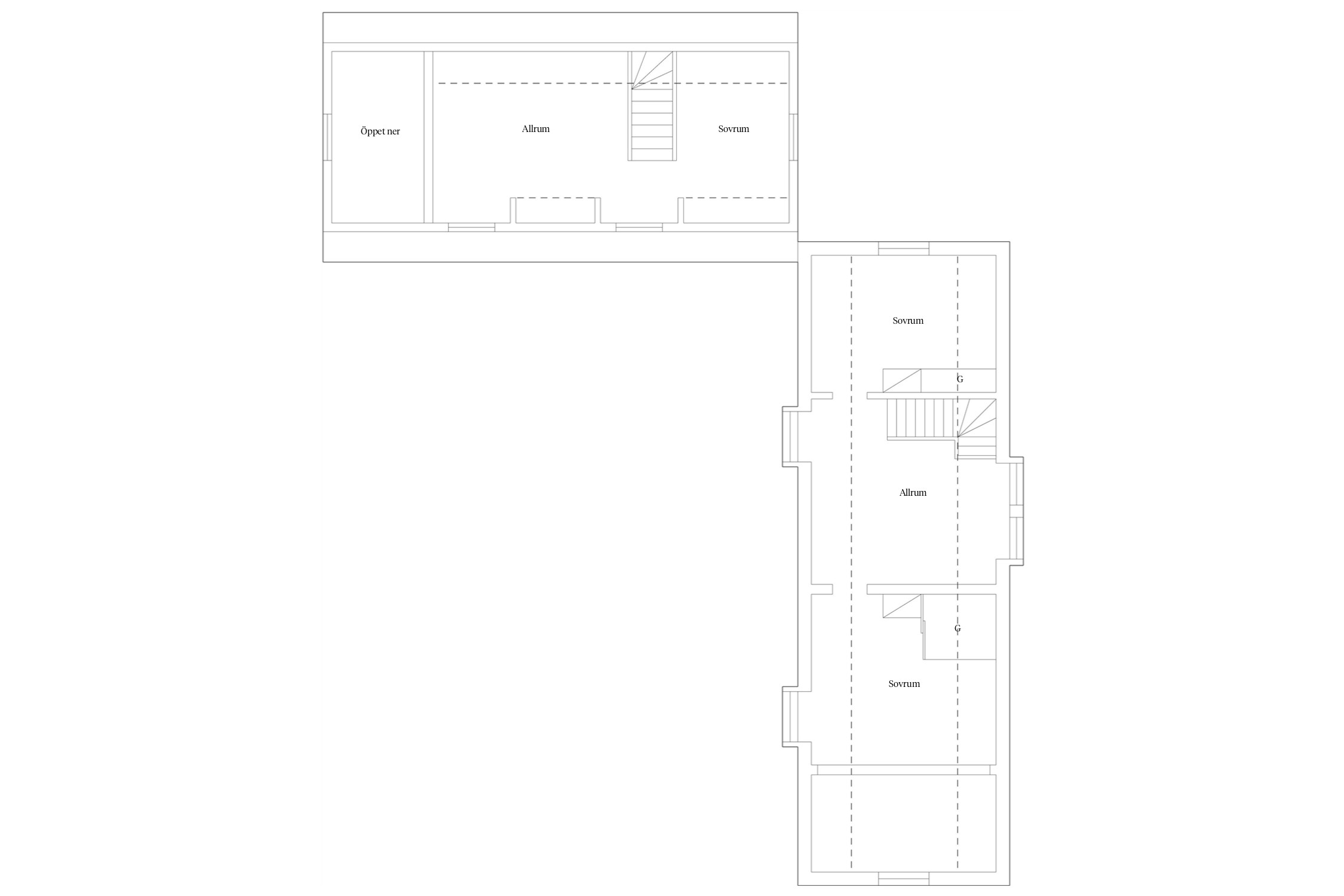
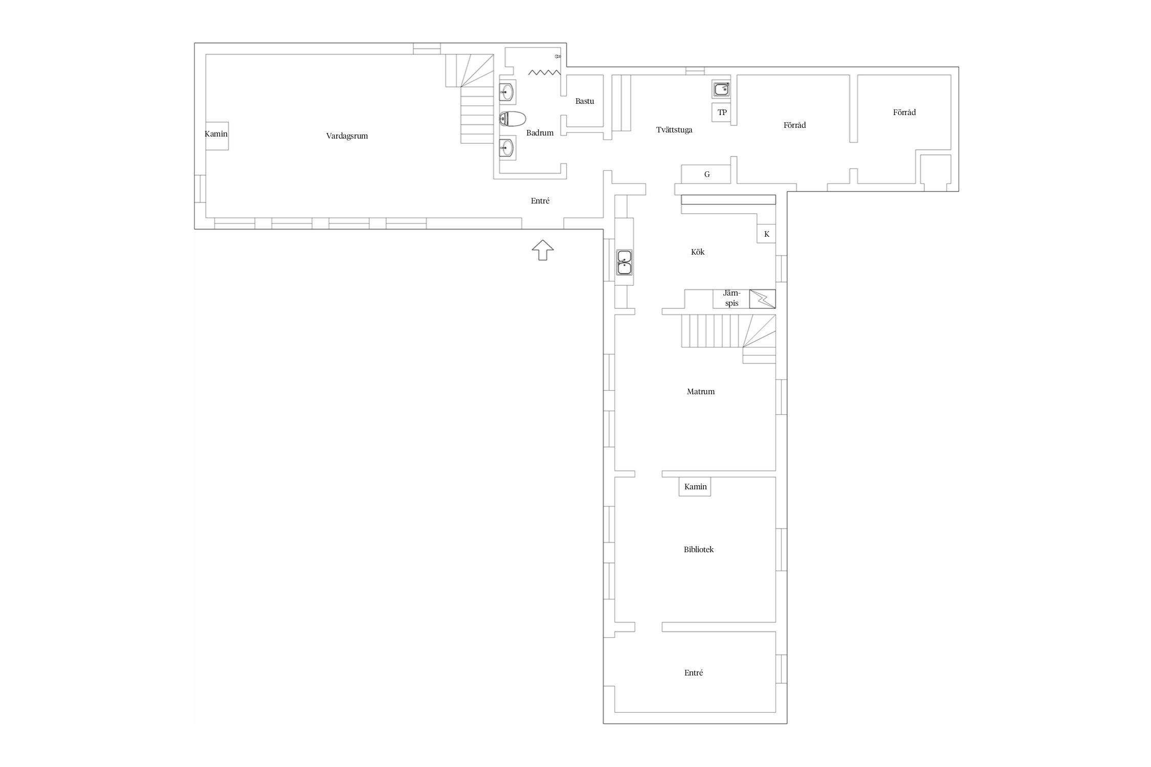
Ett hus med äldre charm i behov av uppfräschning/renovering uppfört 1819 och tillbyggt 1998. Huset ligger inbäddat i grönska på en lummig tomt med hänförande vy över den skånska slätten och med Östersjöns glitter i horisonten. Flera fina detaljer från förr finns bevarade och balanseras fint ihop med de lite mer moderna och funktionella bekvämligheterna. Huset inrymmer på entréplan entré, kök med gjutjärnsspis, matrum i anslutning till köket, efter detta följer ett genomgångsrum/bibliotek med braskamin och sedan en äldre entré/hall. I den nyare delen finns ett vardagsrum med braskamin och delvis öppet upp i nock samt ett badrum med dusch. I vardagsrummet finns trappan som tar er upp till övre plan i den nyare delen. Här uppe finns idag ett rum med möjlighet att dela av för att få ännu ett sovrum. I matrummet finns ytterligare en trappa som tar er upp till övre plan i den äldre delen och här uppe finns två sovrum och ett litet allrum.
Trädgården har rik växtlighet och längtar efter dig med gröna fingrar och ett stort trädgårdsintresse. Här finns möjligheter för dig med ett kreativt sinne att skapa och forma ytor för social samvaro med vänner och familj och varför inte en egen kryddträdgård och ett trädgårdsland. Idag finns här en vacker syrenberså, uteplats på entrésidan, en flaggstång, en äldre friggebod, äldre förrådsbyggnader samt uppställningsplats för 2-3 bilar.
Detta charmiga hus är beläget på Skånes sydkust strax norr om Smygehamn med fin utsikt över slätten och i närheten av Böste, Beddingestrand och Klagstorp. Längs kusten i närheten finns allt du kan önska - fina badstränder, golfbana, vacker natur, café samt affärer och flera restauranger. Förutom de vackra omgivningarna och det idylliska läget har man bra pendelavstånd till Ystad, Trelleborg, Sturup, Malmö och Köpenhamn. På Sveriges sydligaste udde, Smygehuk, lockar Rökeriet med sina delikatesser. Dessutom finns ett rikt kulturutbud med bl. a konstutställningar och musikarrangemang.
Varmt välkommen till denna lilla pärla belägen i Stora Isie By, en stillsam och barnvänlig by med fin gemenskap.
ENTRÉPLAN
ENTRÉ:
med klinkergolv, målade väggar och klädavhängning.
VARDAGSRUM:
med trägolv (såpabehandlat), målade väggar, delvis öppet upp i nock, braskamin samt trappa till övre plan i den nyare delen.
KÖK:
med klinkergolv (elslingor) och målade väggar. IKEA kök med trärena furuluckor/vitrinluckor ovanskåp, bänkskiva laminat/rostfri diskbänk, kakel vid vask. Utrustning: ugn, kyl (Elektrolux 2020), frys (Cylinda 2020), diskmaskin (Elektrolux 2019), spis (Husqvarna 1995) och gjutjärnsspis (Ankarum).
MATRUM:
med linoleumgolv, väggar med panel och tapet. Trappa till övre plan i den äldre delen.
BIBLIOTEK:
med trägolv, tapet på väggarna samt en braskamin.
ÄLDRE ENTRÉ/HALL:
med klinkergolv och målade väggar.
BADRUM:
med klinkergolv och kaklade väggar. Renoverat 2005. Utrustning: toalett, 2 handfat, dusch och spegelskåp. Bastu för 2 personer.
TVÄTTSTUGA:
med målat betonggolv och målade väggar. Utrustning: rostfri vask, platsbyggt förvaringsskåp, tvättmaskin (Elektrolux) och torktumlare (Zanussi).
FÖRRÅD 2 st:
som man når via tvättstugan, ett med klinkergolv samt ett med stampat jordgolv.
ÖVRE PLAN
SOVRUM 1 (äldre delen):
med lackat trägolv, tapet och platsbyggd garderob.
ALLRUM (äldre delen) :
med lackat trägolv och tapet samt trappan från entréplan i den äldre delen.
SOVRUM 2 (äldre delen):
med lackat trägolv, tapet och platsbyggd garderob. Rummet är uppdelat i två nivåer med ett trappsteg emellan.
SOVRUM 4 (nya delen):
med trägolv (såpabehandlat) och obehandlade väggar.
ALLRUM (nya delen):
med trägolv (såpabehandlat) och målade väggar. Öppet ner till vardagsrummet.



Stora isie 15:1
*Areauppgifter enligt säljaren, taxeringsinformationen anger en boa på 96 kvm.
*Uppgift enligt säljaren
Information:
- 2 st braskaminer samt 1 järnspis i köket (samtliga är besiktigade och godkända). Brandskyddskontroll av kaminerna är utförd 2022-01-10.
- Centraldammsugare
- Varmvattenberedaren är 20 år gammal.
- Det finns en mindre bastu för 2 personer.
- Solfångarna är ur funktion, översyn pågår.
1985-1990 Renovering och isolering av vind samt elinstallation.
1997 Byte av elcentral.
1998 Tillbyggnad
2004 Installation av golvvärme och klinkerbeläggning i kök.
2005 Renovering av badrum.
2022 Nylagt listat papptak på ena huskroppen.
2022 Hängrännor samt stuprör bytta.
2023 Ny konvektor vatten till luft i nya delen samt totalöversyn av pannan.
2024 Primad och ommurad östervägg.
2025 Nymålat väggar, dörrar och fönster.
Friggebod
Förråd
2-3 uteplatser.
Kommunalt vatten, Kommunalt avlopp.
Uppvuxen och lummig tomt med syrenberså, gräsmatta, träd, buskar, häckar och fruktträd.
Bilplats för 2-3 bilar.
Områdesbestämmelser (2004-10-18)
Fiber och parabol.
Fiber
Nuvarande ägare har villaförsäkring hos Folksam och betalar 2 736 kr/år (fullvärde).
Solfångarna är ur funktion, översyn pågår.
Enligt överenskommelse
Det finns 4 st pantbrev uttagna om sammanlagt 520 000 kr
I Trelleborgs Kommun bor du nära havet, slätten och det hänförande backlandskapet. Till kommunen hör en tre mil lång kust med omväxlande natur. Vackra vyer öppnar sig över strandängar och trivsamma fiskelägen, mitt i den expansiva Öresundsregionen med två flygplatser inom en timmes bilfärd. Här är också företagsandan stor och en mängd multinationella företag har valt att lokalisera sin verksamhet hit.
Trelleborg är en kommun för såväl gammal som ung, med en mängd skolor och ungdomsverksamheter. En rad nya bostadsområden planeras, med både villor och flerfamiljshus.
Kultur- och fritidslivet i Trelleborg är rikt. Söderslättshallen har ishall, bollsportshallar, bowlinghall, styrketränings- och brottningslokaler, bordtennishall och skjutbana. På varmbadhuset finns två 25-metersbassänger, äventyrsbad och varmvattensbassäng. Fyra golfbanor och flera småbåtshamnar finns också här, samt ridskolor som ligger i Trelleborg och Anderslöv.
Vill du köpa, sälja eller värdera bostad i Trelleborgs kommun? Kontakta Bjurfors mäklare i Trelleborg! Passa också på att anmäla dig till vår kostnadsfria söktjänst Boagenten som hjälper dig att hitta ditt drömboende.
Kontakta mäklaren om du behöver hjälp att ta fram en boendekalkyl.
När du köper din bostad genom Bjurfors kan du ansöka om bolån till en förmånlig ränta hos vår samarbetspartner SEB.
Ansvarig mäklare