-
Köpa
Köpa -
Sälja
Sälja - Hitta bostad
- Skapa bevakning
- Hitta mäklare
Rymlig lägenhet med balkong mot väster!
Hököpinge, Vellinge
*299:- tillkommer för bredband. I månadsavgiften ingår värme, vatten och parkeringsplats.
**Areakälla enligt bostadsrättsföreningens mäklarbild/utdrag ur lägenhetsregister.
Bokad visning.
Ljus och välplanerad tvåa med västerbalkong och grönskande utsikt i populära Bruksparken...
Välkommen till denna trivsamma och genomtänkta bostad på andra våningen – en perfekt kombination av ljus, rymd och utsikt! Här bor du i ett lugnt och omtyckt område med naturen runt knuten och närhet till både Malmö och Vellinge.
Lägenheten bjuder på ett generöst allrum med fint ljusinsläpp och direkt access till balkongen i västerläge – en perfekt plats för att njuta av eftermiddagssolen och utsikten över gröningen. Köket är väl tilltaget och rymmer både gott om förvaring och en separat matplats vid fönster med vy mot den intilliggande naturen – här lagar du mat med utsikt!
Det rymliga sovrummet har plats för både dubbelsäng och arbetsplats, och erbjuder dessutom hela fem garderober för optimal förvaring. Härifrån når du även balkongen – en härlig detalj som ger rummet en extra dimension av ljus och rymd. Det helkaklade badrummet är stilrent och praktiskt med duschhörna och egen tvättmaskin – vardagslyx som förenklar livet. Parkeringsplats ingår i månadsavgiften – smidigt och bekvämt!
Bruksparken är ett omtyckt och barnvänligt område med grönområden, lekplatser och promenadstråk runt hörnet. Förskola och skola ligger på bekvämt gångavstånd, och du har utmärkta kommunikationer till både Malmö och Vellinge. En perfekt bostad för såväl unga som äldre – här trivs alla generationer!
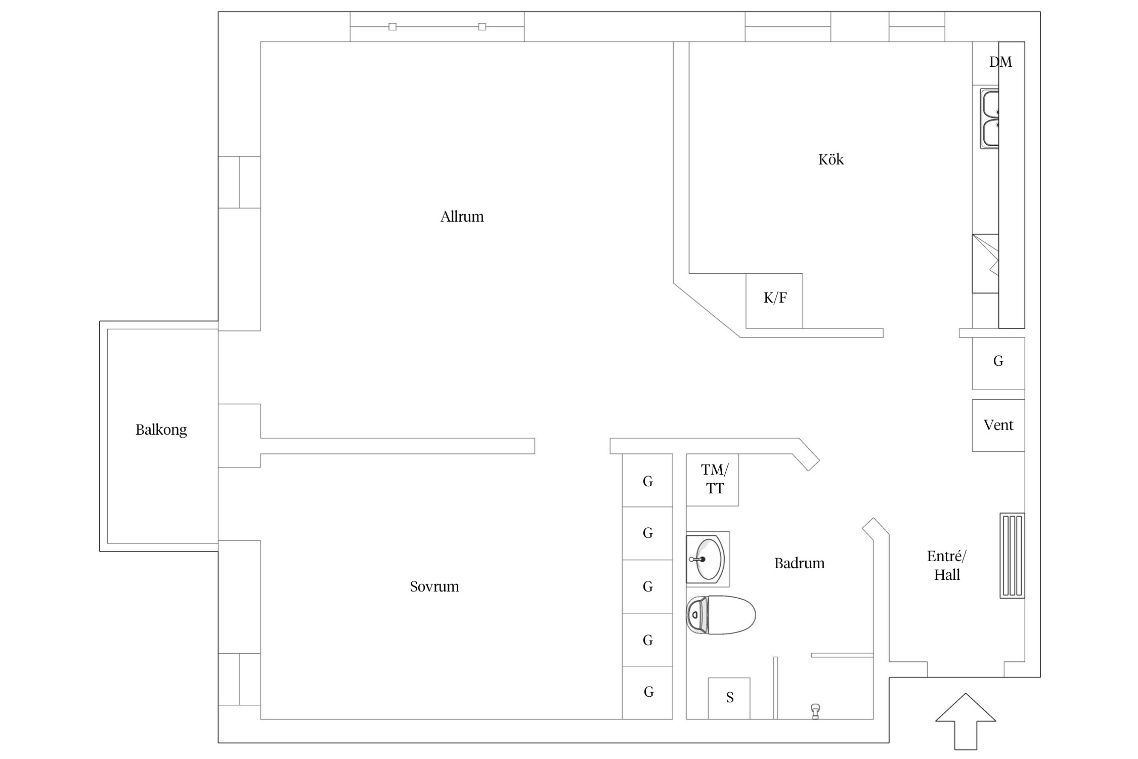
Entré/hall: Nylagd ekparkett och målade väggar. Hatthylla och garderob för avhängning.
Kök: Nylagd ekparkett och målade väggar. Bra planerat med stor matplats. Fönster mot intilliggande natur. Utrustat med; Spis, ugn, fläkt, diskmaskin och kombinerad kyl och frys.
Badrum/klädvård: Helkaklat badrum med stor duschhörna, skåp till förvaring, handfat, handdukstork, toalett och tvättmaskin. Smidigt med en tvättmaskin i lägenheten. Det finns även en tvättstuga i källaren.
Sovrum: Nylagd ekparkett och målade väggar. Utmärkt förvaring i fem garderober. Plats för dubbelsäng och skrivplats. Utgång till balkong.
Allrum: Nylagd ekparkettgolv och målade väggar. Bra storlek med plats för den stora soffgruppen och matbord. Utgång till balkongen mot väster.
Sammantaget : En mysig planlösning med fint ljusinsläpp från ett stort antal fönster. Skön balkong mot väster med fri utsikt ut över gröningen. Önskar man går det även bra att sitta utanför entrén på loftgången. Bra skick på lägenheten. Nylagda golv och nymålade väggar. Bara att flytta in.
Entré/hall
Nylagd ekparkett och målade väggar. Hatthylla och garderob för avhängning.
Kök
Nylagd ekparkett och målade väggar. Bra planerat med stor matplats. Fönster mot intilliggande natur. Utrustat med; Spis, ugn, fläkt, diskmaskin och kombinerad kyl och frys.
Badrum/klädvård
Helkaklat badrum med stor duschhörna, skåp till förvaring, handfat, handdukstork, toalett och tvättmaskin. Smidigt med en tvättmaskin i lägenheten. Det finns även en tvättstuga i källaren.
Sovrum
Nylagd ekparkett och målade väggar. Utmärkt förvaring i fem garderober. Plats för dubbelsäng och skrivplats. Utgång till balkong.
Allrum
Nylagd ekparkettgolv och målade väggar. Bra storlek med plats för den stora soffgruppen och matbord. Utgång till balkongen mot väster.
Sammantaget
En mysig planlösning med fint ljusinsläpp från ett stort antal fönster. Skön balkong mot väster med fri utsikt ut över gröningen. Önskar man går det även bra att sitta utanför entrén på loftgången. Bra skick på lägenheten. Nylagda golv och nymålade väggar. Bara att flytta in.



*Lägenheten ligger längst bort till höger. I slutet av loftgången.
**Hiss till markplan. Handikappsvänligt.
***Areakälla enligt bostadsrättsföreningens mäklarbild/utdrag ur lägenhetsregister.
299:- tillkommer för bredband. I månadsavgiften ingår värme, vatten och parkeringsplats.
- Källarförråd
- Tvättstuga i källaren
- Cykelförråd
- Miljöhus för avfall
I västerläge med utgång från sovrum och allrum.
En parkeringsplats. Ingår i månadsavgiften.
Fiber via Telia. Kostnad på 299:-.
Bostadsrättens indirekta nettoskuldsättning baseras på föreningens skulder/lån minus föreningens räntebärande tillgångar och likvida medel.
*Betalas av köpare
Föreningen planerar för en 3% avgiftshöjning från 1/1-2026.
Fullvärdesförsäkring finns via Söderberg & Partners. I försäkringen ingår kollektivt bostadsrättstillägg för medlemmarna samt ansvarsförsäkring för styrelsen.
Utförda:
2019 Belysningsbyte
2020 Taktvätt, målning och rännbyte.
2021 Tvätt och målning av takpannor. Byte av avlopps pump från tvättstuga. Byte av porttelefon system. Total renovering av lägenhet 1004 samt försäljning.
2023 Målning av trapphus, bytt belysning och ventilation i Miljörummet, bytt gasregulator på gaspannorna, plockat bort parabolerna på taket, bytt ut några trasiga takpannor, asfaltering till parkerings uppfart.
2024 Löpande underhåll VVS och fönster.
2025 Renovering av kök i hyreslägenhet. Byte av fläktar. OVK-besiktning.
Planerade:
2026 Stamspolning.
1 parkeringsplats tillhör lägenheten. Det är parkering utomhus. Det finns gott om parkering i närheten. HSB har även en stor (temporär) parkering till en låg avgift.
Kabel-tv Telia ingår i avgiften. Fiber ingår i avgiften 100/100.
Uteplats med möbler samt grill.
Cykelförråd
Tvättstuga i källarplan (2 maskiner, torktumlare samt torkskåp.)
Information som berör föreningen/fastigheten är inhämtad via årsredovisningar och kontakt med föreningen. Avvikelser kan förekomma och som köpare uppmanas du att själv kontrollera samtliga uppgifter, framförallt om något är av extra stor betydelse för dig som köpare.
Kan diskuteras
Vellinge ligger mitt i den expansiva Öresundsregionen med närhet till Skånes största städer. Här bor du nära naturen och havet med tillgång till ett välmående näringsliv samt ett rikt kultur- och föreningsliv.
Vellinge är en tätort i Vellinge kommun mellan Malmö och Trelleborg. Vellinges bebyggelse består av mindre flerfamiljshus inne i centrum och villaområden samt industriområden i utkanterna. I Vellinge centrum finns kommunhus, huvudbibliotek, butiker och annan service. Här finns ett mycket bra företagsklimat, kommunalskatten är bland de lägsta i landet och närheten till kontinenten påtaglig.
Vellinge har mycket att erbjuda för den som önskar ett aktivt fritids- och friluftsliv. Förutom några av Skandinaviens bästa badstränder finns även det populära badhuset Vanningen med minivattenland, rutschkana, vågbassäng, bubbelpool, banor för motionssimning, undervisningsbassäng och solarium. I området finns också flera fina golfbanor.
Inom Vellinge ommun finns flera unika naturtyper som strandhedar, fukthedar, sanddyner och stäppartade ängar. Hit kommer fågelskådare från hela världen för att se ett magnifikt flyttfågelsträck under hösten. Naturreservaten har en stor biologisk mångfald med flera fridlysta djur- och växtarter. Om du vill hitta bärnsten kan du söka här längs med Östersjöns kust. Bra fyndplatser är beskrivna på det fina Bärnstensmuseet i närliggande Kämpinge. Här finns också Stora Hammars Mölla från slutet av 1800-talet, en så kallad ”holländare” med kvarnhus på stengrund och rörlig hätta så att vingarna kan vridas i alla vindriktningar.
Arrie är en liten ort belägen i kommunens nordligaste del vid gränsen till Malmö. Arriesjön öster om Malmö var tidigare en grustäkt men består i dag av en sjö och ett fint grönområde för rekreation och biologisk mångfald.
Hököpinge är en tätort strax norr om Vellinge med äldre bebyggelse längs små bygator. Här ligger även Hököpinge kyrkby som har kvar sin charmiga gammalmodiga miljö.
Vill du köpa, sälja eller värdera bostad i Hököpinge? Kontakta Bjurfors mäklare i Höllviken! Passa också på att anmäla dig till vår kostnadsfria söktjänst Boagenten som hjälper dig att hitta ditt drömboende.
Kontakta mäklaren om du behöver hjälp att ta fram en boendekalkyl.
När du köper din bostad genom Bjurfors kan du ansöka om bolån till en förmånlig ränta hos vår samarbetspartner SEB.
Bokad visning.