-
Köpa
Köpa -
Sälja
Sälja - Hitta bostad
- Skapa bevakning
- Hitta mäklare
Klassisk familjevilla med promenadavstånd till stranden.
Kämpinge, Vellinge
*Enligt areamätning
Välskött villa med integrerat garage, uppvuxen stor hörntomt och lugnt läge i en mysig gränd.
Tillfälle att förvärva en klassisk och välskött villa i 1,5 plan från 1974 med fem minuters promenadavstånd till Kämpingebukten med mjuka sanddynor och kristallklart vatten. Lugnt läge med hörntomt i en skyddad gränd i ett mysigt område med uppvuxna tomter och blandad bebyggelse.
Bostaden som har en funktionell och flexibel planlösning är väl omhändertagen och bjuder på generösa sociala ytor med ekparkettgolv och ett fräscht kök med inredning i massivt trä.
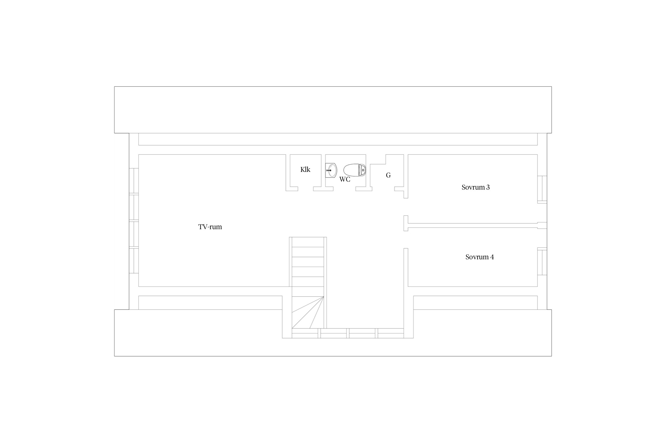
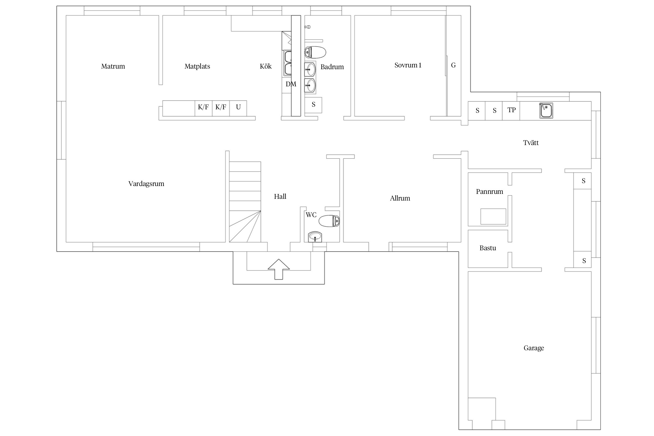
Praktiskt med två sovrum (varav ett används som allrum idag), badrum och gäst wc på nedre plan och ytterligare två sovrum, allrum och toalett (möjligt att göra om till badrum) på övre plan.
Trevlig och insynsskyddad utemiljö i sydvästläge med stenlagd uteplats och en stor gräsmatta (med robotgräsklippare) för spel och lek. Granne med ett grönområde gör att tomten känns ännu större än sina 1573 kvm.
Till fastigheten hör även på ett integrerat garage, carport och förråd.
Med närhet till skolor, fritidsaktiviteter, bussar och Höllvikens stora serviceutbud är denna villa ypperlig för den som söker generösa och flexibla ytor.
Välkommen till Sjöbrisvägen 6.
Nedre plan
Entré: Möblerbar hall med marmorgolv, målade väggar, infällda spotlights i taket och blyinfattat fönster.
Vardagsrum: Rum i vinkel som går att dela av om man önskar ytterligare ett rum. Ekparkett, målade väggar, stort fönsterparti mot trädgården samt två blyinfattade fönster och pardörrar ut mot hall och entré.
Kök: Platsbyggt kök i päronträ med bänkskivor i laminat, klinkergolv och tapet på väggarna. Kyl/frys (Cylinda), spishäll (Elektrolux 2015), ugn (Elektrolux 2015), mikro (Ikea 2021), fläkt (Cylinda) och diskmaskin (Bosch 2020). Gott om plats för matbord eller köksö.
Sovrum: Ekparkett , målade väggar och skjutdörrsgarderober med spegeldörrar.
Sovrum/allrum: Marmorgolv, målade väggar och utgång till terrass.
Badrum: Helkaklat med golvvärme (el), infällda spotlights i taket, handdukstork (el), wc, handfat med kommod, dusch med vägg i betongglas och badrumsskåp. Badrummet renoverades 2015.
Gäst wc: Klinkergolv, målade väggar, blyinfattat fönster, wc och handfat.
Tvättrum/förråd: Klinkergolv, målade väggar, inredning för förvaring med bra arbetsytor, tvättmaskin (Siemens 2024), torktumlare (Elektrolux 2025), pannrum med värmepump Nibe (luft/vatten ca 15 år gammal) och en bastu som inte är i bruk. Från förrådet når man det integrerade garaget. Fantastiska ytor för förvaring eller hobbyverksamhet.
Övre plan
Allrum: Generösa ytor som går att dela av, parkettgolv, målade väggar, öppet upp i nock med frilagda bjälkar och stort fönster med vacker utsikt.
Toalett: Plastmatta, våtrumstapet, wc och handfat. En klädkammare på vardera sidan så ytor finns om man önskar göra om till ett badrum.
Sovrum: Ekparkett, målade väggar och garderob.
Sovrum: Ekparkett, målade väggar och garderob.



Höllviken 14:148
*Enligt areamätning
Ägaren har valt att besiktiga huset genom Anticimex för att på bästa sätt göra försäljningen transparent så att du som spekulant skall kunna skapa dig en god bild av fastighetens skick och möjligheter.
Tanken med besiktningen är att man som spekulant skall ges möjligheten att kontakta besiktningsmannen för en genomgång av besiktningsprotokollet innan köp.
Vill man som spekulant genomföra en egen besiktning skall detta ske innan man undertecknar ett köpeavtal.
Nuvarande ägare har fått fastigheten som gåva och aldrig bott i huset. Fastigheten säljs därför med friskrivningsklausul.
Terrassdörrarna i sovrummen på övre plan är dåliga.
Enligt fastighetstaxering uppgår boyta till 196 kvm och biyta till 52 kvm. Enligt en nygjord areamätning (se bifogad under dokument) uppgår boytan till 263 kvm och biyta till 25 kvm.
1994-1995: Nytt kök.
2007-2010: Byte från oljepanna till luft/vatten.
2010: Renoverat badrum och tvättstuga.
2015: Spishäll och ugn.
2020: Diskmaskin.
2021. Mikro.
2024: Tvättmaskin.
2025: Torktumlare.
Integrerat garage, carport och förråd.
Stenlagd uteplats.
Kommunalt vatten, Kommunalt avlopp.
Parkliknande trädgårdstomt.
Garage, carport samt uppfart.
Ändring av detaljplan (1996-08-28) Vattenskyddsområde (1988-03-01) Byggnadsplan (1985-10-17)
Gemensamhetsanläggning: Vellinge höllviken ga:14 ändamål: Vägar, Grönområden
Fiber
Driftskostnader och elförbrukning är inhämtade från säljaren och bör endast ses som en uppskattning. Kostnaden kan variera och baseras på förbrukning och avtal.
Det finns 19 st pantbrev uttagna om sammanlagt 1 750 000 kr
Höllviken ligger vid Öresund med perfekt pendlingsavstånd till storstäderna i regionen. Här bor man i ett område som har varit fritidsparadis i flera generationer, nära havet med fantastiska milslånga sandstränder. Här finns också idylliska byar med många äldre byggnader bevarade.
Höllviken tillhör Vellinge kommun. Tätorten består av ortsdelarna Kämpinge, Gya, Furet, Sandeplan, Kronodal, Granvik och Kanalgatorna. Kämpinge är ett traditionellt fiskeläge som vuxit ihop med Höllviken. På Falsterbonäset finns även byarna Stora Hammar, Lilla Hammar och Fotevik. I Fotevik finns ett stort arkeologiskt friluftsmuseum som är väl värt ett besök. Bland annat ingår i museet en vikingaby som är uppbyggd i samband med projektet ”levande historia”.
I samband med att järnvägen färdigställdes mellan Vellinge och Skanör/ Falsterbo började området bebyggas. Under andra världskriget skedde en stor förändring av Falsterbonäset då Falsterbokanalen byggdes tvärs igenom området. Höllviken avdelades då också tydligt från Ljunghusen som kom att ligga väster om kanalen. Numera är järnvägen nerlagd, men kanalen fungerar som ett levande inslag i samhället.
I Stora Hammar finns Stora Hammars gamla kyrka från mitten av 1100-talet. Runt om i området finns en hel del fynd för den som är intresserad av historia och arkeologi. Här har man hittat flera härdar från sen vikingatid och även lämningar från en medeltida by.
Räng Sand bestod till för bara några år sedan främst av sommarstugor och gårdsbebyggelse. Nu finns här också moderna villor i det man kallar Rängbågsbyn. Från Räng Sand tar du dig lätt till Höllvikens centrum på bara några minuter.
Räng är en ort som består både av äldre och mer modern bebyggelse, då det uppförts nya bostäder på många av de forna åkrarna. Öster om byn ligger Rängs kyrka. Bebyggelsen i området är idylliskt med små gårdar, egnahem och hantverkshus från olika tidsåldrar. Från Räng tar du dig lätt till fina badplatser och strövområden i närheten.
Vill du köpa, sälja eller värdera bostad i Kämpinge? Kontakta Bjurfors mäklare i Höllviken! Passa också på att anmäla dig till vår kostnadsfria söktjänst Boagenten som hjälper dig att hitta ditt drömboende.
Kontakta mäklaren om du behöver hjälp att ta fram en boendekalkyl.
När du köper din bostad genom Bjurfors kan du ansöka om bolån till en förmånlig ränta hos vår samarbetspartner SEB.