-
Köpa
Köpa -
Sälja
Sälja - Hitta bostad
- Skapa bevakning
- Hitta mäklare
Insynsskyddad trädgård söker barnfamilj...
Skanör, Vellinge
*Areauppgifter enligt ritning. Den uppskattade boytan på 173m² avser 138m²+15m²+20m².
Taxeringen säger 138m² + 15m² (del av gästlägenhet). Den inredda vinden ger c:a 20m² i boyta.
Anmäl dig till mäklaren för visningstid
På Förhand ligger bostäder som av olika anledningar inte är ute till försäljning just nu men som kan komma att säljas om förutsättningarna är rätt.
Välkommen till ett trivsamt och välplanerat hem i hjärtat av Skanör – med närhet till skola, natur, centrum och strand.
Välplanerat hem med bästa läge i Skanör... Letar ni efter ett hem där barnen kan leka fritt, där solen värmer en lummig och skyddad trädgård – och där vardagen får flyta lite smidigare tack vare ett genomtänkt läge? Då är detta huset för er. Här möts ni av ljusa och lättmöblerade ytor, ett generöst kök med goda arbetsytor, stor matplats och möjlighet att sitta ute – perfekt för både vardagens måltider och helgens långfrukostar. Allrummet i vinkel ger ett harmoniskt flöde och öppnar upp mot trädgården via en terrassdörr – en plats där inne och ute förenas naturligt.
Det finns fyra till fem sovrum, ett helkaklat badrum med intilliggande gästtoalett samt en inredd övervåning med ett större sovrum – perfekt som föräldrasvit, tonårsrum eller kreativ studio.
Trädgården är något alldeles extra: insynsskyddad med häckar och plank, solig men lättskött, och fylld av möjligheter till lek, vila och umgänge. Här finns gott om utrymme för barnens spring och sommarens grillkvällar. Det integrerade garaget är smart inrett som gästlägenhet – perfekt för en tonåring som vill prova vingarna eller för långväga gäster som förtjänar en egen vrå med stort badrum.
Läget? Det är helt enkelt oslagbart. Här bor ni med gångavstånd till Skanörs skola, Skanörsgården och de vackra strandängarna vid Knösen. En kort cykeltur tar er till centrum, mataffär, gym, hamn och den vidsträckta stranden. Området erbjuder även förskolor, lekparker, idrottshallar och fina promenadstråk. Och för golfälskaren väntar både Flommens och Falsterbo golfklubb bara minuter bort. Pendlar ni till Malmö? Buss 15 och 300 tar er dit smidigt.
Det här är ett hem att trivas i från första stund – en plats där varje detalj bidrar till en enklare och skönare vardag, mitt i ett av Skanörs mest omtyckta områden.
Varmt välkomna att boka visning – ert nya kapitel börjar här!
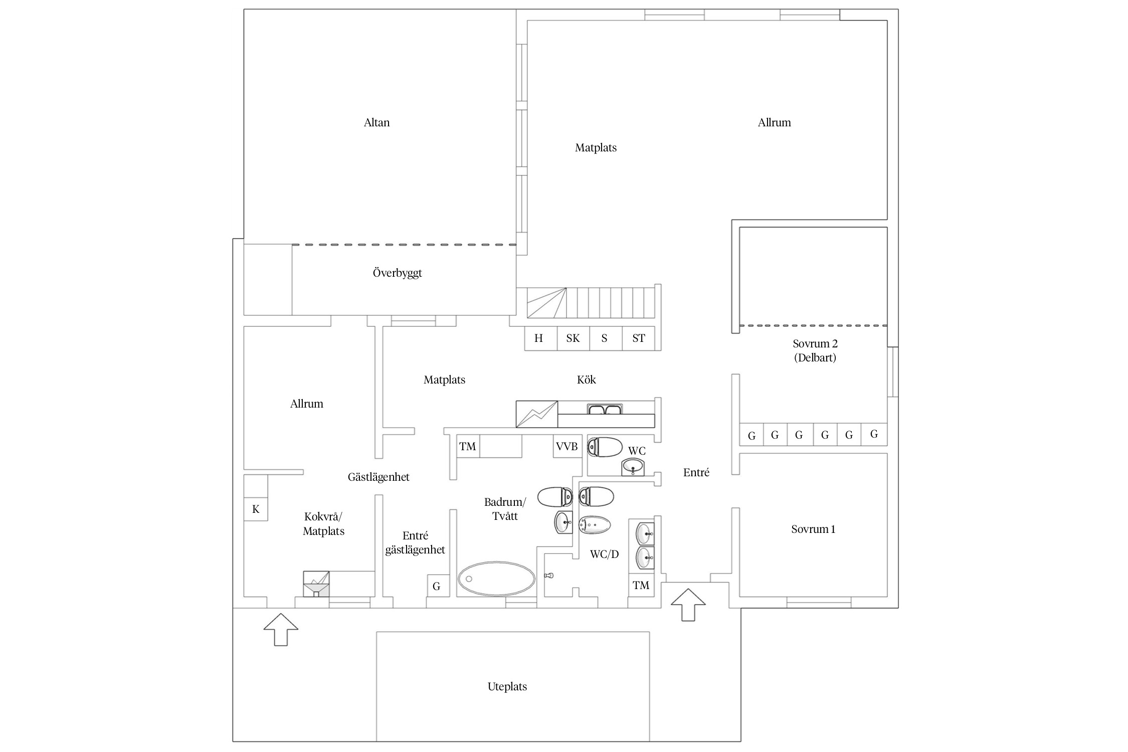
Entréplan
Fina sällskapsytor för familj och vänner. Bra planerat hus där arkitekten öppnar upp för att man skall kunna inreda med fler sovrum utmed den högra delen. Idag är här två sovrum men med lätthet kan det ändras till fyra sovrum och med stort allrum.
Entré/hall
Ekparkettgolv och vitmålad sjögrästapet. Från hallen når man i stort sätt husets alla rum.
Sovrum 1
Parkettgolv och vitmålad tapet. Ett mysigt rum med fönster mot morgonsolen. Bra storlek med plats för säng, skrivplats och läsfåtölj.
Sovrum 2
Parkettgolv och vitmålad strukturtapet. Här har man tagit bort väggen som sitter mellan de två fönsterna. Idag är här ett väl tilltaget sovrum med två fönster mot norr, fem garderober och plats för dubbelsäng och skrivplats. Ett härligt rum.
Allrum/matrum
Parkettgolv och vitmålad strukturtapet. Det största rummet i huset. Är man i behov av fler sovrum så kan man med lätthet skilja av den norra sidan till ett stort sovrum. Idag mäter rummet lite drygt 40m² och har plats för den stora soffgruppen tillsammans med matbordet och 10-12 sittande gäster. Totalt fem fönster mot sydväst ger stor ljusinsläpp och via terrassdörren når man trädgården. Trappan till vänster leder upp till gästrummet.
Kök
Parkettgolv och vitmålad strukturtapet. 60-talet gav oss funktion och finess. Ett välplanerat kök med vita släta luckor och fina arbetsytor och fin plats för familjen och snabba frukostar tillsammans. Access ut till trädgården. Från köket når man även gästlägenheten. I köket finns; spis med ugn, spisfläkt, diskmaskin, kombinerad kyl/frys. Ugnen fungerar dåligt.
Badrum
Helkaklat badrum med dusch, toalett, bidé, handfat, infällda spotlights, tvättmaskin, golvvärme med elslinga, handdukstork och fönster. Bra storlek på badrummet.
Gäst-wc
Helkaklad gästtoalett med toalett och handfat.
Övre plan/gästrum/sovrum 3
I en del av husen har man inte inrett vinden. Här har man inrett stora delar av vinden till förmån för förråd och klädkammare. I övrigt så har man inrett c:a 30m² golvyta till ett rum som med fördel kan vara en avdelning för tonåringen eller en ateljé/hemmakontor för familjen. En liten sovalkov rymmer sängen som mäter 120cm och resterande del av rummet har idag plats för soffa och bord. Stor fönstervägg mot norr. På golvet ligger ekparkett, väggarna har vitmålad strukturtapet och i taket sitter vacker furupanel. En mysig del av huset.
Gästlägenhet
Från början finns här ett integrerat garage á 15m² med access in till huset. Ägaren har låtit inreda totalt 30m² till en gästlägenhet. Populärt när släkten kommer på besök men även för några av sommarens gäster som uppskattar Skanör och som hyr in sig i lägenheten. Här finns; en kokvrå, toalett, dusch, handfat, tvättmaskin, allrum och sovplats. Allt man behöver för en kort tid i Skanör. Ytan går givetvis att använda i huset som en separat sovavdelning med stort badrum.
Sammantaget
Välplanerat hem med bästa läge i Skanör. Ljust, trivsamt och familjevänligt! Detta välplanerade hem erbjuder fyra till fem sovrum, generöst kök, rymligt allrum i vinkel och ett helkaklat badrum med extra gästtoalett. Den insynsskyddade, soliga trädgården är en privat oas för både lek och avkoppling. Det ombyggda garaget fungerar utmärkt som gästlägenhet – perfekt för tonåring eller övernattande gäster men även en integrerad del av huset med stort badrum. Allt detta på ett svårslaget läge nära skola, natur och Skanörs charmiga centrum.



Skanör 7:93
*Areauppgifter enligt ritning. Den uppskattade boytan på 173m² avser 138m²+15m²+20m².
Taxeringen säger 138m² + 15m² (del av gästlägenhet). Den inredda vinden ger c:a 20m² i boyta.
- Integrerat garage (idag inrett till gästlägenhet)
Fem uteplatser – fem unika upplevelser
Här bjuds du på inte mindre än fem fantastiska uteplatser, var och en med sin egen charm och funktion – perfekta för att följa dagens rytm, väder och sinnesstämning.
På framsidan av huset möts du av morgonsolen – en självklar plats för dagens första kopp kaffe i stillhet innan huset vaknar till liv. På trädgårdssidan finns två sköna platser: en precis utanför köket, där en utskjutande del av taket skapar en skyddad vrå för frukost eller lunch i det fria, och en annan utanför matrummet – vackert inbäddad bakom en häck, perfekt för långa middagar i ljum kvällsluft.
I tomtens sydvästra hörn väntar en mer intim plats där man gärna tänder en brasa, slår sig ner och blickar in mot huset – en plats för samtal, stillhet och stjärnklara kvällar. Sist men inte minst finns en generös uteplats utanför allrummet, där loungegruppen bjuder in till avkoppling, umgänge och långa sommardagar i solen.
Oavsett tillfälle, väder eller sällskap – här finns alltid en plats som passar.
Kommunalt vatten och avlopp.
En oas för livsnjutaren – trädgårdsdröm med sol hela dagen...
En underbart planerad tomt med bästa tänkbara läge! Här följer du solens gång från morgon till kväll, eller söker svalkande skugga under varma sommardagar – helt efter eget tycke. Den insynsskyddade tomten ramas in av välskötta häckar och staket som skapar en privat och rogivande atmosfär.
Trädgården är som gjord för återhämtning – en fristad där både kropp och själ finner ro. Oavsett om du vill odla, umgås eller bara njuta av naturens lugn, så är detta en plats att älska. En verklig pärla för den som söker något mer än bara en tomt – detta är en plats att kalla sitt paradis på jorden.
Ägaren ger ett smakprov på vad ni kan förvänta er när våren kommer tillbaka och visar sig från sin allra bästa sida. Här finns bl.a. Glansminskanus + flera andra olika prydnadsgräs, järnört, daglilja, gul kaprifol, vita+rosa clematis, syrenträd + syrenbuskar, vit vipphortensia, hortensia, blåregn, pampagräs, jasminträd, plommonträd, päronträd, järnek, tall, murgröna, silverarv, portugisisk lagerhägg, + lite andra buskar och träd som t.ex. thuja och idegran prydnad.
- Uppställningsplats för två bilar
- Bra med gästparkering vid infarten till kvarteret
Tomtindelning (1965-03-31) Stadsplan (1964-07-02)
Parabol finns
Fiber. Ägaren använder Boxer.
Driftkostnader och elförbrukning är inhämtade från säljaren och bör endast ses som en uppskattning. Kostnaden kan variera och baseras på förbrukning och avtal.
Kan diskuteras
Det finns 5 st pantbrev uttagna om sammanlagt 850 000 kr
Området Skanör/Falsterbo erbjuder dig ett härligt varierat liv med många olika aktiviteter. Här hittar du bland annat tio naturreservat, två golfbanor, fantastiska stränder och ett paradis för fågelskådare. Det underbart vackra ljuset från havet och de böljande sanddynerna har inspirerat många kända konstnärer.
Skanör är en ort i Vellinge kommun som idag är i stort sett sammanväxt med tvillingorten Falsterbo. I centrala Skanör finns Bäckatorget och en av de äldsta och vackraste byggnaderna är Rådhuset, som klarat sig undan både bränder och översvämningar. Mitt emot Rådhuset ligger den vackra medeltidskyrkan. Den som vill ha färsk fisk kan handla nyfångade läckerheter av lokala fiskare nere i hamnen. Missa inte den återuppbyggda och populära Badhytten alldeles bredvid Skanörs hamn där man har låtit sig inspireras av kustnära serveringar från såväl USA som Karibien. Förutom en restaurangdel finns en övervåning med två barer och generöst tilltaget soldäck med vacker utsikt.
Falsterbo upptäcktes som badort kring förra sekelskiftet, men är idag kanske mest känd för den fashionabla och mycket uppskattade Falsterbo Horseshow. Evenemanget lockar varje år hästsportintresserade från när och fjärran. För golfaren finns den anrika Falsterbo golfklubb som är Sveriges tredje äldsta golfklubb. Här finns landets enda 18- håls linksbana belägen vid Öresund och Östersjön.
Något av det bästa med Skanör och Falsterbo är ändå de fantastiska kilometerlånga stränderna med ljuvligt mjuk vit sand. Stränderna, som brukar kallas för ”Sveriges Riviera”, är mycket uppskattade och välbesökta under vackra sommardagar.
Vid stranden i Falsterbo finns också det anrika Falsterbohus som tidigare tjänade som badhotell och kasino. Numera är det ombyggt till attraktiva och strandnära bostadsrätter.
Måkläppen är en fridlyst halvö med ett rikt djur- och naturliv. Den mellersta delen av kuststräckan kallas Flommen och består av ett för landet unikt lagunlandskap omgivet av strandängar. Området är framför allt känt för det imponerande flyttfågelsträcket under hösten, men du kan även få se både gråsäl och knubbsäl här. Måkläppen är en av de största uppehållsplatserna för säl runt hela Östersjön.
Vill du köpa, sälja eller värdera bostad i Skanör? Kontakta Bjurfors mäklare i Höllviken! Passa också på att anmäla dig till vår kostnadsfria söktjänst Boagenten som hjälper dig att hitta ditt drömboende.
Kontakta mäklaren om du behöver hjälp att ta fram en boendekalkyl.
När du köper din bostad genom Bjurfors kan du ansöka om bolån till en förmånlig ränta hos vår samarbetspartner SEB.
Anmäl dig till mäklaren för visningstid