-
Köpa
Köpa -
Sälja
Sälja - Hitta bostad
- Skapa bevakning
- Hitta mäklare
Modern och välplanerad familjevilla på solig hörntomt!
Skanör, Vellinge
*Areauppgifter enligt taxeringsinformationen
Bokad förhandsvisning, boka in dig på länken
Bokad visning, boka in dig på länken
På Förhand ligger bostäder som av olika anledningar inte är ute till försäljning just nu men som kan komma att säljas om förutsättningarna är rätt.
Perfekt familjevilla med moderna bekvämligheter och härlig uteplats!
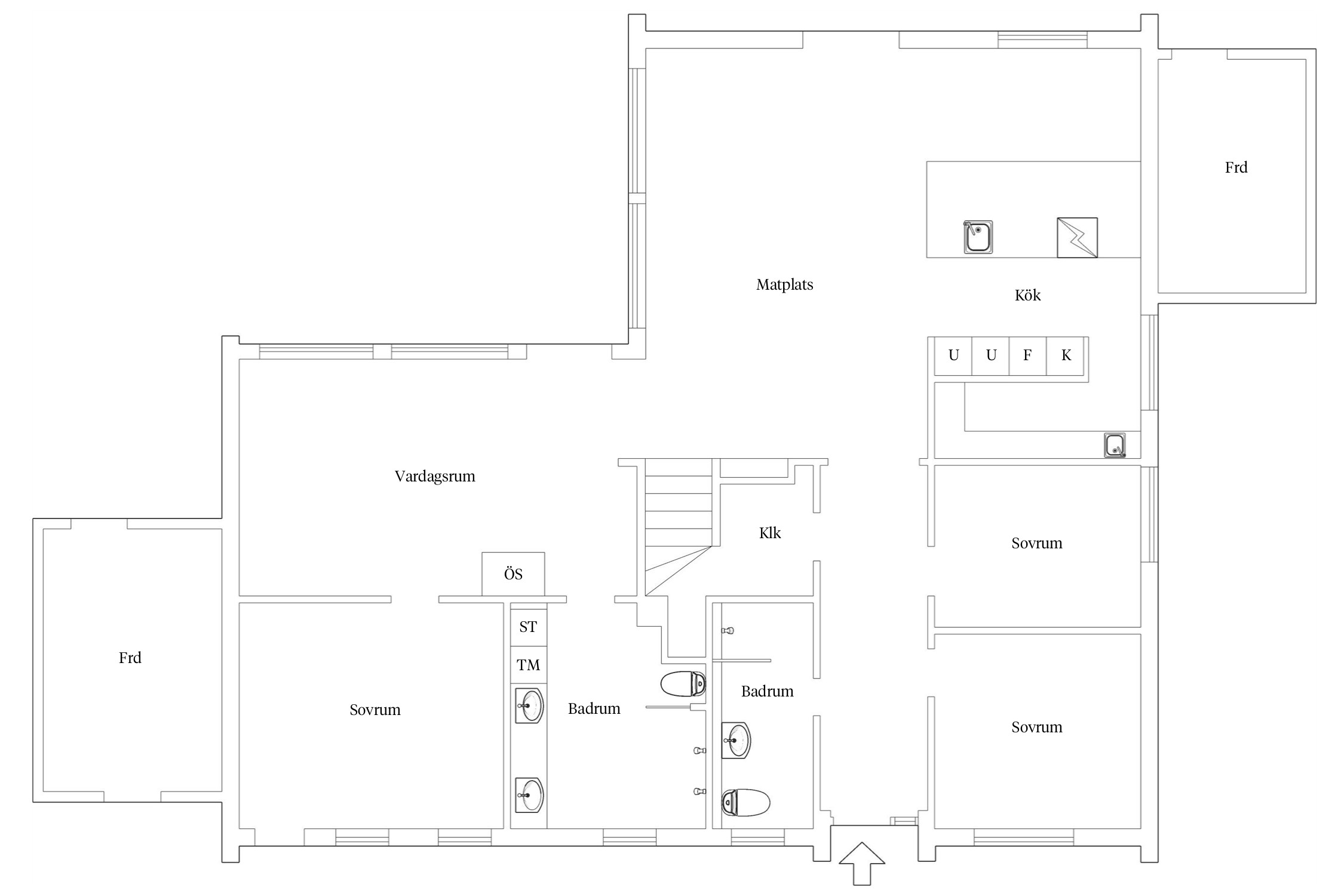
Välkommen till denna stilrena och generösa villa – ett hem som erbjuder gott om utrymme för både den lilla och stora familjen att trivas i.
På entréplan möts du av ett imponerande, luftigt kök med gott om arbetsytor och plats för alla dina kulinariska drömmar. Intill finns ett praktiskt grovkök med samma stil och standard som det andra, som underlättar vardagen och ger utrymme för alla hushållsmaskiner. I anslutning till köket finns även en naturlig plats för ett stort matsalsbord, perfekt för både vardagsmiddagar och festliga tillfällen. De stora fönsterpartierna (treglasfönster i hela huset) släpper in ett fantastiskt ljus och skapar en härligt öppen och inbjudande atmosfär.
Det rymliga vardagsrummet bjuder in till umgänge och avkoppling, med gott om plats för en stor soffgrupp. Här finner du även husets mysiga kamin som höjer trivseln ytterligare under årets kallare månader. Från både kök och vardagsrum når du det generösa trädäcket – en perfekt plats att njuta av soliga dagar och ljumma sommarkvällar. På entréplanet finns dessutom två fräscha och rymliga badrum – ett med vanlig dusch och ett med dubbeldusch – samt tre av bostadens totalt fem sovrum, vilket ger flexibilitet för familj, gäster eller hemmakontor. En trappa upp väntar ytterligare två sovrum samt en praktisk klädkammare som erbjuder utmärkta förvaringsmöjligheter.
Detta är ett hem som kombinerar funktion, rymd och ljus på bästa sätt – redo att flyttas in i och börja njutas av från första stund.
Varmt välkomna på visning! Möjlighet till snabb inflytt finns.
Här bor ni med gångavstånd till Skanörs skola, Skanörsgården och de vackra strandängarna vid Knösen. En kort cykeltur tar er till centrum, mataffär, gym, hamn och den vidsträckta stranden. Området erbjuder även förskolor, lekparker, idrottshallar och fina promenadstråk. Och för golfälskaren väntar både Flommens och Falsterbo golfklubb bara minuter bort. Pendlar ni till Malmö? Buss 15 och 300 tar er dit smidigt.
Entré
Redan i hallen möts du av ett underbart ljus och en generös rymd som sätter tonen för hela bostaden. Den stilrena Ekparketten (NQD) tar oss vidare genom hela bostaden.
Kök
Stilrent kök från Ikea - ett drömkök för både hemmakockar och familjer. Gott om förvaring, generösa arbetsytor och ett matbord med plats för 8-10 gäster. Svart/bruna luckor, bänkskiva i laminat och stänkskydd i metall. Köket är utrustat med spishäll (2017), ugn (2017), kyl/frys 2017), fläkt (2017), diskmaskin (2017) och mikro (2023).
Badrum 1
Badrum från 2017 med klinker på golvet och halvkaklade väggar. En harmonisk miljö som skapar ett härligt spa-inspirerat intryck med dubbeldusch. Utrustat med toalett, handfat, badrumsskåp, tvättmaskin (2026) och torktumlare (2010).
Badrum 2
Husets andra badrum är utrustat med toalett, handfat, dusch och bra förvaring i badrumsskåp.
Vardagsrum
Ett mycket inbjudande vardagsrum med härlig rymd och fantastiskt ljusflöde tack vare det stora fönsterpartiet. Här finns gott om plats för både soffgrupp och sociala ytor – perfekt för umgänge och avkoppling.
Sovrum
I bostaden finns fem bra sovrum i olika storlek, bra förvaring i garderober!



Skanör 7:85
*Areauppgifter enligt taxeringsinformationen
2017- Ny panna (NIBE)
2017- Renoverat badrum 1&2
2019 -Nytt staket
2023 -
Ombyggnation av andravåning, inkl tak
Nya fönster andravåningen
Eldstad
Ny ytterdörr
Ytor på förstavåningen målade
Byggt litet förråd till lådcykel
Friggebod ca 5 kvm
Förråd ca 15 kvm
Kommunalt vatten, Kommunalt avlopp.
Tomtindelning (1965-03-24) Stadsplan (1964-07-02)
Fiber - Bredband 2
Under el ingår även uppvärmningen
Det finns 8 st pantbrev uttagna om sammanlagt 3 105 000 kr
Området Skanör/Falsterbo erbjuder dig ett härligt varierat liv med många olika aktiviteter. Här hittar du bland annat tio naturreservat, två golfbanor, fantastiska stränder och ett paradis för fågelskådare. Det underbart vackra ljuset från havet och de böljande sanddynerna har inspirerat många kända konstnärer.
Skanör är en ort i Vellinge kommun som idag är i stort sett sammanväxt med tvillingorten Falsterbo. I centrala Skanör finns Bäckatorget och en av de äldsta och vackraste byggnaderna är Rådhuset, som klarat sig undan både bränder och översvämningar. Mitt emot Rådhuset ligger den vackra medeltidskyrkan. Den som vill ha färsk fisk kan handla nyfångade läckerheter av lokala fiskare nere i hamnen. Missa inte den återuppbyggda och populära Badhytten alldeles bredvid Skanörs hamn där man har låtit sig inspireras av kustnära serveringar från såväl USA som Karibien. Förutom en restaurangdel finns en övervåning med två barer och generöst tilltaget soldäck med vacker utsikt.
Falsterbo upptäcktes som badort kring förra sekelskiftet, men är idag kanske mest känd för den fashionabla och mycket uppskattade Falsterbo Horseshow. Evenemanget lockar varje år hästsportintresserade från när och fjärran. För golfaren finns den anrika Falsterbo golfklubb som är Sveriges tredje äldsta golfklubb. Här finns landets enda 18- håls linksbana belägen vid Öresund och Östersjön.
Något av det bästa med Skanör och Falsterbo är ändå de fantastiska kilometerlånga stränderna med ljuvligt mjuk vit sand. Stränderna, som brukar kallas för ”Sveriges Riviera”, är mycket uppskattade och välbesökta under vackra sommardagar.
Vid stranden i Falsterbo finns också det anrika Falsterbohus som tidigare tjänade som badhotell och kasino. Numera är det ombyggt till attraktiva och strandnära bostadsrätter.
Måkläppen är en fridlyst halvö med ett rikt djur- och naturliv. Den mellersta delen av kuststräckan kallas Flommen och består av ett för landet unikt lagunlandskap omgivet av strandängar. Området är framför allt känt för det imponerande flyttfågelsträcket under hösten, men du kan även få se både gråsäl och knubbsäl här. Måkläppen är en av de största uppehållsplatserna för säl runt hela Östersjön.
Vill du köpa, sälja eller värdera bostad i Skanör? Kontakta Bjurfors mäklare i Höllviken! Passa också på att anmäla dig till vår kostnadsfria söktjänst Boagenten som hjälper dig att hitta ditt drömboende.
Kontakta mäklaren om du behöver hjälp att ta fram en boendekalkyl.
När du köper din bostad genom Bjurfors kan du ansöka om bolån till en förmånlig ränta hos våra banksamarbetspartners Söderberg & Partners och SEB.
Bokad förhandsvisning, boka in dig på länken
Bokad visning, boka in dig på länken