-
Köpa
Köpa -
Sälja
Sälja - Hitta bostad
- Skapa bevakning
- Hitta mäklare
Vacker familjevilla i Skanörs stadskärna.
Skanör, Vellinge
*Areauppgifter enligt mätprotokoll
Enligt taxeringsuppgifter är boarea 163 kvm och biyta 40 kvm.
På Förhand ligger bostäder som av olika anledningar inte är ute till försäljning just nu men som kan komma att säljas om förutsättningarna är rätt.
Ljus och välplanerad villa med barnvänlig trädgård, solig uteplats och attraktivt läge vid Skanörs stadspark.
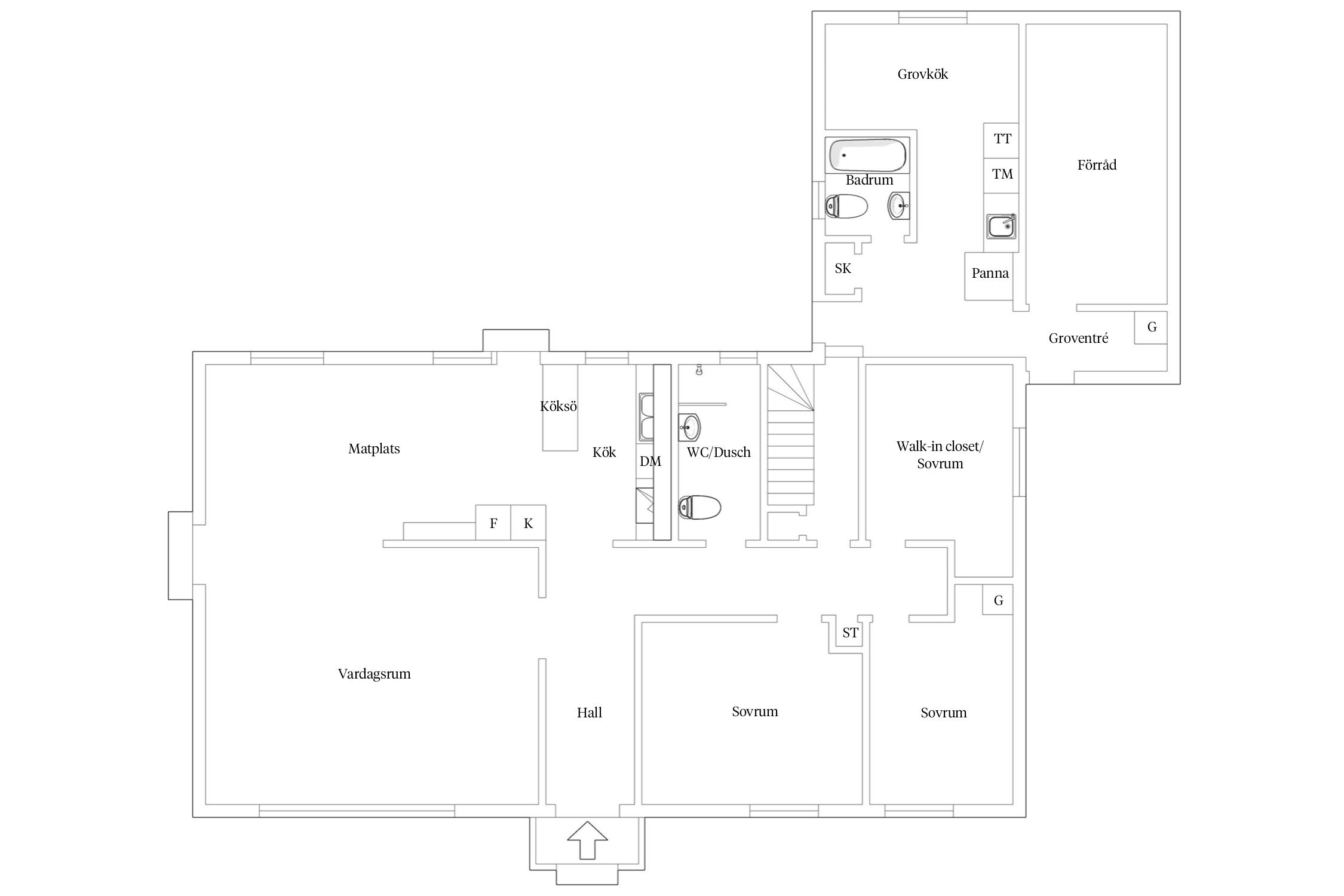
På Vånggatan 41 i Skanör finner vi denna fina familjevilla där komfort och stil möts i en harmonisk symbios. Med sina 204 kvadratmeter är denna bostad generöst tilltagen och välplanerad, vilket skapar en ljus och luftig atmosfär. Här bor du centralt och tryggt i en återvändsgränd, samtidigt som du har närhet till havet och kan njuta av allt som kustlivet har att erbjuda.
Villan erbjuder fem rum fördelade över en smakfullt renoverad interiör. På det nedre planet finner vi ett väl tilltaget vardagsrum som ligger i fil mot köket. Två fina sovrum, en walk in closet och helkaklat badrum finns också på det nedre planet. I en tillbyggd vinkel finns praktiska ytor som groventré, förråd, tvättrum och ett ytterligare badrum. I denna del av villan föreligger ett visst renoveringsbehov. Under de senaste åren har dock villan genomgått omfattande renoveringar såsom inredning av ett stilfullt övre plan, ommålning, byte av tak, samt uppgradering av fönster och dörrar.
Den stora tomten om 823 kvadratmeter innefattar en barnvänlig och lummig trädgård med fruktträd och bärbuskar. Uteplatsen med altan i västerläge bjuder på många soltimmar, perfekt för avkoppling eller sociala tillställningar.
Belägen i hjärtat av Skanörs stadskärna är läget enastående. Med sin närhet till både stadsparken, Skanörs centrum och havet erbjuder denna villa det bästa av två världar: ett lugnt och tryggt boende med alla bekvämligheter inom räckhåll. På en kort promenad nås Skanörs hamn som blivit en trevlig mötesplats året runt med restauranger, Kallbadhus och båtklubb. De vita stränderna som omger Näset är vida kända likväl som de välrenommerade golfbanorna. Varmt välkommen på visning av detta vackra hem!
Entréplan
Entré: Terakottaklinkers vid entré samt parkett. Väggar målade ljusbeige.
Vardagsrum: Parkett på golvet. Väggar målade ljusbeige.
Kök: Parkett på golvet. Väggar målade ljusbeige. Inredning från Ikea med vita luckor, träbänkskiva och kakel som stänkskydd. Spishäll (2024), ugn, kyl, frys, diskmaskin (2025), köksfläkt. Matplats för ca 10 personer.
Sovrum: Parkett på golvet. Väggar målade ljusbeige.
Sovrum: Parkett på golvet. Väggar målade ljusbeige.
Walk in closet / möjligt sovrum: Parkett på golvet. Väggar målade ljusbeige. Inrett med garderober med öppen förvaring.
Badrum: Helkaklat och utrustat med dusch, handfat, wc-stol, badrumsskåp och handdukstork (el). Golvvärme (el). Infällda spotlights i taket.
Tvättrum: Plastmatta på golvet. Vita väggar. Tvättmaskin och torktumlare samt handfat. Bra yta för att hänga tvätt på tork.
Badrum: Plastmatta på golvet. Målade väggar. Badkar, handfat och wc-stol.
Groventré: Plastmatta på golvet. Garderob. I anslutning till groventrén finns ett förråd.
Övre plan
Allrum: Vitlaserade furutiljor på govlet. Väggar måade vita. Platsbyggd bokhylla. Möjligt att dela av så att det skapas två ytterligare rum.



Skanör 52:10
*Areauppgifter enligt mätprotokoll
Enligt taxeringsuppgifter är boarea 163 kvm och biyta 40 kvm.
*Tillbyggt 1973
Besiktning
Ägaren har valt att förhandsbesiktiga huset genom Anticimex för att på bästa sätt göra försäljningen transparent så att du som spekulant skall kunna skapa dig en god bild av fastighetens skick och möjligheter.
Tanken med förhandsbesiktningen är att man som spekulant skall kontakta besiktningsmannen för en köpargenomgång av besiktningsprotokollet innan köp.
Vill man som spekulant genomföra en egen besiktning skall detta ske innan man undertecknar ett köpeavtal.
Larm
Larm är installerat, abonnemang hos Sector Alarm finns att överta, kostnad om ca 599kr/mån tillkommer.
2025
Ny sockel kök. Service och nytt kretskort värmepump.
2021
Målat invändigt på nedre plan, tak och väggar. Byte vred radiatorer.
2020
Skåp i badrum, spotlights nedre plan och staket.
2019
Flaggstång
2018
Altan och värmepump
2016/2017
Ombyggnation av övre plan och utbyte av ytterdörrar samt merparten av fönster.
2015
Byte av tak
2010/2014
(exakt renoveringsår saknas, uppgiften kommer från tidigare försäljning)
Badrum och kök
1973
Tillbyggnad med låg sidobyggnad med groventré, tvättrum, badrum och förråd.
Trädgårdsförråd
Carport
Altan med trädäck i västerläge.
Kommunalt vatten, Kommunalt avlopp.
Trädgårdstomt omgiven av vintergrönt buskage och med fruktträd och bärbuskar.
Carport med plats för en bil och uppfart med plats för två bilar.
Stadsplan (1973-12-07) Tomtindelning (1961-06-01) Fornlämning (1 st)
Fiber, leverantör Tele2.
Enligt överenskommelse
Det finns 10 st pantbrev uttagna om sammanlagt 6 350 000 kr
Området Skanör/Falsterbo erbjuder dig ett härligt varierat liv med många olika aktiviteter. Här hittar du bland annat tio naturreservat, två golfbanor, fantastiska stränder och ett paradis för fågelskådare. Det underbart vackra ljuset från havet och de böljande sanddynerna har inspirerat många kända konstnärer.
Skanör är en ort i Vellinge kommun som idag är i stort sett sammanväxt med tvillingorten Falsterbo. I centrala Skanör finns Bäckatorget och en av de äldsta och vackraste byggnaderna är Rådhuset, som klarat sig undan både bränder och översvämningar. Mitt emot Rådhuset ligger den vackra medeltidskyrkan. Den som vill ha färsk fisk kan handla nyfångade läckerheter av lokala fiskare nere i hamnen. Missa inte den återuppbyggda och populära Badhytten alldeles bredvid Skanörs hamn där man har låtit sig inspireras av kustnära serveringar från såväl USA som Karibien. Förutom en restaurangdel finns en övervåning med två barer och generöst tilltaget soldäck med vacker utsikt.
Falsterbo upptäcktes som badort kring förra sekelskiftet, men är idag kanske mest känd för den fashionabla och mycket uppskattade Falsterbo Horseshow. Evenemanget lockar varje år hästsportintresserade från när och fjärran. För golfaren finns den anrika Falsterbo golfklubb som är Sveriges tredje äldsta golfklubb. Här finns landets enda 18- håls linksbana belägen vid Öresund och Östersjön.
Något av det bästa med Skanör och Falsterbo är ändå de fantastiska kilometerlånga stränderna med ljuvligt mjuk vit sand. Stränderna, som brukar kallas för ”Sveriges Riviera”, är mycket uppskattade och välbesökta under vackra sommardagar.
Vid stranden i Falsterbo finns också det anrika Falsterbohus som tidigare tjänade som badhotell och kasino. Numera är det ombyggt till attraktiva och strandnära bostadsrätter.
Måkläppen är en fridlyst halvö med ett rikt djur- och naturliv. Den mellersta delen av kuststräckan kallas Flommen och består av ett för landet unikt lagunlandskap omgivet av strandängar. Området är framför allt känt för det imponerande flyttfågelsträcket under hösten, men du kan även få se både gråsäl och knubbsäl här. Måkläppen är en av de största uppehållsplatserna för säl runt hela Östersjön.
Vill du köpa, sälja eller värdera bostad i Skanör? Kontakta Bjurfors mäklare i Höllviken! Passa också på att anmäla dig till vår kostnadsfria söktjänst Boagenten som hjälper dig att hitta ditt drömboende.
Kontakta mäklaren om du behöver hjälp att ta fram en boendekalkyl.
När du köper din bostad genom Bjurfors kan du ansöka om bolån till en förmånlig ränta hos vår samarbetspartner SEB.
Ansvarig mäklare