-
Köpa
Köpa -
Sälja
Sälja - Hitta bostad
- Skapa bevakning
- Hitta mäklare
En omsorgsfull och gedigen renovering, delvis från 1700-talet
Centrala Ystad, Ystad
*Areauppgifter enligt taxeringsinformationen
Kontakta mäklaren för mer information gällande budgivningen.
Suveränt beläget gatuhus på hörna med både bilplats, garage och innergård. Fundamentalt och minutiöst renoverat med extra allt. Slutförande återstår.
Nu är det dags för den charmiga fastigheten på Supgränd att få en ny ägare.
Supgränd är mycket centralt och trevligt belägen. På andra sidan kvarteret i söder finns tågstationen med trafik som tar dig till Simrishamn i öster och Malmö, Lund och Köpenhamn i väster. Norr om huset är stegen inte många till Ystads gågata och allt det café och restaurangliv som erbjuds här.
På Stortorget bjuds förutom vackra byggnader även ett rikt torgliv. Botanisera gärna bland ett stort utbud av frukt, grönt och blommor.
Välkommen till Supgränd 3, ett anrikt gatuhus med mycket historia. Redan på 1700-talet uppfödes den första delen. 1810 var det dags att bygga till. Det sägs att huset var stadens första "Folkets hus". I ägarinnans sal höll fackföreningarna och arbetarklubben sina sammankomster. Harmonikörens föregångare repeterade också i denna sal.
Nu, ett par hundra år senare har huset genomgått en fundamental renovering. I samråd med stadsantikvarie, konsulter och byggare har renoveringen planerats minutiöst och ingenting har lämnats åt slumpen. Med en strävan att bevara men ändå omvandla till något nytt och modernt har detta under 2024 och 2025 gjorts till verklighet. Hela stommen är omgjord och återuppbyggd, delvis med renoverade och återmonterade originalmaterial.
Här har renoveringen avstannat på grund av säljarnas ändrade planer. Med noggranna ritningar och ett sammanfattat produktblad om hur det kan bli, lämnas projektet med varm hand över till köparen att slutföra.
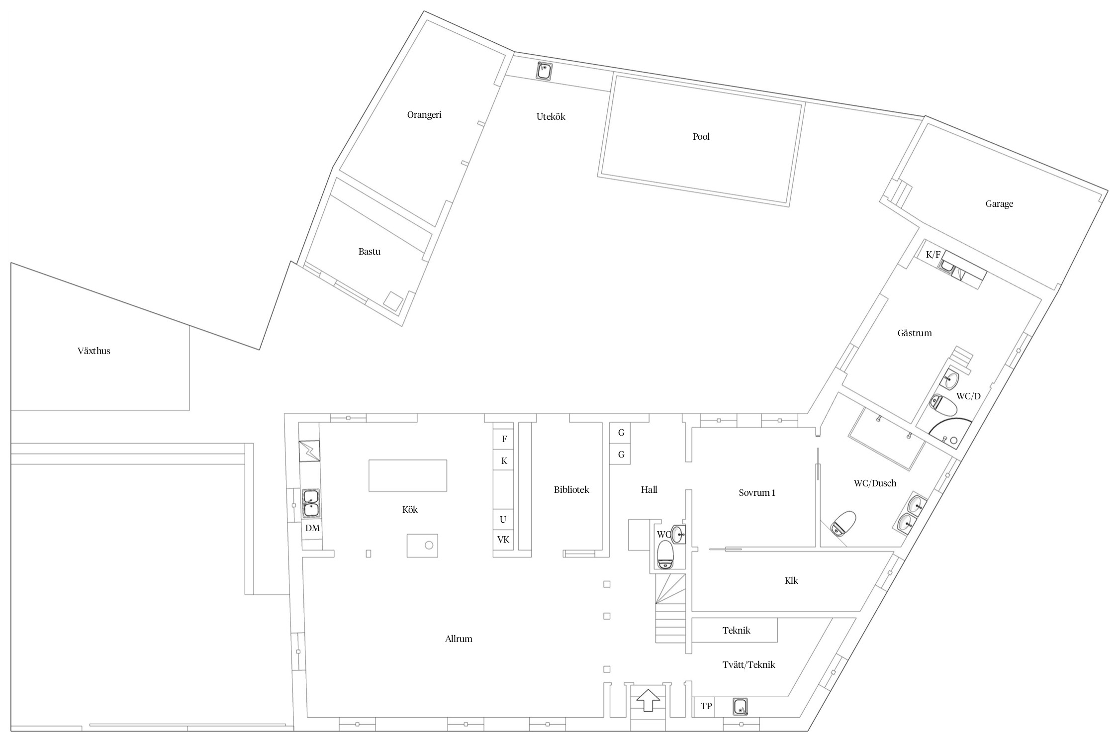
Huset erbjuder nu allrum och kök i öppen planlösning där ljusinsläppet kommer från både norr, väster och söder. Ett noga utvalt kök med matchande bänkskivor i sten och dubbeldörrar mot gården förstärker känslan av lyx. Bredvid köket når du det tänkta biblioteket med utgång till innergården.
I den andra delen av entréplan finns tvättstugan där allt är planerat för en smidig hantering av tvätten. I hallen leder den vackra Vitabytrappan upp till ovanvåningen. Masterbedroom är väl tilltaget med en stor walk in-closet innanför. Eget badrum med dubbbeldusch.
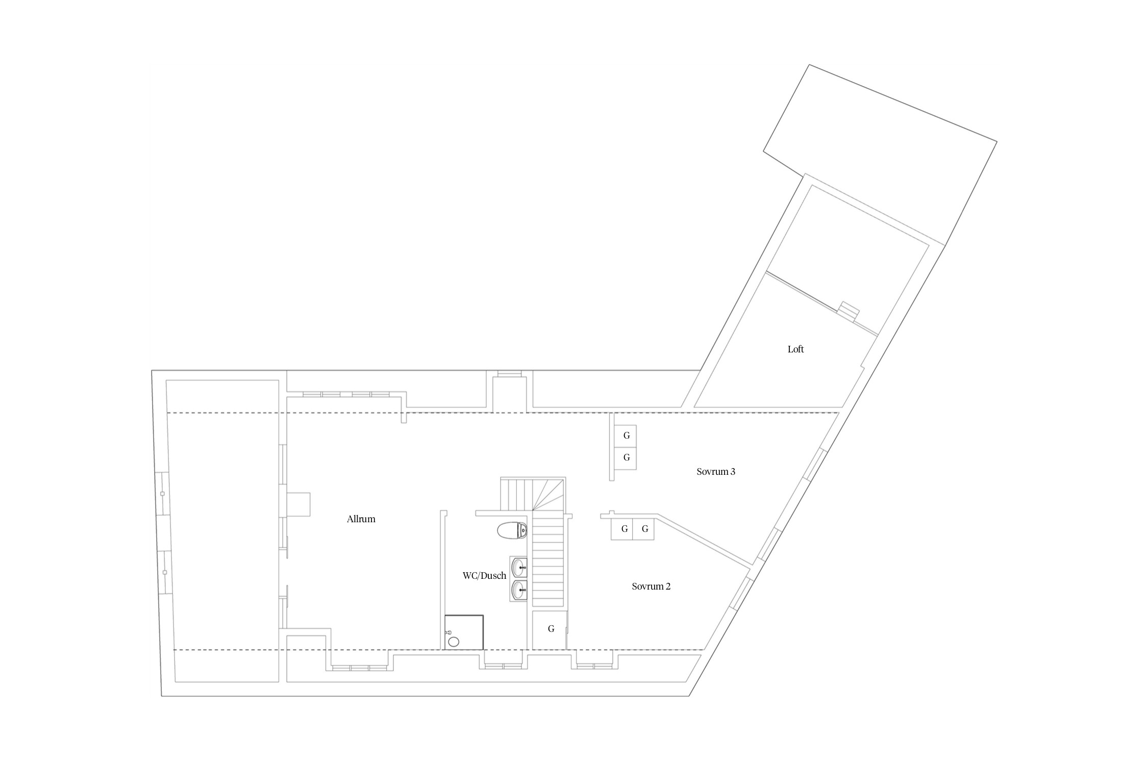
På ovanvåningen väntar ett luftigt och vackert allrum med öppning mot entréplanets kök och matplats.
Badrum med dusch. I den andra delen av våningen finns två sovrum med oregelbunden form och öppet upp i nock vilket skapar extra charm.
I den östra delen av huskroppen finns en liten gästlägenhet med litet allrum, pentry, badrum och sovloft.
Dessutom finns en innergård som kan göras magisk, ett garage, biluppställningsplatser, möjlighet att göra orangeri med mera.
Ovan nämnda är renoverat från grunden olika rum har kommit olika långt i färdigställandet. Köparen tar vid i renoveringen i det skick det är vid visningstillfället.



Paul 2
*Areauppgifter enligt taxeringsinformationen
Kommunalt vatten, Kommunalt avlopp.
Detaljplan (1991-08-15) Fornlämning (1 st)
Fiber, öppet stadsnät
Enligt överenskommelse
Det finns 4 st pantbrev uttagna om sammanlagt 6 000 000 kr
Det finns få städer med en så genuin och välbevarad stadskärna som Ystad. Bland de kullerstenbelagda gatorna inne i centrum syns både charmiga korsvirkeshus från medeltiden och pastellfärgade gathus från förra sekelskiftet. Det vimlar av caféer, restauranger och butiker av olika slag. Nere i den mysiga småbåtshamnen finns fiskrökeri och restaurang med uteservering. Den idylliska atmosfären, goda pendlingsmöjligheter, närheten till havet och det stora utbudet bidrar till att många väljer att flytta till Ystad.
Ystads pittoreska stadskärna har blivit lite av en kult inom svensk film tack vare Wallanderfilmerna som baseras på Henning Mankells böcker. Även utanför Sveriges gränser har läsare och åskådare följt Kurt Wallander lösa brott genom Ystads gränder. För den filmintresserade finns en speciell rutt med karta över olika inspelningsplatser runt i staden som man kan följa.
Ystads bebyggelse från sen medeltid till 1700-tal är rankat som en av Skånes bäst bevarade. Gatornas uppbyggnad inne i den gamla staden är nästan oförändrade sedan medeltiden. Ett av de äldsta bebodda husen i Sverige är Apotekarshuset som härstammar från 1400-talet. Inte helt oväntat är de pittoreska gathusen hett eftertraktade på bostadsmarknaden.
Stora Östergatan är stadskärnans shoppingstråk, där både stora butikskedjor och små lokala verksamheter huserar. I gränderna som sticker ut från butiksgatan ligger ett flertal matställen utspridda. På Besökargränd hittar man Per Helsas gård som är en kringbyggd gård med anor från 1700-talet. I dag är detta ett kreativt centrum för olika designers, hantverkare och konstnärer. På andra sidan gården ligger det populära matstället Grändens Mat som serverar vällagad mat till både lunch och middag. På sommaren är det fullsatt på den mysiga kullerstenbelagda innergården. En viktig och vacker mötesplats är Ystad Teater. Efter att den dåvarande teatern brann ner 1891 tog denna form med hjälp av stadsarkitekten Peter Boisen tre år senare. I dag är det en självklar scen för stora musiknamn och föreställningar.
Smidig pendling och bra skolor är ett av många goda skäl att flytta till Ystad. Pågatågen går både till Malmö och Simrishamn och regionbussar når städer som Sjöbo, Trelleborg och Skurup. I Ystad finns förskolor, skolor från åk F-9 samt fyra gymnasieskolor vilket gör det attraktivt för barnfamiljerna. Inne i Ystad finns flera idrottshallar och ett fint badhus med massor av aktiviteter.
Vill du köpa, sälja eller värdera bostad i Ystad? Kontakta Bjurfors mäklare i Ystad! Passa också på att anmäla dig till vår kostnadsfria söktjänst Boagenten som hjälper dig att hitta ditt drömboende.
Kontakta mäklaren om du behöver hjälp att ta fram en boendekalkyl.
När du köper din bostad genom Bjurfors kan du ansöka om bolån till en förmånlig ränta hos vår samarbetspartner SEB.
Kontakta mäklaren för mer information gällande budgivningen.
Kontakta mäklare