-
Köpa
Köpa -
Sälja
Sälja - Hitta bostad
- Skapa bevakning
- Hitta mäklare
Centralt läge med klassisk charm!
Strängnäs Centralt, Strängnäs
*Areauppgifter enligt taxeringsinformationen
Bokad visning.
På Förhand ligger bostäder som av olika anledningar inte är ute till försäljning just nu men som kan komma att säljas om förutsättningarna är rätt.
En charmfull och centralt belägen villa med utsikt, trädgårdsoas och perfekt pendlingsläge.
Välkommen till en sällsynt chans att förvärva en villa med själ, en central pärla där tidlös originalcharm möter moderna bekvämligheter. Här bor du med stadens puls runt hörnet men ändå med känslan av en lugn och grönskande oas.
Redan i den generösa hallen möts du av ett imponerande burspråk som fyller entréplanet med ljus och rymd. Köket med sin vackra tidsenliga karaktär, självklara matplats och en värmande kamin bjuder in till långa helgfrukostar och inspirerande matlagning. Intill ligger det stora sällskapsrummet, en självklar samlingsplats för både vardag och fest.
En trappa upp öppnar allrummet upp sig med fönster i tre väderstreck och en utsikt som få kan matcha, mot den ståtliga domkyrkans siluett åt ena hållet och glittrande vatten vid Nabbviken åt det andra. Härifrån nås tre trivsamma sovrum, där master bedroom sticker ut med utgång till en idyllisk balkong med högklassig utsikt över Mälaren.
Den lummiga tomten är som gjord för livsnjutaren, fylld med fruktträd, bärbuskar och flera rum för både odling och avkoppling. Ett inglasat uterum förlänger säsongen och det charmiga växthuset ger perfekta förutsättningar för dig med gröna fingrar.
På tomten finns även ett garage med anslutande förråd och en inredd vind som med sina generösa ytor passar perfekt som gästboende eller tonårsdel. Här är dessutom vatten och avlopp redan förberett för den som vill komplettera med ett eget badrum.
Detta är ett hem som måste upplevas. En villa där historien känns i väggarna, utsikten över omgivningarna bjuder på ständiga vykortsmoment och där varje detalj bidrar till en unik helhet. Och med resecentrum bara några minuter bort får du dessutom ett pendlarläge i toppklass.
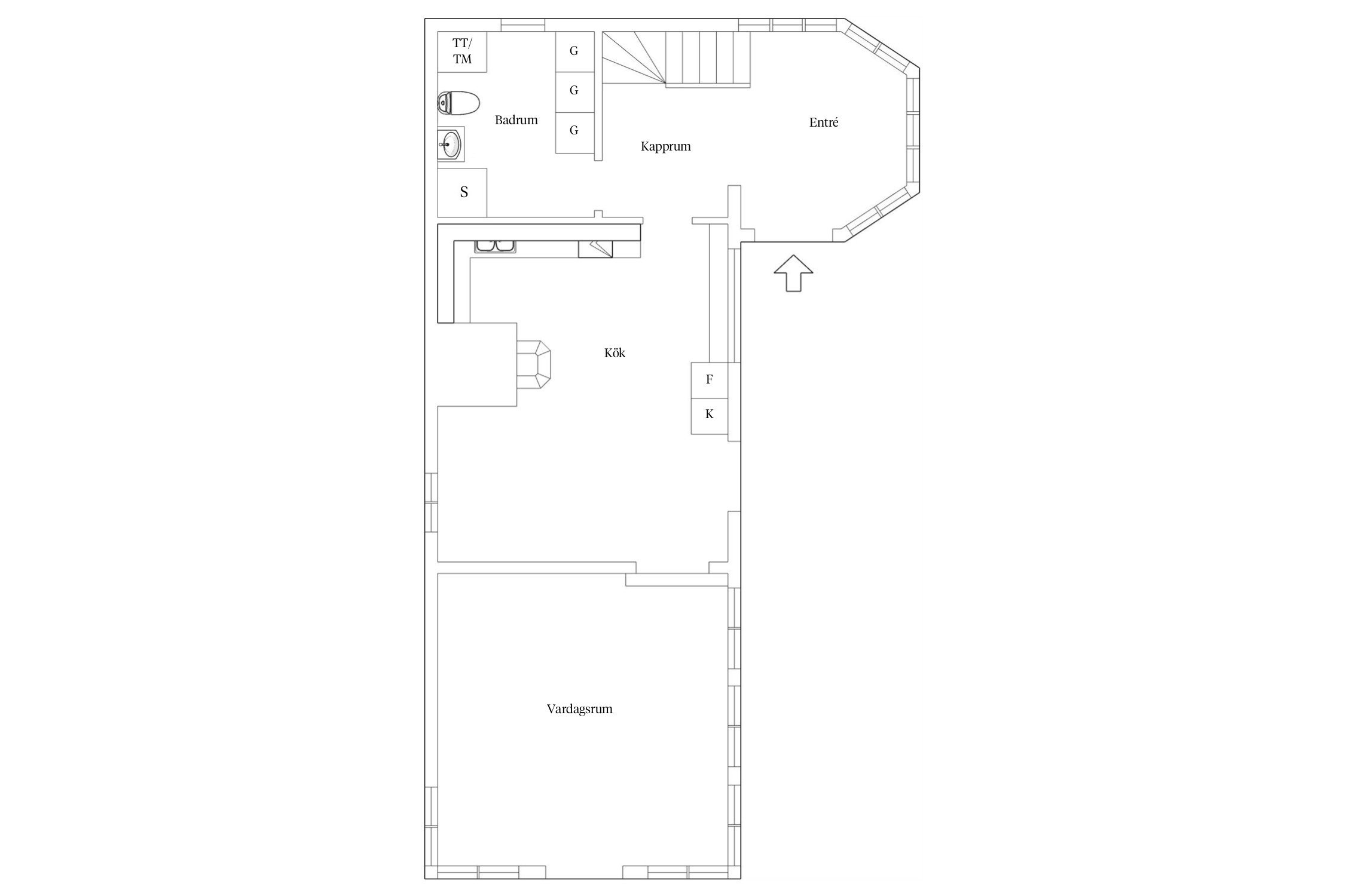
ENTRÉPLAN
HALL
Ljus och inbjudande hall med gott om plats för avhängning. Väggarna är klädda med pärlspont och golvet är klätt i stilrent klinker.
KÖK
Köket är tidsenligt och praktiskt med moderna vitvaror och gott om förvaringsutrymme. Här finns en naturlig matplats samt en kamin som ger extra värme och trivsel. Från köket nås trädgården via charmiga pardörrar. Gediget trägolv och tapetserade väggar.
SÄLLSKAPSRUM
Generöst sällskapsrum med gott om ljusinsläpp från fönster i tre väderstreck. Plats för sällskapsmöblemang och matsalsmöbel. Tapetserade väggar och trägolv.
BADRUM
Helkaklat badrum med wc, handfatskommod och förvaring i flertalet garderober. Därtill tvättmaskin och torktumlare.
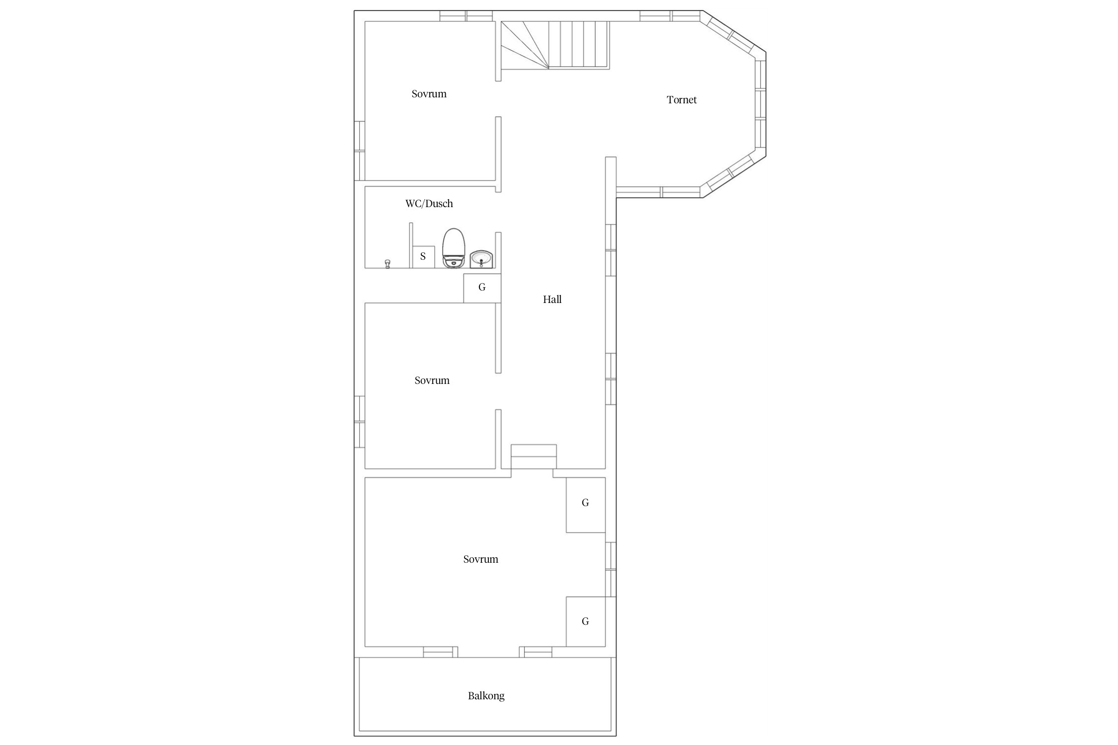
ÖVRE PLAN
ALLRUM
Allrummet har fönster i tre väderstreck vilket ger ett fint ljusinsläpp under hela dagen. Lämpar sig väl för både avkoppling och samvaro. Ljusa ytskikt och parkettgolv.
MASTER BEDROOM
Stort sovrum med förvaring i platsbyggda garderober. Från rummet finns utgång till balkong med utsikt över Mälaren vilket ger både ljus och trivsel. Tapetserade väggar och parkettgolv.
SOVRUM
Trivsamt sovrum med plats för säng och läshörna. Tapetserade väggar och parkettgolv.
SOVRUM
Rogivande sovrum med plats för säng och arbetshörna. Tapetserade väggar och parkettgolv.
BADRUM
Helkaklat badrum med wc, handfatskommod och dusch.



Skolmästaren 21
*Areauppgifter enligt taxeringsinformationen
2018 Husen ommålade och fönster kittade och målade
2018 Byggt ett extrarum uppe
2020 Övervåning ommålad
2020 Uterum
2021 Golven slipade nere
2021 Nytt avlopp ut till gatan, förberett vatten/avlopp till gårdshus
2022 Ny klinker och ommålat entré
2022 Ny luftvärmepump på övervåningen
2022 Växthus
2021 och 2023 Byggt skjutdörrar uppe
2023 Fiber
2023 Ny balkongdörr i sovrum
2024 Tapetserat i gästrummet
2023 och 2025 Bytt inredning båda toaletter och toalettstol uppe
2025 Byggt fasta garderober sovrum
2025 Tapetserat sovrum
2025 Tapetserat kök
2025 Rengöring av tak
2025 Ny bergvärmepump
2025 Bytt toalettfläkt
2025 Elektronisk termostater elementen
2025 Sommarvatten
2003
Kommunalt vatten, Kommunalt avlopp.
Stadsplan (1946-08-07) Tomtindelning (1941-06-28) Fornlämning (1 st)
Fiber
Driftkostnader och elförbrukning är inhämtade från säljaren och bör endast ses som en uppskattning. Kostnaden kan variera och baseras på förbrukning och avtal.
Det finns 16 st pantbrev uttagna om sammanlagt 3 485 000 kr
Vill du köpa, sälja eller värdera bostad i Södermanland? Kontakta våra mäklare! Passa också på att anmäla dig till vår kostnadsfria söktjänst Boagenten som hjälper dig att hitta ditt drömboende.
Här hittar du alla våra lediga bostäder till salu i Södermanland län just nu!
Kontakta mäklaren om du behöver hjälp att ta fram en boendekalkyl.
När du köper din bostad genom Bjurfors kan du ansöka om bolån till en förmånlig ränta hos vår samarbetspartner SEB.
Bokad visning.
Ansvarig mäklare