-
Köpa
Köpa -
Sälja
Sälja - Hitta bostad
- Skapa bevakning
- Hitta mäklare
Stilfull och ljus lägenhet från 2021.
Centrala Huddinge, Huddinge
*I månadsavgiften ingår uppvärmning, varm och kallvatten samt bredband och grundutbud av kabel-tv.
**Areauppgifter enligt bostadsrättsföreningen
Anmälan krävs. Boka er för visning på bjurfors.se
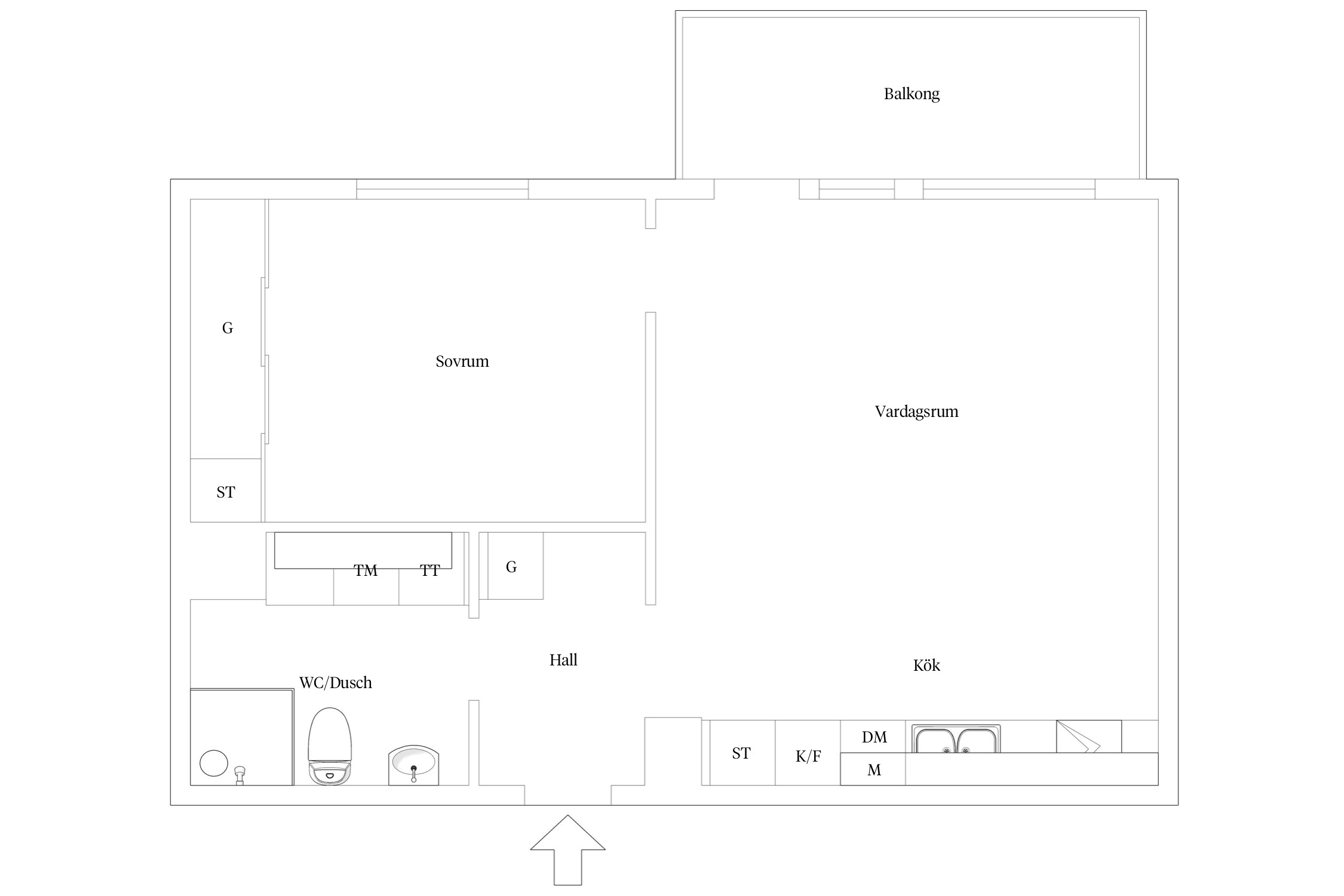
Modern 2:a med balkong!
Möjlighet att förvärva en mycket ljus och välplanerad lägenhet med bra ljusinsläpp och moderna, ljusa ytskikt. Här bor du med smart planlösning som erbjuder entré med hall, helkaklat badrum, rogivande sovrum samt kök och vardagsrum i öppen planlösning – perfekt för både vardag och socialt umgänge. Lägenheten erbjuder dessutom gott om förvaring och ett rymligt externt förråd.
Ett morgontips: Börja dagen med en kort promenad till populära Stenugnsbageriet Spröd – endast ca 5 minuter bort – där du kan njuta av nyrostat kaffe och nybakat bröd, bakat med kärlek och hantverksskicklighet.
Bostaden är belägen i ett lugnt och trivsamt område med närhet till allt du behöver. På cirka 6 minuters gångavstånd når du Huddinge centrum med ett brett utbud av service såsom matbutiker, restauranger, apotek, banker, vårdcentral, pendeltåg och bussförbindelser. Området erbjuder även närhet till natur, skolor och förskolor – en perfekt kombination av stadsliv och grönska.
Tillträde enligt överenskommelse.
Välkommen att höra av dig till Magnus Karlsson – Bjurfors Huddinge
ENTRÉ/HALL
Entré med parkettgolv, målade väggar, säkerhetsdörr samt gott om förvaring i garderob.
DUSCHRUM/WC
Modernt duschrum med kakel, klinker, duschhörna, wc, tvättställ, tvättmaskin och torktumlare.
KÖK
Ljust kök i öppen planlösning mot vardagsrum. parkettgolv, målade väggar, kyl/frys, induktionshäll, fläkt, diskmaskin samt ugn och mikrovågsugn.
VARDAGSRUM
Ljust och lätt möblerat vardagsrum i öppen planlösning mot köket, parkettgolv och målade väggar. Här finns det stora fönsterpartier och utgång till den härliga balkongen.
SOVRUM
Rymligt sovrum med plats för dubbelsäng. Här finns parkettgolv och förvaring i garderob.



*Areauppgifter enligt bostadsrättsföreningen
I månadsavgiften ingår uppvärmning, varm och kallvatten samt bredband och grundutbud av kabel-tv.
Separat lägenhetsförråd
Föreningen har 40 st parkeringsplatser i garage. I garaget finns även elbilsladdare på vissa platser.
Beträffande garageplatser så är alla upptagna. Men i dagsläget kan man få garageplats efter tre månader. (2025-04-01, uppgift från styrelsen).
Bostadsrättens indirekta nettoskuldsättning baseras på föreningens skulder/lån minus föreningens räntebärande tillgångar och likvida medel. Beräkningen är gjord och baseras enbart på den senaste tillgängliga årsredovisningen. För mer information kontakta ansvarig fastighetsmäklare.
Detta är nuvarande ägares driftskostnader och kan variera bl.a. beroende på hur många personer som ingår i hushållet samt vilka avtal man väljer.
*Betalas av säljare
Brf Blomma i Sjödalen är en ny förening där husen stod klara i början av 2021. Ikano bygger totalt 77 lägenheter med kvadratsmarta planlösningar i storlekarna 1-4 rok.
Lägenhetsfördelning:
1 rok 32–34 kvm - 7 st
2 rok 44–61 kvm - 34 st
3 rok 68–76 kvm - 28 st
4 rok 85–87 kvm - 8 st
Höjning med 2% av avgiften från 1 jan 2026.
Fastigheterna är fullvärdesförsäkrade hos Protector Forsikring ASA. I försäkringen ingår även kollektivt
bostadsrättstillägg för medlemmarna samt ansvarsförsäkring för styrelsen.
Föreningen har 40 st parkeringsplatser i garage. I garaget finns även elbilsladdare på vissa platser.
Beträffande garageplatser så är alla upptagna. Men i dagsläget kan man få garageplats efter tre månader. (2025-04-01, uppgift från styrelsen).
I månadsavgiften ingår bredband och ett basutbud av TV-kanaler.
Leverantör är Tele2.
Kvarteret har en grön och ljus innergård som delas med Brf Plantera. Gården växer ihop med nya grannkvarter söder om Brf Blomma.
Till varje lägenhet hör ett vindsförråd, storlekarna på förråden varierar beroende på lägenhetsstorlek. Cykel- och barnvagnsrum finns i huset.
Gemensamhetsanläggningar
Föreningen deltar i två gemensamhetsanläggningar tillsammans med ägaren av fastigheten Huddinge
Brandstegen 10. Brandstegen GA:2 avseende garage med tillhörande anläggningar, andelstal 39/69, och Brandstegen GA:3 avseende innergård med tillhörande anläggningar, andelstal 4540/7936.
Gemensamhetsanläggningarna förvaltas genom delägarförvaltning.
Väsentliga servitut/ledningsrätter
Fastigheten är förmånstagare av servitut för cykelparkering, dräneringsledningar samt rätt att anlägga,
underhålla och förnya balkonger.
BUDGIVNING
Vi använder oss av öppen budgivning, vilket innebär att mäklaren löpande redovisar det högsta budet till budgivarna som då har möjligheten att bjuda över varandra. Mäklaren noterar samtliga bud med namn på budgivaren, tidpunkt och bud, samt eventuella villkor med budet.
Alla som deltar i budgivningen accepterar att fastighetsmäklaren lämnar ut budgivningslistan med budgivarnas namn och telefonnummer samt information om de bud som inkommer till säljare och köpare.
Spekulanter uppmanas att noggrant undersöka lägenheten före köpet, som överlåtes i det skick och med den utrustning som föreligger i dag, med undantag av säljarens åtagande om flyttstädning.
Läs mer om Huddinge kommuns planer för centrala Huddinge på;
<a href="https://www.huddinge.se/stadsplanering-och-trafik/planer-projekt-och-arbeten/pagaende-detaljplaner-projekt-och-arbeten/sjodalen-pagaende-detaljplaner/">https://www.huddinge.se/stadsplanering-och-trafik/planer-projekt-och-arbeten/pagaende-detaljplaner-projekt-och-arbeten/sjodalen-pagaende-detaljplaner/</a>
Uppgifterna i objektbeskrivningen härrör huvudsakligen från säljaren och kontrolleras av fastighetsmäklaren endast om omständigheterna ger anledning till detta.
Centrala Huddinge är en levande stadsdel med en blandning av boende, service, butiker och restauranger. Det är Huddinges kommuncentrum och handelscentrum.
När järnvägen mellan Stockholm och södra Sverige byggdes ut på 1860-talet formades stationssamhället Huddinge. 1902 lanserades det som Huddinge villastad på vars mark senare Huddinge centrum växte upp. Redan på 1920-talet uppstod ett litet affärscentrum med enkla byggnader.
Centrala Huddinge utgör idag delar av kommundelarna Sjödalen och Fullersta. När Huddinge Centrum byggdes där på 50-talet var det främst en villastad. Numera dominerar flerfamiljshusen.
Kommunikationerna är utmärkta med såväl pendeltåg samt bussterminal för många anslutande busslinjer. Man är bara en pendeltågsstation från Södertörns högskola. Med pendeltåg kan man ta sig in till Stockholm C på ca 15 minuter och söderut till Södertälje tar det ca 25 minuter.
Det finns rikligt med förskolor, flera grundskolor och gymnasieskolor i anslutning till området. Men trots det centrala läget är man fortfarande nära promenadstråk, friluftsområden och idrottsanläggningar samt sjön Trehörningen.
Intill centrum finner man trivsamma och inbjudande Sjödalsparken som anlades under 60-talet och där det varje år anordnas flera omtyckta evenemang, konserter, marknader och aktiviteter. Här finns en större öppen gräsyta med bänkar, stora träd, scen och lekplats. Från samtliga håll finns gång- och cykelvägar som kopplar an till omgivningarna.
Centrala Huddinge är i ett expansivt läge. Kommunen har antagit en ambitiös utvecklingsplan som syftar till bland annat att förstärka centrum som mötesplats med ett brett utbud för olika målgrupper. Kärnans gångstråk ska öppnas upp och kopplas ihop med grönområden, infrastrukturen förbättras. Redan nu byggs nya bostäder och de kommersiella delarna med ett 80-tal butiker utvecklas med nya och kända varumärken. Huddinge centrum erbjuder redan idag en levande torgmiljö med öppna gator där väletablerade kedjor blandas med mataffärer, gym, vårdinrättningar och många små lokala handlare samt flertal restauranger. För mer information, besök gärna: www.huddingecentrum.se/
Köpa, sälja eller värdera bostad i Centrala Huddinge? Kontakta våra Bjurfors mäklare i Huddinge! Passa också på att anmäla dig till vår kostnadsfria söktjänst Boagenten som hjälper dig att hitta ditt drömboende.
Kontakta mäklaren om du behöver hjälp att ta fram en boendekalkyl.
När du köper din bostad genom Bjurfors kan du ansöka om bolån till en förmånlig ränta hos vår samarbetspartner SEB.
Anmälan krävs. Boka er för visning på bjurfors.se
Ansvarig mäklare