-
Köpa
Köpa -
Sälja
Sälja - Hitta bostad
- Skapa bevakning
- Hitta mäklare
Sällan till salu, villa med pool!
Hörningsnäs, Huddinge
*Areauppgifter enligt uppmätning från säljaren
På Förhand ligger bostäder som av olika anledningar inte är ute till försäljning just nu men som kan komma att säljas om förutsättningarna är rätt.
Närhet till pendeltåg och Huddinge Centrum - Generösa sällskapsytor - Upp till fyra sovrum - Soldäck med pool - Populärt & attraktivt område.
Familjevilla i populärt, lugnt och centralt område, barnvänlig och insynsskyddad tomt med prunkande växtlighet och minimal insyn!
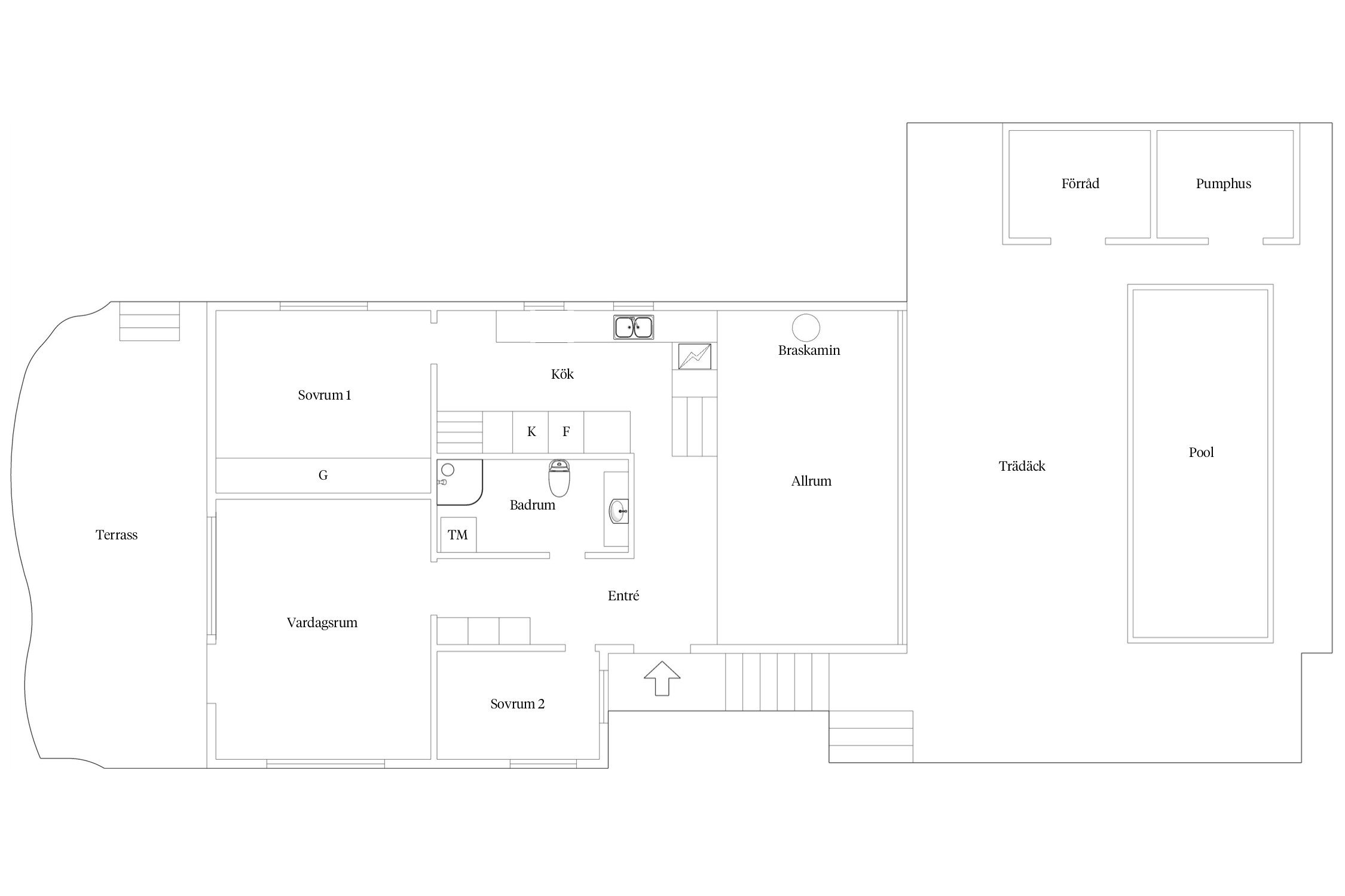
Väl inne i huset möts ni av ett entréplan som erbjuder två sovrum, badrum, kök och vardagsrum samt ett sällskapsrum. Ett sällskapsrum som är öppet mot nock med synliga bjälkar och magisk ljusinsläpp som kommer in genom bostadens stora fönsterpartier och utgång till den stora trädäckade uteplatsen med pool. På det nedre våningsplanet finner ni två sovrum, kök, toalett samt en spaavdelning med bastu. Tack vare en extra entré på nedre plan finns det möjlighet för dig som vill skapa en uthyrningsdel eller använda våningsplanet till ett generationsboende.
Huset har en underbar trädgård, lummig och skön med två fina uteplatser där det bjuds på både morgonsol och eftermiddagssol. Värt att nämnas är att löpande renoveringar har utförts av familjen som trivts här i 24 år.
Det finns även möjligheter att hyra ut delar av huset till inneboende alternativt använda det för generationsboende.
ENTRÉPLAN:
KÖK: Funktionell kök med parkettgolv, ljust målade väggar/kakel och bra arbetsytor. Kyl, frys, induktionshäll, fläkt, integrerad diskmaskin samt inbyggd ugn och mikro.
ALLRUM: Stort sällskapsrum med ett helt fantastiskt ljusinsläpp från dem stora fönsterpartierna, ljuset lyser upp dom fina väggarna och skapar en frisk känsla som sedan följer dig genom hela bostaden. Lägg därtill en braskamin och utgång till nedre soldäck med pool.
SOVRUM 1: Sovrum med parkettgolv, ljust målade väggar och garderobsvägg med skjutdörrar.
SOVRUM 2: Sovrum med parkettgolv och ljust målade väggar och ljusinsläpp från två väderstreck.
VARDAGSRUM: Ett socialt, lätt möblerat och öppet rum med parkettgolv och ljusa väggar. Här erbjuds mycket dagsljus, fint ljusinsläpp och härliga umgängesytor.
BADRUM: Rymligt helkaklat badrum med dusch, toalett, handfat, badrumsskåp, spegelskåp och tvättmaskin.
UTEPLATS: Stor uteplats mot trevlig naturskön trädgård och pool, perfekt solläge samt väldigt lättskött tomt för den som inte gillar att spendera dagarna med att klippa gräsmattan.
SUTTERÄNGPLAN:
ALLRUM: Lätt möblerat och öppet rum med parkettgolv och ljusa väggar samt fönster i två väderstreck.
KÖK: Kök med parkettgolv, ljust målade väggar med komplett köksutrustning så som kyl/frys, spis, ugn, fläkt samt diskmaskin.
SOVRUM 3: Ljust och rymligt rum med fönster, parkettgolv och ljusa väggar.
SOVRUM 4: Ljust och rymligt rum med fönster, parkettgolv och ljusa väggar.
TOALETT: Klinkergolv och vitmålade väggar med toalett och handfat.
SPA/RELAXAVDELNING: Helkaklad avdelning med dusch, bastu och handfat inklusive kommod.
ENTRÉPLAN
KÖK
Funktionell kök med parkettgolv, ljust målade väggar/kakel och bra arbetsytor. Kyl, frys, induktionshäll, fläkt, integrerad diskmaskin samt inbyggd ugn och mikro.
ALLRUM
Stort sällskapsrum med ett helt fantastiskt ljusinsläpp från dem stora fönsterpartierna, ljuset lyser upp dom fina väggarna och skapar en frisk känsla som sedan följer dig genom hela bostaden. Lägg därtill en braskamin och utgång till nedre soldäck med pool.
SOVRUM 1
Sovrum med parkettgolv, ljust målade väggar och garderobsvägg med skjutdörrar.
SOVRUM 2
Sovrum med parkettgolv och ljust målade väggar och ljusinsläpp från två väderstreck.
VARDAGSRUM
Ett socialt, lätt möblerat och öppet rum med parkettgolv och ljusa väggar. Här erbjuds mycket dagsljus, fint ljusinsläpp och härliga umgängesytor.
BADRUM
Rymligt helkaklat badrum med dusch, toalett, handfat, badrumsskåp, spegelskåp och tvättmaskin.
UTEPLATS
Stor uteplats mot trevlig naturskön trädgård och pool, perfekt solläge samt väldigt lättskött tomt för den som inte gillar att spendera dagarna med att klippa gräsmattan.
SUTTERÄNGPLAN
ALLRUM
Lätt möblerat och öppet rum med parkettgolv och ljusa väggar samt fönster i två väderstreck.
KÖK
Kök med parkettgolv, ljust målade väggar med komplett köksutrustning så som kyl/frys, spis, ugn, fläkt samt diskmaskin.
SOVRUM 3
Ljust och rymligt rum med fönster, parkettgolv och ljusa väggar.
SOVRUM 4
Ljust och rymligt rum med fönster, parkettgolv och ljusa väggar.
TOALETT
Klinkergolv och vitmålade väggar med toalett och handfat.
SPA/RELAXAVDELNING
Helkaklad avdelning med dusch, bastu och handfat inklusive kommod.



Lansen 3
*Areauppgifter enligt uppmätning från säljaren
*Original byggnad från 1937, ombyggd 2012
2012- Utbyggnad av sällskapsrum
2012- Installation av braskamin
2019- Kök och sovrum på nedreplan
2021- Byte av värmepump
2023- Byte av avstängningsventiler för inkommande vatten och byte av vattenmätare
Fin trädgårdstomt med stor trädäckad uteplats med pool samt en terrass på husets baksida.
Kommunalt vatten, Kommunalt avlopp.
Uppfart med plats för flera bilar.
Garaget rymmer i dagsläget endast en bil.
Stadsplan (1945-07-06)
Öppen fiber från Telia.
Öppen fiber från Telia.
Detta är nuvarande ägares driftskostnader och kan variera bl.a. beroende på hur många personer som ingår i hushållet samt vilka avtal man väljer. I uppvärmningskostnaden ingår även hushållsel.
BUDGIVNING -
Vi använder oss av öppen budgivning, vilket innebär att mäklaren löpande redovisar det högsta budet till budgivarna som då har möjligheten att bjuda över varandra. Mäklaren noterar samtliga bud med namn på budgivaren, tidpunkt och bud, samt eventuella villkor med budet. Alla som deltar i budgivningen accepterar att fastighetsmäklaren lämnar ut budgivningslistan med budgivarnas namn och telefonnummer samt information om de bud som inkommer till säljare och köpare.
AVGIFTER/STÄMPELSKATT -
2025 tas en fastighetsavgift ut om 10 074 kr/år. Den ersätter tidigare fastighetsskatt och regleras, enligt upplupen tid, på tillträdesdagen. Nybyggda hus med värdeår 2007-2011 är skattebefriade i fem år och därefter betalar man halv fastighetsavgift i fem år. Nybyggda bostäder med värdeår 2012 och senare är befriade från fastighetsavgift i 15 år. För obebyggda tomter gäller fortfarande 1% av taxeringsvärdet i fastighetsskatt. Lagfartskostnad: 1.5 % av köpeskillingen för privatperson och 4.25 % för företag samt en avgift om f.n. 825 kr. Pantbrevskostnad: på nya pantbrev 2 % av pantbrevsbeloppet samt en avgift om f.n. 375 kr.
GRUNDSKOLA I NÄROMRÅDET
Solfagraskolan, åk F-6 - Prästvägen 23-25
Ängsnässkolan, åk 4-6, Centralvägen 19
Hörningsnässkolan, åk F-3, Hörningsnäsvägen 7
Kvarnbergsskolan, åk 7-9 - Gymnasievägen 6
NÅGRA FÖRSKOLOR I NÄROMRÅDET
Förskolan Albatrossen, Hörningsnäsvägen 23
Förskolan Luna, Vikingavägen 3
Förskolan Draken, Drakvägen 4
Solängen förskola - Sjövägen 26
Uppgifterna i objektbeskrivningen härrör huvudsakligen från säljaren och kontrolleras av fastighetsmäklaren endast om omständigheterna ger anledning till detta.
Det finns 19 st pantbrev uttagna om sammanlagt 3 282 000 kr
Hörningsnäs är en uppvuxen villastad med cykel- och gångavstånd till Huddinge Centrum liksom naturområden kring sjön Trehörningen.
Hörningsnäs Villastad är ett bostadsområde i kommundelen Sjödalen- Fullersta. Namnet kommer från den angränsade sjön Trehörningen. Där låg Hörningsnäs Gård, som var en av de första stora gårdarna i Huddinge Kommun som avstyckades till villatomter i början av 1900-talet.
Under 20-talet byggdes egna hem och under 30-talet småstugor. Det var ursprungligen mycket stora tomter med naturmark som låg på båda sidor om Lännavägen i en kuperad terräng. Ett litet antal stora tomter finns kvar. De flesta har styckats upp.
Det finns flera äldre och kulturhistoriskt intressanta villabyggnader kvar i Hörningsnäs, men mycket av dagens bebyggelse kommer från 50- och 60-talet. Nu finns det även flerfamiljshus.
Det finns två förskolor i Hörningsnäs och flera planeras. Likaså finns två grundskolor: Hörningsnässkolan (F3) och Ängsnässkolan (årskurs 4-6). Det är nära till Huddinge Centrum och Sjödalsgymnasiet.
Det är gång- och cykelavstånd till Huddinge Centrum. Med busslinje 709 eller 744 tar det endast 4 minuter från Hörningsnässkolan. Huddinge Centrum har som kommuncentrum och handelscentrum ett rikligt utbud av kommersiell och allmän service. Här finns butiker, restauranger, biografer, sjukhus m.m. Centrum är i en starkt expansiv utveckling.
Kommunikationerna från Huddinge är mycket bra med pendeltåg till Stockholm C (15 minuter) och Södertälje (25 minuter) eller buss till Högdalens T-bana.
I Hörningsnäs har man nära till Huddinges naturreservat med stigar och leder. Trehörningen är den närmaste badsjön.
Köpa, sälja eller värdera bostad i Hörningsnäs? Kontakta våra Bjurfors mäklare i Huddinge! Passa också på att anmäla dig till vår kostnadsfria söktjänst Boagenten som hjälper dig att hitta ditt drömboende.
Kontakta mäklaren om du behöver hjälp att ta fram en boendekalkyl.
När du köper din bostad genom Bjurfors kan du ansöka om bolån till en förmånlig ränta hos våra banksamarbetspartners Söderberg & Partners och SEB.
Ansvarig mäklare